Meinungen zu unserem Grundriss erwünscht

4,30 Stern(e) 4 Votes
Zuletzt aktualisiert 23.12.2025
Sie befinden sich auf der Seite 7 der Diskussion zum Thema: Meinungen zu unserem Grundriss erwünscht
>> Zum 1. Beitrag <<

Kisska86

Kisska86

Sorry, aber besser bekomme ich es echt nicht hin. Ich hoffe ihr könnt noch etwas erkennen und meldet euch mit ein paar Meinungen. Danke!
 

Anhänge

M

milkie

Ich kann die Pläne eigentlich ganz gut erkennen.

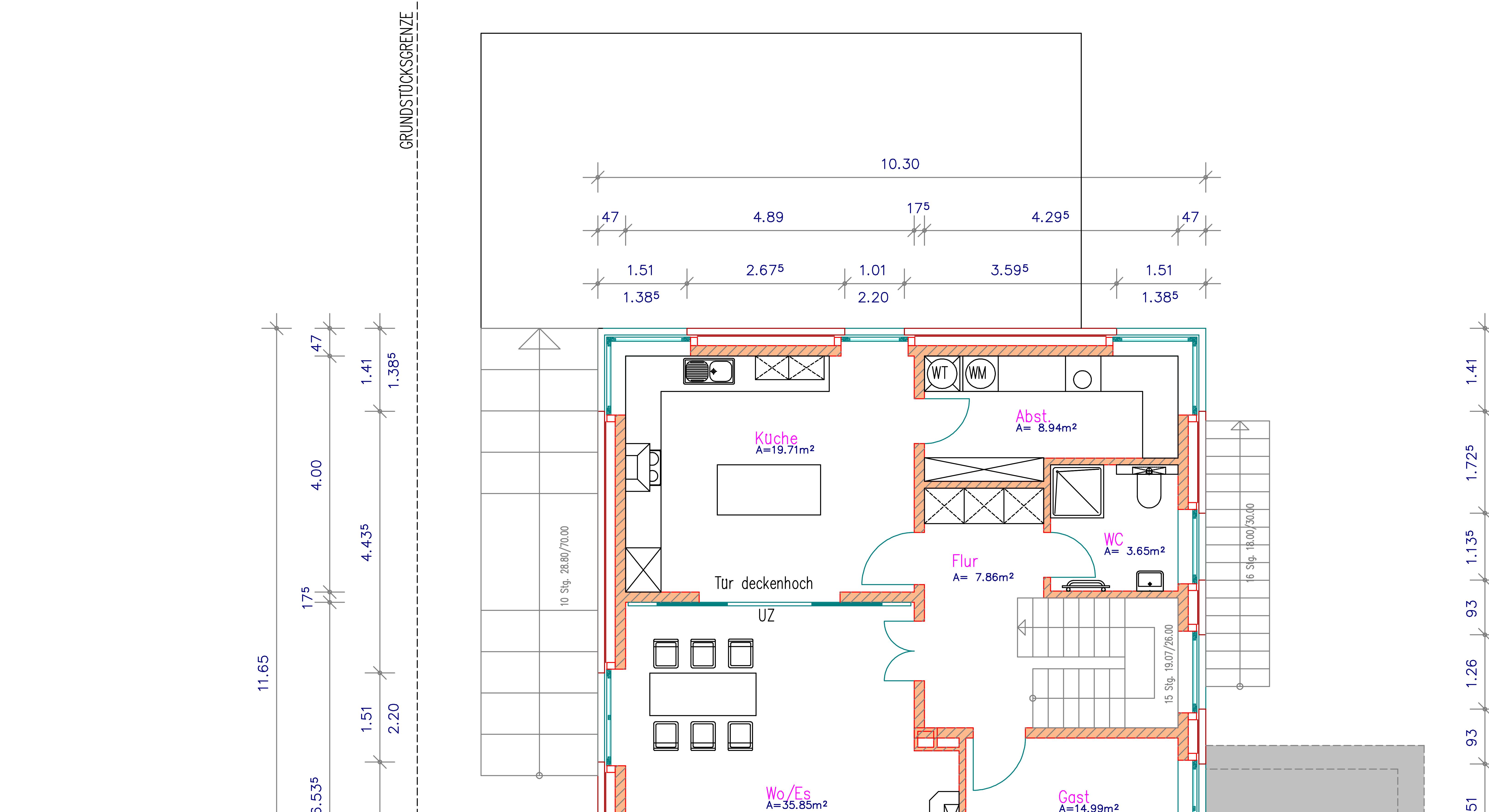
Was mir auffällt ist die Eckverglasung in der Speisekammer. Die ist überflüssig aber wahrscheinlich wegen der Ansicht so gewählt.

Die Ausrichtung der Räume ist so sicher besser gewählt. Jedoch wäre es nicht besser eine Westterrasse anzulegen?
Oder zumindest einen sonnigen Balkon?
Oder was ist das auf der Westseite Richtung Norden? Die Tür im Essbereich scheint mir da etwas schwer zugänglich zu sein, falls das der Zugang zum Garten ist.

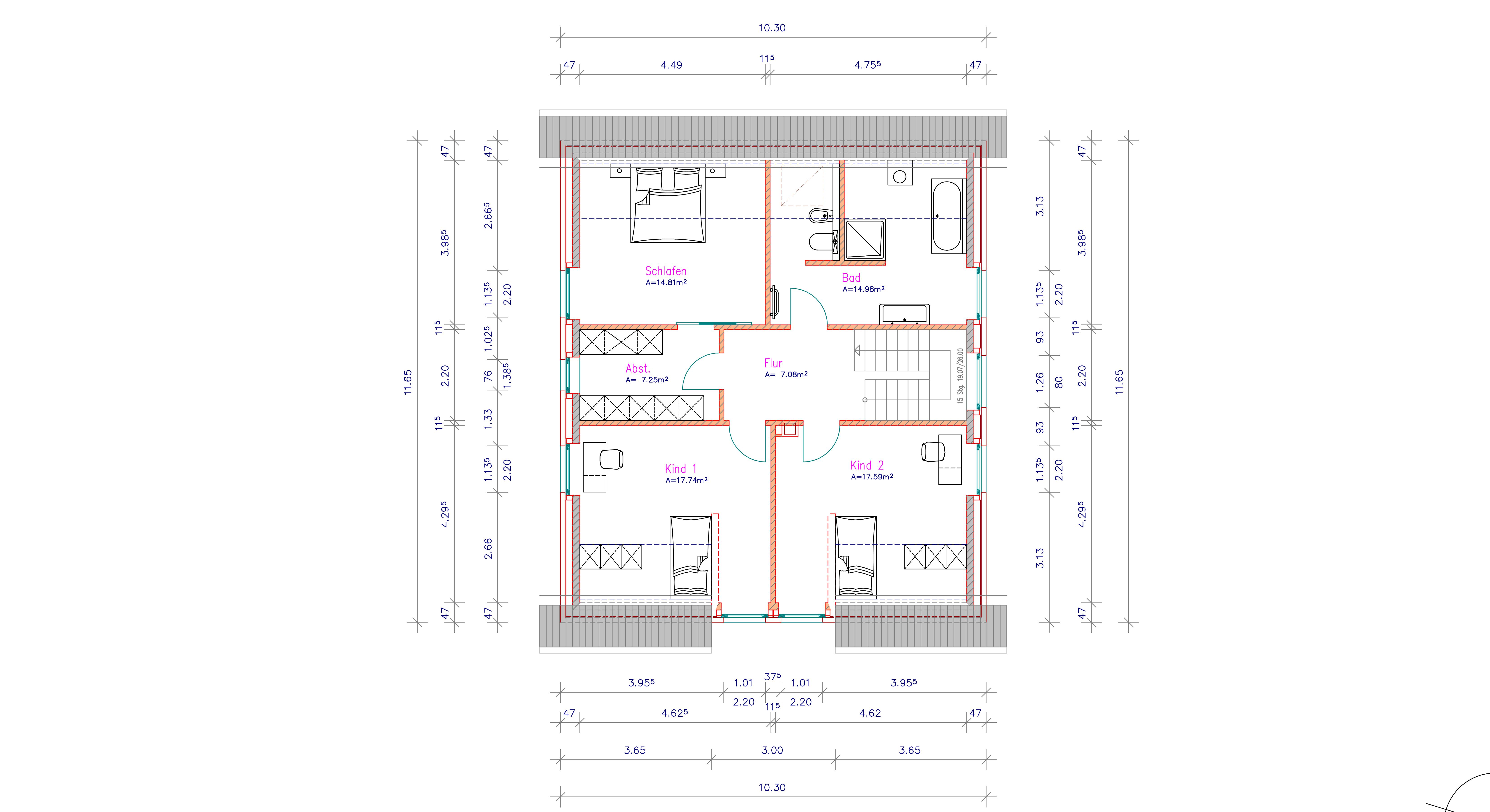
Das Bad würde ich anders einteilen. Man läuft gegen eine Wand.

Viel Glück
milkie
 
Masipulami

Masipulami

Die Fenster müssen dringend noch aufgeräumt werden. Die Ansicht ist nicht schön.

Ansonsten gefällt mir der Grundriss gut.

Warum die doppelflügelige Tür zum Wohnzimmer. Die beiden Flügel sehen irgendwie sehr klein aus. Ist das so maßstabsgetreu?
 
Kisska86

Kisska86

Danke schon mal für die ersten Meinungen.

1. Die Eckverglasung im Abstellraum ist tatsächlich wegen der Ansicht so gewählt, sonst sieht komisch aus aus dem Garten. Aber die ist ja nicht so groß und soll wohl nicht viel mehr kosten als zwei Fenster oder ein Fenster und eine Terrassentür.
2. Eine West-Terrasse oder -Balkon sind direkt neben dem Haus nicht möglich aus baurechtlichen Gründen. Wir dürfen dort wegen der Grenzbebauung nicht so hoch aufschütten. Das an der Westseite ist quasi so eine Art Treppe. Und die bodentiefen Fenster im Wohn-/Essbereich sind auch keine Türen, weil man ja runter fallen würde. Der Zugang zum Garten ist "nur" über die Küche möglich direkt auf die Terrasse nach hinten raus. Das ist dann eine reine Nordterrasse, die aber bis an die Grundstücksgrenze gezogen wird und somit auch einen Westbereich hat. Ich hoffe das ist so verständlich, habe mal noch ein Bild mit Terrasse angefügt.
3. Habt eine Idee für eine andere Aufteilung im Bad. Im bin mir auch nicht sicher, ob es so gut aussieht. Wir wollten eventuell auch die Wand, wo die Toilette dahinter ist nur 120cm hoch Mauern lassen oder so. Meint ihr das ist besser? Irgendwie gefällt es mir gut, aber dann bin ich doch etwas skeptisch. Ist ja schon ziemlich ungewöhnlich.
4. Ja, die Fenster sind noch in der Aufarbeitung. Das geht gar nicht. Ich weiß auch nicht, was die Bauzeichnerin des Architekten sich da zum Teil bei gedacht hat. *KopfSchütttel* Ich bin da im Moment dran. Stelle gleich mal ein paar meiner Vorschläge rein.
5. Die Schiebetür zum Wohn-/Essbereich war unser Wunsch. Der Durchgang ist ca. 2,40m breit und wird mit zwei Flügeln à 1,20m zugemacht werden können. Die Flügel werden im Wohnzimmer vor die Wand laufen und das müsste passen. Insgesamt ist die Wand 4,90m breit. Das war unser Wunsch für größere Feiern den Esstisch auch in den Durchgang stellen zu können. Wir haben es auch so schon nachgestellt und es funktioniert. Man kann dann zwar nicht mehr hinter den Stühlen her gehen, aber das geht ja dann immer noch durch die normale Wohn- bzw. Küchentür. Wir haben eine große Familie und viele Freunde auch öfter mal Besuch von mehr als 12Erwachsenen plus Kids.
 

Anhänge

Kisska86

Kisska86

So und hier mal die von mir überarbeiteten Ansichten. Die bodentiefen Fenster im EG werden wie gesagt keine Türen sein, sonder welche mit so einem festen Teil unten. Und das Gelände muss man sich so ein wenig dazu denken, aber ich denke die Treppen außen verdeutlichen den Verlauf ca. Die Treppen werden natürlich dann Gemauert bzw. gepflastert oder wie auch immer... Um die Gartengestaltung kümmern wir uns etwas später.
Modernes zweistöckiges Backsteinhaus mit großen Fenstern und Garage

Rotes Backsteinhaus mit Satteldach, Außentreppe mit Geländer, mehrere Fenster, Eingang rechts.

Ansicht eines halbfertigen Backsteinhauses mit offenem Dach und sichtbaren Innenräumen.

Rotes Backsteinhaus mit schrägem Dach, Außenstufen und Fenster, Innenräume sichtbar.
 
Y

ypg

Grundriss gefällt mir bis auf Kleinigkeiten... Aber die Ansichten sind eine kleine Katastrophe (Fenster)
 
Zuletzt aktualisiert 23.12.2025
Im Forum Grundrissplanung / Grundstücksplanung gibt es 2555 Themen mit insgesamt 88566 Beiträgen


Ähnliche Themen zu Meinungen zu unserem Grundriss erwünscht
Nr.ErgebnisBeiträge
1Fenster / Türen / Garderobe 13
2Nicht-bodentiefe Fenster im Wohnzimmer unmodern? Welche Vorhänge? - Seite 217
3Unser Grundriss, Wohn-Essbereich - Eure Meinung - Seite 216
4 Küchenplanung mit tiefen Fenster - Seite 643
5Platzierung der Möbel im Wohnzimmer im Grundriss 10
6Ist die Größe der Terrasse ausreichend? 4x4.5m - Seite 213
7Grundrissplanung Stadtvilla - Was meint Ihr dazu? - Seite 428
8Einbau bodentiefes Fenster & franz. Balkon, Altbau, 4.OG 12
9Bodentiefe Fenster oder Doppelflügeltüre mit franz. Balkon? 25
10Hilfe bei der Anordnung der Fenster benötigt! 32
11Welche Rollläden bei verschlossenem Fenster, nur Verglasung? - Seite 213
12Grundriss Einfamilienhaus geplant, Fenster gefallen uns - Seite 243
13Winkelbungalow, Terrasse ganz oder halb überdachen? - Seite 457
14Grundriss für 150qm Einfamilienhaus mit Wohnzimmer nach Norden 21
15Lärmschutzmöglichkeiten gegen Bahnschienen im Garten - Seite 214
16Öffnungsmöglichkeit der Fenster mit Kontrollierte-Wohnraumlüftung - Ideen zur Planung - Seite 860
17Rat für Größe Überstand Balkon OG - Seite 223
183. Zimmer im 40qm Wohnzimmer unterkriegen. Ideen - Seite 374
19Wohnküche und Wohnzimmer im DG oder im EG - Seite 213
20Grundriss Landhausneubau in großem Garten nach §34 (mit Abriss) 37

Oben