Meinungen zu unserem Grundriss erwünscht

4,30 Stern(e) 4 Votes
Zuletzt aktualisiert 23.11.2025
Sie befinden sich auf der Seite 8 der Diskussion zum Thema: Meinungen zu unserem Grundriss erwünscht
>> Zum 1. Beitrag <<

Y

ypg

Die Arten nicht, es sind ja klassische, dennoch mal zweiflüglig, mal einfach. Verschiedene Breiten. Süd gleich 5 verschiedene, andere Seiten vier... es ist keine Einheit erkennbar, auch keine Linienführung.
Auf der Treppenseite die Versatzhöhe... Da kann man bestimmt einiges anpassen
 
Kisska86

Kisska86

Hallo alle zusammen,
jetzt haben wir auch die Ansichten soweit, dass sie uns gut gefallen. Hier mal wieder rein paar Bilder von euch.
Wir würden uns sehr über ein paar Kommentare freuen. Auch Kleinigkeiten auf die wir vielleicht nicht geachtet haben. Es muss uns ja nicht gefallen nachher, aber vielleicht fällt so etwas auf, was wir total übersehen. Denn wir sind inzwischen echt "betriebsblind".
Der Eingang im UG ist sicherlich nicht jedemans Sache, aber wir finden es in der aktuellen Situation für uns perfekt und das Grundstück hält einfach alle Nachteile weg. Ein Umbau später ist theoretisch möglich und auch mit dem Architekt besprochen, aber wer weiß ob wir dann überhaupt noch in den Haus leben. Wir sind jetzt keine 30 und unsere Kinder noch sehr klein und wer weiß was in 20-30 Jahren so ist...
Ansonsten sind wir mit dem Grundriss zufrieden und finden einfache keine Problemstellen mehr.
Auch die Ansichten gefallen uns so sehr gut. Es soll auf jeden Fall ein roter Klinker mit so einem dunklen Stich werden und die Fenster von außen in anthrazit. Die Gaube und das UG an der Ostseite werden in so einem anthrazit verputzt. Ich hoffe, so könnt ihr euch etwas drunter vorstellen.
LG

Südansicht eines zweistöckigen Backsteinhauses mit dunklem Satteldach, großen Fenstern und Garage.


Ostansicht eines zweistöckigen Backsteinhauses mit Garage und Treppe


Nordansicht eines zweistöckigen Hauses mit grauem Dach, Ziegelmauer und drei Fenstern.


Westansicht eines zweistöckigen Backsteinhauses mit Außentreppe links und Anbau rechts.


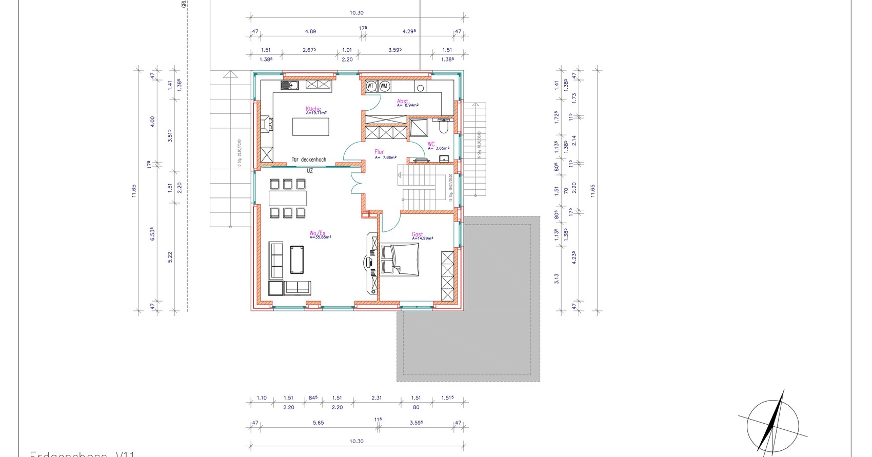
Grundriss eines Hauses: Garage mit Auto, Flur, Diele, Sauna und Abstell-/Heizungsraum im Erdgeschoss.


Grundriss eines Hauses mit Küche, Wohn-/Essbereich, Flur, WC, Abstellraum, Gästezimmer.


Dachgeschossplan: Schlafzimmer, Bad, Flur, Ankleide, zwei Kinderzimmer, Treppenhaus.
 
M

milkie

Ja viel auszusetzen gibt's wohl nicht

Ich finde den Eingang im UG nicht schlimm. Im Gegenteil bin so aufgewachsen und fand das gut. Auch mit dieser Ausrichtung. Mir gefallen Hanggrundstücke sowieso. Wir wohnen nur leider Topfeben
Bei uns war damals die Garage aber links vom Haus und darauf die Terrasse und auf der Nordseite noch die Verlängerung der Terrasse und der Garten.

Die Ansichten gefallen mir irgendwie nicht. Bin aber auch kein Freund von überall bodentiefen Fenstern. Außerdem finde ich die doppelflügligen Türen/Fenster irgendwie zu schmal im Verhältnis. Das gefällt mir nicht. Da hat man mehr Rahmen als Glas.

Vielleicht würde ich Gast in Fahrrad, Fahrrad in Sauna und Sauna in Gast tauschen?
Dann wäre die Sauna bei der EG Dusche und nahe Garten, Sofa und Kühlschrank
Das würde mir mehr zusagen, denn Gäste hat man seltener als man die Sauna nutzt (wir zumindest).
 
Zuletzt aktualisiert 23.11.2025
Im Forum Grundrissplanung / Grundstücksplanung gibt es 2535 Themen mit insgesamt 87992 Beiträgen


Ähnliche Themen zu Meinungen zu unserem Grundriss erwünscht
Nr.ErgebnisBeiträge
1Sauna im Haupt-Bad oder im Keller? - Seite 634
2Grundriss Einfamilienhaus 150qm - Fenster- und Badplanung - Seite 218
3Grundriss Bungalow 172 m2 in Brandenburg südlich von Berlin - Seite 18120
4Sauna Bauen - Viele Fragen 13
5Einfamilienhaus 172qm mit Garage und Sauna - Seite 454
6Sauna selbst bauen mit Dachschräge - Anregungen/Hinweise/Planungen - Seite 18220
7Badewanne vor Fenster, Brüstung zu niedrig, GU stellt sich quer - Seite 548
8Tipps für Sauna im Keller & Tipps für Fitnessstudio im Keller? 16
9Eingang Grundriss welche Treppenvariante - Seite 231
10Knifflige Grundstücksplanung: Garage + Eingang nach SW oder NO? 21
11Einfamilienhaus Ausrichtung Garten und Terrasse: Süden oder Westen? 24
12Für Bullauge, spezielle Vorschriften? Fenster, Einfamilienhaus 1,5 Geschosse. - Seite 318
13Welche Rollläden bei verschlossenem Fenster, nur Verglasung? - Seite 213
14 Küchenplanung mit tiefen Fenster 43
15Grundriss Einfamilienhaus geplant, Fenster gefallen uns - Seite 243
16Küchenplanung mit Insel und bodentiefe Fenster 12
17Fenster / Türen / Garderobe 13
18Einfamilienhaus, Eingeschossigkeit, Kniestock, Fenster OG - Seite 230
19Schallschutz - schwächstes Glied? (Fenster?) - Seite 326
20Einbruchschutz - WK2 auf WK3 Fenster aufrüsten - Meldeanlage? 65

Oben