Küche und Abstellraum Etagenwohnung Grundriss optimieren

4,40 Stern(e) 5 Votes
Zuletzt aktualisiert 06.10.2025
Sie befinden sich auf der Seite 2 der Diskussion zum Thema: Küche und Abstellraum Etagenwohnung Grundriss optimieren
>> Zum 1. Beitrag <<

H

hanghaus2023

Hallo @Yaso2.0 Besteht die Wohnung wie im Plan schon?

Gibt es einen Plan, wo zumindest ein Längenmaß zu sehen ist?

Wo soll die Waschmaschine und der Trockner hin?
 
Yaso2.0

Yaso2.0

Hallo @Yaso2.0 Besteht die Wohnung wie im Plan schon?

Gibt es einen Plan, wo zumindest ein Längenmaß zu sehen ist?

Wo soll die Waschmaschine und der Trockner hin?
Die Wohnung wurde im Jahre 1996 erbaut. Einen Grundriss mit genauen Maßangaben liegt, soweit mir bekannt ist, nicht vor.

Das mit der Waschmaschine und dem Trockner könnte der Grund sein, warum der Abstr. bestehen bleiben müsste.. Die Waschmaschine könnte man ja noch in einem Schrank in der Küche integrieren, aber ob sie auch einen Trockner hat weiß ich nicht.

Das klingt nach einer hervorragenden Gelegenheit, die Küche-Wohnzimmer-Grenze neu zu definieren.
Ja, das finde ich auch, die ist irgendwie komisch verschoben.. Vielleicht war die Küche ja auch mal geschlossen und jemand hat die Wand entfernt..
 
Climbee

Climbee

Die Abstellkammer würde ich auf jeden Fall beibehalten. Die Whg hat auch ansonsten nicht viel Abstellfläche und Platz und wohin sollen Putzzeug, Taschen für den täglichen Einkauf, Sammler für Altpapier und gelbe Tonne etc.? Dafür immer in den Keller rennen? Nö.

Zwei Essplätze bei dem begrenzten Platz halte ich für ziemlich dämlich. Eine Küchenzeile parallel zur oberen Wand, unterhalb des Fensters. Mit der Länge ist man da frei. Kleine Ecke bis zum Eingang in die Abstellkammer. Da könnte dann mind. ein Hochschrank hin. Also ein kleines L, und damit die Küche planoben etwas in den Wohnbereich verlängern (je nachdem, wieviel Wert die Schwimu auf Küche legt). Esstisch in den freien Bereich zwischen L und Küchentür und zwar nur einen Essplatz. Ggf. mit ausziehbarer Tischplatte und ansonsten halt ein kleiner Tisch, der nicht im Weg steht und für eine Person gut ausreicht.
 
Climbee

Climbee

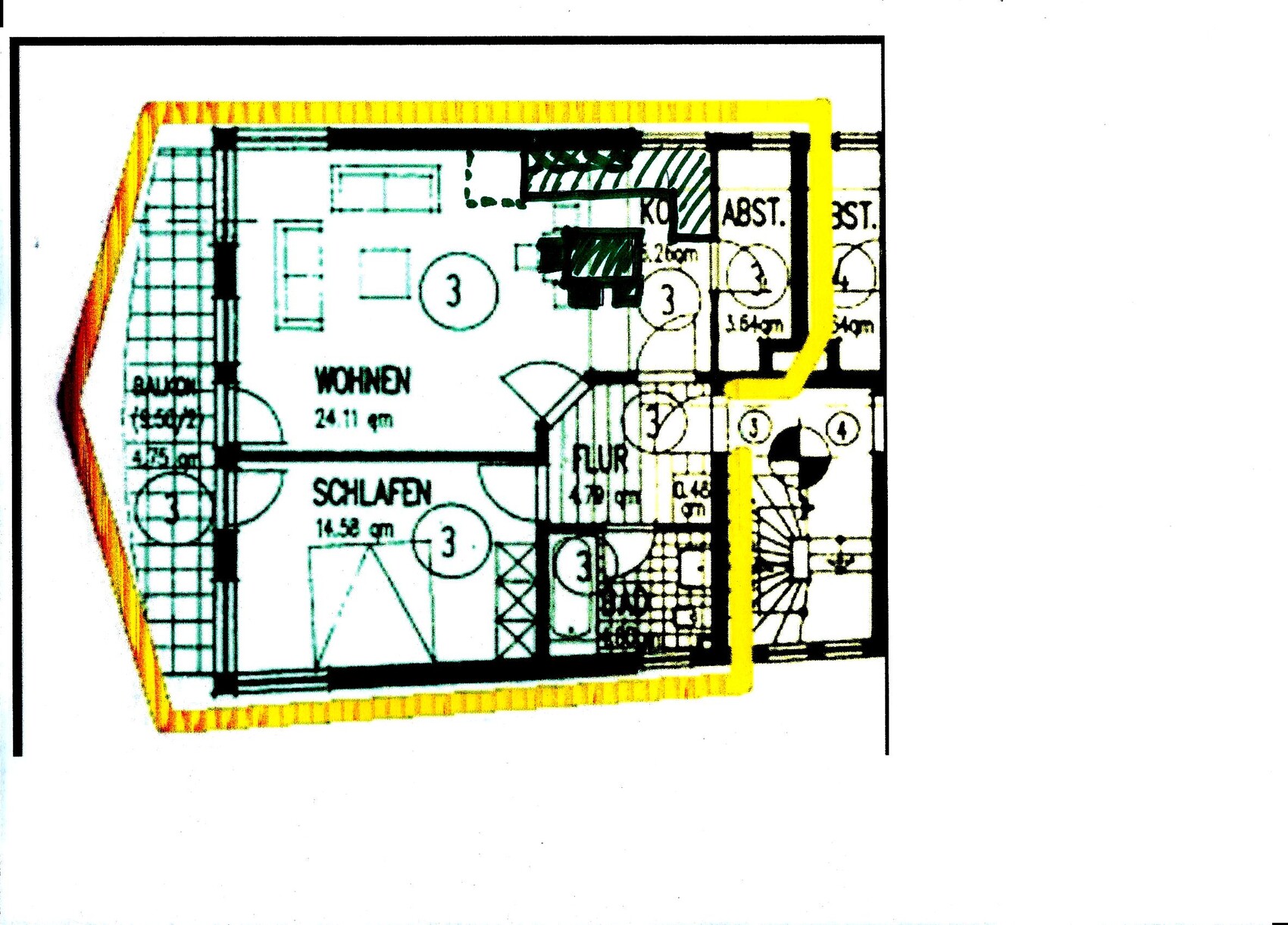
So ungefähr:

Grundriss einer Wohnung: Wohnzimmer, Schlafzimmer, Flur, Bad; gelb markierte Außenkante.


links kann man, wenn gewollt, noch weitere Hochschränke nehmen. Macht das Ganze aber sehr massiv, aber wenn man Spülmaschine und Herd aus Altersgründen oben haben will, muß man wohl jede Chance nutzen.

Auf keinen Fall würde ich in so einer kleinen Wohnung eine Wand einziehen. Soviel steht mit einer Person in der Küche nicht rum, da muß man sich halt disziplinieren und alles wandert sofort in die Spüli.

Man könnte natürlich auch überlegen, ob man die jetzige Küchentüre opfert. Es ist dann etwas weiter mit dein Einkäufen zu laufen, aber man gewinnt Platz für den Essbereich. Und zwei Türen in den gleichen Raum so nah beinander - das macht nicht wirklich Sinn. Das muß ja kein großer Umbau sein. Vom Schreiner statt der Tür ein Regal in die Nische und feddisch und Stauraum gewonnen!
 
Y

ypg

Warum soll der Backofen in einen Hochschrank? Und könnte man die Abstellkammer der Küche zuschlagen?
Damit er höher liegt, aus Altersgründen, ich glaube die Schwiemu ist was zwischen 65-68.
Ich finde das eine gute Idee, ein bis zwei Hochschränke in den Abstellraum unterzubringen.

Aber was ich fragen wollte:
wird der Bodenbelag auch modernisiert, sodass man die Grenzen der Räume verändern kann?
Und wo ist der Wasseranschluss?

Warum man sich in ein kleines Kämmerchen verstecken möchte, wenn einem die Welt mit ganzen 24qm vor den Füßen liegen könnte, ist mir ein Rätsel :D
 
Zuletzt aktualisiert 06.10.2025
Im Forum Grundrissplanung / Grundstücksplanung gibt es 2510 Themen mit insgesamt 87172 Beiträgen


Ähnliche Themen zu Küche und Abstellraum Etagenwohnung Grundriss optimieren
Nr.ErgebnisBeiträge
1Waschmaschine und Trockner im Keller oder OG? 14
2Wäscheturm für Waschmaschine und Trockner gesucht 19
3Waschmaschine und Trockner in Ankleide? - Seite 216
4Reicht der Hauswirtschaftsraum auch als Abstellkammer aus? 22
5Zu hohe Luftfeuchtigkeit in der Wohnung. 60-70% im Winter 33
6Holzparkett im Erdgeschoss und auch in der Küche zu empfehlen? 26
7Jährlicher Wertverlust Küche durchschnittlich? - Seite 222
8Offene Küche bereut oder doch das Non plus Ultra? - Seite 2104
91,5 Zimmerwohnung - Renovierung Küche 28
10Finanzierungsplanung mit vermieteter Wohnung 17
11Wohn-/Essbereich und Küche - Sinnvolle Aufteilung - Seite 336
12Diverse Fragen zur Ikea FAKTUM Küche - Seite 211
13Grundriss: Speisekammer oder größere Küche? Erfahrungen? - Seite 314
14Next 125 Küche Planung / Preis Erfahrungen? - Seite 276
15Nolte Küche Erfahrungen, Qualität - Preis realistisch? - Seite 3154
16Heizung in Küche "notwendig"? - Seite 435
17Einteilung Grundriss Allraum Küche Wohnen Essen - Seite 358
18Waschmaschine und Geschirrspüler in Ikea Metod Hochschrank? 32
19Grundrissänderung - Tragende Wände in Wohnung. Was tun? - Seite 314
20Standort Küche und Wohnzimmer - Seite 255

Oben