Grundrissplanung Stadtvilla mit rund 160 m² ohne Keller

4,80 Stern(e) 4 Votes
Zuletzt aktualisiert 23.11.2025
Sie befinden sich auf der Seite 14 der Diskussion zum Thema: Grundrissplanung Stadtvilla mit rund 160 m² ohne Keller
>> Zum 1. Beitrag <<

kaho674

kaho674

Das Baufeld geht über die komplette Breite des Grundstückes. Garagen und überdachte Stellplätze sind innerhalb der Baufelder zulässig laut Bebauungsplan. Ich gehe deshalb davon aus, das wir die Garage bis ganz an die Grenze bauen dürfen. Ansonsten würde es sowieso schon sehr knapp werden.
Ich kann das irgendwie kaum glauben. Die 3m Grenzabstand sind eigentlich fast überall einzuhalten. Bist Du sicher, dass Ihr links wie rechts einfach an die Grenze bauen dürft? Oder nur die Garagen? Ansonsten musst Du auch damit rechnen, dass Dein Nachbar komplett bis ran baut. Das ergäbe eine geschlossene Häuserfront an der Straße. Ist das ortsüblich?
 
kaho674

kaho674

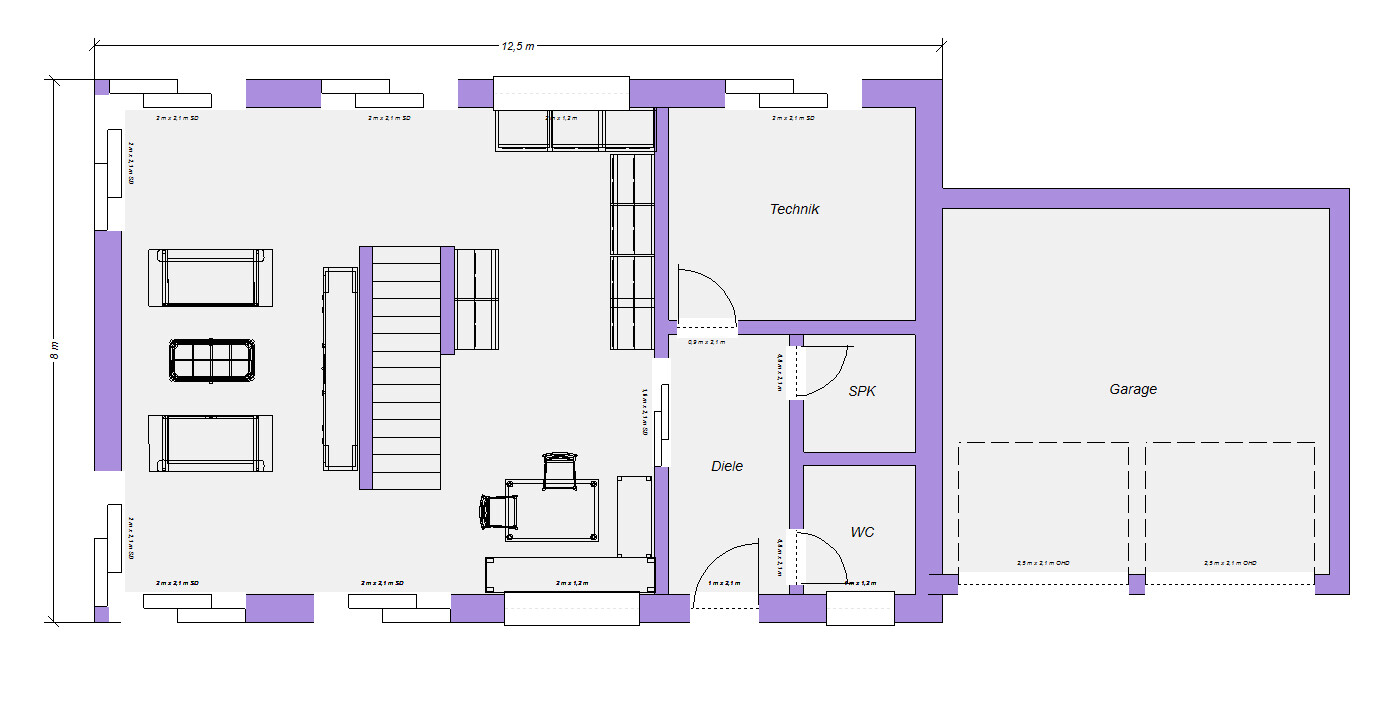
Ich werfe mal noch dieses EG in den Ring. Umgemodelte Vorlage von Scanhaus Marlow Marlow. Nur 8m Breite garantieren Licht überall im Wohnbereich. Garage fügt sich brav an die Seite, wenn Grenzbebauung wirklich zulässig. Etwas Mut gehört dazu. Zudem müssen die Leitungen vermutlich um die Garage drumrum. OG mach ich daher nur, wenn es lohnt.


Grundriss eines Hauses: Großes Wohnzimmer, Diele, Technik, SPK, WC und Garage.
 
Y

ypg

Das Baufeld geht über die komplette Breite des Grundstückes. Garagen und überdachte Stellplätze sind innerhalb der Baufelder zulässig laut Bebauungsplan. Ich gehe deshalb davon aus, das wir die Garage bis ganz an die Grenze bauen dürfen. Ansonsten würde es sowieso schon sehr knapp werden.
Ihr sprecht aneinander vorbei, oder Zisu interpretiert seinen Lageplan falsch.

Es ist nicht unüblich, dass in einem Wohn-Baugebiet die Baugrenzen durchgezeichnet werden. Meist in einer Standardvariante: 5 Meter parallel von der Erschliessungsstraße, dann das Baufenster (wieder parallel) zb 15 Meter Tiefe, hier wohl 20 Meter.
Baulinie ist übrigens die Pflicht, an sie heranzubauen: die Linie zeigt Dir die definitive Lage einer Mauer an.
Baugrenze begrenzt "nur" das Baufenster.

Auch wenn das Baufenster über die Grundstücksgrenzen verläuft, hat man Abstandsflächen zum Nachbarn einzuhalten. Die sind in der Landesbauordnung erwähnt. Meist 3 Meter, in irgendeinem Bundesland auch 2,5 Meter.
Je höher man baut, desto größer wird der Abstand, der einzuhalten ist. Das wird errechnet vom Fachpersonal. Da können aus Minimum 3 Meter auch mal 3,70 entstehen.

Dann gibt es noch die Grenzbebauung: die erlaubt, ein untergeordnetes Gebäude auf Grenze zu setzen, meist bis zu 3 Meter hoch und bis zu 9 Meter auf einer Grenze lang. Insgesamt meist 12 Meter.
 
Z

Zisu2000

@kaho674
Der Grundriss gefällt mir jetzt nicht so sehr, sorry. Außerdem wird durch 12,5m Breite und dann noch die Garage von 6m der Abstand zum Nachbarn sehr gering (nicht mehr ganz 4m). Die Garage hätte ich aber so in etwa angedacht.

Das Haus wird man bestimmt nicht ganz an die Grenze bauen dürfen, da steht aber nichts genaues im Bebauungsplan. Da frage ich noch mal nach. Aber die Garage darf bis ganz an die Grenze gebaut werden. Im Plan sind die Garagen der jeweiligen Grundstücke sogar direkt aneinander. Bei uns würde die Garage nur nach rechts kommen, nicht wie im Plan links. Ist erlaubt, habe schon nachgefragt.

Hab mal das Grundstück mit Baufenster mitgesendet. Die Nummer 4 ist unser Grundstück (das Mittlere)

Lageplan eines Grundstücks mit blauem Rahmen und pinkem Gebäudebereich, 815 m²
 
kaho674

kaho674

Na, das sieht nach 3m Abstand mit Garage auf der Grenze aus. Also Hausbreite maximal 13m, wenn die Doppelgarage direkt am Haus dran steht. Jetzt wüßte man noch gern, wie tief die Garage sein darf. Also wie viel Meter an der Grenze man bebauen darf, zwecks Schuppen ö.ä.
 
Zuletzt aktualisiert 23.11.2025
Im Forum Grundrissplanung / Grundstücksplanung gibt es 2535 Themen mit insgesamt 87992 Beiträgen


Ähnliche Themen zu Grundrissplanung Stadtvilla mit rund 160 m² ohne Keller
Nr.ErgebnisBeiträge
1Baufenster und Grenzbebauung Neubaugebiet 22
2Grenzbebauung bei nicht rechtwinkligem Grundstück (NRW) 35
3Schmales Grundstück mit Grenzbebauung - Diverse Fragen / Probleme - Seite 326
4Scanhaus Marlow Erfahrungen, Preise? - Seite 536
5Grundstück - Baufenster - Lage von Haus und Garage - Seite 244
6Bungalow - macht das auf einem solchen Grundstück Sinn? 21
7Lage Stadtvilla oder Einfamilienhaus auf 500 m2 Grundstück-Rechteck - Seite 20585
8EFA mit ca. 120 m² auf ca. 450 m² Grundstück - Seite 220
9Grundriss Einfamilienhaus ca. 300qm, Grundstück 780qm 24
1012m Grenzbebauung "Garage unterirdisch" möglich ? 12
11Baufenster auf der Flurkarte - Genehmigung - Seite 339
12Bauplatz gefunden! Was NUN...? - Seite 331
13Grundriss mit Garage auf Grundstück realisierbar? - Seite 429
14Platzierung Haus und Garage auf Grundstück 12
15Doppelgarage: Grenzbebauung, 3m Abstand oder auch dazwischen? 10
16Grundstück mit Einschnitt Stromstation / L-Form- Ideensuche 44
17Einfamilienhaus 180-190qm auf 10x20m Baufenster, erster Entwurf GU - Seite 1278
18Einfamilienhaus 220qm mit Keller auf 700qm Grundstück 41
19Platzierung Haus, Terrasse, Carport & Co. im Baufenster - Seite 240
20Grundstück in Marburg gefunden... Worauf achten? 11

Oben