Grundrissoptimierung Einfamilienhaus mit Keller auf kleinem Grundstück

4,00 Stern(e) 31 Votes
Zuletzt aktualisiert 21.11.2025
Sie befinden sich auf der Seite 25 der Diskussion zum Thema: Grundrissoptimierung Einfamilienhaus mit Keller auf kleinem Grundstück
>> Zum 1. Beitrag <<

H

haydee

Gifhorn liegt in Niedersachsen - soll das in Thüringen ein Beispiel geben ?
Ich weiß wo Gifhorn liegt (habe dort noch einen Wohnsitz) und wo Thüringen ist.
Wenn Escorda richtig liegt, muß das Gelände unter dem EG aufgefüllt und auf Straßenniveau gebracht werden. Warum kann man dann in Thüringen kein UG halb eingraben?
Ob und wo es in Thüringen Beispiele gibt, weiß ich nicht. Asche über mein Haupt ich habe am Sonntag nicht darauf geachtet.
 
11ant

11ant

Ob und wo es in Thüringen Beispiele gibt, weiß ich nicht.
Meine Anmerkung bezog sich darauf, daß die Gemeinde hier nach meinem Eindruck das Konzept verfolgt, den aufzustellenden Bebauungsplan quasi aus der §34-Realität zu entwickeln, also den Nachbargebiets-Ist-Zustand als Maßstab zu formulieren. In diesem Sinne sind Beispiele von Anderswo - selbst wenn es Best Practices sein sollten - immer mit dem Makel des fehlenden Stallgeruches behaftet
 
E

Escroda

Am Dienstag ist Besprechung mit dem Verkäufer. Dann wird geklärt, ob der Vorfluter mit gekauft werden kann oder muss oder ob man als Anlieger automatisch Miteigentümer wird und vielleicht auch, ob die Fläche dann zum Baugrundstück hinzugerechnet werden kann, um die Grundflächenzahl zu verbessern, die Erschließung zu sichern und die Abstandsflächen ohne Baulast einzuhalten.
Kurz darauf beschließt der Stadtrat, den Bebauungsplan offen zu legen. Die Offenlage beginnt meistens zwei Wochen später. Nach einem weiteren Monat hat man Planungsrecht nach §33 Baugesetzbuch und kann den Bauantrag stellen. Dann weiß die Stadt aber auch schon, ob Eingaben noch berücksichtigt werden und der Plan noch mal geändert wird. Ist eher selten der Fall. Wenn zwischenzeitlich jemand Höhen auf dem Grundstück gemessen hat oder die gemessenen mal zu Papier gebracht hat, hat man Grundlagen, auf denen man Entscheidungen fällen kann.

Glaskugel:
Der Bebauungsplan wird so rechtskräftig, wie er jetzt ist, d.h. Erdgeschossfußboden mindestens 80cm über derzeitigem Geländeniveau
Eigentümer des Vorfluters werden automatisch die Anlieger, d.h. kostenlose Baugrundstücksvergrößerung
Stellplatz an Nord-Ost-Grenze ist erlaubt, Zufahrt zwischen den erhaltenswerten Bäumen mittels Durchlassquerung ist auch für Baufahrzeuge möglich
Das Gelände zur Straße und für den Stellplatz wird 80cm mit dem Kelleraushub (170cm) aufgefüllt
Der Erdgeschossfußboden wird zusätzlich um drei Stufen = 51cm angehoben
Zur Gartenseite erhält man geländegleiche normale Fenster (1000mm*1000mm) für Büro und Gästezimmer
Die Terrasse wird aufgeständert mit kleiner Treppe (1,50cm) zum Garten

P.S.: @goalkeeper hat sich bei schlechteren Grundstücksverhältnissen (1,50m Auffüllung, noch kleineres Grundstück, keine weiße Wanne notwendig) aus Kostengründen gegen den Keller entschieden.
 
D

DannSke

Hallo zusammen,

ich habe mich jetzt auch einmal angemeldet. Wie der Name sicher verrät bin ich die bessere Hälfte
Erst einmal vielen Dank für eure konstruktive Kritik, die vielen Anregungen und die viele Mühe! Ich habe das Ganze so gut ich konnte verfolgt und finde nach über 2 terminreichen Wochen nun endlich die Zeit mich dazu zu gesellen.

Bevor es an die weiteren Erkenntnisse geht, einmal vorweg kurz meine Meinung zu ein paar angesprochenen Themen.

* Das viel diskutierte Arbeitszimmer * - ich saß beruflich bisher:
- direkt vor einer weißen Wand --> war am schlimmsten, davon bekommt man Kopfschmerzen
- seitlich eines kleinen Fensters, in den Raum (6er Büro) hineinschauend --> war bisher am besten
- aktuell mit einem Arbeitsplatz Abstand aus dem Fenster schauend (mit viel Sonneneinfall)--> geht so, blendet sehr, das Rollo wird immer heruntergelassen.
Meine Erfahrung mit dem Arbeitsplatz bzgl. der Augen ist, neben regelmäßigen Pausen mit schauen in die Ferne, besser etwas dunkler, dafür Monitor-Helligkeit und Blauanteil runter, das schont die Augen ungemein.

* Gäste schlafen im Keller *
Damit haben die keine Probleme, weder alt noch Jung, Freunde oder Familie.

* Vorschlag von @kaho674 *
Ich finde den Vorschlag mit der Ergänzung zum Dach von @ypg gut, also Verlängerung des Dachs oder versetztes Pult. Ich würde den Dachüberstand noch etwas größer machen, damit es nicht so turmmäßig aussieht Was mir Sorgen machen würde, wäre der Technik-Raum im Dach. Zum einen wegen der Last, sollte man noch Pufferspeicher, etc. wegen einer solaranlage ergänzen und zum anderen, wenn da mal irgendetwas undicht wird, gehts durch alle Etagen.

Wir hatten jetzt für die Variante mit Keller eine Überlegung mit kleinem Erker, so ähnlich hat der BU das unabhängig von uns auch geplant - das hänge ich noch mit an.
Ansonsten wären die Varianten ohne Keller entweder so in der Art wie das Lichthaus 152 von Town & Country mit ausgebautem Dachboden, Gäste im Dach und Zugang dazu über Arbeitszimmer oder eben so ähnlich wie der Vorschlag von @kaho674. Ich kann mir aber auch den Vorschlag vom BU mit dem Keller etwas abgewandelt als DG vorstellen.

Meine Frage wäre noch, ob es unbedingt immer 2 Vollgeschosse für eine Treppe ins DG sein müssten oder ob ein hoher Kniestock mit Gaube auch ginge?

Und nun zu den Fakten:
- Das Bodengutachten ist noch nicht fertig.
- Wir haben jetzt den Bebauungsplan, der gebilligt wurde uns nun ausgelegt wird. (Der vorläufige hatte ja schon die frühe Bürgerbeteiligung durchlaufen). Ich hänge einen Screenshot unten an.
Kurze Zusammenfassung der wichtigen Dinge:
- Das Grundstück/ der Streifen welcher zwischen uns und der Straße liegt und einen kleinen Graben hat gehört der Gemeinde, das soll auch so bleiben. Eine Funktion als wirklicher Graben ist nicht bekannt, kann laut Erschließungsträger zugeschüttet werden.
- Es bleibt dabei, dass die Baugrenze straßenseitig ab 5m von der Straße beginnt (also keine 3m von Grundstücksgrenze einzuhalten).
- Die mittlere Höhe des Baugrundstücks muss mindestens Niveau Straße haben (derzeit 60-80cm darunter), maximal 60cm darüber.
- Eine Auffahrt mit Max. 5m Breite, Max. 2 Stellplätze.
- Die eingezeichneten Obstbäume (welche eh tot sind) können durch Neubepflanzung ersetzt werden, sofern abgestorben (somit könnten wir die 5m Breit Zufahrt sicherlich ausnutzen, falls notwendig).
- Traufhöhe 7,5m bleibt, Max. 38 Grad Dachneigung bleibt.
- Garten- und gerätehäuser mit zulässiger Grundfläche von Max. 10m² sind außerhalb der zu überbauenden Fläche erlaubt.
- Vermessen ist das Grundstück immer noch nicht. Soll in Auftrag gegeben werden, wenn wir den Kaufvertrag unterschreiben (werden wir aber vor endgültiger Vermessung nicht tun). Unsere neuen Nachbarn haben das aber schon gemacht, also muss es laut meiner Auffassung eigentlich schon vermessen sein. Die planen 2 Vollgeschosse mit Südwest Terrasse zur Straße hin, Stellplätze an unserer Grundstücksgrenze, Haus so weit wie möglich in der nordöstlichen Ecke.
- Die Nachbarn haben eine Seite der Eltern im Ort wohnen, der Mann ist dort aufgewachsen. Sie meinten er ist auf dem Grundstück damals Schlittschuh im Winter gefahren, weil sich eine dünne Eisschicht durch das stehende Wasser gebildet hat :/
- Das und die Aussage eines anderen Ortsansässigen lassen uns sehr ernsthaft über ein Haus ohne Keller nachdenken.

Ich freue mich auf die weitere Diskussion!

Viele Grüße

Zweispaltiger Plan mit Festsetzungen nach §9 BauGB zu Nutzung und Bauweise.


Seitenbild: Gesetzestext zu Anpflanzungen von Bäumen/Sträuchern mit Artenliste.


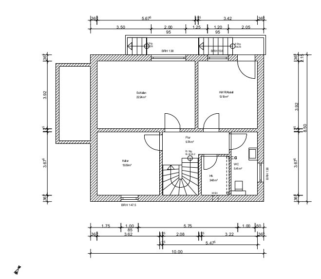
Technischer Grundriss eines Hauses mit Schlafraum, Flur, Küche, WC, Heizungsraum und Treppenhaus.


Grundriss eines Hauses mit Wohnzimmer, Essbereich, Küche, Diele, Schlafzimmer, Terrasse und Treppe.


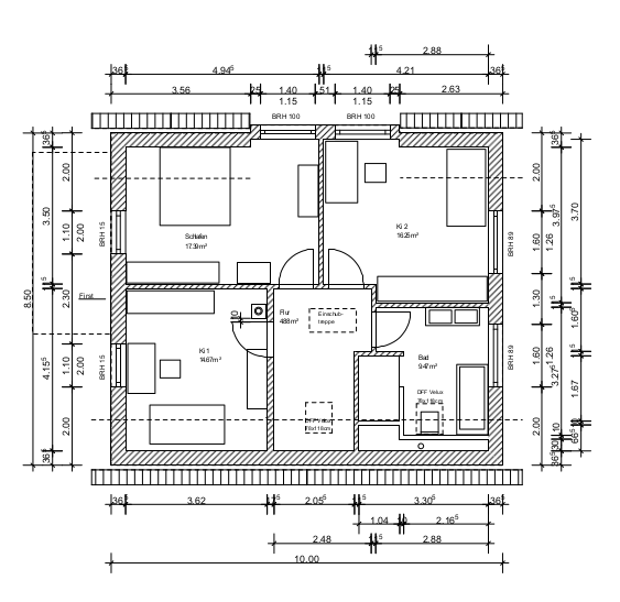
Grundriss eines Hauses mit Schlafen, Ki 1, Ki 2, Bad und Flur.


Vier Ansichten eines zweistöckigen Einfamilienhauses mit Garten und Auto


Vier Perspektiven desselben Hauses mit Garten, Terrasse und Auto in einer Collage.
 
Zuletzt aktualisiert 21.11.2025
Im Forum Grundrissplanung / Grundstücksplanung gibt es 2535 Themen mit insgesamt 87982 Beiträgen


Ähnliche Themen zu Grundrissoptimierung Einfamilienhaus mit Keller auf kleinem Grundstück
Nr.ErgebnisBeiträge
1Franchisenehmer von Town & Country Karlsruhe Erfahrungen? - Seite 211
2Erfahrung mit der Matthias Wand Massivhaus GmbH (Town & Country)? - Seite 796
3Town & Country Franchise Partner Wolfgang Rieche - Seite 226
4Town & Country Erfahrungen, Erfahrungsberichte 36
5Reaktion Town & Country normal? - Seite 426
6Optimierung Winkelbungalow 108 von Town & Country 21
7Hausbau Town & Country Stadtvilla 152 Kostenplanung 41
8Town & Country Raumwunder 100 mit wenig Änderungen - Seite 320
9Town & Country Preise billig oder preiswert? 85
10MHW Haas Wohnbau GmbH, Town & Country - Seite 845
11Town & Country Außenwand bei Energieeinsparverordnung 2016 Haus ausreichend? - Seite 633
12Town & Country Flair 110 - Extras oder nicht? - Seite 6564
13Außenwand Town & Country Häuser 11
14Einfamilienhaus (2Etagen+Wohn-Keller+ausgebautes Dach) etwa 200qm -Änderungen - Seite 13162
15Erstes Angebot, 157m2 mit Keller, KFW 70, Garage - Seite 214
16Town & Country Bocholt Erfahrungen von Forum 13
17Town & Country Haus in Heilbronn 11
18Town & Country, IBG-Haus, Die Baupartner 24
19Town & Country in WDR-Fernsehen Beitrag 15
20Erfahrungen mit Town & Country in Köln 11

Oben