Grundrissideen Einfamilienhaus 140 m2

4,40 Stern(e) 5 Votes
Zuletzt aktualisiert 21.11.2025
Sie befinden sich auf der Seite 2 der Diskussion zum Thema: Grundrissideen Einfamilienhaus 140 m2
>> Zum 1. Beitrag <<

W

Wastl

Male mal ne Treppe rein, wie sie rein soll, mit der richtigen Breite. Da wirst du in der Haustüre landen? Wie tief ist das Gäste-WC? Klo und Dusche + Waschbecken in 3qm? Eine Dusche hat 0,9 x 0,9 Meter. Wie viel Platz ist für das Klo dann noch?
 
Jaydee

Jaydee

Außerdem gibt es hier im Forum ein Mitglied, die auch mehrere Schlafzimmer planen musste, als vorgegeben. Es wird zwar in Bayern gebaut, aber von einem bundesweiten Hersteller... auch nicht so teuer (unter 200000) - entweder sie meldet sich hier selbst oder ich stell mal den Kontakt per PN her, wenn gewünscht.
Da ist sie

Wir brauchten auch drei Kinderzimmer und unsere Überlegung war, ob wir im EG ein Zimmer noch rein Bauen und Küche / Wohn-Essbereich kleiner gestalten oder das OG etwas "minimierter" gestalten. Wie groß müssen Kinderzimmer sein? Wenn die Kinder kleiner sind, spielen sie eh unten bei den Eltern, wenn sie größer sind, sind sie meist draußen unterwegs und wenn es Teenies sind, reicht eigentlich ein Bett zum chillen . Also haben wir es oben ein bisschen kleiner gehalten und dafür im EG einen schönen großzügigen Bereich erhalten:

grundriss-haus-terrasse-wohnzimmer-kueche-bad-diele.jpg

grundrissplanung-hausbau-2d-grundriss-raumaufteilung.jpg

Wir haben einen Kniestock von 1,80 m (Robaumaß!). Unsere Außenmaße sind 8,84 * 10,64.

Die Zimmer sind ausreichend, aber mit Sicherheit keine Ballsäle. Ein zusätzliches Zimmer im EG hätten wir da machen können, wo jetzt die Küche ist. Dann wäre mir der Bereich aber zu klein geworden und alles sehr gedrängt gewesen. Für gelegentlichen Besuch wäre es mir das nicht wert.

Unser Hauspreis lag tatsächlich bei knapp 200.000,- €, allerdings haben wir bereits 2012 unterschrieben. 2013 wäre es mit Sicherheit teurer geworden und seit 2014 haben die Preise noch mal angezogen, so dass die Preise von Bauexperte hier gut hinkommen.

Mein Baublog ist hier im Forum auch verlinkt, falls Du mal lesen möchtest

Grundriss eines Hauses: Terrasse oben, offenes Wohnen/Essen mit Esstisch und Sofa, Küche links.


Grundriss eines Einfamilienhauses mit 3 Schlafzimmern, Bad/WC, Galerie, Treppe.
 
K

Kazazi

Hallo & danke noch mal an alle

@ Jaydee - schöner Grundriss! Das mit dem höheren Kniestock hatten wir auch überlegt und werden uns heute Nachmittag auf jeden Fall erkundigen, wie hoch er werden darf und welche Kosten das mit sich bringt. Meine Sorge ist aber, das wir mit einem sehr hohen Kniestock *und* einem ausbaufähigem Dach entweder finanziell oder von den erlaubten Maßen her nicht hinkommen werden, und dann werden wir uns wohl entscheiden müssen zwischen einem ähnlichen Grundriss wie ihr mit noch kleineren Zimmern oder doch einem Extrazimmer unten.

Wie macht ihr es wenn ihr Gäste habt? Und, nachdem die Wichtigkeit einer gut funktionierenden Diele insbesondere bei größeren Familien schon mehrmals angesprochen wurde, wie kommt ihr mit eurer klar, die ja rein von dem qm relativ klein ist? Und wollt ihr später noch den Spitzboden ausbauen oder ist euer Dach wegen dem hohen Kniestock jetzt eh so flach, dass das gar nicht mehr Sinn machen würde?

@ Wastl - Du hast Recht, die Treppe funktionierte so noch nicht. Wir haben da noch mal nachgebessert. Was das Duschbad unten angeht, habe ich aber schon einige in der Größe und Aufteilung zumindest auf dem Papier gesehen und eins auch in einem Musterhaus, wo ich es ok fand - jedenfalls, wenn die Dusche bodentief ist. Hat jemand konkrete schlechte Erfahrungen mit so einem kleinen Duschbad unten gemacht?

Herzliche Grüße,

Kazazi
 
Jaydee

Jaydee

Viele Fragen ...

Wie macht ihr es wenn ihr Gäste habt?
Nun, wir haben 3 Teilzeit-Kinder hier. Somit sind zwei Ki-Zimmer auch nur teilweise belegt. Besuch von meinen Eltern oder meiner Schwester bekommen wir dann, wenn die Kinder nicht da sind bzw. zumindest ein Zimmer nicht belegt ist. Ansonsten kann man auch mal zusammen rücken. Dann schlafen halt zeitweise 3 Kinder in einem Zimmer. Macht man ja im Urlaub auch.

Und, nachdem die Wichtigkeit einer gut funktionierenden Diele insbesondere bei größeren Familien schon mehrmals angesprochen wurde, wie kommt ihr mit eurer klar, die ja rein von dem qm relativ klein ist?
Das wird - bei uns - passen. Wir haben ja nur einen Dauer-Bewohner bei uns, sind also die meiste Zeit zu dritt. Die anderen "Kinder" sind auch schon groß (12, 14 und 17), so dass die schon recht gesittet sind (und nicht mehr tausend Paar Schuhe, Gummistiefel, Jacken, Mützen etc. haben).

Und wollt ihr später noch den Spitzboden ausbauen oder ist euer Dach wegen dem hohen Kniestock jetzt eh so flach, dass das gar nicht mehr Sinn machen würde?
Nein, wir bauen nichts mehr aus. Wir haben einen Spitzboden von 1,20 m Höhe.

Unsere Situation ist mit Eurer nur bedingt vergleichbar. Yvonne (ypg) hatte ja auch nur davon gesprochen, dass wir auch drei Ki-Zimmer oben haben und das durchaus möglich ist.
 
K

Kazazi

Alles klar, so macht das Sinn. Mit unseren derzeit 8-, 7- und 2-jährigen Dauerdreckschleudern und meinem Waldkindergärtnermann brauchen wir dann wohl erst mal noch eine größere Diele

OK - ich melde mich wieder wenn unsere Ideen nach dem heutigen Gespräch weiter gediehen sind.

Vielen Dank noch mal an alle!
 
K

Kazazi

Hallo ihr Lieben,

es gibt Neuigkeiten .

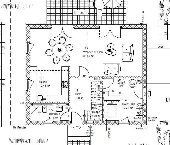
Nachdem wir Dienstag vergangene Woche ja unser Gespräch mit dem Architekten hatten, haben wir heute endlich den ersten Entwurf bekommen. Den habe ich hier angehängt und würde mich sehr über eure Meinungen dazu freuen, damit wir möglichst fix ein fundiertes Feedback zurückmelden können.

Unsere Entscheidung war letztlich auf die Variante Drei Zimmer plus Bad oben und ein viertes Zimmer unten gefallen, plus Vorbereitung des Spitzbodenausbaus für die evtl. spätere Nutzung als 6. Zimmer für Arbeit/Gäste. Bis dahin soll eine Arbeitsecke ins Schlafzimmer (damit haben wir gute Erfahrungen gemacht) und ein Kind ins EG.

An dem jetzt vorgelegten Entwurf sind mir schon ein paar Sachen aufgefallen, die wir eigentlich gerne ein bisschen anders hätten und auch teilweise schon so mit dem Architekt besprochen hatten, aber die haben es wohl nicht alle aufs Papier geschafft...

Mich interessiert sowohl euer Feedback zum Entwurf selbst als auch zu unseren Änderungswünschen, gerne auch dazu, ob und wo ihr an irgendeiner Stelle noch größere Geldgräber seht, wo wir vielleicht mit einer kleinen Änderung deutlich günstiger fahren könnten

Wie immer ganz vielen Dank im Voraus an euch!


Grundriss einer Wohnung mit Diele, Zimmer 1, Wohnen/Essen, Küche, HWR, WC und Terrasse.

Grundriss eines oberen Stockwerks mit Bad, Galerie und Zimmer 2–4.

Lageplan: Teilgrundstück 8, ca. 575 m²; rotes Gebäude mit Terrasse und Grünfläche.


Unsere Änderungswünsche bislang:

1) Im Erdgeschoss sollte eigentlich kein 3. Giebel hin sondern dieser nur im DG (quasi als Gaube) sein, also so wie z.B. beim Town & Country Flair 134 oder Mare Lotse 121. Ich finde den Giebel im EG zwar schön, denke aber er wird im Vergleich zu einem nur DG Giebel deutlich teuer? Ansonsten gilt: Falls auch die Dachgaube uns zu teuer wird, würden wir die Streichen und hoffen, dass der Grundriss auch ohne sie gut funktioniert - hat da irgendjemand Bedenken?

2) Die Tür zum WZ sollte eigentlich etwas weiter östlich und/oder schmaler sein damit wir in der Südost-Ecke der Diele Garderobenplatz haben - müssen wir dann wohl auf die Doppeltür verzichten, weil das sonst die Symmetrie mit der Gartentür versaut, oder seht ihr das (gerade falls der Giebel wegkommt) eher unproblematisch, bzw. wie könnte das am besten funktionieren?

3) Die Südwestecke des Wohnzimmers sollte eigentlich mehr wie eine Glasecke wirken. Wir hatten uns das nach dem Gespräch so vorgestellt, dass da zwei Türen/bodentiefe Fenster übers Eck kommen, mit nur einem bisschen Wand dazwischen, so ähnlich gesehen z.B. beim Alto SD 200 oder Calvus SD 200 von Heinz von Heiden. Dafür könnte dann das Westfenster einfach nach rechts rutschen und die beiden Ecken bodentief bzw. zu Türen werden, gell? Oder hat jemand noch eine bessere oder kostengünstigere Idee?

4) Die Terrasse würden wir dann vielleicht auch eher um die Südwestecke herum legen... aber das ist wahrscheinlich für den Grundriss jetzt erst mal egal, oder?

5) Zimmer 1 sollte auch eine Gartentür (statt Fenster) bekommen.

6) Die Spitzbodenfenster fehlen, ebenso glaube ich bräuchten wir hier noch einen Querschnitt und/oder Grundriss, um die SB-Dimension besser nachvollziehen zu können, oder?

7) Im EG-WC soll in der Nordost-Ecke eine bodengleiche Dusche sein - das ist vielleicht auch schon so eingetragen und ich "lese" es nur nicht richtig...

8) Eine Frage noch zur Treppe - die haben wir uns erst mal so wie gezeichnet als geschlossene gewünscht, um damit Abstellfläche etc. im Hauswirtschaftsraum zu gewinnen. Alternativ käme eine offene Treppe mit Garderoben oder Stauplatz darunter in Frage. Gibt es Meinungen dazu, was praktischer/schöner/günstiger wäre?

Herzliche Grüße,

Kazazi

Westansicht eines weißen Einfamilienhauses mit dunkelgrauem Satteldach, Fenstern und Baum links.


Ansicht Nord: Kleines weißes Haus mit dunklem Ziegeldach, Tür mit Glasfenster und Bäumen seitlich.
 
Zuletzt aktualisiert 21.11.2025
Im Forum Grundrissplanung / Grundstücksplanung gibt es 2535 Themen mit insgesamt 87982 Beiträgen


Ähnliche Themen zu Grundrissideen Einfamilienhaus 140 m2
Nr.ErgebnisBeiträge
1Bungalow 128 Town & Country nach Musterhaus 60
2Town & Country Raumwunder 100 mit wenig Änderungen 20
3Optimierung Winkelbungalow 108 von Town & Country - Seite 421
4Hausbau 2.0 - erster Grundriss-Entwurf 155
5Entwurf Grundriss Bungalow Meinungen 22
6Grundriss 150 m²-Hauses optimieren - Tipps - Seite 242
7Bungalow Grundriss ~16x9.5m ( außen ) in 1000m² mit Altbestand 102
8Grundriss Einfamilienhaus - Eure Einschätzung - Seite 220
9Grundriss-Planung Einfamilienhaus für 4 Personen auf 390qm Grundstück 57
10MHW Haas Wohnbau GmbH, Town & Country - Seite 245
11Town & Country Außenwand bei Energieeinsparverordnung 2016 Haus ausreichend? - Seite 333
12Town & Country Flair Grunrissänderungen 24
13Bauen mit Town & Country in Zirndorf - Seite 965
14Town & Country Flair 110 - Extras oder nicht? - Seite 3564
15Town & Country Berlin Kosten Sonderwünsche 17
16Übersicht Sonderausstattungen bei Town & Country - Seite 220
17Grundriss Einfamilienhaus ohne Keller, 3 Kinderzimmer und Büro 18
18Einfamilienhaus-Grundriss Entwurf - Seite 223
19Grundriss-Entwurf Stadtvilla mit Doppelgarage - Seite 238
20Bitte schaut kritisch über unseren Grundriss-Entwurf 13

Oben