Grundrissideen Einfamilienhaus 140 m2

4,40 Stern(e) 5 Votes
Zuletzt aktualisiert 06.10.2025
Sie befinden sich auf der Seite 12 der Diskussion zum Thema: Grundrissideen Einfamilienhaus 140 m2
>> Zum 1. Beitrag <<

W

wadenkneifer

Hallo,
möchte nur kurz folgende Anregungen mit auf den Weg geben:
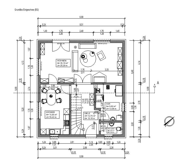
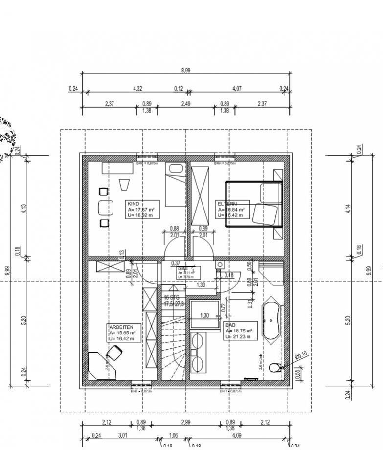
- Zimmer 2 und 4 im OG funktionieren so aus meiner Sicht nicht. Zimmer 4 fängt mit einem (dunklen, wenn kein Dachflächenfenster geplant ist) Schlauch an. Ich stell mir gerade vor, dass ich mich mit meinem knapp 2 m da zwischen Schrank und Dachschräge durchquetschen soll. Da krieg ich Platzangst. Wenn das Bett unter der Schräge an der Tür steht (Einzelbett vorausgesetzt) und der Schrank dorthin, wo das Bett steht, könnte der Raum halbwegs funktionieren. Mein Geschmack ist es trotzdem nicht. Zimmer 2 hat eine tote Ecke. Man könnte auch hier das Bett in die Ecke stellen, wo der Schrank ist. Funktioniert aber auch nur mit einem Einzelbett. Schön finde ich diese Aufteilung nicht.
- Wohn-Ess-Küche: Ein Riesen Raum mit kaum Staufläche. Keinerlei Schränke außer Küche und beim Fernseher (sehe so auch keinen Platz für weitere Schränke). Fernseher direkt neben dem Kamin würde ich mir gut überlegen. Wenn der Kamin an ist und man fernsehen möchte würde mich das sehr stören.
- Hauswirtschaftsraum: Könnte man evtl. vergrößern, wenn man die Wand zur Küche begradigt, die Küchenmöbel also in den Raum stellt und auf den "Einbau" der Küche verzichtet.

Viele Grüße

Michael
 
K

Kazazi

Vielen Dank für eure Rückmeldungen.

Die "toten" Ecken in den Zimmern gefallen uns auch noch nicht. Teilweise sollten die gar nicht da sein, weil da im OG ein Zwerchgiebl eigentlich hin soll, teilweise finde ich (bei Zimmer 1 und 4) sie verschwenden eigentlich nur Platz, den man im Flur sinnvoller nutzen könnte, für extra Staufläche, Flurfenster im OG...? Auch diverse Fenster/Türen im EG wollen wir noch anders. Und ihr habt recht, Küche und Hauswirtschaftsraum gehen so auch noch nicht...

Der Spitzboden erscheint mir außerdem extrem beengt, mit weniger als einem Meter über 2m hoch? Oder seht ihr das anders? Und sehe ich es richtig, dass wir diesem Problem - wenn es denn eines ist, nur entweder mit einem nur leicht breiteren Haus (was auch einige andere Probleme mindern könnte) oder einer steileren Dachneigung (derzeit 45 Grad bei 1.10 Kniestock) beikommen können?

Ich habe die Architekten jetzt um ein weiteres persönliches Gespräch gebeten, da uns das hin und her per Email als wenig optimal erscheint, um den Grundriss rund zu bekommen. Ich hoffe, das klappt in den nächsten Tagen. Weitere Anregungen, die ihr bis dahin noch haben mögt, nehmen wir wie immer sehr dankbar entgegen.

Herzliche Grüße,

Kazazi
 
Zuletzt bearbeitet:
M

Michalko

sehe ich richtig, dass das 9x10m Außenmaß sind?
Wenn ja, kann ich dir gerne mal unseren Grundriss geben, Anzahl der Zimmer ist identisch.
 
Y

ypg

Zu den oberen Zimmer:
ich finde die Raumaufteilung auf den ersten Blick etwas gewöhnungsbedürftig, dennoch hat er auch Potential.
Zimmer 4 für Elternschlafzimmer: ggü der Tür könnte man einen Einbauschrank in die Schräge von 3 Meter Breite (oder so) bauen.
Schwörerhaus hat das im Musterhaus in Helmstorf hervorragend auf der Galerie gelöst. mal googeln und schauen! Somit ergibt sich eine Art Ankleidegang zum Schlafgemach, dass sehr gemütlich wirkt (wenn man mal das Hirn auf 3D schwenkt )
Zimmer 2 hat hinter der Tür anscheinend genug Fläche für Schrank. Die hinteren Nische ist ein Paradies für Kinder, die sich hier ein Bett oder Spielwiese bauen können. Gegen diese beiden wirkt das Zimmer 3 fast langweilig

Dennoch gefällt mir das EG auch nicht. Also wohl zurück auf los
 
Zuletzt aktualisiert 06.10.2025
Im Forum Grundrissplanung / Grundstücksplanung gibt es 2510 Themen mit insgesamt 87167 Beiträgen


Ähnliche Themen zu Grundrissideen Einfamilienhaus 140 m2
Nr.ErgebnisBeiträge
1Varianten zur Möblierung des Allraums - Seite 24184
2Speisekammer vs. größere Küche vs. Hauswirtschaftsraum 13
3Geschlossene Küche planen mit Durchgang zum Hauswirtschaftsraum - Seite 318
4Schrank für Hauswirtschaftsraum 21
5Suche passende Schränke für unseren Hauswirtschaftsraum 34
6 2 Vollgeschosse, Durchgang Garage, Hauswirtschaftsraum unter Treppe 25
7Wohnzimmer: Wie Sofa, TV und Schränke stellen? 32
8Ikea Metod Küche Wandschienenproblem, Anleitung erwünscht 11
9Planungsbeginn neue Küche - Seite 222
10Nach Umzug: Vermurkste IKEA-Küche in der Wohnung 14
11Schuhe an der Terrasse; wohin damit? Wäre ein Schrank die Lösung? - Seite 228
12Zugang von der Garage in den Hauswirtschaftsraum - Seite 549
13Ikea Pax Hauswirtschaftsraum/Waschküche System? - Was habt ihr? 64
14Erstentwurf Nolte Küche - Meinungen und Verbesserungsvorschläge - Seite 430
15Unterste Schubladen beim Ikea Pax Schrank einbauen - Seite 314
16Reicht der Hauswirtschaftsraum auch als Abstellkammer aus? - Seite 422
17Fitness-Ecke im Hauswirtschaftsraum? 27
18Aufteilung?! Kleines Zimmer / starke Schräge / Heizkörper - Seite 361
19Kontrollierte-Wohnraumlüftung + Kamin + Abluft für Küche, funktioniert das? - Seite 956
20Grundrissplanung Stadthaus 150qm mit Satteldach 6 Zimmer - Seite 19150

Oben