Grundrissideen Einfamilienhaus 140 m2

4,40 Stern(e) 5 Votes
Zuletzt aktualisiert 22.12.2025
Sie befinden sich auf der Seite 11 der Diskussion zum Thema: Grundrissideen Einfamilienhaus 140 m2
>> Zum 1. Beitrag <<

K

Kazazi

Vielen Dank für die Anregungen! Ich melde mich wieder, sobald es Neues gibt.

Herzliche Grüße und einen schönen Samstagabend euch,

Kazazi
 
K

Kazazi

Hallo ihr Lieben,

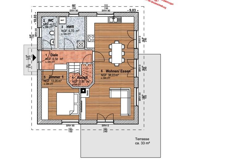
soeben kamen die neuesten Pläne, diesesmal mit der gewünschten U-Treppe. Was meint ihr? So ganz überzeugt es mich noch nicht, komme aber erst später heute zur weiteren Analyse und freue mich über eure Rückmeldungen und Verbesserungsvorschläge.

Herzliche Grüße,

Kazazi


Grundriss einer Wohnung: Wohnen/Essen, Küche, Schlafzimmer, Diele, Bad, Abstellraum, Terrasse.



Dachgeschoss-Grundriss mit Galerie im Zentrum, Bad und Zimmer 2–4, Treppenaufgang.



Spitzboden-Grundriss mit langem Holzboden, zentraler Spiraltreppenaufgang, seitliche Dachflächen.
 
B

bau-bau

Nur kurz:

Ihr habt oben nun schöne große Zimmer, aber es fehlen immer noch Abstellräume.
Wenn ihr in Flur und unter der Treppe Jacken und Schuhe sammelt, dann bleibt weiterhin nur der Hauswirtschaftsraum, der inkl. Technikspielzeug viel zu klein ist.

Ggf. mal prüfen, ob man das OG anders gestaltet, damit dort noch ein Abstellraum hin kann.
Ggf. bei Zimmer 2 und 3, da wo Zimmer 2 seine Nische hat.

Kamin durch den Schrank in Zimmer 3 ist lustig
Bei dieser Treppe kann man den Schornstein übrigens gut in die Ecke der Treppe integrieren.

Ich bleibe dabei: Bei 5 Personen und so wenig Abstellräumen braucht ihr eine U-Küche, damit ihr da aufbewahren kann.
Nachteil: Mehr Küchenmöbeln kosten mehr Geld, logisch.
 
Kisska86

Kisska86

Ich finde die U-Treppe eine bessere Lösung. Die Räume sind alle schön groß und geräumig! Was ant ihr denn für eine Heizung? Plant die doch in diesem Fall in den Spitzboden ein, dann ist der Hauswirtschaftsraum auch ausreihend wie ich finde. Mit der Heizungsanlage tatsächlich etwas klein. Und die Küche würde ich benfalls in U-Form planen. Dafür müsste das Fenster dann aber nicht bodentief, sondern auf Arbeisplattenhöhe.
 
M

Michalko

Nur so am Rande...
hast du auch auf die Außenansicht des Hauses geschaut? nicht das die Anordnung der Fenster/Türen am Ende blöd aussieht. Mir kommt es so vor als ob zunehmend die Außenansicht der Häuser vergessen wird bei der Planung.
 
Zuletzt aktualisiert 22.12.2025
Im Forum Grundrissplanung / Grundstücksplanung gibt es 2554 Themen mit insgesamt 88554 Beiträgen


Ähnliche Themen zu Grundrissideen Einfamilienhaus 140 m2
Nr.ErgebnisBeiträge
1Grundrissfrage, Treppe, Fenster, Ausrichtung 12
2 2 Vollgeschosse, Durchgang Garage, Hauswirtschaftsraum unter Treppe 25
3 Küchenplanung mit tiefen Fenster 43
4OG Stadtville optimieren. Fenster Bodentief - Seite 13104
5Kleinstmögliches Fenster für Lüftung Hauswirtschaftsraum 22
6Hauswirtschaftsraum Raum ohne Fenster - Lüftungsanlage ausreichend? 26
7Speisekammer vs. größere Küche vs. Hauswirtschaftsraum 13
8Geschlossene Küche planen mit Durchgang zum Hauswirtschaftsraum - Seite 318
9Grundrissfrage, Garage, Treppe - Seite 533
10Grundriss Stadtvilla / Anordnung Fenster, Feedback erwünscht - Seite 216
11Grobe Schnitzer im Grundriss? Küche zu klein? - Seite 639
12REH - Grundrissplanung - Küche zu klein - Seite 430
13Grundriss 170m2 - Hauswirtschaftsraum zu klein? Verbesserungsvorschläge? - Seite 342
14Minimale Grundfläche - Hauswirtschaftsraum und AZ im EG - Ohne Keller 19
15Reicht der Hauswirtschaftsraum auch als Abstellkammer aus? - Seite 422
16Grundrissplanung Stadthaus 150qm mit Satteldach 6 Zimmer - Seite 19150
17Bungalow 135qm: Grundriss + Fenster - Seite 7104
18Müllentsorgung in der Küche / Wanddurchbruch - Seite 542
19Erstentwurf Nolte Küche - Meinungen und Verbesserungsvorschläge - Seite 430
20Dusche direkt am Fenster - kompatibel oder inkompatibel? - Seite 322

Oben