Grundrissentwurf für 220m² Einfamilienhaus

4,40 Stern(e) 7 Votes
Zuletzt aktualisiert 19.11.2025
Sie befinden sich auf der Seite 80 der Diskussion zum Thema: Grundrissentwurf für 220m² Einfamilienhaus
>> Zum 1. Beitrag <<

R

R.Hotzenplotz

Die Frage ist halt, braucht es diese zwei bodentiefen Fenster? Ich sehe da wenig Sinn drin. Der Flur hat durch die großzügige verglaste Haustüranlage denke ich genug Licht. Da braucht man womöglich nicht mal ein 76 hohes Fenster einzuplanen. Und im Bad ist es auf keinen Fall ein Problem.... sieht auf der Visualisierung des Innenraums schon witzig aus, die Toilette direkt neben dem bodentiefen Fenster.... und im Flur der Garderobenständer vor dem anderen bodentiefen Fenster....
 
11ant

11ant

Der Flur hat durch die großzügige verglaste Haustüranlage denke ich genug Licht. Da braucht man womöglich nicht mal ein 76 hohes Fenster einzuplanen.
Belichtungsnotwendig ist es da nicht, aber optisch muß man einen der beiden Tode sterben: es hinkt von außen oder von innen. Wirf´ eine Münze, ob das Garderobenfenster sein muß. Bzw. laß´ die Neuplanung der straßenseitigen OG-Fensterfront dabei mitreden.
 
Y

ypg

Die Frage ist halt, braucht es diese zwei bodentiefen Fenster? Ich sehe da wenig Sinn drin.....
Merkwürdige Frage: man braucht vieles nicht, was Du planst

Insofern spielt die Optik eine große Rolle.

Ich finde sie übrigens gut und ok. Ich kenne ein WC mit einem Bodenfenster. Hat mich nicht gestört, weil: sind eh Plissees dran gewesen, wie auch sonst gern ge- und verplant.
 
R

R.Hotzenplotz

Ich finde sie übrigens gut und ok. Ich kenne ein WC mit einem Bodenfenster. Hat mich nicht gestört, weil: sind eh Plissees dran gewesen, wie auch sonst gern ge- und verplant.
Es erscheint mir noch sehr ungewohnt, ein bodentiefes Fenster nach dem Toilettengang zu kippen. Kommt mir irgendwie auch nicht sicher vor.
 
R

R.Hotzenplotz

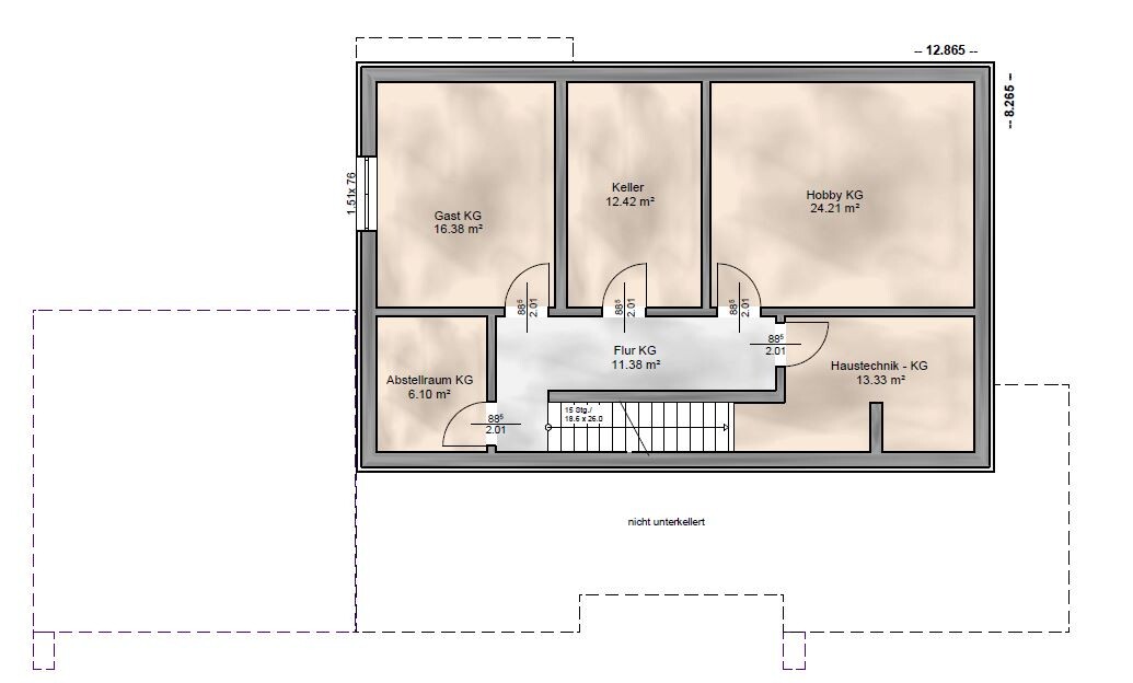
Das Einzige wirklich relevante für den Bauantrag, was wir bis Montag noch entscheiden müssen, ist die Frage, ob der aktuelle Teilkeller bleibt oder ob ein kleinerer Teilkeller zum Einsatz kommt. Siehe Anlagen.

Das würde € 23.500 sparen und unser Budget für Sanitär, Elektro, Außenanlagen, Küche, etc. noch etwas aufpeppen. Dafür stehen nach aktueller Lage noch € 100.000 zur Verfügung (wobei die Elektrik bereits jetzt in den Zahlen mit € 36.000 budgetiert ist) und es wären dann fast 25% mehr.

Die Frage wäre, ob man in dem kleinen Teilkeller ganz rechts den Ersatz des Hobbyraums für ein kleines Heimkino machen könnte. Oder findet ihr die Fläche dafür schon zu grenzwertig? Haustechnikraum dann dort, wo links das Gästezimmer eingezeichnet ist. Das ist für ein Gästezimmer arg klein und da wir ohnehin nur hin und wieder mal die Schwiegermutter beherbergen, ließe sich das auch oben in den großen Kinderzimmern realisieren. Entweder die Oma schläft bei einem der Kinder oder die Kinder schlafen 2x im Jahr jeweils 2 Wochen in einem Zimmer z. B. - ein viertes Bad im KG hatten wir ohnehin aus Kostengründen nicht mit geplant.

Grundriss Kellergeschoss mit Gast KG, Keller, Hobby KG, Abstellraum KG, Flur KG, Haustechnik KG


Grundriss Kellergeschoss: Gast KG, Flur KG, Keller, Haustechnik/Abstellen.
 
11ant

11ant

Es erscheint mir noch sehr ungewohnt, ein bodentiefes Fenster nach dem Toilettengang zu kippen.
Bodentief wären das hier auch Festverglasungen, da kippt nichts. Da braucht es im WC einen Ventilator.

ob der aktuelle Teilkeller bleibt oder ob ein kleinerer Teilkeller zum Einsatz kommt.
Der große "Teil"Keller bietet so viel Platz wie meist einen Vollkeller erfordern würde. Zwei Heimkinos braucht man nicht. Der Mini-Teilkeller ist unverhältnismäßig teuer, da würde ich lieber die Garage auf 9 m verlängern und den Keller ganz weglassen.

ein viertes Bad im KG hatten wir ohnehin aus Kostengründen nicht mit geplant.
Da könnte allein die Schwarzwasserheberei schon ein eigenes Dukatenbeutelchen leeren. Für den bisherigen Kriechkeller vermute ich ja wie gesagt Gründe - das könnte so einer sein.

Für die Ersparnis Kellerwegfall gegen Garagenverlängerung (und ggf. durch 20° DN mehr Spitzboden) kann man die Oma schon anders unterbringen: wenn sie 2x zwei Wochen im Jahr kommt, werden einmal die Kinder zusammenrücken und für das andere Mal kriegt sie sicher einen guten Tarif in einem nahegelegenen Hotel garni. Schöner als im Minikeller-Verlies unter dem WC (mit Lichtschacht, Abböschung fällt an der Stelle ja aus) ist das in jedem Fall.
 
Zuletzt aktualisiert 19.11.2025
Im Forum Grundrissplanung / Grundstücksplanung gibt es 2536 Themen mit insgesamt 87979 Beiträgen


Ähnliche Themen zu Grundrissentwurf für 220m² Einfamilienhaus
Nr.ErgebnisBeiträge
1Kosten Teilkeller vs. Vollkeller 27
2Grundriss Einfamilienhaus geplant, Fenster gefallen uns 43
3Fenster / Türen / Garderobe 13
4Neubau einer ca. 8x11 Doppelhaushälfte, Einschätzung Grundriss und Fenster - Seite 235
5OG Stadtville optimieren. Fenster Bodentief 104
6Kleinstmögliches Fenster für Lüftung Hauswirtschaftsraum 22
7Fenster Brüstungshöhe 130 im Schlafzimmer / Arbeitszimmer? - Seite 893
8Flur-Grundriss vergrößern REH von 1921: Tipps? - Seite 227
9Müssen Heizkörper im Neubau immer unter die Fenster? 41
10Haus von 1988 sanieren - Fenster und Haustüre? 15
11 Küchenplanung mit tiefen Fenster - Seite 243
12Entwurf Einfamilienhaus mit Garage/Carport - bitte um Bewertung - Seite 222
13Einbruchsichere Fenster? - Seite 233
14Innenraum Gestaltung - Fenster 14
15Aufpreis für farbige Fenster realistisch? - Seite 319
16Gutachter Mängelfeststellung, Feststellung Einbau Fenster 10
17Riesiges Problem mit dem Kondenswasser am Fenster - Seite 334
18Trefz Fenster Preise und Erfahrungen? 14
19Fenster, Vorbaurollladen, Außenputz 10
20Rundes Fenster - unzufrieden mit Innenlaibung 16

Oben