Grundrissentwurf für 220m² Einfamilienhaus

4,40 Stern(e) 7 Votes
Zuletzt aktualisiert 12.01.2026
Sie befinden sich auf der Seite 78 der Diskussion zum Thema: Grundrissentwurf für 220m² Einfamilienhaus
>> Zum 1. Beitrag <<

kaho674

kaho674

Ich würde mir ja mit dem fertigen Entwurf noch 2 Gegenangebote einholen. Das Haus ist zwar groß, aber es sind ja keine 5 Bäder o.ä. Die 800T sehe ich jedenfalls nicht unbedingt. Ihr?
 
R

R.Hotzenplotz

Jetzt sieht der Plan so aus, dass dort die Garderobe liegt, insofern liegt ein direkter Durchgang sehr nahe, auch im Bezug dazu, nicht erst durch die ganze Diele zu latschen, wenn man an sein Zeugs kommen will.
Bei den Hauskosten würde ich die 2000, die die Tür kosten mag (keine Ahnung, ob ich mit dem Preis richtig liege) immer mit einrechnen, eher auf irgendetwas sinnloseres im/am Haus verzichten.
<-> meine Meinung!
Die 2.000 € (incl. vernünftiger Einbruchsicherung lt. GU eher 4.000 €) sind nicht das Problem. Wenn man aber aus der Garderobe / dem Flur nicht auf die Stahltür zur Garage schauen möchte, braucht man zumindest eine kleine Zwischenwand neben dem Garagenzugang. Würde man dagegen auf dieses Konstrukt verzichten, hätte man eine schöne große Garderobe. Das ist der Grundgedanke gewesen.


Nach meiner Meinung wurde aber mittig der Planung ein falscher Weg eingeschlagen, und ich kann mir vorstellen, wenn man noch mal neu auf Start gegangen wäre, ein gleich guter und schöner, wenn auch günstiger Entwurf herausgekommen wäre.
Das kann ich mir auch gut vorstellen. 10m² hätten es irgendwo noch werden können. Vielleicht fehlte der Mut, noch mal von Grund auf neu zu planen. Ich denke aber, dafür ist es nun zu spät. Wir haben einfach keinen Bock mehr, noch mal von vorne anzufangen.


Vielleicht hätte man auch mal den Keller mit in die Diskussion nehmen sollen ?
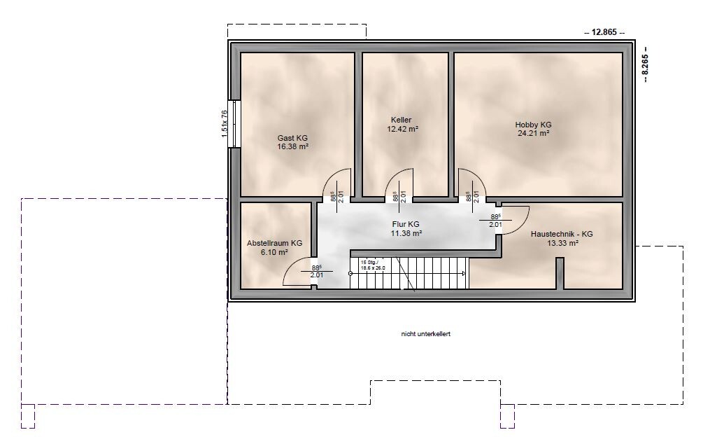
Inwiefern? Der Keller ist das einzige, was noch nicht 100% fix ist. Da wird gerade noch eine Alternative mit noch kleinerem Teilkeller gerechnet (unterhalb der Treppe statt oberhalb der Treppe). Das würde einen Verzicht auf den Hobbyraum und ein nur noch minimalistisches Gästezimmer bedeuten. Wäre nicht das Problem. Ob es kostentechnisch nötig wird, sehen wir dann.


Ich würde mir ja mit dem fertigen Entwurf noch 2 Gegenangebote einholen. Das Haus ist zwar groß, aber es sind ja keine 5 Bäder o.ä. Die 800T sehe ich jedenfalls nicht unbedingt. Ihr?
Da sind wir dran. Warten in drei Fällen seit zwei Tagen auf Rückrufe. Offenbar geht es der Branche so gut, dass sie es gar nicht nötig haben, hier auch bloß ein durchschnittliches Engagement an den Tag zu legen.
 
R

R.Hotzenplotz

ch bilde mir ein, irgendwann wäre da mal ein bodentiefes Fenster auf der Ecke gewesen, aus dem man hätte austreten können.
Ja, das war es auch. Das wurde aber nicht auf unseren Wunsch hin so gezeichnet. Wir hatten den Wunsch eines Eckfensters geäußert und haben dann korrigierend eingegriffen als eine Terrassentür draus wurde....
 
R

R.Hotzenplotz

Wir näheren uns dem Ende der Planungsphase. Heute habe ich folgendes erhalten (siehe Anlagen).

Ich habe auch einen Link für eine 3D Innenvisualisierung. Da man hier keine Links posten kann, würde ich den auf Wunsch per PN schicken.....

In Summe gesehen dürften wir so gut wie am Ziel sein. Folgende Punkte würde ich aber noch besprechen.

KG: ist soweit in Ordnung denke ich

EG:
1) In der Küche gefällt mir der Schacht für die Entwässerung der Dusche überhaupt nicht. Er nimmt einem die Option neben das Eckfenster einen normalen Küchentisch zu stellen. Nur so eine Bar, wo man mit zwei Mann dran sitzen kann, finde ich nicht gut. Die Entwässerung kann man sicher auch anders lösen. Die Möblierung mit den Schränken hatten sie einfach mal so eingezeichnet, das erfolgte nicht auf unseren Wunsch hin.

Ebenfalls war für die Küche eigentlich besprochen, dass zur Straße hin ein nicht so hohes, sondern flacheres, dafür breites Fenster verbaut wird. Das lassen wir vielleicht noch ändern.

2) Ansonsten stören uns im EG nur noch die bodentiefen Fenster im Flur (tw.) - mindestens aber im WC. Klar kann man das satinieren aber irgendwie widerspricht das etwas unserem Behagen, weiß auch nicht. Im letzten Gespräch mit dem Architekten hatten wir allerdings auch mal kleine Fenster visualisiert und das passte echt nicht sehr schön zur Fassade. Vielleicht hat dazu noch einer eine Idee.... gerade das WC Fenster stört uns wie gesagt einfach doch ziemlich stark.

3) Die kleine angedeutete Wand neben dem Garagenzugang kann man auch weg machen, wenn die Tür ordentlich verkleidet ist und man nicht auf eine Metalltür schaut sondern auf etwas, das wohnlich wirkt.


OG:
4) An der Fassadenfront wurde die Fensteraufteilung geändert. Stört mich so weit nicht aber ich habe überlegt, ob das mittige Zimmer des Kinderzimmers notwendig ist. In der Innenvisualisierung sieht das nicht so prickelnd aus und ob es für die Außenoptik notwendig ist, weiß ich nicht. Wir hatten zuvor eine völlig andere Fensteraufteilung und eigentlich auch nicht besprochen, dass hier was geändert wird. Muss ich morgen fragen, warum das erfolgte.

5) Beim linken Kinderzimmer überlegen wir noch, ob das Fenster neben der Garage aufgrund der Einbruchgefahr doch wegfallen soll. Ich denke, es wäre schon ein Sicherheitsgewinn, es wegzulassen. Oder in RC 3 ausstatten bzw. vergittern. Aber ob das Sinn macht? Weiß nicht.

6) Die Bäder müssen wir noch verplanen. Die Möblierung, Ausrichtung von Duschen, WCs etc. sind einfach mal so eingezeichnet worden. Wir wollen das beim Sanitärfachmann ordentlich im Detail verplanen. Bin eigentlich kein Freund von diesen Trennwänden, wo die Waschbecken dran hängen. Gerade im Kinderbad wirkt das etwas eng. Und im Kinderbad wird bestimmt eine Badewanne sinnvoll sein.


Schade, dass keine Maße dran stehen. Hätte gerne gesehen, wie viel Platz in der Ankleide nun von Schrank zu Schrank besteht.

Wir sind soweit zufrieden.

Fällt euch noch was auf? Sonst gebt gerne mal Feedback zu meinen Punkten.

Modernes zweistöckiges, weißes Haus mit grauer Front, geparktes Auto und Frau mit Kinderwagen.


Moderne weiße, zweistöckige Villa mit grauer Basis, Garten, Zaun und geparktem Auto.


Modernes zweistöckiges Haus mit grauer Fassade, großer Terrasse mit Gartenmöbeln.


Grundriss Kellergeschoss: Gast KG, Keller, Hobby KG, Haustechnik KG, Abstellraum KG, Flur KG.


Grundriss eines Hauses: Garage, Büro, Garderobe, Diele, Küche und Wohn-/Essbereich


Grundriss Obergeschoss: Flur, Bad, Ankleide, Schlafen, Kind 1, Kind 2, HWR, Dusche, Dachterrasse.
 
kaho674

kaho674

Was mir wiederholt auffällt, die Waschmaschine steht quasi direkt neben dem Bett. Kann mir nicht vorstellen, dass man die nicht durch die Wand hört. Ich dachte auch immer, dass die nie an ist, wenn man im Bett liegt. Ist aber nicht so.
 
Zuletzt aktualisiert 12.01.2026
Im Forum Grundrissplanung / Grundstücksplanung gibt es 2565 Themen mit insgesamt 88794 Beiträgen


Ähnliche Themen zu Grundrissentwurf für 220m² Einfamilienhaus
Nr.ErgebnisBeiträge
1Stadtvilla mit gerader Treppe, offene moderne Bauweise, 140m² 18
2Fragen zum Hausbau - Tipps von erfahrenen Bauherren - Seite 221
3Treppe im Flur, Grundriss steht eigentlich schon :o( - Seite 320
4Fliesen oder Vinyl in Küche und Flur 19
5Frage zur Entwässerung / Verrohrung Küche 16
6Welcher Bodenbelag im Eingang/Flur? Wer hat Erfahrungen? Bilder? 14
7Fenster / Türen / Garderobe 13
8Grundrissfrage, Garage, Treppe 33
9Einfamilienhaus ca. 150 qm Grundriss - Treppe wie planen? 65
10Schrank unter der Treppe oder kleiner Abstellraum - Seite 211
11Flur-Grundriss vergrößern REH von 1921: Tipps? - Seite 227
12Grundrissplanung: Flur im EG breit genug? - Seite 457
13Wohin mit der Treppe? Dachausbau Walmdachbungalow - Seite 219
14 2 Vollgeschosse, Durchgang Garage, Hauswirtschaftsraum unter Treppe 25
15Kalkulation Innenausbau: Heizung, Sanitär, Bäder, Bodenbeläge 55
16Flur und Wohn-/Essbereich selben Bodenbelag? - Seite 550
17Hauseingang mit Flur oder ohne 15
18Grundriss Halboffene Küche mit großem Essbereich - Detailfragen 12
19Grundrissfrage, Treppe, Fenster, Ausrichtung - Seite 212
20Planung Einbaustrahler Flur und Garderobe - Tipps - Seite 662

Oben