Grundriss Neubau Einfamilienhaus zweigeschossig 200 m²

4,80 Stern(e) 17 Votes
Zuletzt aktualisiert 07.01.2026
Sie befinden sich auf der Seite 18 der Diskussion zum Thema: Grundriss Neubau Einfamilienhaus zweigeschossig 200 m²
>> Zum 1. Beitrag <<

K a t j a

K a t j a

Kritik trotzdem ausdrücklich weiter erwünscht
Ich möchte natürlich nicht sämtliche Diskussionen wiederholen. Wenn Dir aber auffällt, dass jeder neue Leser die gleichen Dinge bemängelt, sollte das zum Nachdenken anregen.
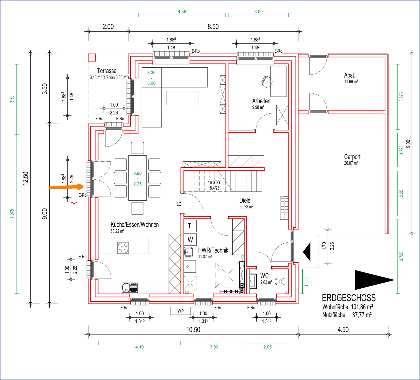
Wir wollen vom Eingang keine Sichtachse durch die gesamte Diele und finden diese Anordnung schön, auch wenn sie Platz kostet.
Vor allem kostet sie auch Licht. Das wird ein finsterer Langer Tunnel. Wolltest Du nicht extra eine gerade Treppe, um nicht zu stürzen? Ohne Licht stürzt man m.E. noch viel schneller.
Der Bebauungsplan schließt auch explizit Nebenanlagen wie Carports/Geräteräume/Gartenlauben außerhalb der Bebauungsgrenzen aus.
Das hätte man gern in #1 bei den Vorgaben des B-Plans gelesen.
Das ist tatsächlich schon unser aktueller Favorit
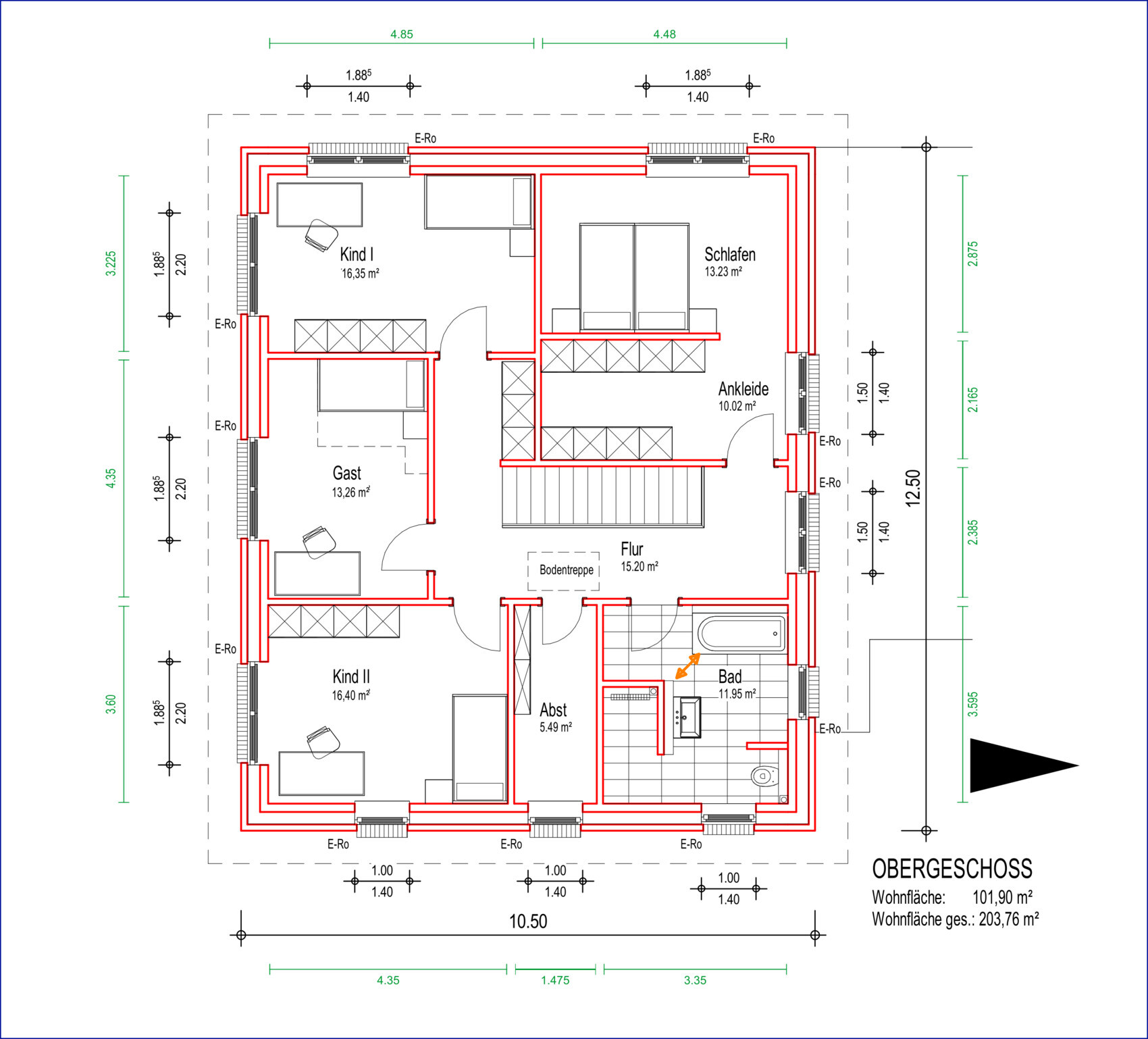
Ich überlege gerade, was schlimmer ist. Der dunkle Flur im EG oder dieses Bad. Das ist für mich ein Zeichen, dass Ihr den Plan gar nicht nachempfinden könnt. Ich würde zur 3D Hausanimation raten am besten mit Alternativen, um ein Gefühl dafür zu bekommen.
Wobei ich denke, dass 40 Tiefe (eventuell beidseitig) den Zweck erfüllen wird, 60 brauchen wir da eigentlich nicht.
Du baust einen Raum mit dem Zweck, etwas abzustellen. Dafür gibst Du zig tausende Euro aus. Dann sollte er auch den Zweck erfüllen. Ein solcher Schrank ist nun mal mindestens 60 tief. Wenn Du lieber 40 stellen willst, ist das okay. Aber deswegen verbaut man sich nicht die Option auf eine ordentliche Nutzung.
Nur als Vorwarnung: Ich schaffe es die nächsten Tage vermutlich nicht, ausführlich zu antworten, falls weiter so viele Beiträge kommen. Ich versuche das dann nachzuholen :)
Danke für den Hinweis. :)
 
K a t j a

K a t j a

Da muss ich widersprechen. Der Essbereich ist wie im Plan zu sehen (diesmal habe ich ja bemaßt) 4,10 m breit, das empfinden wir schon als fast zu groß. Der eingezeichnete Esstisch und vor allem die Stühle (eher Sessel) sind tatsächlich riesig, deswegen täuscht vielleicht die Relation, aber da ist massenhaft Platz, auch wenn man berücksichtigt, dass da der zentrale Durchgang durch den Wohn-/Koch-/Essbereich erfolgt.
Ich muss da auch mal widersprechen. Ja, der Bereich ist für einen Essplatz ausreichend. Das Problem ist aber, dass dieser in den Laufzonen zum Wohnzimmer und (Achtung!) zur Terrasse liegt. Das heißt, Ihr braucht davor und dahinter zusätzlich Platz, um bei geöffneten Türen auf die Terrasse zu kommen. Dafür ist er eher knapp. Die Terrassentüren sind anscheinend auch nicht nach Laufwegen angeordnet, sondern nach Ästhetik. Entsprechend braucht Ihr dort jeden Zentimeter. Ich sage nicht, dass es nicht geht. Es ist nur eben sehr beengt.
 
kbt09

kbt09

Das ist tatsächlich schon unser aktueller Favorit, bis auf ein bisschen Optimierung. Ich denke die Positionierung der Elemente werden wir aber so machen.
Da kann ich den bisherigen Kritikern nur zustimmen, maximal schmaler Waschtisch und absolute Engstelle zwischen Waschtisch und Wanne um dort in das Bad zu kommen.

Grundriss Obergeschoss mit Schlafzimmer, Kind I und II, Bad, Flur und Treppen

Und der Abstellraum verschlingt 5,5 qm. Insgesamt könnte ich mir eine Aufteilung grob eher so vorstellen. Fenster/Türen müsste man noch etwas besser anpassen. Orange = Abstellraum ohne Fenster, gelb = Dusche, Blau = Waschtisch, der bei noch besserer Türposition an der gesamten Wand langgezogen sein könnte und planoben auch mit einem hohen Schrank enden könnte.

Grundriss des Obergeschosses mit Schlafzimmer, Kind I/II, Gast, Ankleide, Bad, Flur; farbige Möbel.

Ich muss da auch mal widersprechen. Ja, der Bereich ist für einen Essplatz ausreichend. Das Problem ist aber, dass dieser in den Laufzonen zum Wohnzimmer und (Achtung!) zur Terrasse liegt. Das heißt, Ihr braucht davor und dahinter zusätzlich Platz, um bei geöffneten Türen auf die Terrasse zu kommen. Dafür ist er eher knapp. Die Terrassentüren sind anscheinend auch nicht nach Laufwegen angeordnet, sondern nach Ästhetik. Entsprechend braucht Ihr dort jeden Zentimeter. Ich sage nicht, dass es nicht geht. Es ist nur eben sehr beengt.
Zumal auch noch der planuntere Terrassentürflügel als erst zu öffnender gekennzeichnet ist

Erdgeschoss-Grundriss: Küche/Essen/Wohnen, Terrasse, Arbeiten, Diele, Carport, WC.

Der Weg aus der Küche also irgendwie versperrt.
 
Y

ypg

Wenn irgendjemand Interesse hat, würde ich den Thread auch gerne weiterführen und den Fortschritt bei Planung und Bau dokumentieren
Die aktuelle Geschichte des Hausbaus ist doch auch sehr interessant. Bitte weitermachen!

sind Anmerkungen und Kritik trotzdem ausdrücklich weiter erwünscht.
Um Gottes Willen: Gut gemeinte Ratschläge und Tipps, die von Dir/Euch nicht aufgegriffen werden, weil der Sinn dahinter von Euch nicht ergriffen werden kann oder ihr beratungsresistent seid, sind lauwarm nicht besser. Im Prinzip kann man doch nur wieder einiges wiederholen. Aber Endlosschleifen wie täglich grüßt das Murmeltier sind sowas von schrecklich. Dann ist es halt so! Die Terrassenzugangsgeschichte werdet ihr merken, aber wegreden.
 
HaseUndIgel

HaseUndIgel

Heute gibt es das erste richtige Status-Update von der Baustelle, denn gestern morgen haben die Erdarbeiten begonnen.

Da der Boden tiefer ausgehoben werden muss, als zuerst erwartet, brauchen wir wohl noch mal 100 m³ Sand zusätzlich (250 m³ insgesamt). Ein Teil des Aushubs kann aber zumindest nach Vermischung und Verdichtung wiederverwendet werden.

Wir sind gerade noch dabei die Angebote für Sanitär und Elektro abzustimmen, aber ansonsten ist in der Planung so ziemlich alles fertig. Spätestens Ende Januar 2026 sollte das Haus dann bezugsfertig sein.


Gelber Bagger auf Baustelle mit Erdhaufen, Baugerät und Häusern im Hintergrund
 
Zuletzt aktualisiert 07.01.2026
Im Forum Grundrissplanung / Grundstücksplanung gibt es 2565 Themen mit insgesamt 88772 Beiträgen


Ähnliche Themen zu Grundriss Neubau Einfamilienhaus zweigeschossig 200 m²
Nr.ErgebnisBeiträge
1Fenster / Türen / Garderobe 13
2Schuhe an der Terrasse; wohin damit? Wäre ein Schrank die Lösung? - Seite 228
3Grundriss Zugang von Küche in Speis / Abstellraum - Seite 329
4Grundrissplanung Einfamilienhaus ca. 170 m² auf schmalem 750m² Grundstück - Seite 559
5Positionierung von WC und Waschtisch im Kinderbad 22
6Badplanung 14m², Neubau, quadratisch, zwei Fenster - Seite 470
7IKEA Godmorgon Schrank - Wie kombinieren und befestigen? - Seite 1065
8Ikea Pax Schrank 2 Meter breit, Schienen für Schiebetüren fehlen - Seite 211
9IKEA PAX Fardal dreckige Türen Schmutzfänger 15
10Aktionen Ikea Pax Schrank - Seite 221
11Bungalow 135qm: Grundriss + Fenster - Seite 2104
12Küchenplanung Umbau: Frage zu Fenster und Elektrogeräten - Seite 441
13Dusche direkt am Fenster - kompatibel oder inkompatibel? 22
14Welche Rollläden bei verschlossenem Fenster, nur Verglasung? - Seite 213
15Grundriss Einfamilienhaus geplant, Fenster gefallen uns - Seite 243
16Einfamilienhaus, Eingeschossigkeit, Kniestock, Fenster OG - Seite 230
17Winkelbungalow, Terrasse ganz oder halb überdachen? 57
18Neubau einer ca. 8x11 Doppelhaushälfte, Einschätzung Grundriss und Fenster - Seite 235
19Bodentiefe Fenster - Warum bodentiefe Fenster? Vor- Nachteile? - Seite 5112
20Öffnungsmöglichkeit der Fenster mit Kontrollierte-Wohnraumlüftung - Ideen zur Planung - Seite 860

Oben