ᐅ Grundriss Neubau Einfamilienhaus zweigeschossig 200 m²
Erstellt am: 26.12.24 16:14
H
HaseUndIgel26.12.24 16:14Hallo zusammen und Frohe Weihnachten erst einmal,
nachdem ich vor ein paar Tagen schon eine Frage zur einzusetzenden Wärmepumpe hatte, folge ich jetzt einmal mit dem großen und grundsätzlichen Thread zum Grundriss.
Bebauungsplan/Einschränkungen
Größe des Grundstücks: 618 m²
Hang: Keiner
Grundflächenzahl: 0,4
Geschossflächenzahl: Keine
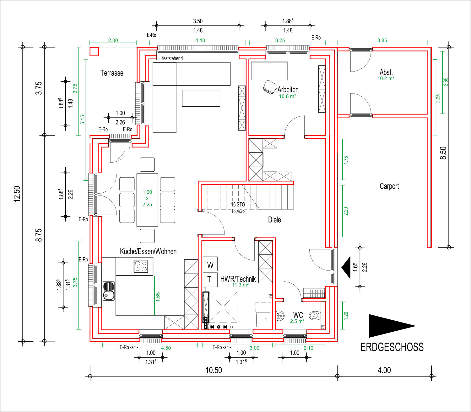
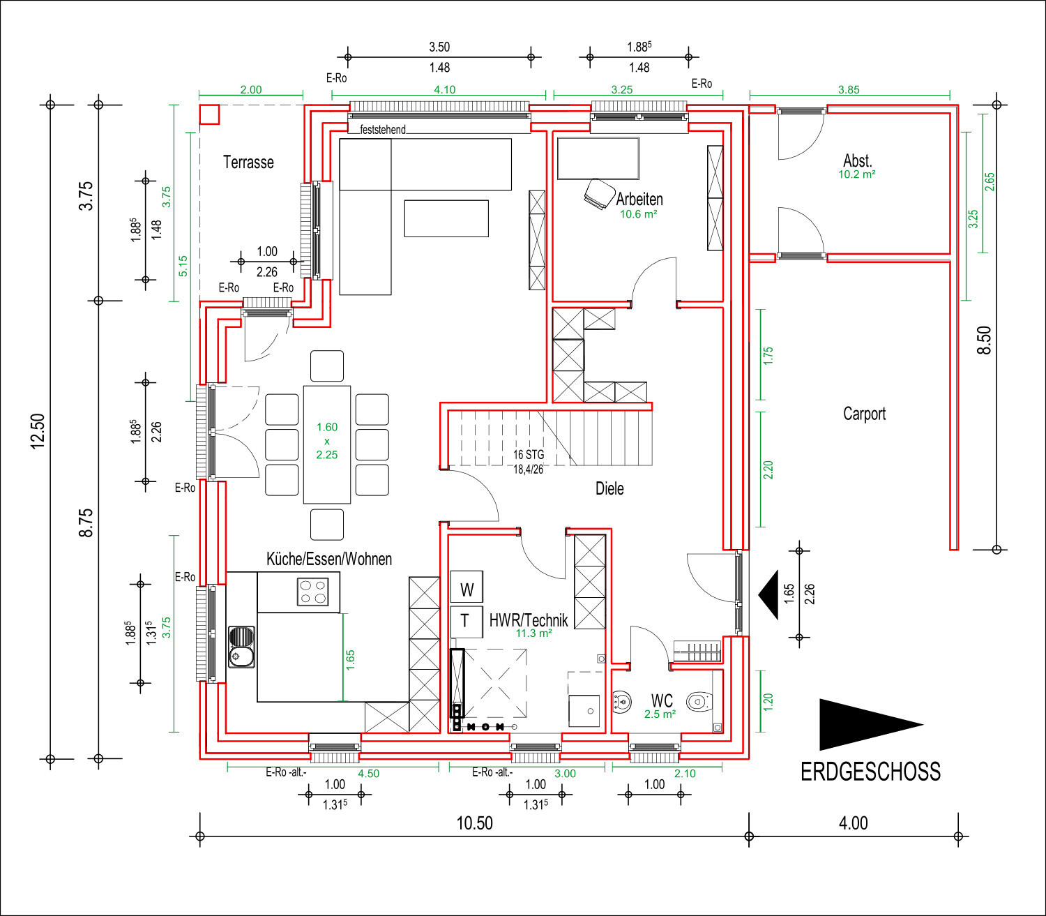
Baufenster, Baulinie und -grenze: Siehe Bild
Randbebauung: Nein
Anzahl Stellplatz: 2
Geschossigkeit: bis 2
Dachform: Alle erlaubt, bei Walm- oder Satteldach 25° - 50° Neigung
Stilrichtung: Keine vorgegeben
Ausrichtung: Keine vorgegeben
Maximale Höhen/Begrenzungen: 9 m Firsthöhe
Weitere Vorgaben: Photovoltaik zu mindestens 50% nutzbarer Fläche
Anforderungen der Bauherren
Stilrichtung, Dachform, Gebäudetyp: "Stadtvilla aber Norddeutsch"
Keller, Geschosse: 2 Vollgeschosse, kein Keller
Anzahl der Personen, Alter: 4, 32J, 32J, 1J, -2J
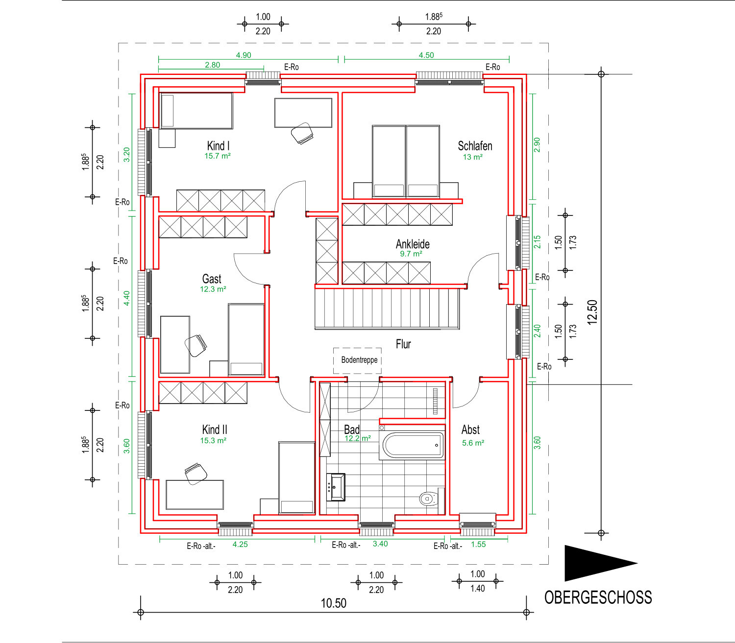
Raumbedarf im EG, OG: Arbeitszimmer (EG), Arbeitszimmer/Gästezimmer (OG)
Büro: Familiennutzung oder Homeoffice?: 1 Büro für Vollzeit-Nutzung, 1 weiteres als Gästezimmer-Hybrid
Schlafgäste pro Jahr: ca 10-15 Tage, meist Familie
offene oder geschlossene Architektur: offen
konservativ oder moderne Bauweise: eher modern
offene Küche, Kochinsel: offene Küche, mit Insel wenn es passt, sonst U oder L
Anzahl Essplätze: 8
Kamin: Nein
Musik/Stereowand: Nein
Balkon, Dachterrasse: Nein
Garage, Carport: Carport für 1 Auto
Nutzgarten, Treibhaus: Nein
weitere Wünsche/Besonderheiten/Tagesablauf, gern auch Begründungen, warum dieses oder das nicht sein soll: Nichts erwähnenswertes
Hausentwurf
Von wem stammt die Planung: Planer (Architekt?) des GU
Was gefällt besonders und warum?
Persönliches Preislimit fürs Haus, inkl. Ausstattung: 730 TEUR (inkl. Garten, Carport, Photovoltaik, Küche, Nebenkosten)
favorisierte Heiztechnik: Wärmepumpe ist quasi ein Muss (kein Gasanschluss)
Wenn Ihr verzichten müsst, auf welche Details/Ausbauten
Drei-Stunden Termin mit Architekt beim GU, angefangen mit ähnlichem Musterhaus (war ein 1,5-Geschosser mit Satteldach), mehrere Iterationen auf Transparentpapier, dann eine Woche später Entwurf digital erhalten.
Entsprechende/Welche Wünsche wurden vom Architekten umgesetzt?: Überdachter Eingang und Terrasse unter das OG zurückgezogen, Schlafzimmer mit Ankleide, 2 Arbeitszimmer (1 EG, 1 OG).
Was macht ihn in Euren Augen besonders gut oder schlecht? Grundsätzlich gefällt uns das Gesamtpaket schon ganz gut.
Ich freue mich schon auf eure Meinungen und bin gespannt, was ihr dazu sagt. Wenn uns der Entwurf im Januar auch noch gefällt, werden wir vermutlich die weitere Planung mit dem GU vorantreiben.





nachdem ich vor ein paar Tagen schon eine Frage zur einzusetzenden Wärmepumpe hatte, folge ich jetzt einmal mit dem großen und grundsätzlichen Thread zum Grundriss.
Bebauungsplan/Einschränkungen
Größe des Grundstücks: 618 m²
Hang: Keiner
Grundflächenzahl: 0,4
Geschossflächenzahl: Keine
Baufenster, Baulinie und -grenze: Siehe Bild
Randbebauung: Nein
Anzahl Stellplatz: 2
Geschossigkeit: bis 2
Dachform: Alle erlaubt, bei Walm- oder Satteldach 25° - 50° Neigung
Stilrichtung: Keine vorgegeben
Ausrichtung: Keine vorgegeben
Maximale Höhen/Begrenzungen: 9 m Firsthöhe
Weitere Vorgaben: Photovoltaik zu mindestens 50% nutzbarer Fläche
Anforderungen der Bauherren
Stilrichtung, Dachform, Gebäudetyp: "Stadtvilla aber Norddeutsch"
Keller, Geschosse: 2 Vollgeschosse, kein Keller
Anzahl der Personen, Alter: 4, 32J, 32J, 1J, -2J
Raumbedarf im EG, OG: Arbeitszimmer (EG), Arbeitszimmer/Gästezimmer (OG)
Büro: Familiennutzung oder Homeoffice?: 1 Büro für Vollzeit-Nutzung, 1 weiteres als Gästezimmer-Hybrid
Schlafgäste pro Jahr: ca 10-15 Tage, meist Familie
offene oder geschlossene Architektur: offen
konservativ oder moderne Bauweise: eher modern
offene Küche, Kochinsel: offene Küche, mit Insel wenn es passt, sonst U oder L
Anzahl Essplätze: 8
Kamin: Nein
Musik/Stereowand: Nein
Balkon, Dachterrasse: Nein
Garage, Carport: Carport für 1 Auto
Nutzgarten, Treibhaus: Nein
weitere Wünsche/Besonderheiten/Tagesablauf, gern auch Begründungen, warum dieses oder das nicht sein soll: Nichts erwähnenswertes
Hausentwurf
Von wem stammt die Planung: Planer (Architekt?) des GU
Was gefällt besonders und warum?
- Gerade Treppe
- Überdachter Eingang und Terrasse
- Geräumig genug für unsere Bedürfnisse
- WC im Erdgeschoss vermutlich zu klein
- Speisekammer ergibt so wenig Sinn (vielleicht weglassen)
- Layout im Bad oben (da haben wir schon alternative Ideen)
- Unsicher, ob genug Licht im Wohn/Essbereich
- Etwas zu groß/Klobig
- Etwas zu teuer
Persönliches Preislimit fürs Haus, inkl. Ausstattung: 730 TEUR (inkl. Garten, Carport, Photovoltaik, Küche, Nebenkosten)
favorisierte Heiztechnik: Wärmepumpe ist quasi ein Muss (kein Gasanschluss)
Wenn Ihr verzichten müsst, auf welche Details/Ausbauten
- könnt Ihr verzichten: Luftraum, Speisekammer, notfalls auf die Art der Überdachung von Eingang und Terrasse (zurückgezogen unter das OG)
- könnt Ihr nicht verzichten: Stauraum
Drei-Stunden Termin mit Architekt beim GU, angefangen mit ähnlichem Musterhaus (war ein 1,5-Geschosser mit Satteldach), mehrere Iterationen auf Transparentpapier, dann eine Woche später Entwurf digital erhalten.
Entsprechende/Welche Wünsche wurden vom Architekten umgesetzt?: Überdachter Eingang und Terrasse unter das OG zurückgezogen, Schlafzimmer mit Ankleide, 2 Arbeitszimmer (1 EG, 1 OG).
Was macht ihn in Euren Augen besonders gut oder schlecht? Grundsätzlich gefällt uns das Gesamtpaket schon ganz gut.
Ich freue mich schon auf eure Meinungen und bin gespannt, was ihr dazu sagt. Wenn uns der Entwurf im Januar auch noch gefällt, werden wir vermutlich die weitere Planung mit dem GU vorantreiben.
N
nordanney26.12.24 16:24HaseUndIgel schrieb:
Geräumig genug für unsere BedürfnisseHaseUndIgel schrieb:
Etwas zu groß/KlobigEinen Tod musst Du sterben.Wobei 200qm für 4 Personen nicht nur "geräumig genug", sondern schon verschwenderisch ist - nicht böse gemeint. Aber...
HaseUndIgel schrieb:
Etwas zu teuerdas folgt daraus.HaseUndIgel schrieb:
Preisschätzung laut Architekt/Planer: 565 TEURHat der Planer ein Geschoss in der Preisfindung vergessen? Oder sind massiv Eigenleistungen enthalten?Haus: 600k + X (reine Baukosten fürs Haus, verklinkert ist schon die teuerste mögliche Version).
Nebenkosten: 50k
Carport + Abstellraum: 15-20k
Photovoltaik: 15k
Vorgarten/Einfahrt/Terrasse: 25k (ich gehe mal davon aus, dass die Terrasse in der genannten Größe nur ein Platzhalter ist und eine richtige Terrasse noch geplant wird - stell mal auf 8qm einen Gartentisch für 6 Personen + Grill auf... LOL)
Garten: mit Gärtner 30k, ohne in EL nach Euren Wünschen. Ist aber auch nicht umsonst (Bäume, Sträucher, Pflanzen, Erdvorbereitung, Zaun, Beete, Einfassungen usw.)
Also Eure Planung mit dem Maximum ist schon sehr knapp, könnte aber noch klappen, wenn ihr keine weiteren besonderen Wünsche habt.
Küche hat nichts mit dem Haus und dem Limit zu tun.
H
HaseUndIgel26.12.24 16:38nordanney schrieb:
Hat der Planer ein Geschoss in der Preisfindung vergessen? Oder sind massiv Eigenleistungen enthalten?Tatsächlich haben wir nicht nur eine Schätzung, sondern schon ein Angebot mit diesem Preis auf dem Tisch, ohne nennenswerte Eigenleistungen. Wir gehen noch von 20 TEUR großen Zusatzleistungen und 20 TEUR Bemusterung aus, hoffen aber auch noch ein ordentliches Stück verhandeln zu können.
Angebot für Carport: 18 TEUR
Angebot für Photovoltaik: 23 TEUR
Planung Auffahrt/Garten: 25 TEUR
Aber tatsächlich habe ich bisher nur mit 30 TEUR für die Baunebenkosten gerechnet.
nordanney schrieb:
Einen Tod musst Du sterben.Da hast du natürlich Recht. Ich denke da geht bei uns eher Funktion vor Form, aber vielleicht bekommt man es ja ein bisschen eleganter getrickst.
N
nordanney26.12.24 16:41HaseUndIgel schrieb:
Tatsächlich haben wir nicht nur eine Schätzung, sondern schon ein Angebot mit diesem Preis auf dem Tisch, ohne nennenswerte Eigenleistungen. Wir gehen noch von 20 TEUR großen Zusatzleistungen und 20 TEUR Bemusterung aus, hoffen aber auch noch ein ordentliches Stück verhandeln zu können.Dann pass bitte ganz genau bei der Leistungsbeschreibung auf. Bei dem Rest habe ich dann ja nicht schlecht geschätzt. Wobei die Photovoltaikanlage noch großes Potential bietet.
H
HaseUndIgel26.12.24 16:45nordanney schrieb:
Wobei die Photovoltaikanlage noch großes Potential bietet.Kostentreiber ist da der Speicher mit 12 kWh, vielleicht etwas groß aber wir haben 11 kWp an Leistung im Angebot.
H
HaseUndIgel26.12.24 16:48nordanney schrieb:
Dann pass bitte ganz genau bei der Leistungsbeschreibung auf.Vermutlich werde ich die nächsten Tage über dazu noch ein paar Detailfragen posten. Wie sieht das bezüglich Etikette aus, sowas lieber hier im Thread oder ein separates Thema aufmachen?
Aber erst Mal würde ich abwarten, was so zum Grundriss kommt.
Ähnliche Themen