Grundriss Neubau Einfamilienhaus zweigeschossig 200 m²

4,80 Stern(e) 17 Votes
Zuletzt aktualisiert 20.12.2025
Sie befinden sich auf der Seite 16 der Diskussion zum Thema: Grundriss Neubau Einfamilienhaus zweigeschossig 200 m²
>> Zum 1. Beitrag <<

A

Arauki11

Wenn irgendjemand Interesse hat, würde ich den Thread auch gerne weiterführen und den Fortschritt bei Planung und Bau dokumentieren und sicher auch noch in Zukunft die eine oder andere Frage stellen.
Sehr gerne, denn das hat mit der Zeit leider sehr nachgelassen, es wird fast nur noch Information/Meinung eingeholt und dann enden die Threads meist.
Das wäre klasse.
 
K a t j a

K a t j a

Sorry, wenn ich erst sehr spät einsteige und nicht alles bis hierhin gelesen habe.
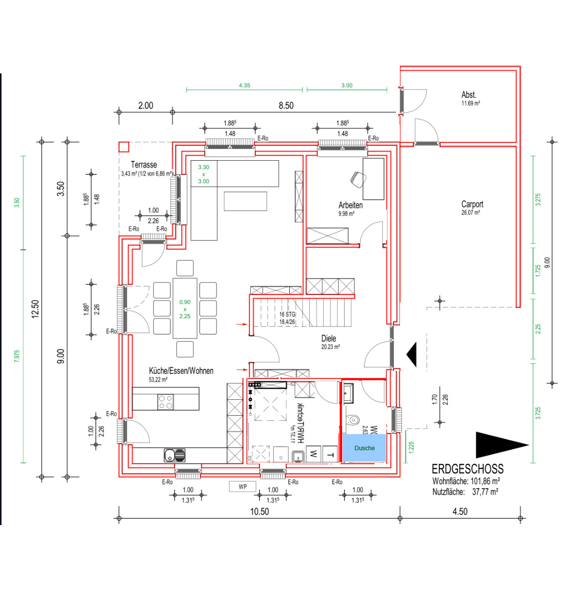
Trotzdem muss ich diese Mäusetunnel-Eingangsplanung nochmal in Frage stellen. Das ist ja ein furchtbarer Platzfresser und man fühlt sich trotzdem ständig beengt. Finster wie ein Grab ist er auch noch. Bitte befreit Euch von diesem Zwang, die Garage müsste hinten mit dem Haus abschließen - ich sehe keinen Grund dafür. Nach hinten damit, Eingang verschieben und Platz gewinnen für Eingangsbereich, Flurbreite, Extra-Dusche und Wohnzimmertür. Außerdem würde ich die letzte Stufe der Treppe unterbauen (die verschwindet in der Decke) und die WZ-Wand noch maximal in den Flur schieben um jeden Zentimeter für den knappen Esstischbereich auszunutzen.

Im OG das Bad ist eine Katastrophe, aber das habt Ihr ja schon selbst erkannt. Ich möchte aber auch noch auf den nahezu nicht nutzbaren Abstellraum hinweisen (falls es noch niemand getan hat). Der bietet keinerlei Stellfläche, um da wirklich etwas unterzubringen. Dieses schmale "Brettchen" hinter der Tür ist lächerlich. Ich würde hier Bad und Kind jeweils um wenige Zentimeter verkleinern, damit die 60er Stellfläche für den Schrank rausspringt. Fenster und Tür so verschieben, dass sie nicht im Weg sind. Insgesamt alle anderen Fenster anpassen.


Grundriss Erdgeschoss: Küche/Essen/Wohnen, Diele, Arbeiten, Dusche, WC, Terrasse, Carport
 
H

hanghaus2023

Ich habe mal das Bad etwas aufgeräumt. W+T in die Abstellkammer. Das fällt die Wäsche an. Das entspannt die Situation im Technikraum der ja etwas kleiner geworden ist. Das Bad ist nur um 10 cm kleiner.


Grundriss eines Badezimmers mit Badewanne und Waschtisch


Das Fenster im TK etwas verschoben.


2D Grundriss eines Badezimmers mit Dusche und Sanitärbereich
 
Zuletzt aktualisiert 20.12.2025
Im Forum Grundrissplanung / Grundstücksplanung gibt es 2552 Themen mit insgesamt 88532 Beiträgen


Ähnliche Themen zu Grundriss Neubau Einfamilienhaus zweigeschossig 200 m²
Nr.ErgebnisBeiträge
1Kleinstmögliches Fenster für Lüftung Hauswirtschaftsraum 22
2Schalter für Rollläden am Fenster oder an der Tür? 38
3Hauswirtschaftsraum Raum ohne Fenster - Lüftungsanlage ausreichend? 26
4Bungalow 135qm: Grundriss + Fenster - Seite 10104
5Grundriss 170m2 - Hauswirtschaftsraum zu klein? Verbesserungsvorschläge? 42
6Planung HAR/Hauswirtschaftsraum - Technikpläne unbekannt 12
7Wie findet ihr den Grundriss? Habt ihr Vorschläge? - Seite 326
8 Küchenplanung mit tiefen Fenster 43
9Grundrissfrage, Treppe, Fenster, Ausrichtung 12
10Grundriss Einfamilienhaus geplant, Fenster gefallen uns - Seite 543
11Reedkontakt Alarmanlage Fenster. Wie habt ihr das gelöst? - Seite 212
12Umbau Kinderzimmer - Fenster in zwei Fenster aufteilen? 20
13Bodentiefe Fenster - wie Sofa stellen? - Seite 212
14Einbruchschutz - WK2 auf WK3 Fenster aufrüsten - Meldeanlage? 65
15Praxistaugliche Größe für Fenster und Rollladen 13
16Tür nach innen oder außen aufgehend? Was ist normal? - Seite 432
17Grundriss Neubau Einfamilienhaus: Fenster/Türen/Innenwände Größe/Anordnung ok? - Seite 220
18Neubau einer ca. 8x11 Doppelhaushälfte, Einschätzung Grundriss und Fenster - Seite 635
19Heizungsanlage passt nicht wie geplant in den Hauswirtschaftsraum 27
20Fenster aus Polen oder Bosnien? - Seite 424

Oben