Grundriss Einfamilienhaus ohne Keller, 3 Kinderzimmer und Büro

4,80 Stern(e) 5 Votes
M

Maka.living

Hallo zusammen,

Ich bin im Rahmen unseres Bauvorhabens auf dieses Forum gestoßen und immer wieder begeistert über die super hilfreichen Tipps und Ideen zur Grundrissplanung.
Auch wir haben bereits einen ersten Entwurf enthalten und würden uns über Kritik bzw Verbesserungsvorschläge freuen. Vielen lieben Dank vorab!

Bebauungsplan/Einschränkungen
Größe des Grundstücks: 447qm
Hang: Nein
Grundflächenzahl: 0,4
Geschossflächenzahl: 0,6
Baufenster, Baulinie und -grenze: 3 Meter von der Grenze
Geschossigkeit: 2
Dachform: Satteldach
Stilrichtung: klassisches Einfamilienhaus
Ausrichtung
Maximale Höhen/Begrenzungen: Max Wandhöhe 12m
weitere Vorgaben: Fernwärme verpflichtend

Anforderungen der Bauherren
Stilrichtung, Dachform, Gebäudetyp
Keller, Geschosse: modern und kompakt, ohne Keller
Anzahl der Personen, Alter: 5 Personen (34J ,33J, Zwillinge 3J, Sohn 1J)
Raumbedarf im EG, OG: Eltern Schlafzimmer in's EG, Kinderzimmer und Büro ins OG
Büro: Familiennutzung oder Homeoffice?: mein Mann arbeitet bis zu 3 Tage die Woche im HO
Schlafgäste pro Jahr: keine
offene oder geschlossene Architektur: offen
konservativ oder moderne Bauweise: modern
offene Küche, Kochinsel: offene Küche
Anzahl Essplätze: 6-8 Personen
Kamin: nein
Balkon, Dachterrasse: nein
Garage, Carport: Garage auch als Stauraum und für Technik Wünsche/Besonderheiten/Tagesablauf, gern auch Begründungen, warum dieses oder das nicht sein soll:
Das Büro fällt zwar etwas klein aus, allerdings ist uns die Größe der Kinderzimmer wichtiger und der Hauswirtschaftsraum zum Wäsche waschen sollte auch im OG Platz finden. Für Stauraum bzw Abstellraum fungiert die Garage inkl Zwischendecke und der Dachboden. Der Platz unterhalb der Treppe wird ebenfalls für diverses genutzt.

Hausentwurf
Von wem stammt die Planung:
-Planer eines Bauunternehmens
Was gefällt besonders? Warum?: Kinderzimmer schöne Größe, Grundriss erfüllt alle Anforderungen unsererseits, kompakt.
Was gefällt nicht? Warum?: Wohn-Ess-bereich evtl etwas zu beengt. Wir überlegen den TV und das Sofa anders anzuordnen damit ein etwas offeneres Wohngefühl entsteht. Badezimmer Anordnung im OG könnte noch optimiert werden. Hier haben wir verschiedene Varianten ausprobiert, aber können uns noch nicht entscheiden.

Preisschätzung lt Architekt/Planer: ca. 500.000 EUR
favorisierte Heiztechnik: Fernwärme Pflicht!

Wenn Ihr verzichten müsst, auf welche Details/Ausbauten
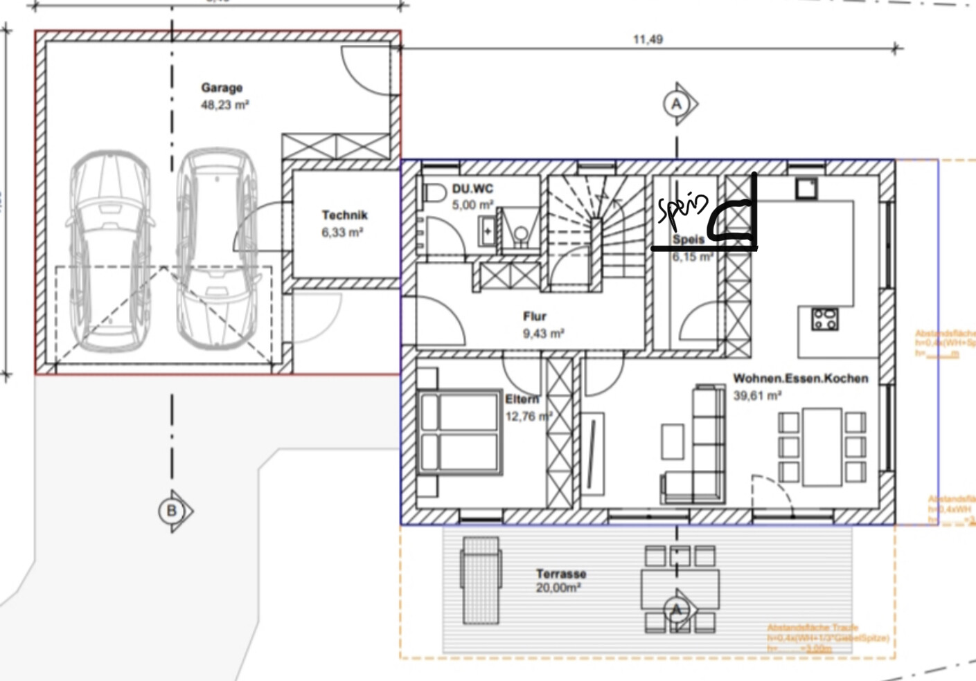
-könnt Ihr verzichten: Speis wenn Küche groß genug geplant ist.

Was ist die wichtigste/grundlegende Frage zum Grundriss in 130 Zeichen zusammengefasst?

Wie kann der Grundriss noch optimiert werden? Fenster und Türen können noch angepasst werden. Außenmaße sind fix.
Welche Badezimmer Variante macht am meisten Sinn?


Erdgeschoss-Grundriss: Garage, Technik, Flur, DU/WC, Eltern, Speis, Wohnen/Essen/Kochen, Terrasse



Obergeschoss eines Hauses mit Flur, Bad, HWR und drei Kinderzimmern sowie Büro, Grundrissplan


Grundriss eines Badezimmers mit Badewanne, Doppelwaschbecken, Toilette; Fläche 10,73 m².


Grundriss eines Badezimmers mit Tür rechts, ovale Badewanne und zwei quadratischen Lüftungsfeldern.


Schematische Karte mit rotem Ga-Block, blauem SD-Block, Pfeilen, Linien und Koordinaten.


Modernes zweistöckiges Haus mit Garage links, grünem Garten und Zufahrt.


Zwei überlappende gitterartige Rechtecke in Rot/Blau mit einer Pfeillinie dazwischen.
 
Zuletzt bearbeitet von einem Moderator:
S

Sunshine387

Guten Abend,
ihr habt wirklich (sicherlich auch wegen den Baukosten) einen schönen kompakten Grundriss, der eure Wünsche auf geringer Fläche vereint. Mir wäre das Büro oben allerdings schon ein bisschen zu klein (das hat ja effektiv nur 4 m2 wegen der Ecke zum reingehen). Ich pinne dir unten mal meine Ideen an. Das Büro in den etwas größeren Hauswirtschaftsraum und an die Stelle des Büros würde ich den Hauswirtschaftsraum machen. Und zwar so, dass du nicht mehr diese unnötige Nische (wo man nichts hinstellen kann) hast und dafür etwas mehr Stellfläche im Flur. Unten finde ich den Grundriss so auch zu schmal (gerade im Wohnbereich). Deswegen würde ich einfach die Speisekammer verkleinern und drehen. So habt ihr dann einen großzügigen Allraum. Ansonsten ist das ein guter Grundriss, der aus dem Platz das beste rausholt. Den würde ich ohne Bedenken bauen. Euch viel Erfolg dabei!

Grundriss eines Hauses: Garage, Technik, Flur, Wohnzimmer/Essen/Kochen, Elternzimmer, Terrasse.


Grundriss eines Hauses mit Bad, Flur, Büro, HWR und drei Kinderzimmer (Kind 1-3).
 
K a t j a

K a t j a

Sorry, ich habe meine Zweifel, ob hier wirklich ein Profi am Werk war. Da sind einige Schnitzer, die ein solcher niemals planen würde bzw. sollte.
Interessant finde ich allerdings den Bebauungsplan Ausschnitt. Wie sind denn die maximalen Außenmaße für das Haus? Sind die in der Tiefe schon ausgeschöpft? Auch bei der Garage?
 
S

SoL

Ich stimme @K a t j a zu.
Der Grundriss ist zusammengeflickt. Sprich Grundriss genommen und verdreht, damit bloß alle Kundenwünsche reinpassen. Allein die Tür vom Technikraum ist schon toll. Ohne Not öffnet sie nach planlinks zu den Autos, anstatt nach planoben oder planunten.
Auch die Speisekammer ist super: Viel Fläche verbraucht mit möglichst wenig verfügbarem Stauraum...

Das geht deutlich besser.
Ich würde neu planen mit der Treppe etwas weiter nach planrechts direkt ans Kinderzimmer, dann kriegt man oben einen guten Grundriss hin.
Von diesem ausgehend plant ihr dann das EG.
 
Y

ypg

Das Programm kenne ich. Da sind aber auch Maßketten möglich, und Maße fehlen hier.
wenn der TK 6,3, dann ist die Garage zum Parken zu schmal für 2 PKWs.
Tk muss in die thermische Hülle des Hauses. Allraum ist total verkorkst und mit der Lage der Speis (Blockade zur Küche) und Zugang über den Ruhebereich nicht familientauglich.
Im OG könnte man den Hauswirtschaftsraum notfalls über das Bad zugänglich machen, dann Lage planunten links. Dann schieben sich die Räume zurecht und das Büro gewinnt.
 
H

haydee

Mich stört auch dass man vom Elternschlafzimmer durch den Schmutzbereich zum Bad muss, später stapft das Jungvolk Nachts vorbei.
 
Zuletzt aktualisiert 14.12.2025
Im Forum Grundrissplanung / Grundstücksplanung gibt es 2551 Themen mit insgesamt 88463 Beiträgen


Ähnliche Themen zu Grundriss Einfamilienhaus ohne Keller, 3 Kinderzimmer und Büro
Nr.ErgebnisBeiträge
1Grundriss Einfamilienhaus 155m², ohne Keller, 3 Kinderzimmer, 1 Büro 38
2Häuser ohne Keller: Stauraum Hobby-Keller? 49
3Grundriss - Anregungen & Kritik erwünscht! - Seite 326
4Grundrissplanung Einfamilienhaus (Stadtvilla) ca.140m² (3 Kinderzimmer) 42
5 2 Vollgeschosse, Durchgang Garage, Hauswirtschaftsraum unter Treppe 25
6Grundriss Einfamilienhaus (ca. 170 qm) mit Garage - Hanglage 35
7Einfamilienhaus ohne Keller - Diskussion Grundriss 19
8Grundriss für Einfamilienhaus 210 m² + Keller - Eure Meinungen 16
9Einfamilienhaus-Grundriss 170 qm für 4 Personen mit Garage 20
10Hanghaus 235 qm mit Garage im Keller auf 3600 qm Grundstück 15
11Grundriss 165 m² mit Keller eure Meinung - Seite 352
12Grundriss Einfamilienhaus ca. 190qm mit Keller auf Millimeterpapier 78
13Besonderer Grundriss oder langweilig mit Keller? - Seite 320
14Doppelhaushälfte - Verbesserungen im Grundriss 15
15Bebauung Grundstück - Keller ja oder nein? 75
16Grundrissidee 200qm (+ exkl. Keller) Satteldach - Seite 230
17Grundriss Umbau / Ausbau Dreiparteienhaus 157qm 13
18Grundriss Doppelhaushälfte mit Gästezimmer 53
19Grundriss EFH165 qm erster Entwurf - Architekt unzufrieden - Seite 374
20Unser anvisierter Grundriss - bitte um Einschätzungen 67

Oben