Großzügige Villa: Empfehlungen & Kosteneinschätzung

4,70 Stern(e) 6 Votes
Zuletzt aktualisiert 07.12.2025
Sie befinden sich auf der Seite 5 der Diskussion zum Thema: Großzügige Villa: Empfehlungen & Kosteneinschätzung
>> Zum 1. Beitrag <<

Y

ypg

Warum der TE nicht mal etwas schreibt?!
360 m² Wohnfläche + Keller
Der Keller schlägt ja fast nicht weniger ins Gewicht als die Wohnfläche selbst.
Mir fallen übrigens im Entwurf „Kleinigkeiten“ auf: Bad über dem WZ-Anbau, Schornstein für den Kamin an der Traufe und nicht dem First, dann trennt das WZ unangenehm den Blick in den Garten. Man ist quasi auf der Frühstücksterrasse abgeschottet. Der Weg zur Outdoorküche ist sehr lang und führt durch das WZ, was man ja grundsätzlich vermeiden möchte. Gern Terrasse vom Kühlschrank und Küche so nah wie möglich, zur Not noch Esszimmer dazwischen.
Wo die Reise hingehen könnte: Gästebad im EG auch Familien-WC, Halle einkürzen, gerade oder anmutigende 2-fach gewendelte Treppe… dort wo die Treppe ist, das WZ. Oben verschiebt es sich auch. Vorteil: Treppe/Laufweg präsenter, Terrasse von dem Essbereich aus, keine Trennung der Sichtachse durch den Gartenanbau.
Allerdings spart man auch nur plusminus 150qm, dann wäre man bei 1,8 Mio.

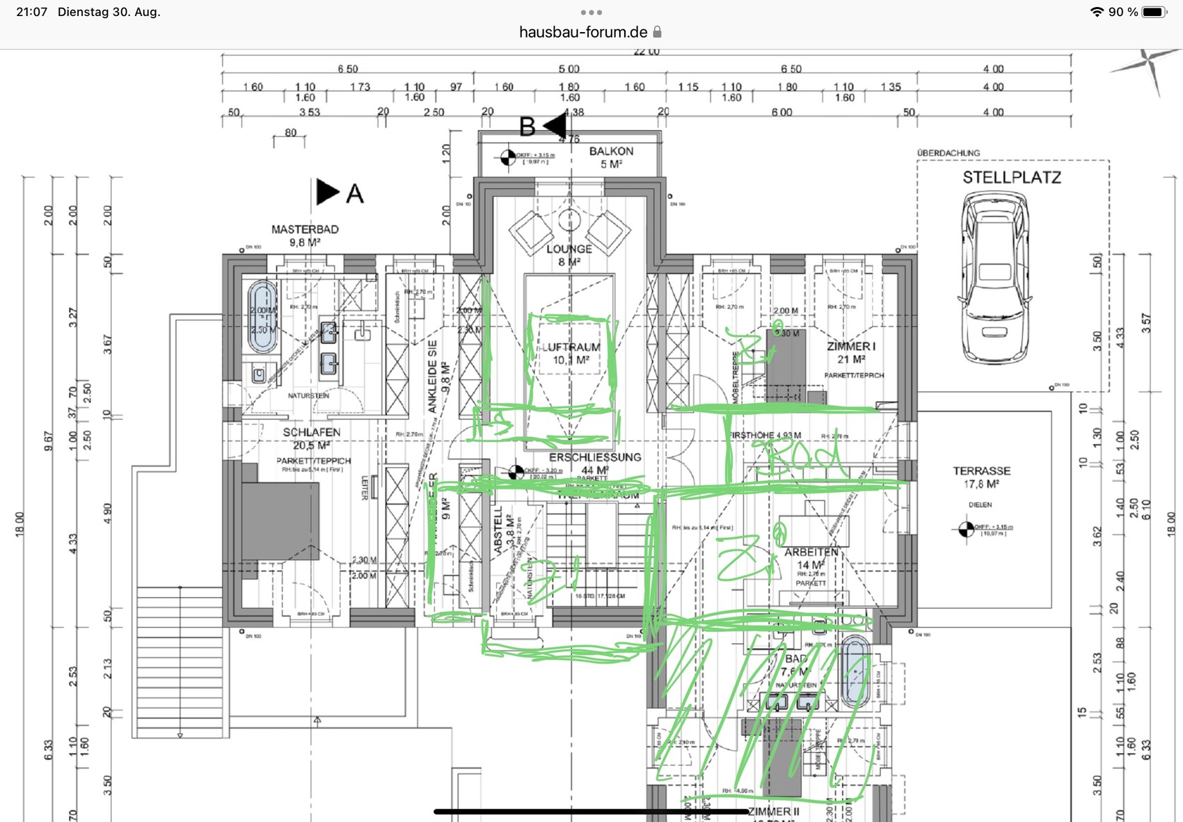
Grundriss eines Hauses mit Schlafzimmer, Masterbad, Ankleide, Lounge, Terrasse, Stellplatz.


Grundriss eines Hauses: offener Wohn-Essbereich mit Küche, Terrasse und Wintergarten.
 
T

Trockentest

Guten Abend zusammen,



huch - mit so vielen Antworten innerhalb 24 Stunden habe ich nicht gerechnet. Super cool und herzlichen Dank für all eure Antworten und Meinungen!

Es ist zwar hart zu lesen, dass nahezu jeder empfiehlt, die Planung noch einmal auf 0 zu setzen und ganz von vorne anzufangen. Aber so mehr ich darüber nachdenke und ich es von euch lese, desto mehr tendiere ich auch zu diesem Schritt. Es ärgert mich aber auch, da wir so viel Zeit und Energie bis dahin hier reingesteckt haben. Und unser Architekt nie die Kostenfahne gehoben hat.

Das ist auch der Punkt, den ich einfach nicht verstehe.



Wie wird denn gebaut? Eigenvergabe (über Architekt) oder mit einem GU/GÜ?

Die Elektrokosten halte ich für sportlich… für eine zusätzliche (Gira) Steckdose habe ich 2020 noch 25€ bzw. 35€ wenn über KNX schaltbar (ohne Aktor) bezahlt. Ja, alles ist teurer aber 110€ pro Steckdose ist schon knackig.
Wir planen bisher über den Architekten. Er schaut aber momentan auch als Plan B nach einem GU.
Ja - wenn ich nach reinen Materialkosten schaue, dann komme ich auch nur auf die rund 40€ für viele Elemente. Deswegen verwundert es mich, dass die Kosten so hoch sind - oder braucht ein Elektriker eine Stunde, um eine Steckdose zu verbauen? Und 4€ pro Meter Stromkabel finde ich auch abstrus hoch. Aber offenbar können solche Kosten aufgerufen werden, wenn ich alle hier richtig verstehe?


Zum Thema Elektro… gibts überhaupt eine durchdachte Planung? wenn ich deinen Ausschnitt richtig interpretiere, willst du 250 Steckdosen mit KNX schalten… wenn der Rest der Planung auch so aussieht, brauchst du dich m. E. über den Preis nicht zu wundern… das geht auch sparsamer
Ich habe nie von 250 Steckdosen als KNX gesprochen. Es werden hier und da ein paar Schalter mit KNX sein, ja. Aber definitiv nicht alle 250 Schalter/Steckdosen. Er meinte aber, die 110€ wären ein Mischpreis aus normalen Steckdosen/Schalter und KNX-Steckdosen/Schalter. Der Elektroplaner hatte auch in seiner ersten Kosteneinschätzung 54 Brandmelder eingeplant. So viele Räume habe ich nicht einmal. Ich verstehe einfach nicht, was der Elektroplaner da bisher gemacht hat. Deswegen


...dass der Keller einer unterirdischen Stadt gleicht und völlig überzogen und sinnfrei ist. (Was will man denn auf 20qm alles für Vorräte lagern? - um nur ein Beispiel zu nennen.)

Für 1,5 Mio kann man ein schönes Haus bauen. Ich würde beim neuen Plan auch gleich die Ausrichtung der Hauptterrasse und die Anbindung der Küche komplett überdenken. Fraglich wäre auch, ob ich bei dem Architekt bliebe, der mir eine solche Fehleinschätzung eingebrockt hat.
Ja - der Keller ist zu groß. Da gebe ich auch Recht. Wie meinst du das mit der Terrasse und der Küche?


Neu und kleiner planen. Einfach mit dort was streichen, dort kürzen wird das nichts. Das Haus ist schon sehr groß dimensioniert. Ich denke mit 100 qm weniger und Luxus-Ausstattung kommt ihr ehr an euer Budget und habt trotzdem ein Traumhaus.
Mal überspitzt in eurer Einganghalle könnt ihr Bälle abhalten, in der Ankleide eine Bowlingbahn installieren. Fühlt man sich noch wohl?
Es gibt auch Häuser mit ca. 200 qm die einen Eingang haben der einen Wow-Villa-Effekt haben.
Die 350 qm müssen auch mit Leben gefüllt werden.
Geht alle Räume nochmal durch. Weinkeller Wunsch oder Weinsammler. Braucht es einen Keller oder reicht ein Weinschrank?
Braucht ihr soviele Hobbyräume? Wir hatten auch mal einen Hobbyraum für jeden in der Planung. Realisiert haben wir keinen, vermisst bisher auch nicht.
Ihr könnt auch den ganzen Tag aus dem Weg gehen.
Wenn ich an @rick2018 sein Projekt denke, befürchte ich das die 2 Mio schon ehr knapp werden.
Ich denke auch, dass wir mit einer Planung von 240m² erst einmal ins neue Rennen gehen werden. Es ist richtig - der Platz muss mit Leben gefüllt werden und einige Räume müssen dann einfach weggestrichen werden.


Beim neuen Haus würde ich an Eurer Stelle die Räume auch besser in Relation setzen lassen...

Riesenluftraum, Riesendiele und dann 4m² Gästebad ist merkwürdig.
Ja - die 4 m² sind uns auch ein Dorn im Auge gewesen. Da müssen wir eine Verschiebung der Proportionen hinbekommen.


Moin,
das ist mal 'ne amtliche Hütte.... ob das in der heutigen Zeit noch passend ist muss jeder für sich selber entscheiden...
Zu den Kosten: das sind 5800 € pro qm , das kommt mir auch mit Keller und gehobener Ausstattung sehr, sehr teuer vor. Da sind ja auch riesige Terrassen mit drin, die egal mit welchem Belag nicht mehr als 500 €/qm kosten können. Sprich, das eigentliche Haus ist da mit über 6000 €/qm kalkuliert. Die 1,25 Mio werden allerdings vermutlich wirklich knapp werden, würde mal so auf 1,5-1,7 tippen.
Zum Layout:

  • Wo finde ich die Option für die Oma? Ich sehe da keine reale Möglichkeit, den Gästebereich sinnvoll abzutrennen. Mal abgesehen davon, dass ich bei euren Möglichkeiten lieber einen 80qm Bungalow im Garten dafür einplanen würde....
  • Die Treppe ist komplettes No-Go, die Anordnung zerstört die Symmetrie und Sichtachsen in eurer Eingangshalle. Da ist das ganze Feng Shui im Eimer... Die muss zwingend rechts und links an Wände anschließen, sonst wirkt das total gedrängt.


Danke für deinen Beitrag. Genau das mit dem m²-Preis ist ja auch der Punkt, weswegen ich die Welt nicht verstehe. Der Architekt ist mit 3.500 €/m² für Haus inkl. Keller ins Rennen gegangen und hatte seither nie neue Kosten genannt. Und jetzt stehen wir da und einem total überplanten Budget. Wir wollen den Keller gar nicht so wohnlich ausgebaut haben und die Terrassen sind riesig, die für die Kosten ja nicht so ins Gewicht fallen sollten. Daher wäre deine Einschätzung von 1,5 bis 1,7 meine bisherige Hoffnung auch gewesen. Aber die anderen Meinungen hier sagen ja eindeutig, dass ich diesen Kostenrahmen nicht erreichen kann.

Die Oma würde ins Gästezimmer EG kommen. Wir möchten nicht, dass ein Haus in zwei separate Wohneinheiten gesplittet wird - wer in dem Haus wohnt, soll auch vollkommen im Haus eingebunden sein.

Das mit der Treppe nehme ich als Impuls mit.



Ich habe auch die Option für Oma gesucht, aber nur viele übergroße Platzhalterräume im Keller gefunden. Oder ist planlinks das Schlafzimmer mit Bad für Oma?
Die Mitte des Hauses, also das Entre würde ich häuslicher planen. Letztendlich will man ja auch die Räume bewohnen und nicht jeden Tag sportliche Wege in Kauf nehmen.
Ankleide im OG halbieren und Gauben inkl Wohnräume im DG der Kinder überdenken.
Und wenn im Keller eh Wohnraum entsteht, über einen schicken Lichthof seitlich nachdenken, der den Wohnraum im Keller gut nutzen lässt. Da kann man dann schon 30-40qm pro Geschoss einkürzen.
Und auch mit den genannten Kürzungen wird es bestimmt ein tolles beeindruckendes Haus werden.
Sehr schöne Impulse, die ich auch in einer neuen Planung berücksichtigen werde. Danke!


Schau Dir mal dieses Haus an… Preis stimmt natürlich nicht mehr, auch nicht die Grundfläche… dennoch auch recht beeindruckend.
Ich lese mir den Thread einmal durch. Klingt beim ersten Lesen gut und ich sollte einmal bei ihm anfragen, mit wem er gebaut hat. Ist ja auch Hamburger Gegend.


Wow,



echt jetzt? Du hast in der Liga mehr Erfahrung, daher nehme ich deine Einschätzung ernst. Aber das sind 8-8,5 k€ pro qm? Dann sind die Wände aber auch mit Blattgold belegt!??

Viele Grüße,

Andreas
... auch ganz meine Reaktion gewesen. Ich habe tatsächlich eher auf programmierbare Screen-Tapeten oder so etwas getippt. :D


Hmm… wenn die Eingangshalle eine Halle ist, also schon keine Diele mehr, dann finde ich es persönlich nicht schön. Die ist größer als ein StandardWZ in einer Komfortwohnung. Die muss ja auch ständig frequentiert werden, um nach oben oder auf Toi zu gehen. Beeindrucken finde ich allerdings den Luftraum darüber - wenn dort eine mega tolle Lampe runterbaumelt, dann macht es schon etwas her. Allerdings muss man wohl, auch wenn man die nötige Kohle hat, überlegen, ob man sich so weit mit einer „Größe“ vom durchschnittlichen Wohlstand distanzieren möchte oder eben auch in dem „Grössending“ mal aufhört, die Grenzen auszuloten.
Alles ist irgendwann mal gesättigt und fett: was nützt eine Bouillabaisse, wenn da so viel Edelfisch drin ist, dass man keine Flüssigkeit in der Suppe mehr hat?
Ich will hier nicht bekehren, aber da das Haus ja eh so nicht bezahl- und baubar ist, wäre vielleicht darüber nachzudenken, dass auch eine halbe Halle, also eine großzügige Diele viel wertvoller fürs Haus sein kann als so ein Schlossding.
Ich würde wohl eher bei den Einbaumöbeln bleiben, die das Haus einrichten oder einer teuren Treppe, und eben an umständlicher Größe sparen.
Da gebe ich dir auch Recht. Gerade der Eingangsbereich ist zu groß. Mit dem Luftraum und einer schönen Lichtszene wäre es sicherlich schön gewesen, aber das lässt sich kostenseitig und auch sinnvoll nicht umsetzen.


Ich denke leider auch, dass der neue Preis realistischer ist, als euer genanntes Budget. Und ich glaube leider auch, dass der neue genannte Preis nicht der Endpreis für dieses Objekt sein wird.
Das ist echt ärgerlich, weil man ja eigentlich seine Vorstellungen genau definiert hat. Bei unserem Architekten wurde es auch von Termin zu Termin teurer.Wenn die Schnerzgrrenze erreicht ist, muß man eben die Reißleine ziehen. An Einbauten sparen oder Außenwände nach innen schieben und Räume verkleinern hilft da nicht weiter und macht die ganzen Entwurf kaputt. Dann lieber alles neu.
Danke für deinen Beitrag. Wie ich herauslese, hat sich es aber auch bei euch gelohnt, komplett auf 0 zu setzen und von vorne anzufangen?


Warum der TE nicht mal etwas schreibt?!

Der Keller schlägt ja fast nicht weniger ins Gewicht als die Wohnfläche selbst.
Mir fallen übrigens im Entwurf „Kleinigkeiten“ auf: Bad über dem WZ-Anbau, Schornstein für den Kamin an der Traufe und nicht dem First, dann trennt das WZ unangenehm den Blick in den Garten. Man ist quasi auf der Frühstücksterrasse abgeschottet. Der Weg zur Outdoorküche ist sehr lang und führt durch das WZ, was man ja grundsätzlich vermeiden möchte. Gern Terrasse vom Kühlschrank und Küche so nah wie möglich, zur Not noch Esszimmer dazwischen.
Wo die Reise hingehen könnte: Gästebad im EG auch Familien-WC, Halle einkürzen, gerade oder anmutigende 2-fach gewendelte Treppe… dort wo die Treppe ist, das WZ. Oben verschiebt es sich auch. Vorteil: Treppe/Laufweg präsenter, Terrasse von dem Essbereich aus, keine Trennung der Sichtachse durch den Gartenanbau.
Allerdings spart man auch nur plusminus 150qm, dann wäre man bei 1,8 Mio.
Gute Impulse von dir, Danke! Ich durchdenke die Impulse einmal und nehme auch die für eine neue Planung mit auf.
 
T

Trockentest

Also noch einmal zusammengefasst:
Danke für euer ganzes Feedback!
Es macht offenbar nur Sinn, einmal bei 0 anzufangen. Ich kritzele mir eine grobe Raumaufteilung für 220-240 m² mit einigen von euren Impulse auf und sollte damit dann zu einem neuen Architekten/GU gehen. Und die ganze Zeit mehr auf das Budget achten. Die bisherige Planung ist dann Leergeld gewesen. So ärgerlich das auch ist.
 
Y

ypg

Was in der Quintessenz den Hausbau teuer macht (Technik ausgenommen)
Keller, Wohnfläche, aufwändige Statik, hochwertige Badausstattung (Fliesen), große Fensterflächen, verspielte Fassaden (auch Ecken und Kanten), verwinkeltes Dach, Gauben! Naja, dann noch Hochwertiger Bodenbelag und vergoldete Wasserhähne, Marmorwände…
Vorräte braucht man 3qm, Hauswirtschaftsraum 6, TK ca. 10qm (ist alles schon etwas größer als Standard). Ein Haus wird nicht hochwertiger, wenn man den Vorratskeller kongruent zum Haus mitwachsen lässt. Hobby reicht auch einer für die Familie. Eventuell noch Fitness/Sauna beim Bad einplanen, zumindest den Platz… denn dennoch könnte der Keller halbiert werden. Büro noch in den Keller? Oder doch ganz ohne Keller und eher die Nebenräume in einen Anbau unterbringen. Das spart schon mal eine Ebene, und ebenerdige Nebenräume sind auch wertig. Hobby und Büro könnte auch unters Dach ;)
 
kbt09

kbt09

Ja - der Keller ist zu groß. Da gebe ich auch Recht. Wie meinst du das mit der Terrasse und der Küche?
Als kurze Erklärung ... beachte mal den Weg von der Küche zur Terrasse, vorbei an Esstisch und dann irgendwann im Wohnzimmer kann man die Terrasse betreten. Überlege mal den Gedanken ... Kochen eher Richtung Terrasse .. insbesondere im Sommer sehr praktisch, mit Kindern auch, wenn die mal schnell aus dem Garten kommmend etwas zu essen oder trinken wollen usw.
 
P

Pinkiponk

Deswegen verwundert es mich, dass die Kosten so hoch sind - oder braucht ein Elektriker eine Stunde, um eine Steckdose zu verbauen?
Vielleicht verlangt der Elektriker, unabhängig von seinem Aufwand und den Materialkosten, so viel Geld, weil Ihr ein so großes Haus baut? Es ist nur eine Vermutung, da ich es von meinem Vater, der einen Handwerksbetrieb (nicht Elektrik) hatte, so kannte, dass er von "Fast-Schloßbesitzern", unabhängig vom Aufwand, auch mehr Geld verlangte als von der alleinstehenden Rentner-Omi.
 
Zuletzt aktualisiert 07.12.2025
Im Forum Bauplanung gibt es 5073 Themen mit insgesamt 100820 Beiträgen


Ähnliche Themen zu Großzügige Villa: Empfehlungen & Kosteneinschätzung
Nr.ErgebnisBeiträge
1Smarthome KNX Automatisierung anhand des Grundriss möglich? - Seite 481
2Ist KNX Smart-Home die Zukunft? - Seite 8571
3KNX System - Ist dieses Produkt das richtige für mich? - Seite 14239
4Elektro-Angebot mit KNX - Erfahrungen? - Seite 599
5KNX nur vorsehen, aber wie? Welche Rollladenmotoren? - Seite 345
6KNX mit normalen Tastern und 230V - Seite 320
7KNX im Einfamilienhaus für moderne Luft-Wasser-Wärmepumpe notwendig? - Seite 15104
8KNX-Planung bei Bau mit Bauträger 23
9KNX Angebote, was darf es kosten? 51
10Wie Tür-/Fensterkontakte/Taster/LEDs smart verkabeln? HA vs Dali-2 vs KNX etc. 13
11Geplanter Anbau! Grundrissentwurf ok? Erfahrungen? 19
12Abschätzung Kosten KNX Automation - Seite 218
13KNX vom Elektriker ohne Programmierung - Seite 565
14KNX Hausautomation Erfahrungen – Welche Alternativen? 31
15SmartHome ein muss? myGekko, KNX oder Z-Z-Wave? - Seite 259
16KNX Visualisierung, Türkommunikation und Kosten 18
17Planung eines einfachen KNX-Systems - Welche Möglichkeiten gibts? - Seite 778
18Smarthome System für Einfamilienhaus, Rollläden, Licht KNX / Free@Home 57
19KNX-Einstieg - Verständnisfragen - Seite 283
20KNX Erfahrungen - Installation in Einfamilienhaus? 95

Oben