ᐅ Erster Entwurf Einfamilienhaus 160m2 - Bitte um Feedback
Erstellt am: 26.02.17 12:55
Markus1304 26.02.17 12:55
Hallo zusammen,
ich bin seit Monaten stiller Mitleser in diesem Forum. Nun geht es bei uns darum sich für einen Bauträger zu entscheiden. Ein Architekt kommt aus diversen Gründen nicht in Frage. Unser favorisierter Bauträger hat uns folgenden ersten Entwurf zur Verfügung gestellt.
Bebauungsplan/Einschränkungen: es gibt keinen Bebauungsplan
Größe des Grundstücks: 500qm
Hang
Grundflächenzahl
Geschossflächenzahl
Baufenster, Baulinie und -grenze
Randbebauung
Anzahl Stellplatz: 2 (gerne auch hintereinander)
Geschossigkeit: 1,5
Dachform: Satteldach
Stilrichtung
Ausrichtung
Maximale Höhen/Begrenzungen
weitere Vorgaben
Anforderungen der Bauherren
Stilrichtung, Dachform, Gebäudetyp
Keller, Geschosse: keinen Keller
Anzahl der Personen, Alter: 2 (31 und 32 Jahre), 2 Kinder geplant
Raumbedarf im EG, OG: Wohnzimmer, Gäste/Arbeitszimmer, 2 Kinderzimmer, Schlafzimmer
Büro: Familiennutzung oder Homeoffice?: Beides
Schlafgäste pro Jahr: 10
offene oder geschlossene Architektur: offen
konservativ oder moderne Bauweise: gerne modern
offene Küche, Kochinsel: ja
Anzahl Essplätze: 8
Kamin: nein
Musik/Stereowand: ja
Balkon, Dachterrasse: nein
Garage, Carport: Carport, mit Abstellraum
Nutzgarten, Treibhaus
weitere Wünsche/Besonderheiten/Tagesablauf, gern auch Begründungen, warum dieses oder das nicht sein soll
Hausentwurf
Von wem stammt die Planung:
-Planer eines Bauunternehmens
Was gefällt besonders? Warum?
Was gefällt nicht? Warum?
Preisschätzung lt Architekt/Planer: 260.000€
Persönliches Preislimit fürs Haus, inkl Ausstattung: 280.000€
favorisierte Heiztechnik: Gasbrennwerttherme
Wenn Ihr verzichten müsst, auf welche Details/Ausbauten
-könnt Ihr verzichten:
-könnt Ihr nicht verzichten: Sonnenlicht



ich bin seit Monaten stiller Mitleser in diesem Forum. Nun geht es bei uns darum sich für einen Bauträger zu entscheiden. Ein Architekt kommt aus diversen Gründen nicht in Frage. Unser favorisierter Bauträger hat uns folgenden ersten Entwurf zur Verfügung gestellt.
Bebauungsplan/Einschränkungen: es gibt keinen Bebauungsplan
Größe des Grundstücks: 500qm
Hang
Grundflächenzahl
Geschossflächenzahl
Baufenster, Baulinie und -grenze
Randbebauung
Anzahl Stellplatz: 2 (gerne auch hintereinander)
Geschossigkeit: 1,5
Dachform: Satteldach
Stilrichtung
Ausrichtung
Maximale Höhen/Begrenzungen
weitere Vorgaben
Anforderungen der Bauherren
Stilrichtung, Dachform, Gebäudetyp
Keller, Geschosse: keinen Keller
Anzahl der Personen, Alter: 2 (31 und 32 Jahre), 2 Kinder geplant
Raumbedarf im EG, OG: Wohnzimmer, Gäste/Arbeitszimmer, 2 Kinderzimmer, Schlafzimmer
Büro: Familiennutzung oder Homeoffice?: Beides
Schlafgäste pro Jahr: 10
offene oder geschlossene Architektur: offen
konservativ oder moderne Bauweise: gerne modern
offene Küche, Kochinsel: ja
Anzahl Essplätze: 8
Kamin: nein
Musik/Stereowand: ja
Balkon, Dachterrasse: nein
Garage, Carport: Carport, mit Abstellraum
Nutzgarten, Treibhaus
weitere Wünsche/Besonderheiten/Tagesablauf, gern auch Begründungen, warum dieses oder das nicht sein soll
Hausentwurf
Von wem stammt die Planung:
-Planer eines Bauunternehmens
Was gefällt besonders? Warum?
Was gefällt nicht? Warum?
Preisschätzung lt Architekt/Planer: 260.000€
Persönliches Preislimit fürs Haus, inkl Ausstattung: 280.000€
favorisierte Heiztechnik: Gasbrennwerttherme
Wenn Ihr verzichten müsst, auf welche Details/Ausbauten
-könnt Ihr verzichten:
-könnt Ihr nicht verzichten: Sonnenlicht
Markus1304 26.02.17 13:11
Sorry, leider habe ich das Thema versehentlich zu früh erstellt und kann es nun nicht mehr bearbeiten. Deswegen hier noch Ergänzungen:
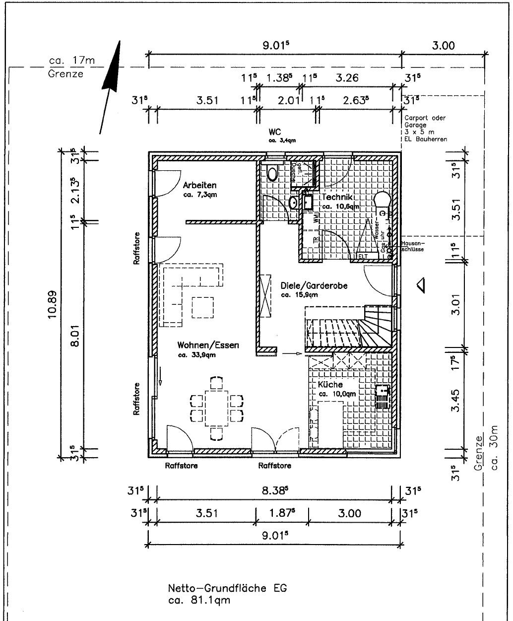
Das Grundstück muss noch geteilt werden (rote Linie wird die zukünftige Grundstücksgrenze) und wir haben die Hausnummer 3. Die Bestandsimmobilie wird aktuell abgerissen.
Unser Neubau soll möglichst weit in den Nordosten des Grundstückes gesetzt werden, um den Sonnenverlauf entsprechend zu nutzen.
Was gefällt besonders? Warum?: Grundsätzlich Ausrichtung der Zimmer.
Was gefällt nicht? Warum?:
Küche, Ess-, Wohnzimmer aus unserer Sicht zu klein. Dieses resultiert aus der Tatsache, dass wir ein Büro unterbringen müssen. Ansonsten könnte sich das Wohnzimmer über die ganze Westfront erstrecken. Die größte Baustelle ist also die Raumanordnung im EG. Ich bin schon kurz davor, das Arbeits/Gästezimmer in den Spitzboden zu verlegen, der irgendwann ausgebaut werden könnte.
Schlafzimmer und Bad sollen noch in den Süden versetzt werden (Tausch mit den Kinderzimmern).
Fensterkonfiguration muss noch angepasst werden, insbesondere doppelte bodentiefe Fenster im OG.
Über Anmerkungen und Verbesserungsvorschläge freue ich mich.
Viele Grüße
Das Grundstück muss noch geteilt werden (rote Linie wird die zukünftige Grundstücksgrenze) und wir haben die Hausnummer 3. Die Bestandsimmobilie wird aktuell abgerissen.
Unser Neubau soll möglichst weit in den Nordosten des Grundstückes gesetzt werden, um den Sonnenverlauf entsprechend zu nutzen.
Was gefällt besonders? Warum?: Grundsätzlich Ausrichtung der Zimmer.
Was gefällt nicht? Warum?:
Küche, Ess-, Wohnzimmer aus unserer Sicht zu klein. Dieses resultiert aus der Tatsache, dass wir ein Büro unterbringen müssen. Ansonsten könnte sich das Wohnzimmer über die ganze Westfront erstrecken. Die größte Baustelle ist also die Raumanordnung im EG. Ich bin schon kurz davor, das Arbeits/Gästezimmer in den Spitzboden zu verlegen, der irgendwann ausgebaut werden könnte.
Schlafzimmer und Bad sollen noch in den Süden versetzt werden (Tausch mit den Kinderzimmern).
Fensterkonfiguration muss noch angepasst werden, insbesondere doppelte bodentiefe Fenster im OG.
Über Anmerkungen und Verbesserungsvorschläge freue ich mich.
Viele Grüße
Nordlys 26.02.17 13:53
Profigrundriss. Meine five Cents. Unten ist es funktional, da ist nichts zu klein. Büro braucht aber keine Tür raus. Ein noch grössres WZ ist nicht nötig.
Oben Ankleide weg, dafür Schlafzimmer den Tick größer, den jetzt der Wandwinkel abschneidet. Ankleide wird Abstellraum. Ohne Keller brauchst Du das unbedingt. Reisekoffer, Staubsauger, Wintersachen, Wäsche, und und. Der kleine eingeplante Absteller kann weg. Gänzlich. Dafür in die Nische ein Einbauschrank.
Sparpotentiale seh ich folgende: Nur ein Waschbecken, wozu zwei? Wozu oben Rollläden? Du wirst sparen müssen. Bei 260 Baupreis musst Du bei 280 Budget noch 20 runter.
Oben Ankleide weg, dafür Schlafzimmer den Tick größer, den jetzt der Wandwinkel abschneidet. Ankleide wird Abstellraum. Ohne Keller brauchst Du das unbedingt. Reisekoffer, Staubsauger, Wintersachen, Wäsche, und und. Der kleine eingeplante Absteller kann weg. Gänzlich. Dafür in die Nische ein Einbauschrank.
Sparpotentiale seh ich folgende: Nur ein Waschbecken, wozu zwei? Wozu oben Rollläden? Du wirst sparen müssen. Bei 260 Baupreis musst Du bei 280 Budget noch 20 runter.
Maria16 26.02.17 17:12
Hallo Markus, warum wollt ihr euer Schlafzimmer auf die Südseite legen, obwohl ihr dort nur Schlafen werdet? Dafür Kinder auf die Nordseite, wohl auch nur mit Nordfenster? Das geht meiner Meinung nach gar nicht, die Kinder sollen sich in den Zimmern doch irgendwann auch mal tagsüber aufhalten können, ohne in einem finsteren Loch zu sitzen.
Die aktuellen Maße im Elternschlafzimmer finde ich fast zu beengt. Neben dem Bett bleibt bei 2 m Breite nur noch 60 cm auf jeder Seite übrig (Putz geht aber auch noch weg). Die Ankleide, zusätzlich zum Schrankplatz im Schlafzimmer, finde ich auch ungünstig; so müsst ihr ja trotzdem noch am länger Schlafenden vorbei, falls ihr die Ankleide wolltet, um besser unabhängig voneinander aufstehen zu können. (ich persönlich steh übrigens auf, geh erst ins Bad und danach zurück zum Kleiderschrank, um halbwegs wach meine Kleiderauswahl zu treffen; solltet ihr ähnliche Angewohnheiten haben, würdet ihr mindestens zwei mal am Schlafenden vorbeischleichen -> hinterfragt mal, wofür genau ihr diese Ankleide wollt und ob sie nicht sinnvoller vom Flur aus erschlossen oder vielleicht sogar nur als Abstellraum genutzt werden kann.
Im EG find ich das Gäste-WC sehr schwierig; es gibt kaum eine Ablagemöglichkeit, um seine Klamotten während des Duschens trocken zu lagern. Zugang zur Dusche ist reichlich eng am WC vorbei und eine nach außen schwingende Glastür dürfte vom WC blockiert werden, ihr braucht vermutlich eine Lösung nach Innen oder ggf Vorgang.
Kochen/ Essen/Wohnen würd ich prinzipiell nicht schlecht geschnitten finden, aber der Abstand zwischen Couch und TV könnte mit 3,5 m eher an der unteren Grenze sein.
Was die Küche angeht: solltet ihr eine richtige Insel, und nicht wie eingezeichnet eine Halbinsel wollen, lasst euch jetzt schon mal eine Küche planen. Dafür dürfte es im aktuellen Grundriss etwas zu eng werden.
Die aktuellen Maße im Elternschlafzimmer finde ich fast zu beengt. Neben dem Bett bleibt bei 2 m Breite nur noch 60 cm auf jeder Seite übrig (Putz geht aber auch noch weg). Die Ankleide, zusätzlich zum Schrankplatz im Schlafzimmer, finde ich auch ungünstig; so müsst ihr ja trotzdem noch am länger Schlafenden vorbei, falls ihr die Ankleide wolltet, um besser unabhängig voneinander aufstehen zu können. (ich persönlich steh übrigens auf, geh erst ins Bad und danach zurück zum Kleiderschrank, um halbwegs wach meine Kleiderauswahl zu treffen; solltet ihr ähnliche Angewohnheiten haben, würdet ihr mindestens zwei mal am Schlafenden vorbeischleichen -> hinterfragt mal, wofür genau ihr diese Ankleide wollt und ob sie nicht sinnvoller vom Flur aus erschlossen oder vielleicht sogar nur als Abstellraum genutzt werden kann.
Im EG find ich das Gäste-WC sehr schwierig; es gibt kaum eine Ablagemöglichkeit, um seine Klamotten während des Duschens trocken zu lagern. Zugang zur Dusche ist reichlich eng am WC vorbei und eine nach außen schwingende Glastür dürfte vom WC blockiert werden, ihr braucht vermutlich eine Lösung nach Innen oder ggf Vorgang.
Kochen/ Essen/Wohnen würd ich prinzipiell nicht schlecht geschnitten finden, aber der Abstand zwischen Couch und TV könnte mit 3,5 m eher an der unteren Grenze sein.
Was die Küche angeht: solltet ihr eine richtige Insel, und nicht wie eingezeichnet eine Halbinsel wollen, lasst euch jetzt schon mal eine Küche planen. Dafür dürfte es im aktuellen Grundriss etwas zu eng werden.
kbt09 26.02.17 17:23
Finde den Grundriss auch recht funktional und den Wohnbereich, weil eben gut geschnitten und zoniert, auch nicht zu klein.
Allerdings würde ich dringend raten, die Küche konkret zu planen, denn die Position Terrassentür halte ich für unpraktisch und generell finde ich es zu wenig Fensterfläche im Süden dieses Allraums.
Schlafzimmer ... da würde ich für die Ankleide einfach die Wand mit der Schlafzimmertür gerade durchziehen und nicht diese Ecke produzieren. 250er Kleiderschränke kann man auch gut aus Ikea-Pax zusammenstellen.
Die Kinderzimmer würde ich genau dort lassen, wo sie jetzt sind. Warum ihnen Nordfenster zuordnen?
Allerdings würde ich dringend raten, die Küche konkret zu planen, denn die Position Terrassentür halte ich für unpraktisch und generell finde ich es zu wenig Fensterfläche im Süden dieses Allraums.
Schlafzimmer ... da würde ich für die Ankleide einfach die Wand mit der Schlafzimmertür gerade durchziehen und nicht diese Ecke produzieren. 250er Kleiderschränke kann man auch gut aus Ikea-Pax zusammenstellen.
Die Kinderzimmer würde ich genau dort lassen, wo sie jetzt sind. Warum ihnen Nordfenster zuordnen?
Nordlys 26.02.17 19:17
Und so wie es jetzt ist, sind alle Nassräume im Norden. Das macht den Bau günstiger, Wasser, Abwasser...
Ähnliche Themen