Bungalow mit Satteldach, Randbebauung, 8×17 Meter

4,40 Stern(e) 7 Votes
Zuletzt aktualisiert 20.12.2025
Sie befinden sich auf der Seite 23 der Diskussion zum Thema: Bungalow mit Satteldach, Randbebauung, 8×17 Meter
>> Zum 1. Beitrag <<

kbt09

kbt09

Graben ist also Bestandteil dieser 6 m Abstand zur Grundstücksgrenze? Die rote Linie:

bedeutet also Baugrenze und dann 6 m, wovon die ersten 1 bis 2 m abfallen und die restlichen 4 m sozusagen tiefer liegen?

Und ja, versuche mal die Baumposition etwas genauer zu bestimmen.
 
Grit Stephan

Grit Stephan

Graben ist also Bestandteil dieser 6 m Abstand zur Grundstücksgrenze? Die rote Linie:
bedeutet also Baugrenze und dann 6 m, wovon die ersten 1 bis 2 m abfallen und die restlichen 4 m sozusagen tiefer liegen?

Und ja, versuche mal die Baumposition etwas genauer zu bestimmen.
Nein, von den 6 Metern, sind vielleicht 1-2 Meter Gefälle, und der restliche Graben sollte Gemeinde gehören.
Aber genau genommen kann das nur eine offizielle Stelle sagen. Also liegen 4 Meter oben. Aber das ist dann die Reihe, die ja noch bepflanzt werden muss, mit Bäumen.
Heißt das Haus steht dann nah am Graben und an den Bäumen. Daher war unser Gedanke, eher an die Baugrenze nördlich das Haus zu setzen.
Ich messe dann noch und vlt noch Mal ein Bild dazu..

Und hier der Grundriss...
Wie gesagt, Stube Küche sind so ok.. Rest... nicht wirklich. Auch die Tür vom Bad in Hauswirtschaftsraum, ich könnte damit leben, Stephan findet das blöd.Wäre ja der Waschmaschinenraum direkt am Bad...Aber die Frage wie das Bad dann aussehen soll...
Auch ob der AR so wirklich Sinn macht... Und Büro eher von wo anders aus zu betreten, nicht von Küche aus.
Grundriss eines Hauses mit Küche, Wohnzimmer, Flur, Schlafzimmer, Bad, Kind 1, Kind 2, Büro, AR, HAR
 
Grit Stephan

Grit Stephan

Also ich weiß nicht, wie ich es anders beschreiben könnte.. Die 6 m Bebauungsgrenze liegen zum Teil oben, aber 1-2 Meter sind Gefälle. Das Gefälle ist Richtung Süd Ost flacher und Richtung Westen steiler...

Und da das Haus zusätzliche Gründung braucht, um auf die Höhe des Abwasserschachtes auf öffentlicher Straße zu kommen, würde ich ungern dort an Bebauungsgrenze bauen. Weil dann der Graben evtl auch zugeschüttet befestigt werden müsste...

(Unsere Anliegerstraße geht erst in 20 Meter in diese Straße. )

Wenn wir also Nähe des Grabens bauen, müssen wir wirklich noch Mal messen, wie weit wir hinter könnten, ohne daß es mit dem Graben und zusätzlicher Gründung Probleme geben könnte.
Aber das müsste ich für deine Grundriss genauso prüfen wir für meinen Quadratbungalow. Weil zu weit vorn, würde ich den auch nicht sehen ...

Und der Baum steht etwa 20 oder 22 Meter von der Straßen Ecke auf der Bebauungsgrenze. Und etwa auch 20 Meter von der Grundstücksecke in Süd/Ost.

Mit Handy kann ich keine Daten hochladen... Also ohne Bild, vlt schaff ich es heute Abend.
 
11ant

11ant

Aber paar 1000 mehr sind es schon. Allein zwischen Winkelbungalow und Rechteck. Und in dem Fall ist das Dach noch Mal größer, als bei 132qm Wohnfläche, da ja nicht nur Wohnfläche bedacht wird.
Bzw die innere Fläche zwischen den 3 Rechtecken vermutlich gleich auch Bodenplatte braucht.
Für den Maurer sind die Ecken nur wenig Mehraufwand. Das Dach wird hier auch nicht kompliziert. Die Terrasse zu überdachen oder nicht, da zwingt Dir der Grundriss nichts auf. Die Bodenplatte der Terrasse - sofern man da eine will - wird aus thermischen Gründen nicht am Stück mit der des Hauses zusammen gemacht.
 
Grit Stephan

Grit Stephan

@kbt09 wie gewünscht, ein Bild vom Graben...
Baum am Rand eines grasbewachsenen Huegel in offener Feldlandschaft bei Sonnenschein.


möglicherweise werden wir etwas auffüllen, hier ist das Gefälle etwas flacher. Weiter hinten ist es steiler. Aber lieber wäre es uns schon, wenn Haus eben nicht so nah am Graben steht.
 
Grit Stephan

Grit Stephan

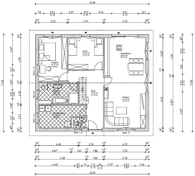
Hallo,
um das Thema im Grunde zu vervollständigen, anbei unsere Umsetzung.

Danke an Euch alle für eure Ideen und Tipps.


Detaillierter Grundriss eines Wohnhauses mit Wohnzimmer, Küche, Flur, Schlafzimmer und Bad.


Der Rohbau steht und wir sind sehr glücklich mit unserer Entscheidung. Es ist kein 8x17 Bungalow geworden.
Alle Räume im EG unterzubringen, dafür gab es einfach keine Lösung die uns komplett gefallen hätte.
Aber meine Terrassentüren statt Fenster habe ich zum Garten und Graben hin umgesetzt.


Architekturmodell eines modernen, mehrstöckigen Hauses mit großen Glasfronten und Terrassen.

hier im Bild fehlen noch 3 Wände, die in Trockenbau gefertigt werden.


Dachgeschoss:

Holz-Dachstuhlrahmen auf Baustelle mit Gerüst und Baufolie auf dem Boden

Wir haben uns für ein ausbaufähiges Satteldach entschieden (Wohnfläche ca. 50 qm). Danke an Nordlys!!
Wird "gleich" gedämmt. Die 2 Kinderzimmer bauen wir in Eigenleistung ins Dachgeschoss (Trockenbau, Fußbodenheizung). Heizung und Elektrik entsprechend vorbereitet und von uns auch selbst umsetzbar. Jeweils in die Giebelseite kommen gleich große bodentiefe Fenster . Und Dachfenster für Diele(Treppenaufgang) und kleines Bad oben sind drin.



Erdgeschoss:
Das im EG angegebene Kinderzimmer1 wird nach Fertigstellung des Dachgeschosses mein Arbeitszimmer.

Die "Wohnlandschaft" hat von früh bis Abends Sonne. Das war ein Gedanke den ich aus dem Forum in unsere Planung einbezogen habe. Licht auch aus Süden in die Stube zu holen.

Lediglich das Schlafzimmer hätte ich vielleicht 10 bis 20 cm breiter machen sollen. Aber mehr so aus Gefühl. Mehr Platz wird nicht benötigt. (Der lange Schrank ist auch nur vorübergehend im Schlafzimmer, der kommt ins Arbeitszimmer.)

Die Wohnlandschaft wirkt sicherlich sehr "rechteckig". Aber mit Einrichtung und Gestaltung der Wände wird es aufgelockert. Und die beiden (über Ecke verbundenenen) Terrassen, zu betreten von Terrassentür-Küche und aus Terrassentür-Mitte Stube sind für uns wesentlicher Teil dieser Wohnlandschaft und werden entsprechend mit Einrichtung und teilweise Überdachung umgesetzt.

Die Gäste-WC Tür haben wir verbreitet. In der Zeichung noch schmal angegeben.

Viele Grüße

Ergänzung, die Pappel wurde gefällt. War so bereits in Bebauungsplan vorgesehen mit anderer neu Bepflanzung.
 
Zuletzt bearbeitet:
Zuletzt aktualisiert 20.12.2025
Im Forum Grundrissplanung / Grundstücksplanung gibt es 2552 Themen mit insgesamt 88531 Beiträgen


Ähnliche Themen zu Bungalow mit Satteldach, Randbebauung, 8×17 Meter
Nr.ErgebnisBeiträge
1Grundriss Neubau Einfamilienhaus: Fenster/Türen/Innenwände Größe/Anordnung ok? 20
2Bungalow 135qm: Grundriss + Fenster - Seite 7104
3Grundriss - Anregungen & Kritik erwünscht! - Seite 326
4Umbau geschlossene in Offene Küche 15
5Terrassentür ungleich Fenster, oder? 21
6Grundriss Halboffene Küche mit großem Essbereich - Detailfragen - Seite 212
7Grundriss Einfamilienhaus geplant, Fenster gefallen uns 43
8Bungalow mit 140qm und Garage im Grundriss 13
9Planung Wohnraum & Küche eines Doppelhaushälfte in Nürnberg 13
10Küchenplanung - Ideenfindung und Planung Küche Neubau 20
11Küche & Preis - Schnelle Einschätzung erwünscht!! - Seite 11165
12Geplanter Küche Ideen oder Anmerkungen? - Seite 442
13Optimierung Grundriss freistehendes Einfamilienhaus 155qm - Seite 1082
14Grundriss kleiner Nordhang Einfamilienhaus 170m2 20
15Grundriss EFH165 qm erster Entwurf - Architekt unzufrieden - Seite 774
16Grundriss Traumhaus - 173m² mit 3 Kinderzimmern - Seite 14131
17Einfamilienhaus mit Keller Massivbau Grundriss-Bewertung 16
18Eure Meinung zum Grundriss für das EG 28
19Meinung zum Grundriss eines geplanten Bauhauses - Seite 323
20Grundriss für Einfamilienhaus 12

Oben