Kurz vor Kaufzusage einer ETW - Fragen und Zweifel

4,30 Stern(e) 3 Votes
Zuletzt aktualisiert 20.11.2025
Sie befinden sich auf der Seite 20 der Diskussion zum Thema: Kurz vor Kaufzusage einer ETW - Fragen und Zweifel
>> Zum 1. Beitrag <<

U

Unsure

Mein Balkon ist nicht so gross. Ca 6m2. Reicht mir aber. Ich kann draußen sitzen.

Meine Mutter hatte lange einen Balkon von 18m². Der war auf verschiedenen Ebenen begrünt und sah super aus.
Kannst du von dem Balkon bitte mal ein Foto machen, wenn es ok für dich ist? Das scheint "standardgröße" aktuell zu sein und ich kann mir das nicht so richtig vorstellen. Aktuell haben wir einen riesigen Balkon - dürften auch so an die 16-18 qm2 sein.
 
B

Bertram100

Mein Balkon ist im Moment nackig. Da steht gar nichts drauf, noch nicht einmal1 Pflanze. Ich ziehe demnächst um. Im Internet kannst du dir ja mal begrünte Balkone angucken.
 
N

NoggerLoger

Kammer wollten wir einplanen, geht aber nicht, außer jemand hat ne Idee . Haben aber eine große Küche und einen Schrank fürs Schlafzimmer geplant. Waschmaschine und Trockner kommen in den Trockenraum. Wir bekommen viel licht da Südausgerichtet und keine Häuser die was verdecken. 1OG wäre für uns nichts wegen den geplanten Kindern. Ansonsten haben die oberen Wohnungen eine hammer Aussicht darauf bin ich echt neidisch.

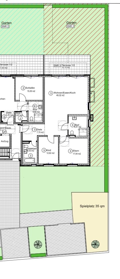
Hier noch der alte Grundriss (3 Zimmer) aber mit Garten. Würde dann auch updates zur Einrichtung posten falls Interesse besteht.

Grundriss eines Hauses mit Wohnen/Essen/Koch, Schlafen, Eltern, Kind; Terrasse, Garten.
 
Zuletzt bearbeitet:
U

Unsure

Ich hatte die Frage mal irgendwo hier gestellt, finde es aber nicht mehr. Welche Gründe gibt es das ein Bauträger heute noch mit KfW70 wirbt? Ich dachte KfW55 wäre Standard. Ist das negativ zu bewerten, wenn noch nach dem "alten Standard" (müsste Energieverordnung 2016) gebaut wird?
 
N

NoggerLoger

Unsere Wohnung wird nach Energieeinsparverordnung 2016 gebaut. Die Mehrkosten bekommst du höchstens durch den kfw Zuschuss raus. Wir hatten die letzten Jahre keinen richtigen Winter mehr dafür aber heiße Sommer, da bringen dickere Steine mehr als Dämmung. Die ganzen KFW 55 Wohnungen wurden hier mit Fertigbauteilen gebaut. Großen Nachteil zwischen Energieeinsparverordnung 16 und KFW sehe ich nicht.
 
Zuletzt aktualisiert 20.11.2025
Im Forum Kaufberatung / Substanzbewertung gibt es 519 Themen mit insgesamt 11994 Beiträgen


Ähnliche Themen zu Kurz vor Kaufzusage einer ETW - Fragen und Zweifel
Nr.ErgebnisBeiträge
1KFW 70 oder nach Energieeinsparverordnung 2014 bauen 42
2 Energieeinsparverordnung-Nachweis vs. Energieeinsparverordnung-Nachweis + KfW-70-NAchweis 13
3Kfw-Kredit in 2017 bei einem Energieeinsparverordnung 2016 Haus 17
4Energieeinsparverordnung 2016 oder KFW 55 für Bungalow mit Luft-Wasser-Wärmepumpe & Kontrollierte-Wohnraumlüftung optional Photovoltaik - Seite 447
5Ist die Energieeinsparverordnung 2014 ein KfW Standard? 24
6Bewertung des KfW 60 Hausvertrags: Kreditprüfung für Haus 12
7Luftwärmepumpe Nibe f 370 bei Hausbau als KfW 55 11
8Welches Heizungssystem für unser Kfw 70 Haus ohne Keller? 15
9Welche Heizung bei kfw 55 empfehlenswert? - Seite 658
10Muss man zwingend nach Energieeinsparverordnung (2009) bauen? 12
11Neue KfW-Bedingungen ab 04/2016 - Seite 474
12Neue Energieeinsparverordnung ab 2016 -> was bauen? 30
132016 KfW-Effizienzhaus 55 nach Referenzwerten (U-Werte) - Seite 539
14Energieeinsparverordnung 2014 - Gastherme ohne Solar? - Seite 238
15KFW 70 Förderung noch 2015 - Seite 224
16Informationen wie Energieeinsparverordnung 2016 erreicht werden kann? - Seite 214
17Preisunterscheid Neubau , KfW 70, KfW 55 13
18KFW 55 in Teilbeheiztem Keller - Kaltkeller - Seite 431
19Baukosten um KFW 55 Förderung erreichen zu können - Seite 429
20Kamin ab 01.04.16 bei KFW 55 nicht mehr erlaubt ? 19

Oben