Kostenschätzung m2 Wohnfläche Hanghaus mit Keller und Garage

5,00 Stern(e) 7 Votes
H

Herrarchi

Hallo Forumsgemeinde,

wir planen einem Hang eine unterkellerten Bungalow zu errichten. Der Keller stammt nicht einmal aus der Topographie, sonder n daher, dass das Gebäude maximal 117 m2 Aussenabmessungen haben darf. Gibt der Bebauungsplan halt vor.
Um die Realisierung des Projektes einschl. erforderlichem Grundstückskaufüberhaupt realisieren zu können, möchtemich vorab auf der sicheren Seite liegend die Gesamtkosten abschätzen.

Das Grundstück wäre nicht oder nur teilweise erschlossen und soll mit einem unterkellerten Bungalow bebaut werden. Den habe ich einmal grob entworfen.

Wir sind zwei Erwachsene Ü50er und ein Kind. Dazu noch ein großer Hund.

Wie gesagt, es muss isch meine Grobkosteneinschätzungauf Basis der aktuellen Marktsituation handeln. Es geht eigentlich erst einmal darum, ob wir dasprojekt mitansehen Mitteln überhaupt umsetzten können. Techn. Details sollen erst einmal außen vor bleiben und werden dann im Nachgang diskutiert.

Für das Grundstück setze ich aktuell psch. 100.000 Euro an.

Unser späteres Ausstattungsniveau soll Standard bis leicht gehoben sein.

Vom Grundsatz geht es mir auch erst einmal darum, ob wir das mit unseren Mitteln so verwirklichen können. Nur grob.

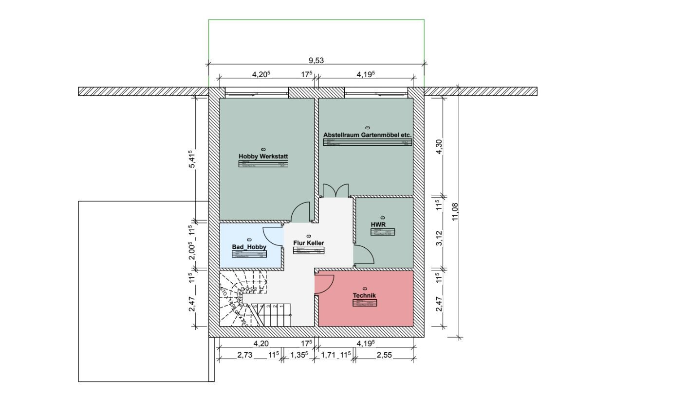
Deals EG wird bei ca. 90 m2 Wohnfläche liegen. Hinzu würde der Keller kommen, der auf jeden Fall einmal zu Wohnzwecken nutzbar sein sollte. Der hätte dann auch um die 80 m2.

Der Keller sollte auf Grund der Hanglage massiv werden. Auf diesen soll dann die Kellerdecke auch das Grundgerüst für das EG darstellen. Dieses würde ich dann gerne in Holzrahmenbauweise errichten lassen.

Bei der Graage bin ich eigentlich noch nicht klar, ob Holzrahmenbau oder massiv.

Eigenleistung würde ich eigentlich bis auf die Außenanlagen, Wand- und Bodenbeläge erst einmal nicht mit einplanen wollen. Wenn da mehr möglich ist gut, aber safe ist das halt nicht.

Insgesamt stellt dies auch nur eine Machbarkeitsabschätzung dar, bevor wir uns mit einem Architekten zusammen setzen.

Sollte das finanziell nicht umsetzbar sein, so müssen wir uns Alternativen umsehen.

Wenn jemand dort seine persönliche Einschätzung abgeben möchte, so wäre ich dafür dankbar.

Grüße
Modernes weißes Einfamilienhaus mit grauem Dach, gepflastertem Hof, Garage und grünem Garten rechts.

Modernes weißes Einfamilienhaus auf grünem Hang mit Zufahrt und Terrasse

Moderne weiße Villa mit Flachdach, Glasfront, Terrasse und Zufahrt auf grünem Hang.

Grundriss eines Hauses mit Wohnzimmer, Esszimmer, Küche, Bad, Schlafzimmer, Kinderzimmer, Garage.

Grundriss Kellergeschoss: Hobby-Werkstatt, Abstellraum, HWR, Technik, Flur Keller.

Lageplan eines Grundstücks mit Grenzlinien, Parzellen und Linien im Kartenlayout
 
P

Pitiglianio

Du willst wirklich auf zwei verschiedene Bauweisen (massiv+Holzrahmen) deinen Hausbau realisieren?
Tatsächlich habe ich vor gut 20 Jahren auch an einem Hang so gebaut. Keller in Massivbauweise und oben drauf eine 1,5 Geschoss in Holzrahmenbau stellen lassen.
Aber nur, weil ich den Keller selbst rausgemauert hatte. Von daher dann auch später nur mit einem einzigen GU zu tun hatte. In deinem Fall (du möchtest ja außer Bodenbeläge keine Eigenleistung einbringen) stelle ich mir die Koordination schwierig vor. Zumal der Keller ja auch zu Wohnzwecken genutzt werden soll.
 
K

KarstenausNRW

Was bedeutet nicht oder nur teilweise erschlossen? Ein nicht erschlossenes Grundstück ist nicht bebaubar...

Unabhängig davon, was Du damit meinst, sind die Baukosten von der Bauweise unabhängig. Rechne einfach mal mit 3,500€/qm Wohnfläche als Baukosten - dann bist Du halbwegs sicher. Also rund 600.000€ fürs Haus.
Dazu die Erschließung bzw. Baunebenkosten (von Erschließung über Architekt bis hin zu Bodenarbeiten/Gründung) und Garage.

Ich sehe das Gesamthaus ohne Grundstück aber mit Außenanlage und Garage bei einer 3/4 Million.
 
S

Sunshine387

Ich schätze auch das du zwischen 700.000€-800.000€ + Grundstück mit Baunebenkosten ausgeben wirst. Hang ist brutal teuer und dein Haus nicht klein. Eher schon eine kleinere Villa. Ich denke nur an das riesengroße Panoramafenster im Wohnzimmer. Ich würde hier ganz einfach ansetzen und die Ansprüche reduzieren. Dann wird es auch was für 500.000€. Oben nur Wohnzimmer und Gästebad und unten 2 Schlafzimmer, Bad und HAR. Schau mal hier im Forum über Google nach „Grundriss Einfamilienhaus 130 qm, Hanggrundstück“. Das würdet ihr bei den heutigen Preisen wohl auch am Hang mit 130 qm für 500.000€ hinkriegen (ohne Grundstück/ohne Baunebenkosten). So eine Größe reicht für viele Familien auch locker aus.
 
Zuletzt aktualisiert 07.11.2025
Im Forum Baukosten / Baunebenkosten / Baupreise gibt es 871 Themen mit insgesamt 29466 Beiträgen


Ähnliche Themen zu Kostenschätzung m2 Wohnfläche Hanghaus mit Keller und Garage
Nr.ErgebnisBeiträge
1Einfamilienhaus-Planung am Hang (2.700qm Grundstück) - Erfahrungen / Diskussion 42
2Meinungen zum Grundstück am Hang. - Seite 222
3Budget Grundstück und bauen mit Keller 21
4130 m² Bungalow mit Doppelcarport bei 600m² Grundstück? 64
5Doppelhaushälfte am Hang mit Keller Grundriss suche. 17
6Bungalow - macht das auf einem solchen Grundstück Sinn? 21
7Einfamilienhaus 160m2 mit Keller, 500m2 Grundstück 108
8Straße ca. 50cm über Grundstück - Auffüllen oder Keller 24
9Erste Grundrissplanung auf Karopapier: Hang, Keller + 2 Geschosse. 80
10Grundriss Bungalow 160-170qm mit Keller 175
11Grundstück am Hang im Münchner Umland - wie entscheiden? - Seite 754
12Bebauung Grundstück - Keller ja oder nein? 75
13Grundriss: Bauen leichten Hang - nicht genug für Keller wegen Aushub? 22
14L-Bank Z-20 begrenzte Wohnfläche mit Keller 39
15Süd Hang Grundstück 700qm Einfamilienhaus ca. 150qm, Ideen Input? 43
16Grundstück am Hang; Aufschüttung- Abfangung- Kosten? 10
17Grundriss Einfamilienhaus SW-Hang ca. 160qm Wohnfläche + Keller 11
18Bungalow mit Keller für Einfamilienhaus mit 60m2 Büro sinnvoll? - Seite 223
19Grundriss-Optimierung Neubau, Einfamilienhaus 2 Vollgeschosse ohne Keller am Hang - Seite 333
20Winkelbungalow auf Grundstück 800m2 - Finanziell machbar? 16

Oben