Grundrissplanung Wohnzimmer und Flur zu schmal?

4,80 Stern(e) 4 Votes
Marius89

Marius89

Hallo,

Mein Name ist Marius bin 30 Jahre alt und werde mit meiner Familie in einem Neubaugebiet (Braunschweig) bauen.
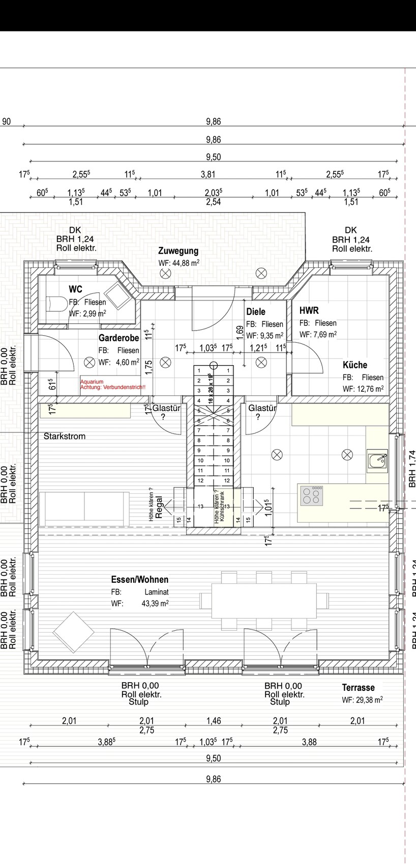
Nach langer und anstrengender Planung habe ich nun das Gefühl, dass wir bei der Breite des Wohnzimmers 3,88m Rohmaß etwas zu sparsam waren.

Wer hat ebenfalls ein Wohnzimmer unter 4m Breite und kann hier seine Erfahrung mit solch einen Raum teilen.

Dadurch, dass wir unbedingt eine mittige Treppe haben wollen haben wir im OG einen kurzen aber nur 1m (Treppenbreite) breiten Flur.

Vielleicht sehe ich das auch alles viel zu dramatisch ?!

Eine Vergrößerung der Außenmaße passt leider nicht mehr ins Budget.

Über neue Denkanstöße im Grundriss würde ich mich sehr freuen, danke.

Grundriss eines Hauses: offener Ess- und Wohnbereich, Küche, Diele, Garderobe, WC, HWR, Terrasse.


Grundriss eines Hauses: Schlafzimmer, Ankleide, Bad, Kind1, Kind2, Flure
 
Y

ypg

Ja, der Entwurf hat einige Kröten zu schlucken.
Ich würde das WZ wohl immer wieder umgestalten, weil dort hinten und vorn nichts passt.
Dafür kannst Du 3 von den eingezeichneten Ess-Tischen dort hinstellen, ist doch auch was
In der Garderobe ist ein Aquarium? Seitlich eine Tür? Wo lasst ihr eure Saisonalgarderobe? Jacken, Schuhe, Taschen? Der einzig sinnvolle Raum beim Jette war diese großzügige Garderobe. Der fällt jetzt weg

Oben würde ich mir Gedanken der Stolperfalle „Treppe“ machen. Über QM braucht man sich dort keine Gedanken zu machen - hier sind einige ohne Nutzen.
Ein Doppelflügelfenster über dem Bett. Schlechter geht es nicht. Da schwebt Euch sicherlich vor, die Sterne anzuschauen? Ich würde wenigstens die Ecke vor der Ankleide wegmachen, dass im Schlafzimmer ein 3 Meter langer schrank hinpasst - tz, die Ankleide kann weniger Schrankmeter aufnehmen als das Schlafzimmer selbst... vielleicht sollte man die Arbeitsecke nach vorn legen und nach planoben das Bett? Vielleicht vielleicht... die Treppe gehört da nicht hin. Mal ganz ehrlich: wenn man nicht ü 11 x 11 Meter bauen kann, muss man auf ne Protz-Treppe verzichten. Dann bekommt man auch ein großes WZ und eine schicke Ankleide hin, die ihren Namen Ehre macht. Man muss nicht alles bauen, was man bestaunt.
Warum ist das eine Kinderzimmer nur 11qm klein? Gibt es dafür einen Grund?
Aus dem anderen Zipfel da sollte man zumindest einen Abstellraum machen, Abstellfläche braucht ihr, habt ihr aber nicht.
Was kommt neben das Haus? Ein Carport?

Zeichnet mal einfach Eure möbel ein, dann sehr ihr die Mankos.
 
T

Tego12

Sehe das ähnlich... Das Haus ist für diese Treppe zu klein. Das OG sieht wirr aus, viel Platzverschwendung, im EG hat man den Haupt Dreck-Bereich direkt vor der Treppe, was ziemlich unpraktisch ist, ...ist die Haustür auf sieht weiterhin alles beengt aus....

Ich würde diesen Entwurf ebenfalls Nullen und neu planen.
 
H

hanse987

Sorry wenn ich es so hart sage, aber bei dem Grundriss ist die Wohnzimmerbreite das kleinste Übel.

Das OG gleicht einem Labyrinth. Das eine Kind hat leider verloren. Der Elternbereich ist sehr groß, aber die Nutzbarkeit des ganzen stelle ich mal in Frage. Zu den Obern Stufen der Treppe sage ich mal nichts.

Wenn man von der Haustüre rein kommt, steht man direkt vor diesem “Treppenmonster”. Dafür gibt es zwei eher Miniglastüren (mehr wie 80RBM werden die nicht haben) in die Küche und Wohnzimmer. Da muss man dann auch immer durch wenn zum Essbereich will. Was macht ihr mit dem Platz im Essbereich?

Es sieht einfach aus als hättet ihr euer Haus um eine Treppe drum herum geplant. Wo ist eigentlich der Lagerplatz für dies und das wie Weihnachtsdeko, Reisekoffer, Sport- bzw. Hobbysachen, ...
 
C

CoolCat

Was spricht gegen ein klassisches L.
Wir planen im EG bei einem ähnlichen Grundriss etwa wie folgt - linke Seite bei uns Südseite.
Links unten Küche, geht offen in den Essbereich im linken Eck und dann vorne in den Wohnbereich.
Wird dieser zu weit, kann man an der Stirnseite rechtes Eck noch ein Gäste-Bürozimmer ansetzen.
Vorne rechts Htr und dahinter Duschbad und dann Gästezimmer oder weiterer Wohnbereich.

Eingang mittig, Treppe gerade an die Wand zu Küche gesetzt.
Unterhalb der Treppe dann noch eine Abstellkammer oder Garderobe.
 
Zuletzt aktualisiert 10.11.2025
Im Forum Grundrissplanung / Grundstücksplanung gibt es 2529 Themen mit insgesamt 87691 Beiträgen


Ähnliche Themen zu Grundrissplanung Wohnzimmer und Flur zu schmal?
Nr.ErgebnisBeiträge
1Grundriss Stadtvilla 160qm - Bitte um Tipps! - Seite 10284
2Grundriss-Entwurf für Haus am Hang in zweiter Reihe - Seite 320
3Grundriss-Entwurf Stadtvilla mit Doppelgarage - Seite 238
4Bitte schaut kritisch über unseren Grundriss-Entwurf 13
5Entwurf Grundriss Einfamilienhaus (als Zweifamilienhaus im Alter möglich) in Hanglage - Seite 753
6Eure Meinung zum Grundriss für das EG - Seite 228
7Grundriss Stadtvilla 11.00x11.00m - Seite 219
8Erster Entwurf Grundriss Einfamilienhaus (ca. 200qm) - Bitte um Feedback - Seite 646
9Grundrissplanung / Entwurf Einfamilienhaus Flachdach mit Doppelgarage 87
10Grundriss Einfamilienhaus ca. 190qm mit Keller auf Millimeterpapier 78
11Plan, wie findet ihr den Grundriss??? 13
12Neubau Einfamilienhaus ca.220qm, 2. Entwurf Stadtvilla - Seite 259
13Grundriss Bungalow 150qm geschlossene Küche, überdachte Terrasse 40
14Einfamilienhaus-Grundriss Entwurf - Seite 223
15Treppe Grundriss Planung, Auftritt und Unterzug - Seite 221
16Grundriss für 150qm Einfamilienhaus mit Wohnzimmer nach Norden 21
17Blockhaus mit Krüppelwalmdach am Wald - Planung verbessern? - Seite 28204
18Treppe im Wohnzimmer als Hype - Pro & Contra? - Seite 426
19Grundriss Schlafzimmer, Ankleide und Bad en Suite 36
20Grundriss Entwurf Neubau Einfamilienhaus - Grundstück 610qm - Meinungen erwünscht - Seite 850

Oben