Grundrissentwurf für 220m² Einfamilienhaus

4,40 Stern(e) 7 Votes
Zuletzt aktualisiert 05.10.2025
Sie befinden sich auf der Seite 11 der Diskussion zum Thema: Grundrissentwurf für 220m² Einfamilienhaus
>> Zum 1. Beitrag <<

M

Maria16

Wolltet ihr bei der Küche ursprünglich nicht kleiner werden?

Hab dieses Mal extra den Kaminschacht gesucht und zumindest im OG gefunden. Im KG aber nicht. Keine Ahnung, ob es den dort nicht braucht oder ich wieder nur blind bin?
Seid ihr euch bei der Art des Kamins sehr sicher? Das Rohr im Raum bindet euch schon sehr von der Ausgestaltung und falls das bei euch eine Nice-to-have-Nummer ist, falls Geld übrig bleibt, solltet ihr euch dringend erkundigen, wie das Loch in der Übergangszeit verschlossen werden kann.

Ansonsten wollt ihr jetzt an die Details gehen, oder?

Die Idee, die Küchenwand komplett gerade durchzuziehen, find ich gut. Macht den Durchgang bei der Treppe etwas luftiger.
Mich würd das Eck beim Büro nicht so sehr stören, aber wenn ihr das Gefühl habt, immer auf ein Eck zuzulaufen, würd ich es auf jeden Fall ändern.

Bekannte von mir haben gegenüber ihrer geraden Treppe die Wand unterbrochen und einen Durchgang gemacht. Damit man beim herunterkommen nicht immer auf eine Wand zuläuft. Vielleicht wäre das auch eine Idee für euch - ggf. mit Seitenteil für noch mehr Luftigkeit? Würd natürlich in der Küche einiges nach sich ziehen, aber ihr wollt sie ja eh nicht so lassen.

Die Tür ins Büro würd ich evtl. noch nach planunten schieben, damit man nicht so weit durch den Essbereich durch muss (wobei ich den Ansatz verstehen kann, die Tür nicht direkt hinter einem Sitzplatz zu positionieren)

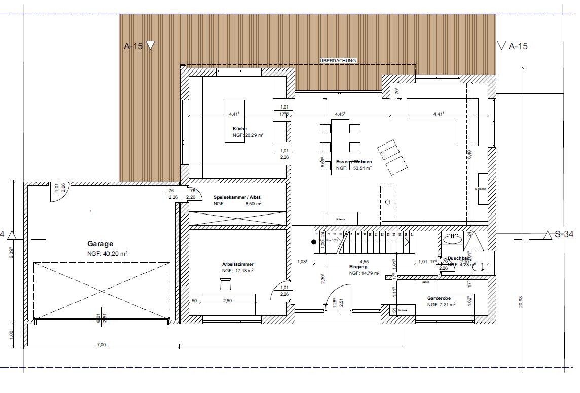
Im EG soll es eine dritte Dusche geben? Wofür? Könnte ggf das Gäste-WC minimal kleiner, um die Garderobe etwas zu vergrößern? Für mich passt die Relation zw. Garderobe und Flur nicht.
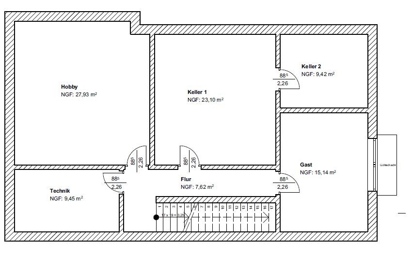
Schließt ihr die Treppe zum Keller komplett, so dass man davor wenigstens noch was stellen kann?

Speis habt ihr jetzt als "Haupteingang" für euch hoffentlich komplett gestrichen?

In Kind 2 solltet ihr die Stellmöglichkeiten noch mal überprüfen; Bett direkt unter einem Fenster ist mMn nicht so optimal.

War die Entwässerung der Bäder über dem Wohnbereich schon mal Thema, wie die funktioniert?

Ich würd dann noch über eine Tür zwischen Schlafen und Ankleide nachdenken. Und die Tür in den Bereich mittig zwischen die Schränke setzen, wenn ihr euch jetzt schon sicher seid, dass beiderseits gleich tiefe Schränke hin kommen.
 
B

Baufie

2 Dinge die ich nicht optimal gelöst finde.

1. Den Zugang zum Wohnzimmer mit der Ecke der Küche im Flurbereich.

2. Wie soll die Entwässerung des Elternbads funktionieren?
 
11ant

11ant

2. Wie soll die Entwässerung des Elternbads funktionieren?
Ach, nun irritiere hier doch nicht mit Fakten
Die Entwässerung des Elternbades liegt an derjenigen Ecke des OG, die es im EG gar nicht gibt. Das Fallrohr käme vor dem Sofa herunter. Na ja, das kann ein designorientierter Architekt schon´mal übersehen

Aber daß Du da einen Diplompedanten wie mich dabei erwischt hast, das auch zu übersehen: Chapeau !
 
R

R.Hotzenplotz

Ich habe gleich einen Termin mit dem Architekten und werde das Thema der Entwässerung ansprechen.
 
R

R.Hotzenplotz

Die Entwässerung soll erst durch die Decke laufen und dann an einer anderen Stelle, z. B. am Kaminrohr, nach unten geführt werden. Der Architekt sagt, das ist Bestandteil der Ausführungsplanung und ich solle mir da keine Gedanken machen.

Es ist eigentlich nur noch ein Punkt offen. Der Versprung an der Couch oben. Es gibt noch zwei offene Varianten und wir möchten uns bis morgen entscheiden. Meiner Frau gefällt es besser, wo die Nische hinter der Couch ist, mir gefällt eigentlich besser die durchgezogene Mauer. Habe dazu auch mal die Außen-Visualisierungen beigefügt. Die Nische außen finde ich gar nicht so hübsch. Dem Architekten gefällt von außen die Nischenlösung besser und von innen die gerade Lösung..... schwierig.....

Alle anderen Änderungen arbeitet er ein.

Haben auch ein KG besprochen.

Grundriss eines Hauses: Küche, Wohnen/Essen, Arbeitszimmer, Garderobe, Garage und Eingang


Grundriss eines Hauses: Küche, Essen/Wohnen, Arbeitszimmer, Speisekammer, Garage, Flur und Terrasse.


Grundriss eines Kellergeschosses: Hobby, Technik, Keller 1–2, Flur, Gast, Treppe, Lichtschacht


Moderne zweigeschossige Villa mit Glasfront, Balkonterrasse und Holzverkleidung auf Grünfläche.


Modernes zweigeschossiges Haus mit Flachdach, Balkon, großen Fensterfronten, grauer Zufahrt und Grünfläche.


Modernes zweistöckiges Wohnhaus mit Balkon, großen Fenstern und Einfahrt


Moderne Zweigeschoss-Villa mit Flachdach, Balkon, großen Fenstern und Terrasse.
 
11ant

11ant

Die Entwässerung soll erst durch die Decke laufen und dann an einer anderen Stelle, z. B. am Kaminrohr, nach unten geführt werden. Der Architekt sagt, das ist Bestandteil der Ausführungsplanung und ich solle mir da keine Gedanken machen.
Heimkino mit Klospülung ist Bestandteil einer Fehlplanung und Du sollst ihm die Ohren langziehen.
 
Zuletzt aktualisiert 05.10.2025
Im Forum Grundrissplanung / Grundstücksplanung gibt es 2510 Themen mit insgesamt 87152 Beiträgen


Ähnliche Themen zu Grundrissentwurf für 220m² Einfamilienhaus
Nr.ErgebnisBeiträge
1 2 Vollgeschosse, Durchgang Garage, Hauswirtschaftsraum unter Treppe 25
2Stadtvilla mit gerader Treppe, offene moderne Bauweise, 140m² - Seite 218
3Frage zur Entwässerung / Verrohrung Küche 16
4Grundriss Stadtvilla 11.00x11.00m - Seite 219
5Entwässerung vor Garagentür fehlt / korrigieren? Mangel? - Seite 215
6Grundrissfrage, Treppe, Fenster, Ausrichtung 12
7Grundrissfrage, Garage, Treppe 33
8Esstisch in einer kleinen Küche - Seite 449
9Planungsbeginn neue Küche - Seite 222
10Grundriss EG Wohnen / Küche - Trennwand - Seite 219
11Vorplanung mit dem Architekten - eigener Grundriss sinnvoll? 18
12Probleme bei der aufteilung Küche, Essen , Wohnen - Seite 216
13Schrank unter der Treppe oder kleiner Abstellraum - Seite 211
14Versteckter Durchgang in Speisekammer - Erfahrungen gesucht - Seite 528
15Entwässerung Bad, Anzahl der Fallrohre, Vorwände etc. ... - Seite 427
16Treppe im Flur, Grundriss steht eigentlich schon :o( - Seite 320
17Grundriss Einfamilienhaus - Problemfall Küche 20
18Türanschlag zum Wohn/-Essbereich und Beleuchtung Küche 13
19Neue Küche wird eine von Ikea - Seite 214
20Unsere neue erste Ikea Küche - Planung und Vorbereitung - Seite 369

Oben