Grundrissentwurf für 220m² Einfamilienhaus

4,40 Stern(e) 7 Votes
Zuletzt aktualisiert 12.01.2026
Sie befinden sich auf der Seite 14 der Diskussion zum Thema: Grundrissentwurf für 220m² Einfamilienhaus
>> Zum 1. Beitrag <<

M

matte

Guten Morgen erst mal.

Auch ich bin der Meinung, man sollte das mit der SW-Leitung nicht dramatisieren. Es gibt wahrlich schlimmere Probleme auf ner Baustelle, als ein 100er KG Rohr in ne Steuerberater-Decke zu legen. Bei Lüftungsrohren kräht doch auch kein Hahn danach. (Ja, ich weiß, die sind dünner, rechtzeitig geplant ist aber auch ne 100er Leitung kein Problem)
Man sollte lediglich darauf achten, dass die Leitung beim Betonieren nicht durch Aufschwimmen o.ä. seine Verbindung löst. Mit KG2000-Rohren sollte so ein Problem nicht auftauchen.

Alternativ könnte ich mir eine Abhangdecke vorstellen, wodurch sowieso das ganze Problem gelöst werden würde. Fände ich bei solch einem Haus nicht gerade abwegig. Kommt halt darauf an, was noch an Technik verbaut wird, allem voran Elektro.
Will man nämlich andere Einbauleuchten als die bekannten Spots verbauen, wird es mit Einbaudosen in der Steuerberater-Decke eh schon schwieriger, da geht vieles nur noch mit ner Abhangdecke.

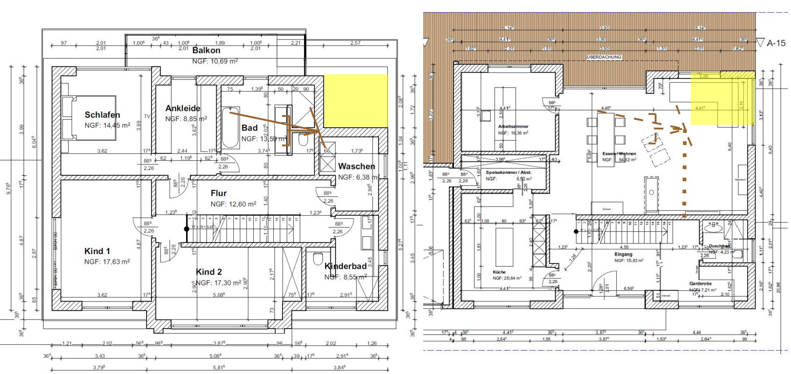
Viel interessanter finde ich 2 andere Punkte:

1. Wenn die Nische beim Wohnzimmer gebaut werden soll, wieso kragt man die dann nicht so weit aus wie beim Büro? Fände ich optisch ansprechender, aber das ist Geschmackssache.

2. Statisch wird das schon eine interessante Sache, da man beim Wohnzimmer doch relativ große Spannweiten der Decke haben wird, noch dazu die Wände vom OG nicht über den Wänden vom EG stehen. Das gilt für nen Großteil der planoberen Fassade, sowie für fast sämtliche Innenwände.
Ich bin wahrlich kein Statiker, aber ich könnte mir vorstellen, dass diese Punkte durch Unterzüge im EG aufgefangen werden müssen, welche optisch alles andere als toll sind.
Das würde ich den Architekten viel eher fragen und klar kommunizieren, dass man Unterzüge im Wohnraum nicht sehen will (sollte es so gewünscht sein, kann ja auch sein, dass ihr gern nen Stahlträger in Sichtinstallation haben wollt )
Alternativ könnte man einen Vorlauf. benötigten Unterzug wieder durch ne Abhangdecke kaschieren.
 
R

R.Hotzenplotz

Die Nische würde man hinbekommen. Ist aber noch mal mehr Wohnfläche, die kein Mensch braucht und die bezahlt werden muss. Der Architekt meinte, das bringt so auch ein wenig Dynamik in die Fassade. Stören tut es mich nicht.

Zum Thema Unterzug frage ich nach.
 
kaho674

kaho674

Echt coole Hütte. Ich würde folgende Punkte überdenken:
EG
- Treppenrichtung
- Weg vom Sofa bis zum Kühlschrank (Küche / Speis tauschen?)
- Enges Duschbad im EG, obwohl viel Platz vorhanden davor
OG
- Kinderzimmer / Elternschlafzimmer direkt nebeneinander (Schallschutz), obwohl jede Menge Zimmerchen als Puffer dienen könnten
- Entwässerung Elternbad wird schon diskutiert

Sorry, wenn Wiederholungen enthalten sind, möchte nicht den ganzen Riesen-Fred lesen müssen.
 
R

R.Hotzenplotz

Danke 11ant:

Was stört denn daran, dass über der Couch im OG Freifläche liegt? Wir brauchen dort keine Wohnfläche mehr und wenn wir das künstlich ausdehnen würden, würde es natürlich unnötig teurer.
 
Zuletzt aktualisiert 12.01.2026
Im Forum Grundrissplanung / Grundstücksplanung gibt es 2565 Themen mit insgesamt 88794 Beiträgen


Ähnliche Themen zu Grundrissentwurf für 220m² Einfamilienhaus
Nr.ErgebnisBeiträge
1Erbanteil, Familiengrundstück, Wohnfläche erweitern - Seite 225
2Welche Cat-Kabel an der Fassade verlegen. Probleme mit Feuchtigkeit? - Seite 529
3Welche Fassade ist besser? 33
4Wohnzimmer Grundrissplanungs-Ideen? 39
5Wohnzimmer Heimkino separat ? 21
6Planung Podest im Wohnzimmer 12
7Doppelflügeltür / Pendeltür zum Wohnzimmer 13
8Wohnzimmer: Wie Sofa, TV und Schränke stellen? 32
9Kombination Fliesen und Parkett im Wohnzimmer mit offener Küche - Seite 330
10Grundrissplanung Wohnzimmer-Küche 18
11Einfamilienhaus - Stadtvilla: Wohnzimmer L oder I Form? 25
12Grundriss für 150qm Einfamilienhaus mit Wohnzimmer nach Norden 21
133. Zimmer im 40qm Wohnzimmer unterkriegen. Ideen 74
14Wohnzimmer / Esszimmer gestalten. Ideen gesucht 10
15Treppe im Wohnzimmer als Hype - Pro & Contra? 26
16Verschattung der Dachfenster im Wohnzimmer - Erfahrungen / Tipps? 28
177,70m Glasfront Wohnzimmer Haus 11 auf 11 Meter 14
18Wohnküche und Wohnzimmer im DG oder im EG 13
19Stufe zwischen Wohnzimmer und Küche-Essbereich - Seite 214
20Grundrissplanung Wohnzimmer und Flur zu schmal? 21

Oben