
kbt09
Hmm .. ganz schön viele Mauerecken . (ja, wir haben immer etwas zu Meckern ).
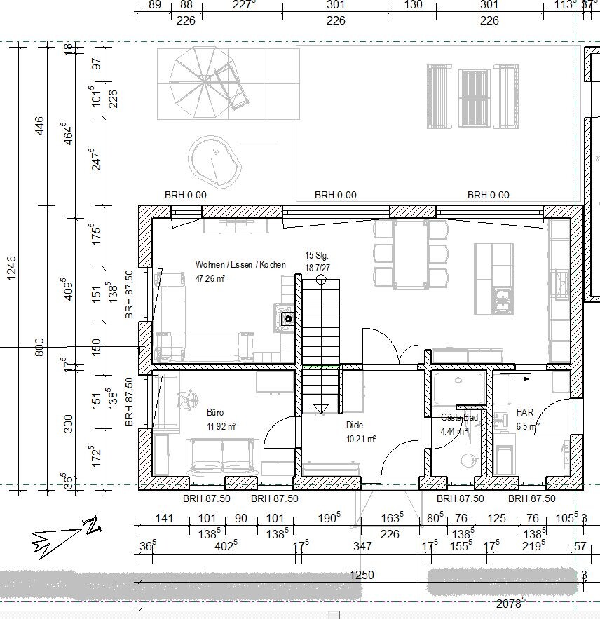
Technikraum ... ist eigentlich ein Flur (Weg Garage ins Haus), wo nichts stehen kann.
Faketür zur Speisekammer neben Side By Side Kühlschrank wird eine ganz schöne Sonderkonstruktion und wird sinnvollerweise eh eine gewisse Überbreite (65-70 cm) haben (also nicht nur 60 cm Standard-Küchenfronttür). Zum Halten solcher Türen braucht man schon ganz schön Scharnierteile. Ich glaube daher nicht, dass da noch viele Gewürze an die Innenseite der Tür passen.
Google mal nach dem Blum Space Tower, 2 Stück davon, von unten ca. 2/3 Höhe mit den Innenauszügen, dadrüber dann 2 oder 3 Bretter für seltener genutzte Küchengeräte und du wirst auch nicht teurer werden als mit deiner Mini-Speisekammer und der Fake-Tür.
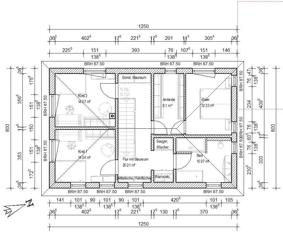
OG-Schlafzimmer ... Ehebett wirklich unterhalb eines Fensters? Putzen?
9,1 qm Raum für knapp 5 m KLeiderschrank?
Technikraum ... ist eigentlich ein Flur (Weg Garage ins Haus), wo nichts stehen kann.
Faketür zur Speisekammer neben Side By Side Kühlschrank wird eine ganz schöne Sonderkonstruktion und wird sinnvollerweise eh eine gewisse Überbreite (65-70 cm) haben (also nicht nur 60 cm Standard-Küchenfronttür). Zum Halten solcher Türen braucht man schon ganz schön Scharnierteile. Ich glaube daher nicht, dass da noch viele Gewürze an die Innenseite der Tür passen.
Google mal nach dem Blum Space Tower, 2 Stück davon, von unten ca. 2/3 Höhe mit den Innenauszügen, dadrüber dann 2 oder 3 Bretter für seltener genutzte Küchengeräte und du wirst auch nicht teurer werden als mit deiner Mini-Speisekammer und der Fake-Tür.
OG-Schlafzimmer ... Ehebett wirklich unterhalb eines Fensters? Putzen?
9,1 qm Raum für knapp 5 m KLeiderschrank?