
kbt09
Jetzt noch mal die 8x12,5 m mit Küche planlinks mit Ost/Südfenster.
HAR ist jetzt ganz klein geworden und wirklich ohne externen Zugang. Trotzdem sollte da noch 150 cm Regal in ca. 20/25 cm Tiefe passen ... z. B. gerade nicht genutzte Schuhe etc.
Treppe gedreht und Raum unter der Treppe vom Koch/Essbereich als Stauraum für Vorräte, Sauger, Wischer.
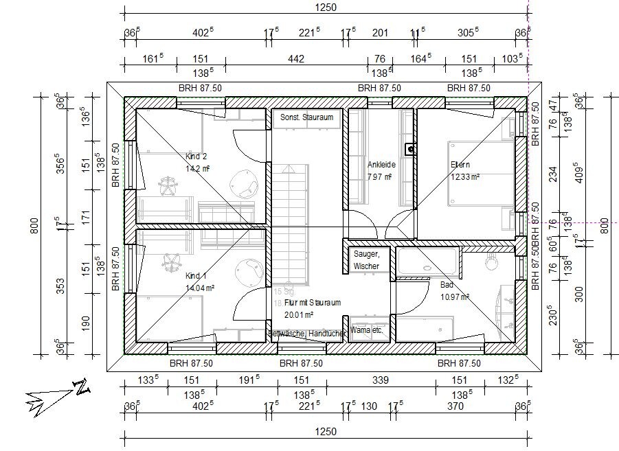
OG ist fast so geblieben, nur die Schornsteinposition ist gewandert.
In der Übersicht jetzt auch die 75 cm planrechts von der Garage.
HAR ist jetzt ganz klein geworden und wirklich ohne externen Zugang. Trotzdem sollte da noch 150 cm Regal in ca. 20/25 cm Tiefe passen ... z. B. gerade nicht genutzte Schuhe etc.
Treppe gedreht und Raum unter der Treppe vom Koch/Essbereich als Stauraum für Vorräte, Sauger, Wischer.
OG ist fast so geblieben, nur die Schornsteinposition ist gewandert.
In der Übersicht jetzt auch die 75 cm planrechts von der Garage.