Unkalkulierbarkeit der Baukosten - Platzt das Projekt deswegen?

5,00 Stern(e) 24 Votes
Zuletzt aktualisiert 22.12.2025
Sie befinden sich auf der Seite 15 der Diskussion zum Thema: Unkalkulierbarkeit der Baukosten - Platzt das Projekt deswegen?
>> Zum 1. Beitrag <<

G

Gelbwoschdd

Ich kenne mich ja nicht so gut aus, wie Banken ihre Sicherheiten berechnen, aber wird das nicht ein Problem, wenn von den ursprünglichen Plänen deutlich abgewichen wird? Schließlich hat die Bank durch steigende Baukosten und deswegen kleinerem Bauen, nicht den gleichen Gegenwert nach Fertigstellung. Also was ich sagen will: die Bank stellt Geld zur Verfügung in der Annahme, dass ein Hanghaus 125qm+Keller+Garage gebaut wird. Was ist dann, wenn dann jemand überspitzt formuliert ein überteuertes Tinyhaus für das gleiche Geld hinstellt (ohne Keller und ohne Garage) welches später auf dem Markt vielleicht mit 100K weniger bewertet wird?
Kann die Bank da nicht auch noch ein Veto einlegen. Schließlich dient das "Endprodukt" Haus, ja auch als Sicherheit für die Finanzierung.
 
gutentag

gutentag

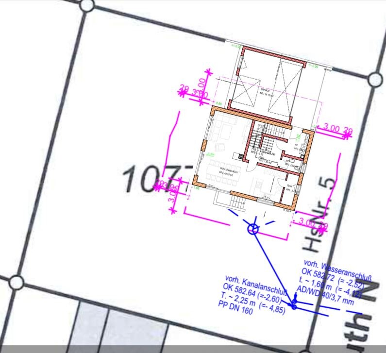
Ich habe den Plan mal genordet und das Haus eingezeichnet.


Grundriss eines Hauses auf einem Grundstück mit Grenzlinien, Maßangaben und Farbcodierung.


Gelände fällt mMn parallel zur Straße. mit 12 % Richtung SSW??
 
gutentag

gutentag

Wäre die Höhe denn dann nun ausreichend oder nicht?
Nein 2,25m sind kleiner als 2,40m. Wie bereits geschrieben wurde, in BY haben Wohnräume eine Mindestdeckenhöhe von 2,40 m.

Klare Fehlplanung. Die Oberkante Fertigfußboden Keller gehört tiefer. Oder das EG vom Haus höher, falls der Bebauungsplan das zulässt.

Budget ist nicht gleich Angebotspreis?
 
H

hang_häuschen

Nein 2,25m sind kleiner als 2,40m. Wie bereits geschrieben wurde, in BY haben Wohnräume eine Mindestdeckenhöhe von 2,40 m.

Klare Fehlplanung. Die Oberkante Fertigfußboden Keller gehört tiefer. Oder das EG vom Haus höher, falls der Bebauungsplan das zulässt.

Budget ist nicht gleich Angebotspreis?
Budget liegt bei 530.000 + 57.000 KfW Förderung.
Im Angebotspreis fehlen aber natürlich Garage, Möbel, Nebenkosten wie Bausstrom und Telefon sowie Außenanlagen abgesehen von Einfahrt und Terrasse.
 
Zuletzt aktualisiert 22.12.2025
Im Forum Baukosten / Baunebenkosten / Baupreise gibt es 878 Themen mit insgesamt 29655 Beiträgen


Ähnliche Themen zu Unkalkulierbarkeit der Baukosten - Platzt das Projekt deswegen?
Nr.ErgebnisBeiträge
1Keller oder Garage, oder Keller mit integrierter Garage - Seite 314
2Bauen ohne Keller - Carport, Garage? 18
3Grundriss für Einfamilienhaus mit 200m² mit Einliegerwohnung 75 +Keller 140m² +Garage 56m² 59
4Kostenschätzung m2 Wohnfläche Hanghaus mit Keller und Garage - Seite 387
5Holzdecke und Teilisolierung für Keller mit Garage - Seite 215
6Erstes Angebot, 157m2 mit Keller, KFW 70, Garage 14
7Einfamilienhaus mit >180qm / Keller / Garage 68
8Grundriss Einfamilienhaus 136m² mit Garage & Keller 17
9Grundriss Einfamilienhaus mit Keller und Garage - Seite 950
10Hanghaus 235 qm mit Garage im Keller auf 3600 qm Grundstück 15
11Häuser ohne Keller: Stauraum Hobby-Keller? 49
12Mit oder ohne Keller Bauen - Erfahrungen - Seite 249
13Ohne Keller - wohin mit der Werkstatt/Hobbyraum (Bilder?) 11
14Keller bei Einfamilienhaus sinnvoll oder eher zu teuer? - Seite 6131
15160m2 Einfamilienhaus in Holzständerbauweise am Nordhang mit Keller - Seite 12100
16Grundrissplanung Stadtvilla Neubau mit Keller - Seite 636
17Grundriss Einfamilienhaus, ~180m², Keller mit Satteldach - Seite 281
18Ohne Keller gebaut & bereut? - Seite 1377
19Keller ja oder nein bei großem Baufenster? - Seite 212
20Grundriss Einfamilienhaus mit Garage 18

Oben