Umbau mit Architekt: Anregungen zum Haus-Grundriss gewünscht

4,80 Stern(e) 5 Votes
M

Maureen13-d

Wir (24j, w & 29j. m) möchten ein geerbtes Haus seiner Eltern umbauen. Wir haben schon einige Gespräche mit dem Architekten gehabt und nun interessieren wir uns für die Meinungen von euch. Die Außenmauern des Hauses bleiben stehen und werden teilweise ergänzt. In den angehängten Abbildungen ist ersichtlich was neu wird (rot) und welche Mauern stehen bleiben (schwarz).

Nun zum Katalog:

Bebauungsplan/Einschränkungen
Größe des Grundstücks ca. 850qm2
Hang aufgeschüttetes Gelände deshalb kein weiterer Stock zulässig
Grundflächenzahl
Geschossflächenzahl
Baufenster, Baulinie und -grenze
Randbebauung
Anzahl Stellplatz 1 Besucherparkplatz, mehrere Stellplätze auf dem Weg zur Garage
Geschossigkeit 2
Dachform Satteldach
Stilrichtung
Ausrichtung
Maximale Höhen/Begrenzungen
weitere Vorgaben

Anforderungen der Bauherren
Stilrichtung, Dachform, Gebäudetyp
Keller, Geschosse
Anzahl der Personen, Alter 2 Erwachsene, 2-3 Kinder gewünscht (noch nicht in Planung)
Raumbedarf im EG, OG
Büro: Familiennutzung oder Homeoffice? Familiennutzung
Schlafgäste pro Jahr sehr wenige
offene oder geschlossene Architektur offen
konservativ oder moderne Bauweise modern
offene Küche, Kochinsel
Anzahl Essplätze sicher 6
Kamin nein
Musik/Stereowand
Balkon, Dachterrasse nein
Garage, Carport Doppelgarage, eventuell noch ein Carport

Hausentwurf
Von wem stammt die Planung:
-Architekt
Was gefällt besonders? Warum? Schlaf und Wohnbereich abgetrennt
Was gefällt nicht? Warum? kein Gästebad im EG
Preisschätzung lt Architekt/Planer: 430000€
Persönliches Preislimit fürs Haus, inkl Ausstattung:
favorisierte Heiztechnik:Luft-Wasser-Wärmepumpe

Die Wendeltreppe ist bereits vorhanden im Haus und muss Kostentechnisch bestehen bleiben. Der Architekt möchte sie aber erneuern und durch den grossen Eingangsbereich in Szene setzen.


Nun sind wir sehr gespannt!

Lageplan eines Baugrundstuecks mit Hausgrundriss und Dachaufbau, handgezeichnet.


Grundriss Erdgeschoss Variante 2: offenes Esszimmer-Wohnen, Küche, Treppe, Flur, Schlafzimmer, Bad


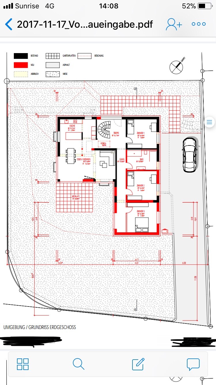
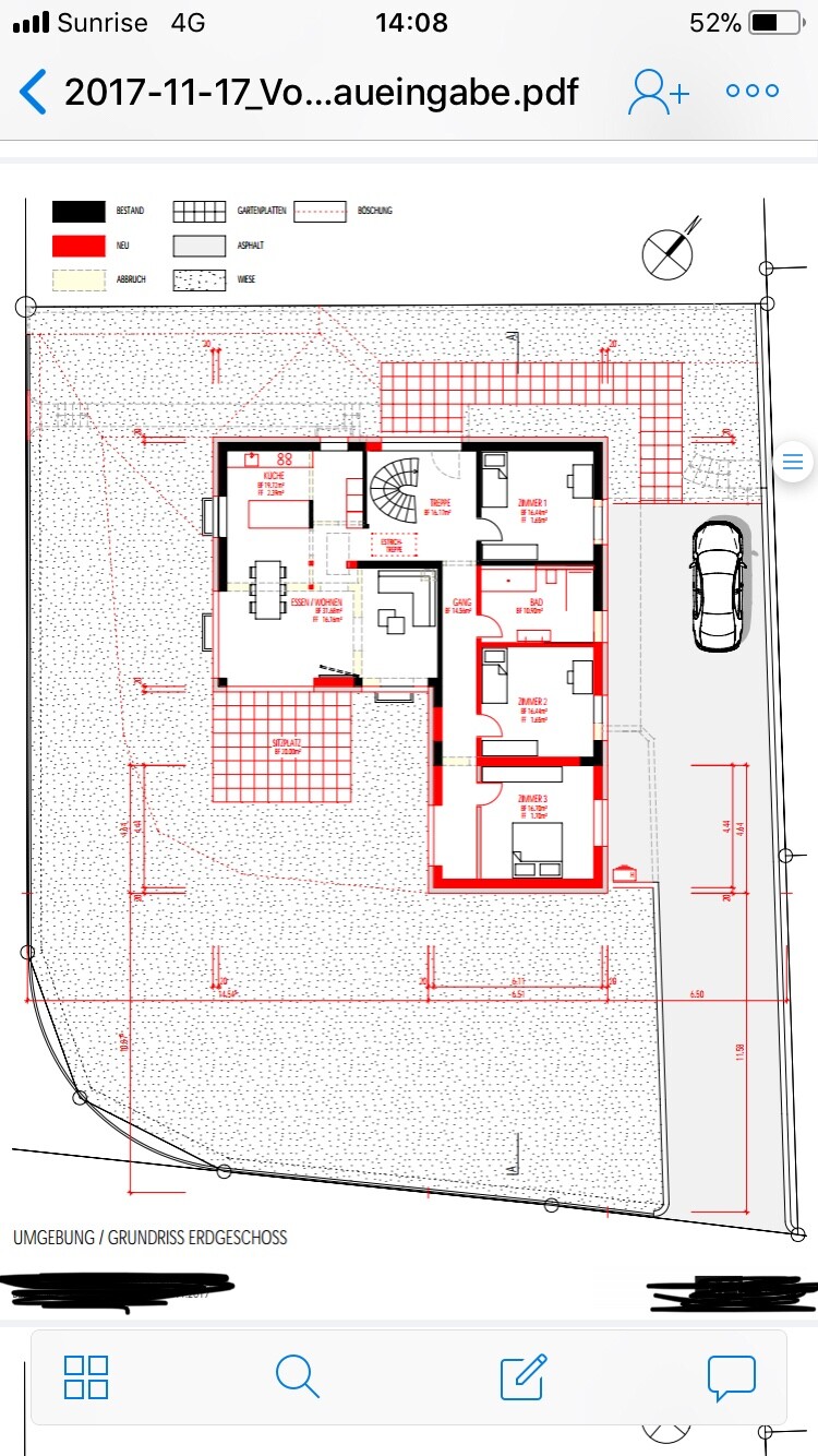
Lageplan eines Baugrundstücks mit Hausumriss und Abmessungen


Grundriss Erdgeschoss mit umlaufendem Garten und Eingängen, Zimmern und Treppen


Untergeschoss-Grundriss des Hauses mit Keller, Technikraum, Hobbyraum und Garage


Südostfassade eines Hauses in architektonischer Planzeichnung mit Geländeverlauf und Fenstern


Architektonische Nordwestfassade eines Hauses mit Fenstern, Türen und Fundamenten in Zeichnung


Architekturzeichnung einer Südwest-Fassade eines Hauses mit Dach und Fenstern


Architektonischer Gebäudeschnitt eines zweistöckigen Hauses mit Keller und Garage.
 
Zuletzt bearbeitet von einem Moderator:
Y

ypg

Ich seh jetzt nur EG und UG. Ist das richtig?

Ich würde das Schlafzimmer am Ende vergrößern und den Sackgassenflur verkürzen.
Ich würde das kleine Fenster in diesem Flur an der Terrasse lassen, aber ggü. die Tür des Kinderzimmers verschieben.
Man kann im Bad die Toilette gleich nach vorn setzen ggü ein lüttes Waschbecken und eine Trennwand ins richtige Bad ziehen. Hier Toilette und Wanne tauschen, Wand ziehen mit Schiebetür.
 
M

Maureen13-d

Ich seh jetzt nur EG und UG. Ist das richtig?

Ich würde das Schlafzimmer am Ende vergrößern und den Sackgassenflur verkürzen.
Ich würde das kleine Fenster in diesem Flur an der Terrasse lassen, aber ggü. die Tür des Kinderzimmers verschieben.
Man kann im Bad die Toilette gleich nach vorn setzen ggü ein lüttes Waschbecken und eine Trennwand ins richtige Bad ziehen. Hier Toilette und Wanne tauschen, Wand ziehen mit Schiebetür.
Danke für die Antwort:)
Das mit dem Schlafzimmer haben wir so schon weitergeleitet wollte ich auch so. Und Bad und Küche sind nur einfach so vom Architekt eingezeichnet das hat noch keinen Plan.
 
M

Maureen13-d

Ja wir haben nur EG und UG aber wie man am Schnitt sieht ist UG an zwei Seiten nicht in der Erde. Man darf aufgrund des aufgeschütteten Geländes kein Stock mehr obendrauf setzen.
 
kaho674

kaho674

Sorry, mir gefällt die Sache gar nicht. Wenn ich beim Fernsehgucken mal auf's Toi muss, bin ich ja kürzer über den Hof, als durchs Haus. Dann dieser lange Mäusegang ist m.E. nur Platzverschwendung. So richtig ist auch nicht klar, was die Ausgangssituation ist. Vielleicht könntest Du die Istsituation nochmal aufzeichnen, denn wenn ich alles Rote wegnehme, bleibt kein Haus übrig. Am besten mit Maßen, dann könnte man nochmal bissl rumspielen. :)

Muss die Küche zwingend da hinten in die Ecke? Wie flexibel seid Ihr?
 
M

Maureen13-d

Küche und Wohnzimmer sollten einfach genug Licht bekommen!

Masse habe ich nur so circa, weil der Architekt die Pläne des alten Haus hat und uns bisher nur solche Pläne gesendet hat.

Hier habe ich das Haus auf den alten Grundriss reduziert.

Das momentane Wohnzimmer ist auf der falschen Seite um abends auch Sonne zu haben.
Die vorherige Besitzerin hatte keine Kinder und wohnte nur mit ihrem Mann im Haus. Daher auch nur ein Schlafzimmer und ein kleines Nähzimmer.

Zu sagen ist noch wir möchten gerne zwei Garagen haben.

Die Masse sind anhand des Grundrisses mit dem langen Gang (dieser gefällt meinem Freund sehr gut, haben wir in der momentanen Wohnung schon).


Grundriss des Erdgeschosses mit Wohnzimmer, Küche, Schlafzimmer und Bad

Handgezeichnete Grundrissskizze eines Gebäudes mit Maßangaben auf kariertem Papier
 
Zuletzt bearbeitet von einem Moderator:
Zuletzt aktualisiert 12.01.2026
Im Forum Grundrissplanung / Grundstücksplanung gibt es 2566 Themen mit insgesamt 88810 Beiträgen


Ähnliche Themen zu Umbau mit Architekt: Anregungen zum Haus-Grundriss gewünscht
Nr.ErgebnisBeiträge
1Haus, Garage / Carport auf dem Grundstück platzieren - Seite 493
2Grundriss: 150qm Einfamilienhaus+Einliegerwohnung - Carport / Garage + Schuppen / Werkstatt - Seite 245
3Grobe Schnitzer im Grundriss? Küche zu klein? 39
4Modernes Einfamilienhaus mit Architekt in Süddeutschland 25
5Einfamilienhaus,Zwei Varianten Grundriss vom Architekt 39
6Grundriss, längliches Einfamilienhaus, integrierte Garage kein Keller 16
7Entwurf Grundriss Neubau Stadtvilla >160 m² 14
8Hausplan von Architekt 2 Geschosse mit Keller 18
9Einfamilienhaus vom Architekt 150m² Verbesserungsvorschläge und Ideen gesucht 75
10Neubau Einfamilienhaus ca. 174 m² Grundriss Architekt - Seite 355
11Grundriss Einfamilienhaus, 200m2, 2 Vollgeschosse, Garage, ohne Keller 39
12Bungalow mit 140qm und Garage im Grundriss 13
13Haus ohne Garage und Keller? Ausbau Dachboden? Fresswarze? - Seite 585
14Lage von Haus & Garage im Baufenster planen *Vorplanung* - Seite 2129
15Grundriss 140 m2 Einfamilienhaus mit Garage - Hausausrichtung ok? 18
16Grundrissplanung Einfamilienhaus (190 qm) mit Garage 18
17Grundriss Bungalow 150qm geschlossene Küche, überdachte Terrasse 40
18Bau Garage auf Grenze geht lt. Architekt nicht. 11
19Kombination Fliesen und Parkett im Wohnzimmer mit offener Küche - Seite 330
20Grundrissplanung Wohnzimmer-Küche 18

Oben