Neubau Einfamilienhaus ohne Garage in Eigenleistung

4,50 Stern(e) 10 Votes
Zuletzt aktualisiert 25.11.2025
Sie befinden sich auf der Seite 7 der Diskussion zum Thema: Neubau Einfamilienhaus ohne Garage in Eigenleistung
>> Zum 1. Beitrag <<

S

StefMeister

@halmi Ich weiß was mir gesagt wurde, nur verstehe ich nicht wieso ich bei dieser Lösung irgendjemanden Wachmachen sollte, beim aufstehen gibt es auch schöne Lösungen mit Dimmbaren Leuchten bzw. Lichtstreifen die den Raum nicht Taghell machen und so ein Ruhiges Aufstehen möglich machen, da sehe ich absolut kein Problem und ebenso mit dem Jetzt abgetrennten Badezimmer Bereich, Glaube kaum das man da auch nur im Ansatz was von hören wird und selbst wenn, Krank ist man definitiv nicht immer und da steckt man den Partner meistens mit an
@dertill Erstmal danke fürs Feedback, damit magst du bei nicht Ortskenntniss Recht haben, mein Schwiegervater hat jedoch genau in der Selben Ausrichtung sein Haus gebaut, wirklich fast exakt die selbe Ausrichtung und Lage, das sind die Sachen die wir im Sommer beobachtet bzw. auch einfach nachgefragt haben, dass sind einfach Erfahrungswerte, deswegen passte das Grundstück für uns auch einfach aufgrund Lage und auch der Menge an Sonne keine Sorge das war Grundlage dafür das wir über das Grundstück auch nachgedacht haben. Unser Haus wird dann zukünftig auch Wesentlich höher als die Nachbarhäuser stehen bzw. die Nachbarbebauung ist maximal 1,5 Vollgeschosse d.h. die Sonne Überstrahlt die Häuser ohne Schattenwurf. Hoffe das stellt meinen Standpunkt etwas besser dar, die Sonneneinstrahlung basiert wirklich auf Erfahrungswerten, das Elternhaus meiner Verlobten ist auf der Selben Straßenseite ca. 400m Entfernt

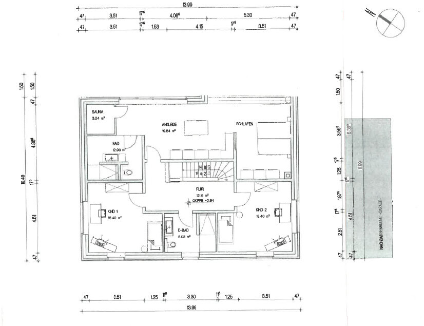
Grundriss eines Obergeschosses: Flur, Schlafen, Ankleide, Sauna, Bad, zwei Kinderzimmer.


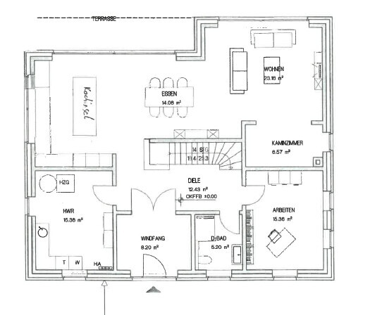
Grundriss eines Hauses mit Terrasse, Wohnen, Essen, Loggia, Kammer, Arbeitsraum, Diele, Windfang.
 
H

haydee

Im ganzen Haus keine Badewanne?
Denkt nicht nur an jetzt

Was bei Kreuzschmerzen?
Was mit den Kindern?
Was ist mit Erkältung, Rheuma etc?
 
Y

yellow_ms

Badewanne wurde zwar schon angesprochen. Aber noch mal die Frage, wo baden denn die Kleinkinder? Und den Weg zu Kind 2, wenn es noch klein ist und nachts was hat - das gibt km-Geld. Jetzt muss man sein Haus natürlich nicht nur danach planen, aber der Grundriss wirkt auf mich, als wären die Kinder eher schon aus dem Gröbsten raus.
 
H

haydee

Plant Türen ein in eure Elternsuite.
Mit 25 hätte ich auch so geplant

Es ist nicht praktikabel
Ist das jetzt die Dunkelblaue oder die Schwarzebluse
Licht an
Partner Wach

Dann nehmt wenigstens große Schiebetüren
 
S

StefMeister

Im Ganzen Haus wird keine Wanne Geben nur eine Provisorische bzw. da gibt es zustell Systeme für die Dusche die Super Funktionieren, Hat eine gute Freundin von uns und sie Vermisst die Wanne in keinem Moment bzw. sie hatte in ihrer Wohnung einfach keine, ja das wirkt so als wären die Kinder aus dem Gröbsten Raus und das ist auch beabsichtigt, ich hatte in meiner Kindheit z.B. auch keine Wanne sondern nur eine Dusche von daher bin ich bei den Kindern da sehr entspannt
@haydee Ja Kreuzschmerzen etc. sind sicherlich nichts schönes aber letztlich muss man auch in die Wanne und dann wieder raus und leider haben wir aktuell den fall in der Familie mit Kreuzschmerzen und der tut einen Teufel und geht in die Wanne :/ und da bin ich doch sehr Pragmatisch für 3-4 mal Nutzung im Jahr für uns Persönlich ist es mir den Platz einfach nicht wert, da stelle ich mir lieber im Garten Später einen Jacuzzi mit Überdachung und keine Wanne, das ist aber glaube ich Persönliches Empfinden mit der Wanne nur ich werde sie definitiv nicht vermissen
Und ja das Haus ist wirklich für erwachsene und ausgewachsene Kinder ausgelegt nur genau darauf haben wir das Haus Geplant, die zeit mit klein Kindern wird ein bisschen Improvisation erfordern aber lässt sich definitiv managen
 
S

StefMeister

Große Schiebetüren sind eh geplant, Schlafzimmer-Schrank sowie Küche baut uns mein Schwiegervater wenn wir das Material bezahlen, wir werden im Ankleidezimmer mit schwenkbaren Spots für die Schränke Arbeiten und die wand vllt. noch Länger werden lassen
Hallo bis 50 habe ich doch hoffentlich noch die Zeit meine Augen anzustrengen und die Farben zu erkennen, aber guter Tipp, definitiv eine Überlegung wert es zumindest zu zu bauen das es mit Wenig Aufwand im alter mit einer Türe versehen werden kann oder auch jetzt schon
 
Zuletzt aktualisiert 25.11.2025
Im Forum Bauplanung gibt es 5072 Themen mit insgesamt 100818 Beiträgen


Ähnliche Themen zu Neubau Einfamilienhaus ohne Garage in Eigenleistung
Nr.ErgebnisBeiträge
1Anschluss Badewanne an Dusche 21
2Renovierung-Tipps für sehr kleines Bad mit Dusche statt Badewanne - Seite 336
3Fußbodenheizung unter Badewanne und Dusche 13
4Bad-Grundriss 8,7qm, mit Dusche und Badewanne 16
513.000 für alte Dusche und Badewanne erneuern? 17
6Ebenerdiger Pool anstatt Badewanne? - Seite 319
7Ablaufrinne Bodenebene Dusche mit Fußbodenheizung - Seite 544
8Hauptbadezimmer (10qm) mit offener Dusche, Ideen? 84
9Grundriss Bad mit Dusche - Seite 211
10Stromkabel unter Dusche zugelassen ? - Seite 533
11Erster Grundriss Einfamilienhaus - Eure Ideen auch zum Grundstück - Seite 333
12Schmales Grundstück Max. Möglichkeiten Einfamilienhaus mit niedrigen Drempel 41
13Größe begehbare Dusche 30
14Dusche - wie schließen? - Ideenfindung 11
15Beratung: Neues Badezimmer, 5,9qm mit Badewanne - Seite 648
16Badplanung - Spritzschutzwand der Walk-In Dusche lang genug? - Seite 214
17Planung Grundriss Doppelhaus, kleines Grundstück, Bauhausstil - Seite 434
18Badplanung bei einem kleinen Bad mit Walkinn Dusche - Seite 422
19Ovale Design-Badewanne aufgrund Schmutz dahinter leicht mobil machen? 71
20Eigenheim Bauen? Grundstück in Aussicht - Seite 219

Oben