Grundrissoptimierung Stadtvilla + Aufschüttüberlegung

4,70 Stern(e) 21 Votes
Zuletzt aktualisiert 20.11.2025
Sie befinden sich auf der Seite 149 der Diskussion zum Thema: Grundrissoptimierung Stadtvilla + Aufschüttüberlegung
>> Zum 1. Beitrag <<

Status
Für weitere Antworten geschlossen.
11ant

11ant

Wir können nicht an alles denken. Wir haben uns mit dem Thema noch nicht beschäftigt
Aber während Du hier 149 Seiten hinter dem Komma herumpuzzelst, wurden solche Essentials hier mehrfach (in Threads nur zur Kontrollierte-Wohnraumlüftung) diskutiert. Da hättest Du nur mal über den Zaun spingsen müssen. Vereinfacht gesagt, bedeutet "dezentral", daß eine solche Anlage in jedem betroffenen Raum einmal gebaut werden muß und "standalone" operiert, während die zentrale Variante nur eine Steuerung für das ganze Haus hat und ihr Wirken in allen Räumen quasi "poolt". Die Wärmerückgewinnung ist daher zentral wesentlich effizienter, aber: zentral bedeutet eben auch ein tintenfischartiges Kanälesystem durch das ganze Haus. Daher ist nur so ein Trockenbau-unerschrockener Schwachchecker wie Dein Planer so blauäugig, diese PrinzipEntscheidung bis last Minute offen zu lassen.
 
S

Shiny86

Aber während Du hier 149 Seiten hinter dem Komma herumpuzzelst, wurden solche Essentials hier mehrfach (in Threads nur zur Kontrollierte-Wohnraumlüftung) diskutiert. Da hättest Du nur mal über den Zaun spingsen müssen.
Hab ich halt versäumt. Kann ich nicht ändern. Ist blöd, ja.
Die Entscheidung wurde nicht bis zuletzt offen gehalten. Uns ist erst jetzt eingefallen, dass wir lieber eine zentrale Lüftung haben wollen.

Wie meinst du das mit Trockenbau?
Geht das nicht im Fußbodenaufbau oder im Beton an den Wänden? Hat man da zwangsweise irgendwelche verkofferungen, wenn man es erst nach Fertigstellung des Grundrisses plant?

Aktuell haben wir im Hauspreise eine dezentrale Lüftung drin ohne Wärmerückgewinnung.
Eine zentrale mit Wärmerückgewinnung würde einen Aufpreis von 9500 Euro bedeuten. Ist der Preis ok oder übertrieben?
 
11ant

11ant

Wie meinst du das mit Trockenbau?
Geht das nicht im Fußbodenaufbau oder im Beton an den Wänden? Hat man da zwangsweise irgendwelche verkofferungen, wenn man es erst nach Fertigstellung des Grundrisses plant?
Im wesentlichen spielt sich das im Fußbodenaufbau ab. Aber zentral ist eben anders (= komplexer zu verkanalen) als dezentral. Und Ihr habt ja einen Plan(los)er, dessen räumliches Vorstellungsvermögen nicht recht verarbeiten kann, einen BD in einen DD des darunterliegenden Geschosses umzudenken. Im Plan gibt das noch keine zwangsweisen Umtrockenbauten, aber in der dann wohl improvisierten Realität.
 
S

Shiny86

Im wesentlichen spielt sich das im Fußbodenaufbau ab. Aber zentral ist eben anders (= komplexer zu verkanalen) als dezentral. Und Ihr habt ja einen Plan(los)er, dessen räumliches Vorstellungsvermögen nicht recht verarbeiten kann, einen BD in einen DD des darunterliegenden Geschosses umzudenken. Im Plan gibt das noch keine zwangsweisen Umtrockenbauten, aber in der dann wohl improvisierten Realität.
Wahrscheinlich hat er sich in dieser einen Version keine Mühe mehr gegeben, weil er dachte, dass sich das eh nicht lohnt. Er war mit recht wahrscheinlich inzwischen genervt von uns.

Was ist denn dein Ratschlag? Auf die zentrale verzichten und eine dezentrale zu nehmen, weil die Planung einfacher ist?
Überall lese Ich, dass bei Neubau eine zentrale vorzuziehen ist.
 
11ant

11ant

Er war mit recht wahrscheinlich inzwischen genervt von uns.
Und nu isser wieder aussm Urlaub zurück und bereit für neue Nervensägereien ?
Was ist denn dein Ratschlag? Auf die zentrale verzichten und eine dezentrale zu nehmen, weil die Planung einfacher ist?
Nein, die dezentrale ist nicht einfacher zu planen: für die Durchbrüche träfe das zu, aber für die Planung der Anlage als technisches Gedöns im Gegenteil. Bei Wärmerückgewinnung sagte ich ja schon, sei die zentrale effizienter. Wenn nicht wenigstens 30 % (nach Volumen) der Räume ausgelassen werden sollen, ist die dezentrale m.E. fortgeschrittener Humbug.
 
S

Shiny86

Und nu isser wieder aussm Urlaub zurück und bereit für neue Nervensägereien ?
Weil es final wird gibt er sich vielleicht mehr Mühe, um uns von der Backe zu bekommen?

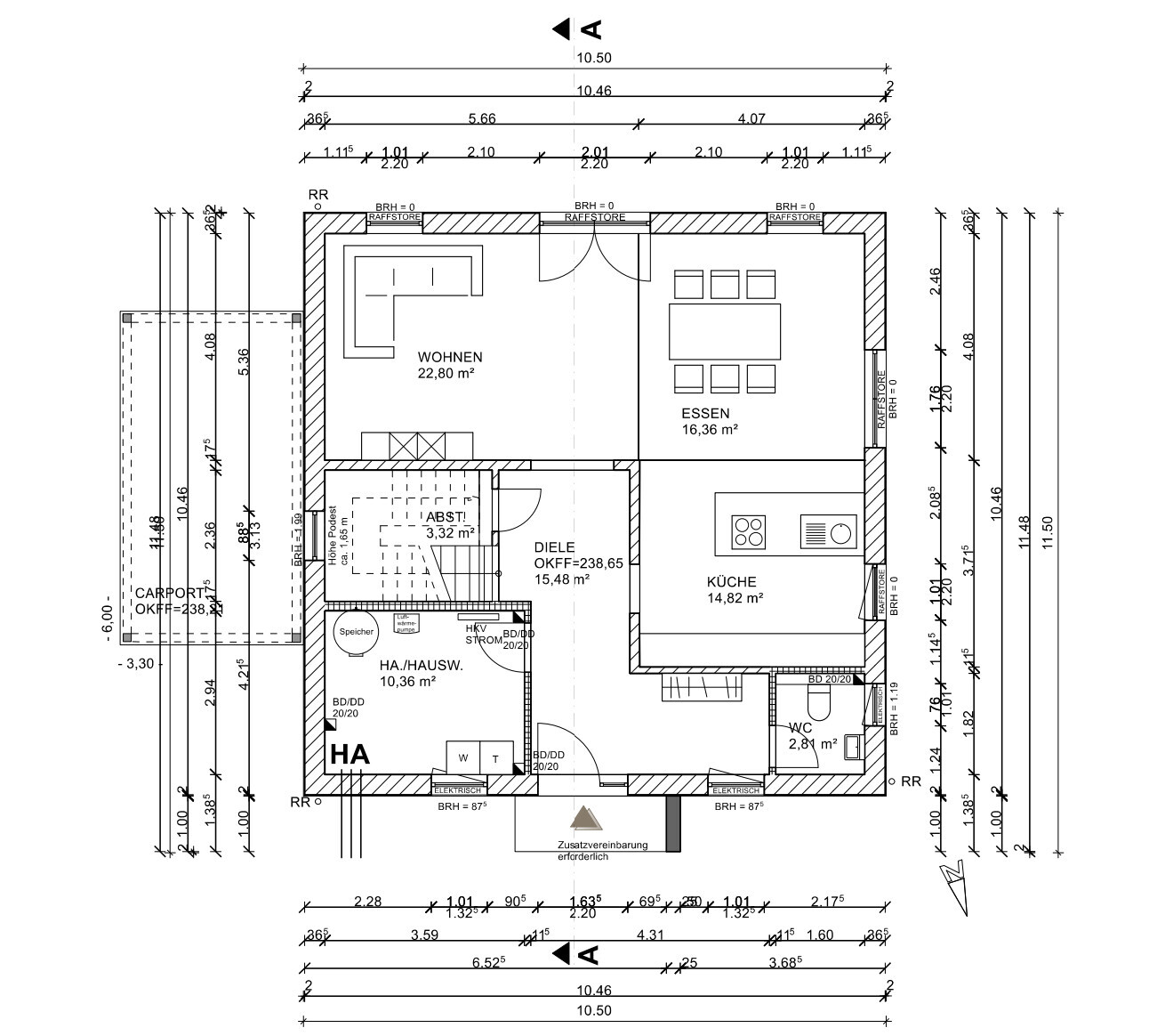
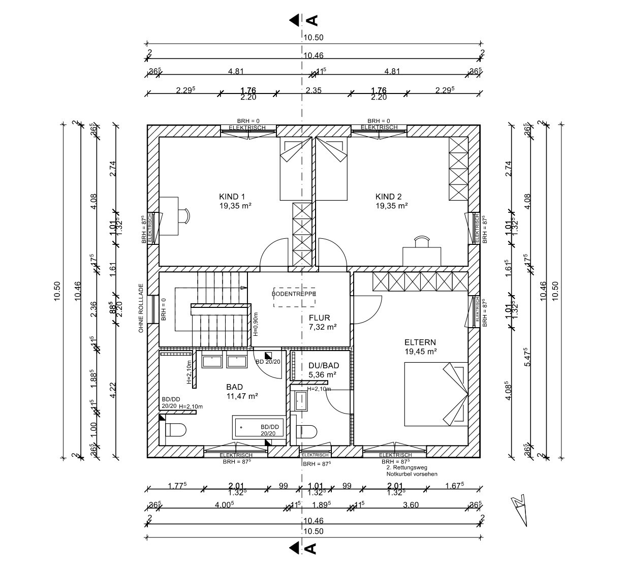
Fällt dir oder sonst jemandem zu den angehängten Zeichnungen was negatives auf? BD/DD realistisch?

Und noch mal zur zentralen: was kann denn im schlimmsten Fall bei Fehlplanung passieren? Also wieso sollte es mit der Verlegung im Boden Schwierigkeiten geben? Wie wahrscheinlich ist das und wie blöd sieht es dann aus?

Grundriss eines Hauses mit Wohnzimmer, Essbereich, Küche, Diele, Abstellraum, WC und Carport


Grundriss der Etage: zwei Kinderzimmer, Elternzimmer, Flur, Bad, DU/Bad, Treppenhaus
 
Status
Für weitere Antworten geschlossen.
Zuletzt aktualisiert 20.11.2025
Im Forum Grundrissplanung / Grundstücksplanung gibt es 2535 Themen mit insgesamt 87977 Beiträgen


Ähnliche Themen zu Grundrissoptimierung Stadtvilla + Aufschüttüberlegung
Nr.ErgebnisBeiträge
1GAS / SOLAR oder GAS / Lüftung + Wärmerückgewinnung 20
2Energieeinsparverordnung mit Gastherme und Wärmerückgewinnung Lüftung statt Solar? 15
3dezentrale Lüftung - verschiedene Hersteller - Seite 539
4Lunos e² dezentrale Lüftung Erfahrungen? - Seite 7246
5Leise dezentrale Lüftung für Neubau Einfamilienhaus - Seite 273
6Lüftung im Neubau (zentral vs. dezentral), Geräuschbelästigung 69
7Lüftung mit Wärmerückgewinnung bei Neubau 11
8Lüftungsanlage mit Wärmerückgewinnung - Sinn oder Unsinn? 18
9Kontrollierte-Wohnraumlüftung mit Wärmerückgewinnung --- ein Verwirrspiel? 12
10Zentrale Kontrollierte-Wohnraumlüftung mit Wärmerückgewinnung: Zimmer einzeln regelbar? 20
11Kontrollierte-Wohnraumlüftung ja - Wärmerückgewinnung nein - Begründung im Text! 79
12Luft-Wasser-Wärmepumpe, KWL mit Wärmerückgewinnung? 17
13Schlafzimmer warm im Haus mit Lüftung inkl. Wärmerückgewinnung 24
14Neubau KfW55 mit Gas Solar und Kontrollierte-Wohnraumlüftung mit Wärmerückgewinnung 43
15Lüftungsanlage mit Wärmerückgewinnung, Temperatur Aufstellort 11
16Nilan Lüftungsanlage mit kontrollierter Wärmerückgewinnung 29
17Erfahrungen mit zentraler Abluftanlage ohne Wärmerückgewinnung 30
18Angebot für Pluggit KWL - Wärmerückgewinnung 14
19Wärmepumpe oder Gas mit Zentraler Lüftungsanlage mit Wärmerückgewinnung 16
20Niedrigere Innentemperatur nach Inbetriebnahme Kontrollierte-Wohnraumlüftung mit Wärmerückgewinnung 14

Oben