Grundrissoptimierung Stadtvilla + Aufschüttüberlegung

4,70 Stern(e) 21 Votes
Zuletzt aktualisiert 23.12.2025
Sie befinden sich auf der Seite 128 der Diskussion zum Thema: Grundrissoptimierung Stadtvilla + Aufschüttüberlegung
>> Zum 1. Beitrag <<

Status
Für weitere Antworten geschlossen.
rick2018

rick2018

Oder Zwitscherbox

Es gibt Möglichkeiten zum Schallschutz kosten aber Geld.
Wenn es gut dämmen soll sprechen wir von Türen mir umlaufender Dichtung, Bodenabsenker und entsprechender Zarge mit Türblatt.
Was man dabei nicht vergessen darf ist dass wenn man eine Kontrollierte-Wohnraumlüftung hat (klassisch ausgelegt), man diesen Bereich nicht mehr überströmen kann. D.h. separate Zu- und Abluft.
Eines unserer WCs wird so ausgeführt sein. Bei der Kontrollierte-Wohnraumlüftung spielte es für uns keine Rolle da eh "etwas spezieller".
 
S

Shiny86

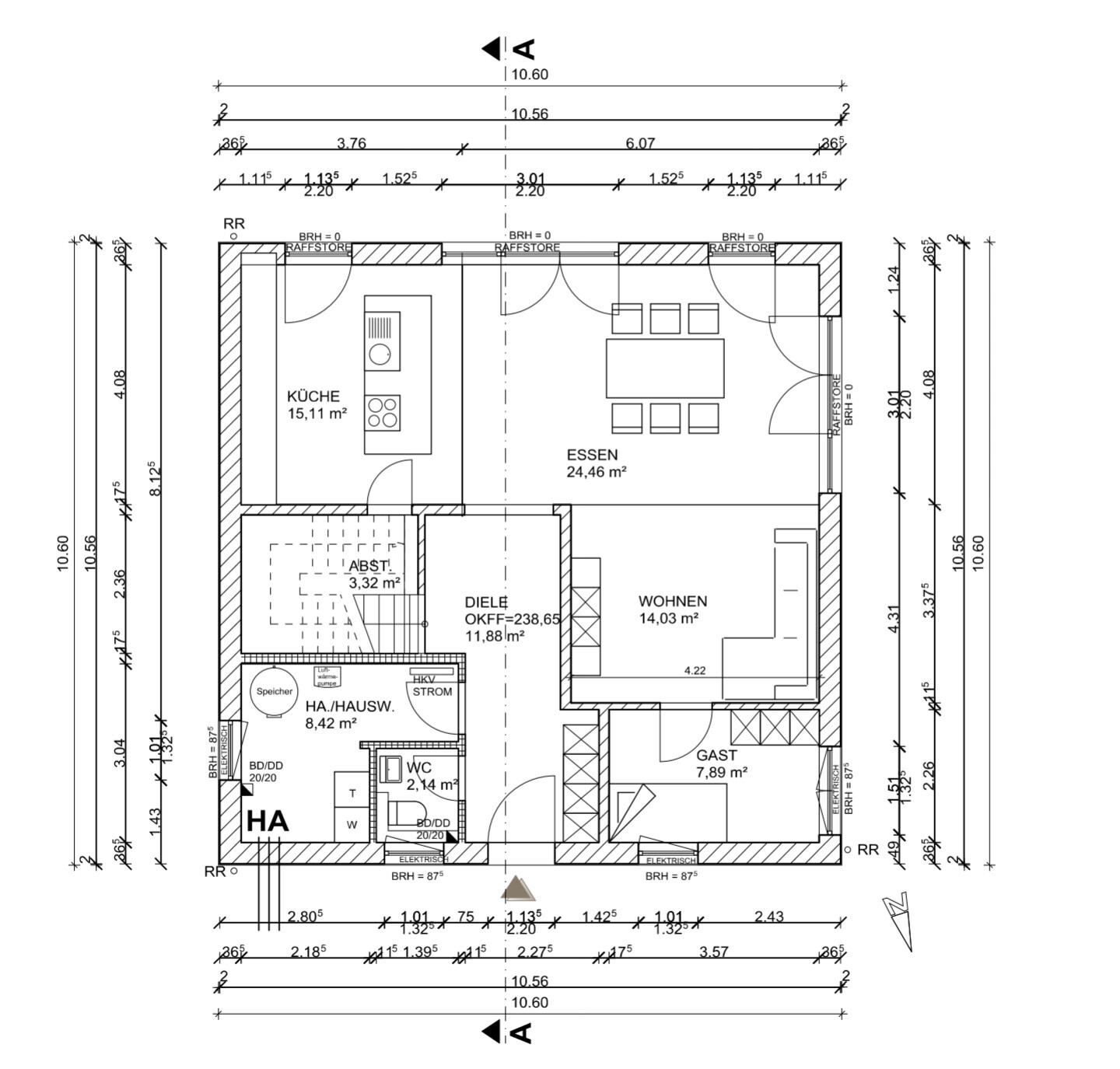
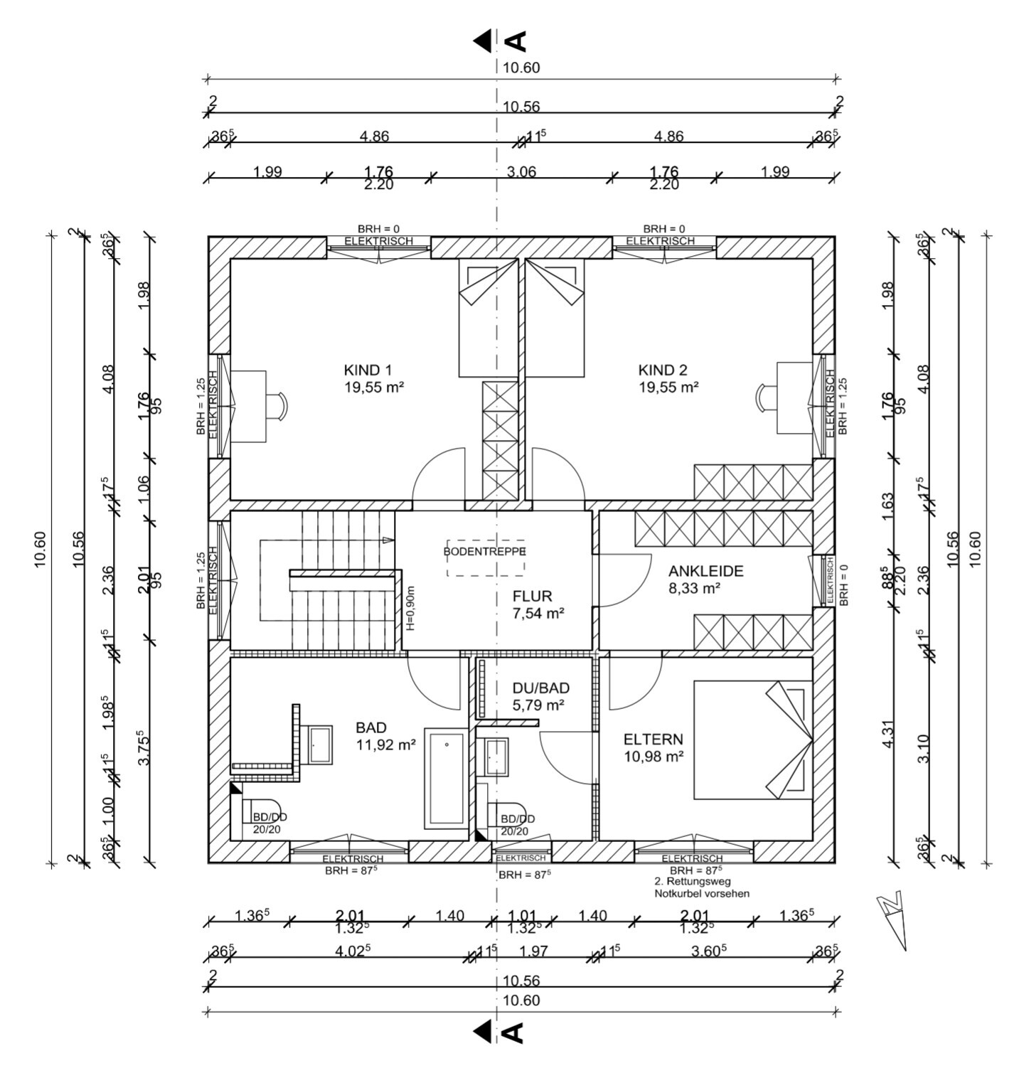
Die neuen Zeichnungen sind da. Habt ihr Tipps/Feedback?

Ankleide/Schlafzimmer:
Würdet ihr den Gang in der Ankleide schmaler machen um etwas mehr Platz links und rechts neben dem Elternbett zu bekommen?

Ich würde die Tür zwischen Ankleide und Schlafzimmer rausnehmen oder braucht man die?

Was sagt ihr zu den Fenstern? Brüstungshöhen ok und Maße nicht zu groß? 2m breite im Schlafzimmer und familienbad nicht zu krass, da die Räume eher klein sind?

Was sagt ihr zur Sanitäranordnung im Familienbad? Doppelwaschbecken wurde nicht umgesetzt. Scheint wohl nicht zu passen. Hat jemand eine Idee? Würdet ihr die Objekte anders anordnen?

Und in der Nordansicht hat man nicht exakt Symmetrie.
Würdet ihr die Gäste-WC Sanitär Anordnung ändern, weil man dann das Fenster evtl. nach links verschieben könnte oder würdet ihr das Büro Fenster stattdessen verschieben?
Es gibt ja auch WC Anordnungen bei denen man auf die Kloschüssel zuläuft und seitlich ist dann das Waschbecken.

Braucht das Büro eigentlich ein Westfenster?

@11ant @kaho674 und alle anderen mit immer ehrlichen Meinungen: ihr seid hier weiter erwünscht

@Curly Guckst Du bitte speziell auf die Fenster damit es hell genug ist?

Grundriss eines Obergeschosses mit KIND 1, KIND 2, ELTERN, ANKLEIDE, BAD, DU/BAD, FLUR, Treppen.


Architektur-Grundriss: Küche, Essen, Wohnen, Gästezimmer, Diele, Abstellraum, WC.


Architektenzeichnung: Nordwest- und Südost-Ansichten eines Hauses mit Dach, Fenstern und Terrasse.


Zweigeschossiges Haus: Südwest- und Nordostansicht mit Fenstern, Türen und Dachneigung 25°
 
C

chrisw81

Die neuen Zeichnungen sind da. Habt ihr Tipps/Feedback?
Auch wenn mir nicht alle Außenansicht gefallen, ansonsten sehr schön!

Ich hoffe mal, dass die Sitzecke nicht zu dunkel wird. Schwierig zu sagen. Also wenn ich in dem Bereich alle Rollos unten hätte und quasi deine Situation "simulieren" würde, fände ich es zu dunkel. Das seitliche Licht reicht dann doch nicht aus, um speziell den Sitzbereich genügend auszuleuchten. Du hast ja an drei Seiten an der Stelle kein Fenster. Bei uns ist es eine Seite, und ich finde es grad so ausreichend vom Licht.

Ansonsten würde ich die beiden 3m Türen als Hebeschiebetüren realisieren, glaub mir, du würdest dich sonst ärgern wenn ständig eine Tür offene im Zimmer rumsteht. Das schränkt ziemlich ein.
 
S

Shiny86

Auch wenn mir nicht alle Außenansicht gefallen, ansonsten sehr schön!

Ich hoffe mal, dass die Sitzecke nicht zu dunkel wird. Schwierig zu sagen. Also wenn ich in dem Bereich alle Rollos unten hätte und quasi deine Situation "simulieren" würde, fände ich es zu dunkel. Das seitliche Licht reicht dann doch nicht aus, um speziell den Sitzbereich genügend auszuleuchten. Du hast ja an drei Seiten an der Stelle kein Fenster. Bei uns ist es eine Seite, und ich finde es grad so ausreichend vom Licht.

Ansonsten würde ich die beiden 3m Türen als Hebeschiebetüren realisieren, glaub mir, du würdest dich sonst ärgern wenn ständig eine Tür offene im Zimmer rumsteht. Das schränkt ziemlich ein.
Ich danke für dein Feedback.
Wir haben bzgl Absichten nur auf Frontseite und Gartenseite wert gelegt. Ost und West ist alles erlaubt.

Bzgl. der Sitzecke oder 3m Fenstertüren.
Er hat es am Sofa falsch eingezeichnet.
Er soll dieses 3m Element noch nach planunten verschieben, so dass 80cm von dem 3m Fenster in der Sitzecke ist. Dann würden wir nur 80cm festglas mit dem Sofa zustellen und es scheint dann somit bisschen Sonne in die TV Ecke. In der vorletzten Version war es richtig eingezeichnet.
Im Notfall könnte man auch die Bürotür geöffnet lassen, dann kommt vom Norden noch indirektes Licht. Oder was sagt ihr?
Ich würde die Tür ins Büro auch so weit wie möglich nach planlinks schieben oder sollte ich die Stellfläche hinter der Tür für Regale nutzen?

Ich kann es nicht erklären, aber wir mögen irgendwie optisch nicht so gerne Schiebetüren und was auch nicht unwesentlich ist: die sind bestimmt auch noch teurer als das 3m Fensterelement.
 
Zuletzt bearbeitet:
C

chrisw81

Ich kann es nicht erklären, aber wir mögen irgendwie optisch nicht so gerne Schiebetüren und was auch nicht unwesentlich ist: die sind bestimmt auch noch teurer als das 3m Fensterelement.
Ich finde sie sogar schöner als andere Türen, aber das ist Geschmackssache. Wir haben es eben aus praktischen Gründen gemacht. Wenn ich mir vorstelle, dass dann immer eine Tür im Weg steht, fände ich das blöd. Bei der Schiebetür hast du halt null Einschränkungen und die Schwelle ist auch viel tiefer als bei den normalen Türen.
Und ja, sind natürlich deutlich teurer, aber mit das Sinnvollste, was ich bei einem Hausbau sehe.
 
Status
Für weitere Antworten geschlossen.
Zuletzt aktualisiert 23.12.2025
Im Forum Grundrissplanung / Grundstücksplanung gibt es 2554 Themen mit insgesamt 88557 Beiträgen


Ähnliche Themen zu Grundrissoptimierung Stadtvilla + Aufschüttüberlegung
Nr.ErgebnisBeiträge
1Öffnungsmöglichkeit der Fenster mit Kontrollierte-Wohnraumlüftung - Ideen zur Planung - Seite 460
2Fenster Brüstungshöhe 130 im Schlafzimmer / Arbeitszimmer? - Seite 1593
3Kontrollierte-Wohnraumlüftung und trotzdem nachts Fenster auf 71
4Zentrale Kontrollierte-Wohnraumlüftung mit Wärmerückgewinnung: Zimmer einzeln regelbar? 20
5 Küchenplanung mit tiefen Fenster - Seite 643
6Grundriss Schlafzimmer, Ankleide und Bad en Suite 36
7Fenster / Türen / Garderobe 13
8Kontrollierte-Wohnraumlüftung: Luftspalt unter den Türen erforderlich? 27
9Teil 2: Schnuckline baut ein schnuckeliges Haus - Seite 336
10Bodentiefe Fenster - wie Sofa stellen? 12
11Weniger öffenbare Fenster mit Kontrollierte-Wohnraumlüftung 30
12Pfiffige Schlafzimmer Idee mit Ankleide gesucht 19
13Grundriss Schlafzimmer mit Bad und Ankleide 62
14Kontrollierte Wohnraumlüftung - Ja oder Nein?! - Seite 331
15Hilfe bei der Anordnung der Fenster benötigt! 32
16Verbindung Schlafzimmer / Ankleidezimmer / Bad 16
17Lüftungsanlage Keller ohne Fenster 18
18Lüften bei Kontrollierte-Wohnraumlüftung - Seite 315
19Doch eine Kontrollierte-Wohnraumlüftung einbauen? - Seite 654
20Schlafzimmer warm im Haus mit Lüftung inkl. Wärmerückgewinnung 24

Oben