Grundriss Stadtvilla - Bitte um Meinungen, Kritik, Verbesserungen

4,40 Stern(e) 5 Votes
Zuletzt aktualisiert 08.10.2025
Sie befinden sich auf der Seite 7 der Diskussion zum Thema: Grundriss Stadtvilla - Bitte um Meinungen, Kritik, Verbesserungen
>> Zum 1. Beitrag <<

S

Sandrine90

Dies hier wäre eine Variante, die uns sehr gut gefällt. Leider ohne Gästezimmer, dafür eine entspanntere Situation im EG. Dieser Grundriss ist sogar nur auf 128 qm ausgelegt, heißt, vielleicht könnte man ein kleines Gästezimmer a' 7 qm noch mit einbauen.

Grundriss eines Erdgeschosses: Diele, Küche, Wohnen/Essen, Dusche, HWR und Treppe.


Grundriss eines Obergeschosses: Eltern, zwei Kinderzimmer, Ankleide, Bad, Flur
 
RomeoZwo

RomeoZwo

Die Ankleide in den neuen Plänen ist doch Murks. Kein Fenster, wahnsinnig schmal und sowieso nur durch das Schlafzimmer zugänglich, also auch kein Vorteil, dass der Schlafende nicht gestört wird wenn einer früher raus muss. Wäre es da nicht sinnvoller die 3m Schranknische einmal im Schlafzimmer und einmal im Kinderzimmer zu haben? Dann gäbe es sogar Platz für einen zweiten 3m Schrank.
 
S

Sandrine90

Die Ankleide in den neuen Plänen ist doch Murks. Kein Fenster, wahnsinnig schmal und sowieso nur durch das Schlafzimmer zugänglich, also auch kein Vorteil, dass der Schlafende nicht gestört wird wenn einer früher raus muss. Wäre es da nicht sinnvoller die 3m Schranknische einmal im Schlafzimmer und einmal im Kinderzimmer zu haben? Dann gäbe es sogar Platz für einen zweiten 3m Schrank.
Also ich brauch ehrlichgesagt auch kein Fenster in der ankleide, genauso wenig wie eine Tür um den anderen nicht zu stören. Hatten wir bisher auch nicht in unserer Wohnung und wir haben uns immer noch lieb
 
Y

ypg

nd wir haben uns immer noch lieb
...noch... das kann sich schnell ändern
Also ich brauch ehrlichgesagt auch kein Fenster in der ankleide,
Das Problem ist einfach, dass man ständig ein Licht anknipsen muss..

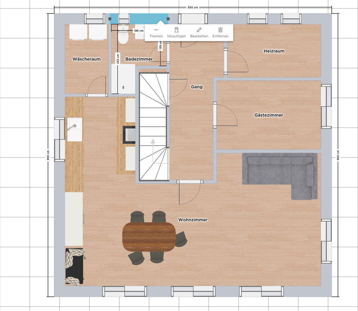
Nun denn: ich hab da mal mit den Maßen 9,5 X 9,3 rumgespielt. Außenwände sind 36, Innenwände hab ich pauschal 12 genommen.
Das Programm kennt keine Powervermaßung. Bett ist 2 x 2 Meter (etwas größer wegen der Decke), Wanne 1,80 x 0,8...
Fenster sollten so annähernd symmetrisch sein, wo gewünscht bzw übereinander, wo es sinnvoll ist.
Unter der Treppe ist Garderobenraum, ansonsten muss der TK-Raum reichen. Da müsste jetzt noch genug Kapazität neben den Getränkekisten sein.
Bad und Küche ist ungefähr so angeordnet, wie ich es am elegantesten empfinde...


Grundriss eines Hauses: Wohnzimmer, Küche, Essbereich, Gästezimmer, Bad, Wäscheraum, Heizraum.

Grundriss eines Hauses: Schlafzimmer, Badezimmer, Dachboden, Gang und Kinderzimmer 2.

Erdgeschoss-Grundriss mit Wohnzimmer, Schlafzimmer, Kinderzimmern und Bad
 
RomeoZwo

RomeoZwo

Also ich brauch ehrlichgesagt auch kein Fenster in der ankleide, genauso wenig wie eine Tür um den anderen nicht zu stören. Hatten wir bisher auch nicht in unserer Wohnung und wir haben uns immer noch lieb
Ihr hattet in der Wohnung also keine Ankleide. Habt ihr nicht gebraucht. Dann braucht ihr auch heute keine Ankleide .

Der Sinn einer Ankleide ist doch den Kleiderschrank aus dem Schlafzimmer zu bekommen um:
a) die Person im Schlafzimmer nicht zu stören
b) Das Schlafzimmer vom Flur zu trennen (Durchgangsankleide) um einen "Elternbereich" zu schaffen
c) Das Schlafzimmer optisch "schöner" zu halten

Für Licht anknipsen gibt es Bewegungsmelder, o.k. aber ist dir schon mal aufgefallen, dass Farben unter künstlichem Licht ganz anders wirken als unter natürlichem Licht? Z.B. unter dem grässlichen kaltweißen LEDs.

Überlegt euch einfach ob ihr so eine Ankleide wie in dem Entwurf oben wirklich braucht. Denn Sie nimmt euch Platz weg! Ohne hätte Kind 2 auch Platz für einen großen Schrank wie Kind 1 und ihr im Schlafzimmer auch dieselbe Schrankfläche. Ich sehe in dem Entwurf keine genauen Maße, aber mit Schränken auf beiden Seiten wie eingezeichnet funktioniert das nicht. Wir haben 2.15m Breite in der Ankleide (Rohbaumaß) und das geht gerade so für zwei 60er Schränke (Korpusmaß, da kommen noch 3cm Tür dazu) auf beiden Seiten
 
Zuletzt aktualisiert 08.10.2025
Im Forum Grundrissplanung / Grundstücksplanung gibt es 2513 Themen mit insgesamt 87215 Beiträgen


Ähnliche Themen zu Grundriss Stadtvilla - Bitte um Meinungen, Kritik, Verbesserungen
Nr.ErgebnisBeiträge
1Pfiffige Schlafzimmer Idee mit Ankleide gesucht 19
2Grundriss Schlafzimmer, Ankleide und Bad en Suite - Seite 536
3Grundriss Schlafzimmer mit Bad und Ankleide 62
4Idee Schlafzimmer - Bett / Schrank Anordnung 32
5Entwurf - alle Richtungen bei Neubau vom Einfamilienhaus 91
6OG Stadtville optimieren. Fenster Bodentief - Seite 16104
7Entwurf Einfamilienhaus mit ca. 168m² Feedback - Seite 537
8Stadtvilla - Seite 216
9Fenster Brüstungshöhe 130 im Schlafzimmer / Arbeitszimmer? - Seite 493
10Schalter für Rollläden am Fenster oder an der Tür? 38
11Unser Grundriss-Entwurf, eure Meinungen - Seite 220
12Grundrissplanung - Wie Schlafzimmers & Ankleide anordnen? 11
13 Küchenplanung mit tiefen Fenster - Seite 643
14Grundriss Einfamilienhaus geplant, Fenster gefallen uns - Seite 543
15Einfamilienhaus - Meinungen zu unserem Entwurf - Seite 11159
16Neubau einer ca. 8x11 Doppelhaushälfte, Einschätzung Grundriss und Fenster - Seite 635
17Einfamilienhaus Entwurf - ca. 160-170qm / Innovatives Satteldach - Seite 671
18Einfamilienhaus, ~160m², Bauhausstil; Erster Entwurf nach unseren Wünschen - Seite 13420
19Neubau Einfamilienhaus ca.220qm, 2. Entwurf Stadtvilla - Seite 259
20Durchbruch Bad und Ankleide ohne Türe? - Seite 212

Oben