Wie die Zeit vergeht.. aber ich möchte natürlich keine Antwort bzw. den Stand der Dinge schuldig bleiben. Tut mir leid, kein Update in letzter Zeit geliefert zu haben, aber aber dafür war die Muse (und auch keine Entscheidung) vorhanden.
Bezogen auf den Haus-Scheunen-Ausbau nimmt alles Fahrt auf: kommende Woche wird die noch vorhandene Waschküche abgerissen und dann das Fundament samt Streifen (für die noch zu versetzende Außenmauer) gelegt & mit der Dachrenoviertung begonnen... und für das Fundament müssen natürlich nun die Toilette, Dusche, Anschlüsse Küche etc. festgelegt werden. Und dafür gibt es nun das (neue) Konzept für das EG bzw. auch die darüber liegenden Stockwerke. Im Prinzip habe ich bei dem Konzept ein sehr gutes Gefühl - das kann gut funktionieren.
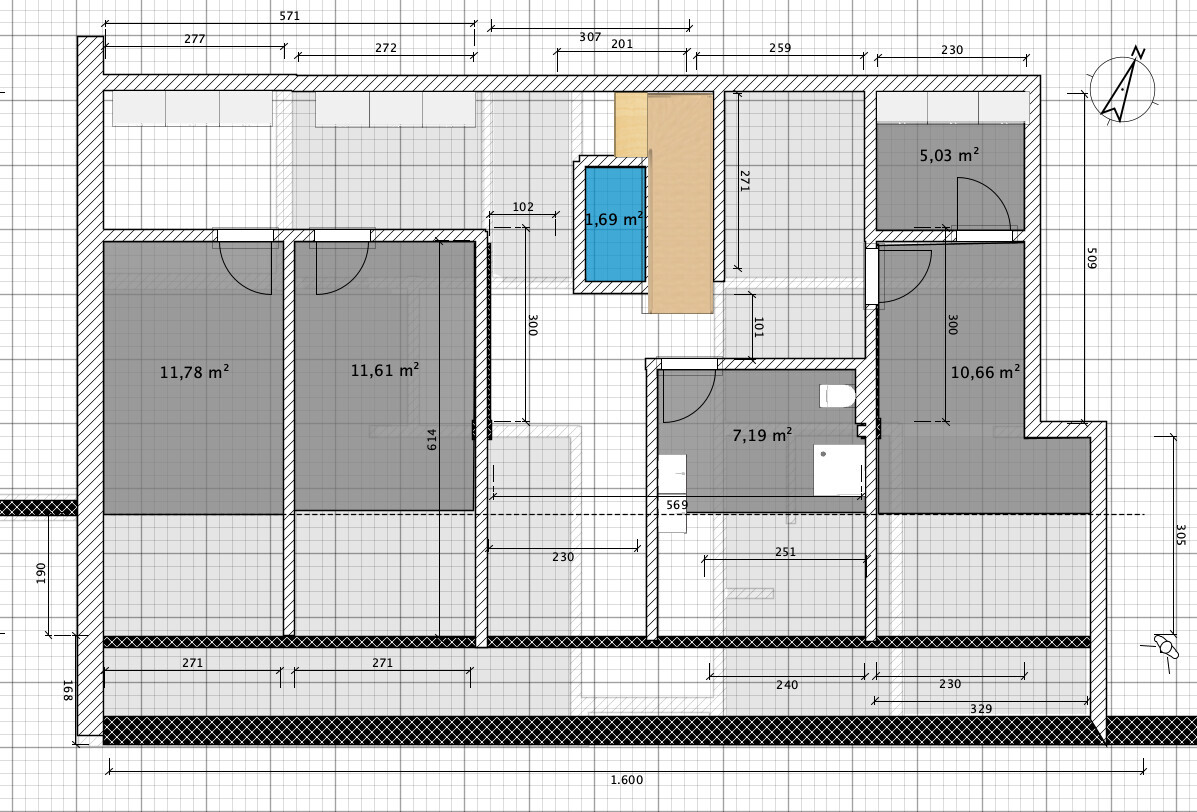
Die Treppe ist nun doch nach hinten gewandert. Grund dafür war schließlich, dass die Chillout-Zone mit TV-Raum im Allraum ganz hinten als nicht praktikabel erachtet wurde. Gerade mit drei kleinen Kindern tagsüber lesen, knuddeln - der Raum würde nicht genutzt werden (zumindest nicht in der Art wie wir leben). Und wir haben uns daher dazu entschlossen, denn Allraum zu verändern & den Chillbereich des WZ doch nach vorne zu verlagern, auch wenn der Allraum kleiner wird. Das Gäste-WC vorne zu lassen hat leider auch nicht mehr geklappt - die Südseite wurde durch die Restriktion nur 1m breite als die planlinke Mauer zu gehen, verhindert. Und schließlich hatten wir die Auswhal: größeres Elternbad oder kleiner mit Gäste-WC - die Entscheidung fiel für das größere Bad. Das Einzeichnen der dann zu verwendenen Mauerdicke (+-17,5cm) + 1m max nach außen gaben der Rest: Toilette ab nach oben!
(
@ypg : ich weiß, Dein Konzept mit er Treppe weiter vor hätte auch funktioniert, aber mit diesen Restriktionen haut es doch nicht mehr hin in Anbetracht wie wir unseren Tages- und Abendablauf einschätzen. Dennoch mag ich Deinen Einsatz nicht missen & danke Dir abermals!)
Ich lass nun einfach mal die Screenshots kommentarlos so stehen - auch wenn es genug Kommentare oder Erklärungen geben mag. Mehr dazu eher später. Und das OG und DG ist noch nicht komplett schlüssig, was die Treppe besitzt. Da muss noch daran gearbeitet werden.
Erdgeschoss (EG) - Obergeschoss (OG) - Dachgeschoss (DG)
Aber wenn jemand noch etwas dazu sagen mag - nur zu! Dafür sind wir ja hier & ich nehme allen Input gerne noch mit!
