Grundriss Mehrgenerationenhaus Umbau alte Scheune

4,80 Stern(e) 11 Votes
Zuletzt aktualisiert 19.11.2025
Sie befinden sich auf der Seite 26 der Diskussion zum Thema: Grundriss Mehrgenerationenhaus Umbau alte Scheune
>> Zum 1. Beitrag <<

Y

ypg

So... ich muss mal sammeln. Auch mich, da ich am Freitag noch Änderungen vorgenommen habe, diese aber wieder leider, geschuldet des "aus den Augen, aus dem Sinn" zusammensetzen muss.
es gibt viele schöne Ideen!
Ja, es gibt viele schöne Ideen. Nur muss man sich als Bauherr auch äusseren Umständen fügen und der Realität ins Auge sehen.
Bei Euch: Ihr habt eine Scheune und wollt sie umbauen. Ich korrigiere mich: Ihr habt eine halbe Scheune mit Vorgaben - zudem nur eine Seite für Fenster. Da mag man ein breites Sitzfenster, hat nur keinen Platz dafür. Und nicht zu vergessen: der Ausblick muss stimmen. Und wo ein grosses Sitzfenster, da geht auch der Blick hinein ins Familienleben.

(1) Eingang: aktuell steht man direkt vor der Scheune im Freien. Wäre es denkbar, denn Eingang zumindest ein wenig reinzuversetzen?
Habe ich mal realisiert - im Screenshot die anderen Änderungen (Bad, Speis, Diele) gleich mit:


Grundriss eines Hauses: offener Wohn-/Essbereich, Küche, Flur, Bad, WC, Elternzimmer, Ankleide, HWR.


(2) Bad: Badewanne, WC etc. sind ja eher noch Platzhalter & ich erwarte ja auch kein fertiges Design vom Bad. :) Aber wie breit ist denn die Dusche (begehbar oder nicht) und bekommt man die Toilette eher weg vom Waschbecken? Eventuell die Badewanne drehen - dann müsste das Bad auf Kosten des Schlafzimmer oder der Diele ein wenig breiter. Wir brauchen kein zimmerhohe Schamwand - aber ein wenig mehr verdeckt gefällt es der Dame im Haus. ;-)
Ein recht schmales Bad ist kein Disaster, sondern eher besser zu möblieren als einen Tanzsaal. Schlanke Bäder sehen immer etwas edler aus, da die Möbel ruhiger an den Wänden sitzen. Man sollte darauf achten, dass man bei Toilettenbenutzung nicht immer nur auf Kunstlicht angewiesen ist und die Dusche darf da für wenige Minuten Benutzung dann auch eher, zumal man Wände zum Duschen braucht, dunkler sein. Benutzung der Wanne sollte beruhigen.
Waschtisch kann Tageslicht auch ganz gut vertragen.
Da es ja das Elternbad ist, welches zwei nahestehenden Personen benutzen, wundert mich der Wunsch nach einer Schamwand. Man sollte es doch eigentlich hinbekommen, in seinem Tagesrythmus zu Zweit seine Viertelstunde gemeinsam getrennt zu arrangieren. Und wenn es mal drückt: ein Gäste-WC ist ja auch noch da. Ansonsten rate ich dazu, doch einfach das Gäste-WC mit einer Schiebetür zum Hauptbad zu verbinden - das spart eine Toilette. Bei 3 Kindern würde ich das aber nicht raten, auf eine Toi zu verzichten.
Ich habe die (für mich überflüssige) Schamwand mal eingepflegt und einen Screenshot des Blickes von der Tür aus gemacht.


Badezimmer: Badewanne rechts, Waschbecken mit Unterschrank links, Fenster, schwarz-weißer Fliesenboden


Wie sie sehen, sehen sie nichts. Da das Schlafzimmer gerade mal knapp über 3 Meter Breite hat und die Diele nun auch kein Schlauch werden soll (ich erinnere an die Scheunen-Vorgaben), halte ich nichts von einer Verschmälerung der beiden Bereiche. Als Screenshots mal die Maßangaben der Einzelbereiche:

Grundriss eines Wohnraums: Eltern-Schlafzimmer, Bad mit Wanne, WC, Fliesen- und Holzboden.

Grundriss: Eltern-Schlafzimmer mit Doppelbett; Bad mit Badewanne; getrenntes WC.



Grundriss eines Innenbereichs: Diele, Ankleide, Bad mit Badewanne, WC und Treppe.


Ich sag es mal ganz ehrlich: fängt man jetzt an, irgendwo da etwas rumzufrickeln, geht vieles verloren. Es fängt jetzt schon an, im Gäste-WC eng zu werden: Türen kollidieren oder andere Sachen. Der Fachmann muss auch mal die Wasserleitung überprüfen, die gibt außerdem den Ausschlag, wie und wohin das ein oder andeer Sanitärstück.
(3) Speis: das ist eher ein technisches Ding -
.. ist geändert, siehe weiter oben. Die Diele wird wieder schmal...

(4) Kamin: das ist gerade noch der Knackpunkt.
Da lass ich Euch allein. Wenn Ihr einen Fachmann habt, dann der.
Hier nochmal ein paar Maße (Hinweis: sie alle beruhen auf Deine nicht korrekten Angaben, die ich kopiert habe, und ich habe die Wände teils auf schmalen 10cm gelassen, weil ja alles nur der Inspiration dient)

Grundriss eines Wohnzimmers: grauer Fliesenboden, schwarze L-Couch, blaue Säule.

Grundriss eines offenen Wohn- und Essbereichs mit Kücheninsel, Esstisch, Sofa und Treppe.


Zum OG mache ich einen neuen Beitrag auf.
 
Zuletzt bearbeitet:
Y

ypg

Zum Kamin nochmal:
Man kann ihn da hinten an der langen Wand machen, dann hat man bei der Raumgröße aber nichts mehr beim Esstisch-Sitzen etwas davon.
Ich sehe jetzt kein Problem darin, ihn dort zu machen, wo ich ihn geplant habe. Da kann er als Raumteiler dienen, und er ist von jeder Seite aus zu sehen.
Ob man ihn beim Mittagessen-kochen anhaben muss? Ich denke mal, nicht. Ob er am Abend stören könnte? Dann sollte man eventuell ganz auf ihn verzichten, denn er macht nun mal Wärme. Eine Dämmplatte zw Kamin und Kühlschrank könnte man ja einplanen. Keine Ahnung.
Ich muss leider auch sagen, dass man das nur planen kann, wenn man Gewohnheiten von Euch kennt. Die kennen wir hier nicht. Ich weiß auch nicht, ob der Allraum so umgesetzt werden soll wie er zur Zeit von mir geplant ist. Ich kann mir vorstellen, dass sich da noch viel ändern wird.
 
Y

ypg

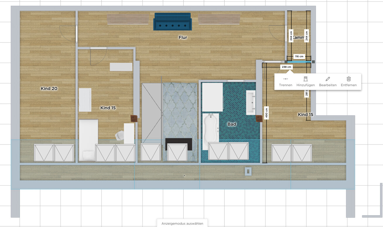
(6) Bad: ich würde das Bad und das Kinderzimmer tauschen.
Ich habe das mal gemacht (gleich mit Maßen, Achtung: Kinderzimmer sind Bruttomaße oder mit Gaube, anders setzt es das Programm nicht um) und setze das in den Vergleich zum Anfang:
Grundriss einer Wohnung: Flur mit blauem Sofa, drei Kinderzimmer, Bad mit Badewanne.

Grundriss einer Wohnung: Flur, Bad, Kammer, zwei Kinderzimmer (Kind 20, Kind 15).

Grundriss eines Wohnplans: Flur mit Sofa, links zwei Kinderzimmer, rechts Kammer und Badewanne.



Grundriss eines Hauses: Flur mit Sofa, Tischkicker; drei Kinderzimmer, Kammer, Bad, Zimmer 11



Die Kinderzimmer mögen zwar alle etwas mehr an Grundfläche gewonnen haben, und das mag für Eltern auch das Wichtigste sein, aber ich sehe hier einen Verlust.
Zum einen sind die Zimmer jetzt noch verschiedener in den Größen (also zum linken), sodass Neid nicht auszuschließen ist. Vielleicht nicht jetzt, aber später. Außerdem werden sie - sie sind ja recht schmal - zu Schläuchen.
In der goldenen Mitte habe ich in dem rechteckigen Flur eine Chance zur Gemeinschaftsfläche gesehen: Spielen, Toben, Relaxen, Gemeinsam-sein. Der Flur war strukturiert und gab Kommunikationsfläche. Das Verziehen der Räume, sodass sie größer werden, zerstört das.
Letztendlich müsst Ihr das so machen, wie Ihr das wollt.
Hier nochmal ein Zwischendring:


Grundriss: Flur mit Treppe, Kammer, Bad und drei Kinderzimmer (16, 13,5, 15) mit Möbeln.



Da das Programm ja jeder bedienen kann und man aufhören sollte, wenn es am besten ist, so rate ich Dir, dass Ihr es mal selbst versucht. Dann bekommt man auch mal das Gefühl, was geht und was nicht ;) Oder Ihr holt Euch einen Architekten :)

Wäre schön, wenn Du uns auf den Laufenden hälst.
 
derclaus

derclaus

Natürlich abermals eine großen Dank, @ypg - für diesen letzten Feinschliff des Konzepts. Naja, Konzept ist gut... denn ich befasse mich ja schon länger mit der Scheuen, aber nun ging es einen gigantischen Schritt voran. Wie erwähnt, die Treppe vorzusetzen ergab einen Verlauf, der sich einfach unglaublich gut (wie auch logisch) anführt. Nicht an der Wand planoben oder gar hinter dem Allraum - ins Zentrum damit! :)

Selbst den von Dir angebrachten Zweifel, ob der WZ-Bereich im Allraum so gestaltet sinnvoll sein mag, kann ich ausräumen. Es gibt für uns kein Alternative, da die Tür des Raums, die logische Platzierung der Küche und schließlich des WZ so einfach Sinn machen (bzw. uns abermals darin bestätigen, dass das WZ in die dunkle Ecke muss!).

Anbei noch ein Feedback von mir.

Und wo ein grosses Sitzfenster, da geht auch der Blick hinein ins Familienleben.
Stimmt absolut. Vergisst man auch schnell mal...

im Screenshot die anderen Änderungen (Bad, Speis, Diele)
Funktioniert. Klar, Gäste-WC nur zugänglich bei geschlossenem Eingang. Kein Problem. Diele noch groß genug. Wäre somit denkbar. Danke.

Ein recht schmales Bad ist kein Disaster, sondern eher besser zu möblieren als einen Tanzsaal.
Stimmt absolut. Und das mit der "Schamwand" war auch nicht zu Ende gedacht. Ich fand nur die T-angeordneten Bäder irgendwie "sinnvoll" in ihrer Handhabe und es ging mir mehr um die Frage, ob das Bad breiter sollte... aber das sollte man auch verhindern. Persönlich finde ich große Bäder nicht so sinnig, zumindest verbringt meine Familie nur einen Bruchteil ihres Tages dort.

Danke auch für den Screenshot des Bads.

Hier nochmal ein paar Maße
Vielen Dank für den Input. Wenn die Wände festgelegt werden, wird eh noch geschoben. Ich habe am Wochenende mit dem Bauleiter (aka Schwiegervater) begonnen, die Pläne direkt in einem professionellen 3D-Programm umzusetzen - unter Berücksichtigung der Mauerdicke, Wasserleitungen etc. - bin gespannt welche Räume sich besonders verkleinern werden.
 
Zuletzt bearbeitet:
derclaus

derclaus

Außerdem werden sie - sie sind ja recht schmal - zu Schläuchen.
Stimmt. Ich dachte auch an den "Mittelweg", d.h. die Mauern der Kinderzimmer so weit zu ziehen, dass diese schräge Stütze der Pfeiler eingemauert sind. Ich finde auch, dass diese 20-30 cm mehr dann ausreichend sind. Das von Dir beschriebene Raumgefühl - da bin ich mit Dir eins, das darf nicht zu schlauchig wirken. Plus diesen potentiellen Gemeinschaftsraum - der wird gut. Einfach so eine Fläche zu haben, ist super. Tischfußball, Tischtennis oder einfach ein Ort der Begegnung. Da gibt es sicherlich Nutzungspotential, das sich dann im Familienleben so ergibt.

Danke, für die Maße bzw. Deine Einschätzung.

Da das Programm ja jeder bedienen kann und man aufhören sollte, wenn es am besten ist, so rate ich Dir, dass Ihr es mal selbst versucht.
Vielen Dank für den Hinweis.

Bis ich hier im Forum meine Frage platziert hatte, habe ich auch die meisten Objekte u.a. in SweetHome3D selbst entworfen oder die Ideen meines befreundeten Messebauers & Zimmermanns darin nachgebaut (hatte ich mal unter #1 gepostet, a long time ago...). Aber ich muss sagen, dass der Deinige Ansatz mit der Treppe in der Mitte -und viele weiteren Ideen und Gedanken von Dir!- einfach unübertroffen waren. Gerade das Gäste-WC doch an die Sonnenseite zu führen - toll! Jedenfalls fühlte sich einfach von Anfang an richtig an und von Deinem Konzept wird sich sicherlich mehr wieder finden, als man aktuell glaubt. So geht es mir zumindest! :)

Es mag Dir vielleicht ganz natürlich von der Hand gegangen sein... aber für unsere Projekt ein riesen Schritt & ich kann Dir wirklich gar nicht genug dafür danken!

Wäre schön, wenn Du uns auf den Laufenden hälst.
Das werde ich.
 
Zuletzt aktualisiert 19.11.2025
Im Forum Grundrissplanung / Grundstücksplanung gibt es 2536 Themen mit insgesamt 87979 Beiträgen


Ähnliche Themen zu Grundriss Mehrgenerationenhaus Umbau alte Scheune
Nr.ErgebnisBeiträge
1Planung Gäste-WC im Neubau - Wie groß muss es sein? (DIN?) - Seite 2107
2WC-Fenster Gäste-WC neben der Eingangstür - inzwischen nogo? 44
3Gäste-WC: Decke abhängen oder Rohr verkleiden? - Seite 216
4Lichtanschluss falsche Stelle Gäste-WC 29
5Beispiel Kaltwasserhahn für Gäste-WC 12
6Lage Gäste-WC - Eingangsbereich? 28
7Gäste-WC (1,65qm) und Bad (4,88qm) Sanierung 21
8Gäste-WC Anordnung - Tipps? 19
9Fenster im Gäste-WC/Gästezimmer trotz Garage möglich? - Seite 333
10Rollladen im Gäste-WC ja oder nein? 35
11Planung Gäste-WC, brauche eure Tipps 17
12Entwürfe Gestaltung Fliesen Bad / Gäste-WC - Seite 319
1312x9,6m 2 Vollgeschosse, Keller, DG, 4 Kinderzimmer - Seite 14153
14Grundriss erster Entwurf - Meinungen erwünscht - Seite 321
15Stadtvilla Grundriss 185m² - Bitte um Feedback! - Seite 2155
16Bewertung Keller / Siedlungshäuschen Bayern - Seite 753
17Grundriss Einfamilienhaus, 200m2, 2 Vollgeschosse, Garage, ohne Keller 39
18Wände vor den Fußböden fliesen? 11
19Grundrissplanung Hanghaus mit 5 Kinderzimmer - Seite 11370
20Zwei Bäder: Wo sollen Fliesen hin? - Seite 349

Oben