Grundrissbewertung Einfamilienhaus

4,30 Stern(e) 3 Votes
Zuletzt aktualisiert 18.11.2025
Sie befinden sich auf der Seite 2 der Diskussion zum Thema: Grundrissbewertung Einfamilienhaus
>> Zum 1. Beitrag <<

S

Singerl

Hi,

also ist schon hart die Antwort von Lynx1984 zu lesen.
Natürlich ist da auch viel Wahres dran.
Vorweg muss ich jedoch sagen das wir bereits eine genaue Liste angefertigt haben, bezüglich welche Räume was beinhalten sollen.
Außerdem wollen wir kein Architektenhaus mit vielen Schnörkel usw.

Ich bitte euch deshalb nochmal für eine grobe Analyse des Grundrisses um wirklich die groben Fehler nicht zu übersehen.

Also Lynx1984 welche Tücken siehst du oder ein Architekt an diesem Grundriss!

Danke und schönen Gruß
Singerl
 
Zuletzt bearbeitet von einem Moderator:
L

Lynx1984

Hallo Singerl,

ohne jetzt Eure genaue Liste zu kennen ist es natürlich schwierig eine vollständige Bewertung des Grundrisses abzugeben, aber einige Punkte zum Überdenken:

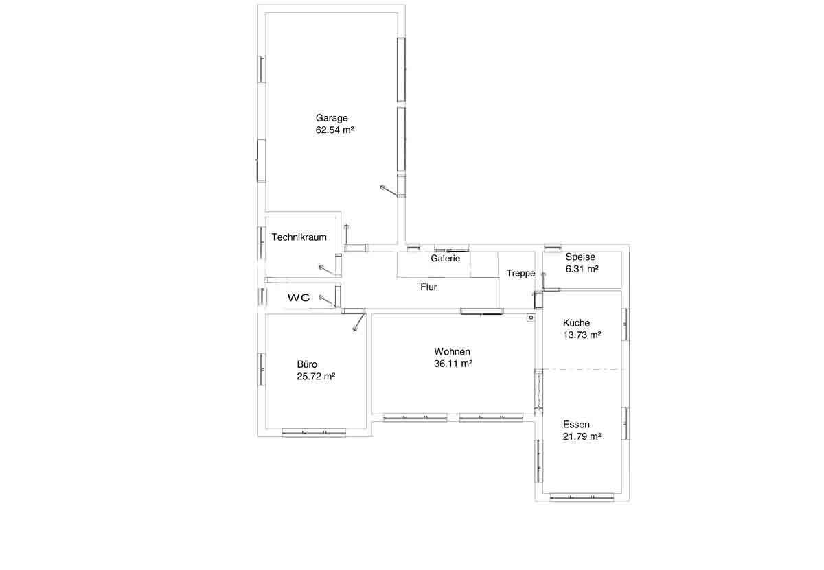
EG:
- Viel Platz für Kellerersatzraum und Garage geopfert. Durch die Anordnung wird die Auffahrt geradezu riesig im Vergleich zum Haus sein.
- Wegeführung in der Küche. Wie ist der Weg in die "Speisekammer" von der Haustür aus?
- Die Essecke ist ein toter Winkel. Es wird sehr ungemütlich wirken von 3 Seiten Fenster zu haben und zu einer Seite hin eine offene Küche. Essen auf dem Präsentierteller neu interpretiert...
- Wie wollt Ihr die Sofas und die schrankwand im Wohnzimmer stellen? Wie man es dreht und wendet... Entweder man muss über Eck schauen, hat die Südfensterseite im Rücken, oder man versperrt die Wege in Richtung Küche
- Soll in das Wohnzimmer zum Schornstein ein Kamin/Ofen? Warum gerade dort hin?
- Kellerersatzraum verschenkt durch die schiefe Wand gewaltige Fläche. In meinen Augen ist das unnötig.
- Technikraum gilt analog.
- Gäste-WC ist durch den Türanschlag schwierig WC + Waschbecken unter zu bringen
- Flur: Bei so einem großen Haus würde mir eine Nische für die Garderobe fehlen
- Flur: Raumeindruck: Bei so einem großen Haus läuft man im Flur erst einmal voll gegen eine Wand => Haus wirkt nicht wie eine Villa!

OG:
- Zugang zum Schlafzimmer durch das Büro ist eine Katastrophe! Damit verschenkst Du nicht nur in beiden Räumen viel Platz, sondern baust Dir ein umständliches Häuschen...
- Schlafen: Beim Eintreten läuft man gegen eine Wand
- Schlafen: Wie willst Du das Bett hinstellen? Scheint mir alles sehr schmal und ungemütlich, obwohl Lichtdurchflutet durch 3 Fenster... Wollt Ihr bei so viel Grundfläche im gesamten Haus Euch wirklich in so ein kleines Schlafzimmer begeben?
- Ankleide durch schiefe Wände deutlich weniger nutzbar! Komfortgewinn vs. Platzverlust passt nicht zusammen.
- Zugang zum Bad durch den Mini Flur schwierig. Tür zum Büro versperrt Weg. Unfälle sind vorprogrammiert.
- Im Büro wird es sicherlich schwierig einen Schreibtisch gut zu platzieren. Wer es nicht mag, dass jeder von hinten auf den Bildschirm schauen kann wird damit nicht glücklich werden!
- Spielflur hört sich nett an, doch würdest Du Deine Kinder wirklich an der Treppe rumkrakseln lassen? Flur ist relativ groß, leider ohne Funktionalitätsgewinn. Eine gewendete Treppe wäre nicht mal nötig!
- Es fehlt Abstellfläche im OG!


Ich denke die meisten Kompromisse macht Ihr durch die Winkelform, die so gar nicht zu Euren restlichen Grundrisswünschen passen wollen. Muss es diese Winkelform sein? Auch in Bezug auf Energieeffizienz ist es ja nicht gerade förderlich! Also wirklich bitte diese Winkelform nochmals überdenken! Mal für Euch nen krassen Gegenentwurf mit einem komplett quadratischem Grundriss machen...Als abgemilderte Form mal den Winkel nicht so hart ausbilden...
Es ist hart stundenlage Arbeit wieder zu verwerfen - doch schließlich muss eine Architekt dies auch jahrelang studieren... Es ist noch kein Meister vom Himmel gefallen.

Was anderes: Du schreibst es wird kein Architektenhaus? Wer macht dann Eure Grundrisse? Hoffentlich nicht ein einfacher Zeichner eines GU's, der für mögliche eigene Idee/Verbesserungsvorschläge nichtmal bezahlt wird und daher nur "abzeichen" wird?!

Beste Grüße
 
C

CADAMaRa

Hallo Singerl,

was für eine Haustechnik (Heizung) baut ihr denn ein? Wenn das nichts spektakuläres ist, also Standard Gasbrennwert, dann könntet ihr den Kellerersatzraum und den Technikraum auch zusammenlegen. Die Wände im allgemeinen erscheinen mir etwas dünn, also nicht überrascht sein, wenn die Räume etwas kleiner werden. Wie wollt ihr denn bauen? Stein auf Stein oder Holzfertighaus? Die Wanddicken unterscheiden sich dort erheblich. Die Ankleide im OG erscheint mir auch etwas klein. Ihr solltet dort Mindestmaße einhalten, um euch nicht beengt zu fühlen. Ansonsten ist das OG ganz schön. Wenn ihr wollt schicke ich euch überarbeitete Entwürfe.

Gruß CADAMaRa
 
S

Singerl

Hallo, vielen Dank für deine Gedanke. Ich möchte die einzelnen Punkte gerne kommentieren.

EG:
- Viel Platz für Kellerersatzraum und Garage geopfert. Durch die Anordnung wird die Auffahrt geradezu riesig im Vergleich zum Haus sein.
Die Auffahrt soll von den Kindern als Spielfläche genutzt werden. Wir bauen hinter meinem Elternhaus auf eine landwirtschaftliche Fläche. Deshalb ist genug Garten vorhanden.
- Wegeführung in der Küche. Wie ist der Weg in die "Speisekammer" von der Haustür aus?
Dies ist derzeit ein großes Problem. Ich möchte gerne unter der Treppe einen zusätzlichen Zugang zur Küche haben. Leider bei einer Massiven Treppe nicht möglich.
- Die Essecke ist ein toter Winkel. Es wird sehr ungemütlich wirken von 3 Seiten Fenster zu haben und zu einer Seite hin eine offene Küche. Essen auf dem Präsentierteller neu interpretiert...
Das empfinde ich nicht so. Wir haben keine Nachbarn. Also nur der Blick zum Nachbarfeld. Auch die Offenheit zur Küche empfinde ich nicht so problematisch. Eine Raumtrennung mit Glas soll später die Küche etwas abtrennen.
- Wie wollt Ihr die Sofas und die Schrankwand im Wohnzimmer stellen? Wie man es dreht und wendet... Entweder man muss über Eck schauen, hat die Südfensterseite im Rücken, oder man versperrt die Wege in Richtung Küche
Der Fernseher ist auf der Längsseite, an der Wand zum Kellerersatzraum. Durch die Breite des Raumes ist eine Schrankwand in Verbindung mit der Couch möglich. Die Couch soll nur bis zur Eingangstüre gehen. Dahinter ist offener Raum.
- Soll in das Wohnzimmer zum Schornstein ein Kamin/Ofen? Warum gerade dort hin?
Wo wäre deiner Meinung nach der optimale Raum. Ich dachte ein Zentraler Holzofen wäre optimal für die Temperaturverteilung im Haus. Zur unterstützung der Zentralheizung.
- Kellerersatzraum verschenkt durch die schiefe Wand gewaltige Fläche. In meinen Augen ist das unnötig.
Dieses Problem wurde daraufhin behoben. Siehe neue Skizze.
- Technikraum gilt analog.
Wurde behoben.
- Gäste-WC ist durch den Türanschlag schwierig WC + Waschbecken unter zu bringen
Ich hoffe die Größe langt für Urinal,Toilette, und Waschbecken mit Spiegel.
Ansonsten versuche ich noch die Lage des WC-Raums im Flur zu verlagern. Ich find bloß keinen besseren Platz.
- Flur: Bei so einem großen Haus würde mir eine Nische für die Garderobe fehlen
Ich möchte neben der Eingangstüre die Garderobe installieren. Die Schuhe kommen unter die Treppe.
- Flur: Raumeindruck: Bei so einem großen Haus läuft man im Flur erst einmal voll gegen eine Wand => Haus wirkt nicht wie eine Villa
Die Eingangstüre ist fast gegenüber der Wohnzimmertüre. Mann kann praktisch durch das ganze Haus zum Garten schauen. Natürlich weiß ich das der Flur relativ klein ist.

OG:
- Zugang zum Schlafzimmer durch das Büro ist eine Katastrophe! Damit verschenkst Du nicht nur in beiden Räumen viel Platz, sondern baust Dir ein umständliches Häuschen...
Hab ich jetzt schon von vielen gehört. Deshalb wurde radikal geändert.
- Schlafen: Beim Eintreten läuft man gegen eine Wand
Geändert.
- Schlafen: Wie willst Du das Bett hinstellen? Scheint mir alles sehr schmal und ungemütlich, obwohl Lichtdurchflutet durch 3 Fenster... Wollt Ihr bei so viel Grundfläche im gesamten Haus Euch wirklich in so ein kleines Schlafzimmer begeben?
Ein 2mtr.Bett mit Nachtkästchen passt genau neben die Ankleide.
- Ankleide durch schiefe Wände deutlich weniger nutzbar! Komfortgewinn vs. Platzverlust passt nicht zusammen.
Die Ankleide gefällt mir halt so sehr. Natürlich nicht sehr groß aber hoffentlich ausreichend.
- Zugang zum Bad durch den Mini Flur schwierig. Tür zum Büro versperrt Weg. Unfälle sind vorprogrammiert.
Gelöst
- Im Büro wird es sicherlich schwierig einen Schreibtisch gut zu platzieren. Wer es nicht mag, dass jeder von hinten auf den Bildschirm schauen kann wird damit nicht glücklich werden!
Gelöst
- Spielflur hört sich nett an, doch würdest Du Deine Kinder wirklich an der Treppe rumkrakseln lassen? Flur ist relativ groß, leider ohne Funktionalitätsgewinn. Eine gewendete Treppe wäre nicht mal nötig!
Die Treppe wird halt durch ein Gitter gesichert. Das Teil gibts doch überall.
- Es fehlt Abstellfläche im OG!
Ich weiß ich weiß.

Die Hausform ist fest, mir kommt keine Quadratische Form auf den Bauplatz. Das sollen die anderen Bauen. Ich finds so einfach cool und mal was andres.:D

Ich war bereits beim Architekten. Leider ist mir das ganze zu teuer. Bei uns bauen eigentlich wenig Leute mit Architektenhilfe. Die bauleitung wird von meinem Vater in Verbindung mit mir gemacht. Der hat auch schon Erfahrung mit 2 Häuser. Ich denk das passt.
Ich hab auch schon nen guten Bauingenieur für die Planzeichnung beauftragt. Der macht mir das relativ günstig.

Für weitere Meinungen bin ich sehr dankbar. Ansonsten Dank Dir für deine Meinungen. Hat mich schon wieder ein Stück weiter gebracht.

Ist die Galerie bei dieser geringen Flurgröße möglich und sinnvoll?

Gruß und danke Singerl
 

Anhänge

S

Singerl

Hallo CADAMaRa,

also wir wollen Wärmepumpe mit Brunnentechnik oder Flächenkollektoren. Dazu einen großen Wasserspeicher 700ltr. damit die Pumpe nicht ständig schalten muß. Keine Solaranlage aber KFW70-Anforderungen sollten schon sein. Die Außenwände sind 36,5er-Mauer massiv mit Füllung W08/W07. Die erwähnte Zwischenwand ist eine 24er-Mauer massiv und tragend, also gar nicht so dünn. Durch die 19,5kb-Grenze ist der Plan schon sehr grob und dadurch so nicht erkennbar.
Ich weiß die Ankleide ist wirklich klein, find aber keine Lösung dafür.
Deshalb schick mir bitte deine Entwürfe. Würden mich schon sehr interessieren.

Dank dir
Singerl
 
B

Bauexperte

Hallo,

Ich weiß die Ankleide ist wirklich klein, find aber keine Lösung dafür.
Angehängte Lösung überdenken?

Generell ist Geld sparen gut, nur bei dem, was Dir vorschwebt, wirst Du ohne guten, fähigen Architekten nicht weit kommen. Außerdem bin ich fast überzeugt, dass Dein Budget - auch als Selbstbauer - nicht ausreichen wird ;)


Freundliche Grüße

Grundriss eines Einfamilienhauses mit Garage, Büro, Wohnzimmer, Küche und Essen.


2D-Grundriss eines Hauses mit Schlafzimmer, Kind 1, Kind 2, Flur und Bad
 
Zuletzt aktualisiert 18.11.2025
Im Forum Grundrissplanung / Grundstücksplanung gibt es 2536 Themen mit insgesamt 87965 Beiträgen


Ähnliche Themen zu Grundrissbewertung Einfamilienhaus
Nr.ErgebnisBeiträge
1WC-Fenster Gäste-WC neben der Eingangstür - inzwischen nogo? - Seite 244
2Fenster im Gäste-WC/Gästezimmer trotz Garage möglich? - Seite 333
3Grundrissfrage, Treppe, Fenster, Ausrichtung 12
4Stadtvilla mit gerader Treppe, offene moderne Bauweise, 140m² 18
5REH - Grundrissplanung - Küche zu klein - Seite 430
6Entwurf - alle Richtungen bei Neubau vom Einfamilienhaus - Seite 691
7Grundrissplanung Einfamilienhaus 150qm - Tipps zur Verbesserung? - Seite 31441
8Grundrissoptimierung Stadtvilla + Aufschüttüberlegung - Seite 271277
9Gäste-WC Anordnung - Tipps? 19
10Rollladen im Gäste-WC ja oder nein? 35
11Grundrissplanung Neubau 2 Vollgeschosse + Dachausbau 20
12Planung Gäste-WC im Neubau - Wie groß muss es sein? (DIN?) - Seite 5107
13Nicht-bodentiefe Fenster im Wohnzimmer unmodern? Welche Vorhänge? - Seite 217
14Treppe im Wohnzimmer als Hype - Pro & Contra? - Seite 426
15Grundriss für 150qm Einfamilienhaus mit Wohnzimmer nach Norden - Seite 321
16Bungalow 135qm: Grundriss + Fenster - Seite 11104
17Grundriss Einfamilienhaus 150qm - Fenster- und Badplanung - Seite 218
18 Küchenplanung mit tiefen Fenster - Seite 343
19Grobe Schnitzer im Grundriss? Küche zu klein? - Seite 639
20Grundrissplanung Wohnzimmer und Flur zu schmal? 21

Oben