Grundriss Einfamilienhaus auf schmalem Grundstück

4,30 Stern(e) 3 Votes
A

AnniePH

Liebes Forum,

wir sind gerade in der Grundrissplanung mit unserer Architektin und würden uns über Anregungen und/oder Infos freuen. Unser Grundstück ist recht schmal und hat auf der einen Seite einen Feldweg sowie auf der anderen Seite eine großflächige, fast grenzständige Bebauung durch einen Bauernhof.
Derzeit befindet sich auf dem Grundstück noch ein alter Vierkanthof, der im Zuge des Neubaus abgerissen wird. Auf dem Lageplan sind in gelb alle Teile markiert, die abgerissen werden. Lila bleibt als Kellerersatz, Lagerfläche stehen. In rot sieht man die ungefähre Position des Neubaus.
Wir bauen also sozusagen in zweiter Reihe, dies gefällt uns so und ist mit dem Bauamt abgeklärt.
Hier anbei unser Fragebogen:


Bebauungsplan/Einschränkungen
Größe des Grundstücks: ca. 1000qm
Hang: nein
Grundflächenzahl
Geschossflächenzahl
Baufenster, Baulinie und -grenze: Ende des Baufensters auf Höhe des Nachbarhauses 11a
Randbebauung
Anzahl Stellplatz: zwei im Carport
Geschossigkeit
Dachform
Stilrichtung
Ausrichtung
Maximale Höhen/Begrenzungen
weitere Vorgaben: richtet sich nach Nachbarbebauung, diese umfasst hauptsächlich Satteldachhäuser mit 1,5-2,5 Geschossen

Anforderungen der Bauherren
Stilrichtung, Dachform, Gebäudetyp: Satteldach ohne Dachüberstand
Keller, Geschosse: kein Keller, zwei Vollgeschosse
Anzahl der Personen, Alter: 2 Erwachsene, 3 Kinder (2 davon noch in Planung)
Raumbedarf im EG, OG: EG großer Allraum, separate Garderobe, kleines Büro
OG drei Kinderzimmer, Schlafzimmer mit Ankleide, Familienbad
Büro: Familiennutzung oder Homeoffice?: Homeoffice, nur großer Schreibtisch ohne Regale usw
Schlafgäste pro Jahr: 5 maximal
offene oder geschlossene Architektur: eher geschlossen, Treppe unbedingt vom Wohnbereich getrennt
konservativ oder moderne Bauweise: eine Mischung?
offene Küche, Kochinsel: Zeile mit Hochschränken sowie große Halbinsel
Anzahl Essplätze: 8
Kamin: gerne, wenn es passt
Musik/Stereowand: nein
Balkon, Dachterrasse: nein
Garage, Carport: Carport gerne an die Garderobe angeschlossen
Nutzgarten, Treibhaus: nein
weitere Wünsche/Besonderheiten/Tagesablauf, gern auch Begründungen, warum dieses oder das nicht sein soll: Waschen soll im EG sein mit kurzen Wegen nach draußen, große Garderobe mit separatem Eingang

Hausentwurf
Von wem stammt die Planung:
-Architektin

Was gefällt besonders? Warum? Separate Garderobe und Waschen gut gelöst, schönes EG gene

Was gefällt nicht? Warum?
Schlafzimmer im Süden! Fenster in EG-Dusche, Kinderzimmer dürften etwas größer sein

Preisschätzung laut Architekt/Planer: reines Haus 500.000€
Persönliches Preislimit fürs Haus, inkl. Ausstattung: 650.000€
favorisierte Heiztechnik: Wärmepumpe

Wenn Ihr verzichten müsst, auf welche Details/Ausbauten
-könnt Ihr verzichten: schwierig zu sagen
-könnt Ihr nicht verzichten: schwierig zu sagen

Warum ist der Entwurf so geworden, wie er jetzt ist? ZB
Architektin hat unsere Anforderungen umgesetzt

Vielleicht seht ihr hier ja noch grobe Schnitzer, die uns nicht aufgefallen sind oder habt Ideen, wie das Ganze noch verbessert werden kann.
Danke und viele Grüße
Annie
Katasterkarte: farbige Parzellen, Gebäude 7,11,11a,70, mit Maßangaben.

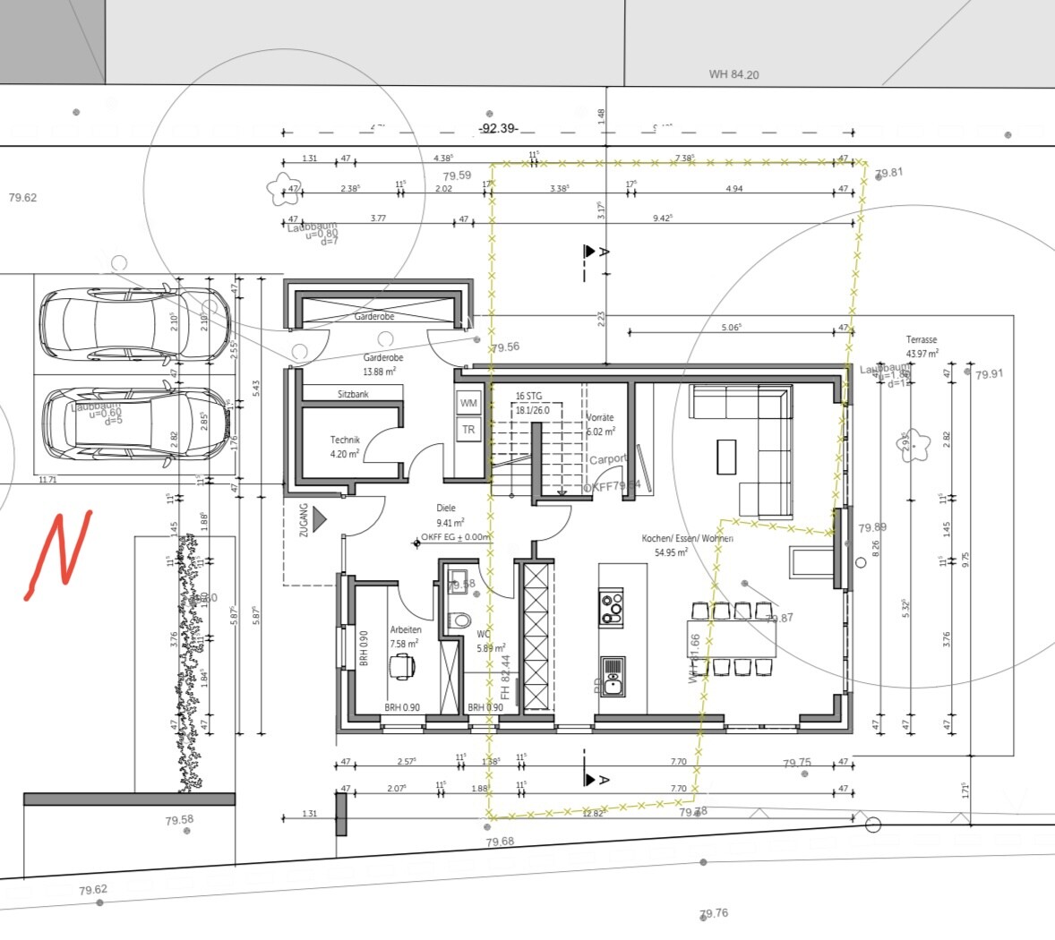
Grundriss eines Hauses mit Carport, Terrasse und gelbem Umrisspfad.

Grundriss eines Obergeschosses mit Bad, Schlafen, Ankleide, drei Kinderzimmern, Flur und Treppe.
 
A

AnniePH

Offiziell wird über unser Grundstück erschlossen, also im Bereich des abgerissenen Vierkanthofs. Wir planen aber durchaus, genauso wie 11a auch, den Feldweg zu nutzen…
Vorne soll zunächst kein Haus gebaut werden. Das behalten wir uns höchstens mal vor bei Geldsorgen oder für ein Familienmitglied.
Das Wohnhaus Nr. 7 (dunkelgrau) hat eine Wandhöhe von 5,42 Metern und eine Firsthöhe von 10,32 Metern. Die Nebengebäude (hellgrau) direkt neben unserem Neubau haben eine Wandhöhe von 4,50 Metern und eine Firsthöhe von 7,73 Metern.
 
K a t j a

K a t j a

Ich finde, das ist eine solide Sache. Einzig problematisch finde ich den Technikraum. Das ist ein Witz. Ich denke aber, dass man das gut lösen könnte, indem man Garderobe und Technik tauscht.
 
A

Allthewayup

Bei 3 Kindern frage ich mich wo ihr die ganzen Sachen unterbringen wollt die so ein 5 Personenhaushalt besitzt und wo macht ihr die Wäsche? Den Technikraum verstehe ich auch nicht. Wir haben 8qm und jeder der Handwerker ist am Fluchen inklusive mir. Ihr schafft es darin ja nicht annähernd die Arbeitsbereiche nach VDE und DIN frei zu halten.

Ihr müsst auf alle Fälle auf die Ankleide verzichten und den Kleiderschrank ins Elternschlafzimmer bringen. Die gewonnene Fläche versuchen anders zu verteilen aber das wird schwer auf der falschen Seite des Flures.

Die große Garderobe ist fast ein Muss mit 3 Kids da stimme ich euch zu. Aber leider steht sie nicht in Relation zur Größe des restlichen Hauses. Da ich selbst viel im Home Office bin kann ich das Arbeitszimmer im EG nachempfinden, aber irgendwie mag beim Wunsch nach drei Kindern in der Endausbaustufe das Arbeitszimmer keinen Platz mehr auf der wishlist haben. Die Diele würde ich ebenfalls versuchen etwas zu verkleinern (1-2qm). Der zweite Zugang über die Garderobe kostet unnötig Platz den ihr nicht habt. Ich würde hier wirklich keinen Zugang (zur Garage?) machen. Dort wo jetzt die Garderobe ist auf 8-9qm ein Büro. Den Technikraum auf 10qm aufbohren um Platz für Wasche machen dort zu haben. Jetziges Büro etwas verkleinern und zur Diele umfunktionieren. Bad im EG so gestalten das es Altersgerecht ist mit bodenebener Dusche (glaube das ist ja geplant) und ebenfalls etwas größer machen damit auch ein kleiner Schrank reinpasst für Handtücher, Toilettenpapier, Reiniger, etc.

Es geht hier doch um den Grundriss oder war da noch was? :-D
 
Y

ypg

Meinen Segen bekommt das Haus. Eigentlich. Da gibt es kaum etwas zu mäkeln. Eigentlich.
Außer: fehlende Abstellfläche und falsch geplante Nutzfläche!
Auch wenn es 10 Meter weiter einen Schuppen gibt - wo wird Wäsche getrocknet bzw. vorm Bügeln gelagert? Wohin mit Reinigungsmitteln, Dekokrams und all so Diverses, was man griffbereit haben will, wenn man es braucht, Aber in einen WZ-Schrank nicht reingehört?
Auch Technik, da passt ja nix rein. WW-Speicher, Elektroschrank… Kontrollierte-Wohnraumlüftung habt ihr wohl nicht? Manche planen allein für Technik 8qm ein, dann noch 2-3 Meter Schränke für allerlei wie Glühlampen, Batterien, Farbreste, Schrubber, Staubsauger und co. Unter der Treppe passt das auch nicht.
Knappe 6qm haben Heinz von Heiden Häuser, und das ist schon bei einer Person mit 2. Gefrierschrank und Wäscheturm äußerst grenzwertig. Wenn man dann noch Recycling-Müll zwischenlagern will, wohin damit?
Separate Garderobe und Waschen gut gelöst, schönes EG gene
Überhaupt nicht.
Garderobe + Diele machen 22qm aus, was man auf der Hälfte unterbringen kann Der direkte Durchgang von Carport ins Haus ist albern. Wenn man rückwärts einparkt, seid ihr quasi schon an der Haustür.
Wo der Einbauschrank? Für Waschmaschine und Trockner ist, da müsste der Garderobenschrank sein und Garderobe/Technik müsste sich den Rest als Hauswirtschaftsraum/Technik teilen. Ich stelle es mir auch sehr schlecht vor, Wäsche für 5 zu sortieren, feuchte Wäsche ggf vor der Wäsche zu trocknen oder nach dem Trockner auszudampfen oder so… wie auch immer: da wird ja irgendwo die Wäschekörbe liegen, man selbst hantieren wollen und das dann in einem Flur, der als Schleuse dienen soll.
Ich habe noch einmal geschaut: Vorräte ist ja schon etwas größer, aber 6qm auch nur mit „unter Treppe“. Da könnte Staubsauger und co hin. Aber dann ist das vom Allraum zu begehen, obwohl vorn am Haus ja ein Anbau für so etwas vorhanden ist.
Anderes: in Vorräte und auf der Ostseite würde ich im WZ dennoch ein Fenster setzen, auch wenn dort die Sicht genommen wird. Es kommt ja dennoch Tageslicht rein. Es ist ja nicht so, dass Eure Ostseite im Dunkeln liegt.
Küche mag modern sein - ich mag diese Flugzeugträger nicht schlimmer noch angedockt, die wieder lange Wege versprechen, und letztendlich gibt es mit den Hochschränken keine Ablagefläche, wo man die angebrochenen Getränkeflaschen abstellt, alles an Gedöns (Bretter, Messer, E-Geräte, Medikamente, Tablet und co) wo man schnell rankommen will, landet auf dem Tresen. Ich finde die Arbeitsfläche auch viel zu wenig. Wenn ich Herd und Spüle abziehe, haben wir im 2-Personenhaushalt 3,70! Arbeitsplatte, und das auch nur, weil ich 40cm anbauen musste, weil der KVM keinen Platz mehr hatte.
Was bekommt Ihr für eine Technik? Wenn ohne Lüftungsanlage, dann sollten die Kinderzimmer noch ein Fenster über Eck bekommen.
 
Zuletzt aktualisiert 09.12.2025
Im Forum Grundrissplanung / Grundstücksplanung gibt es 2549 Themen mit insgesamt 88390 Beiträgen


Ähnliche Themen zu Grundriss Einfamilienhaus auf schmalem Grundstück
Nr.ErgebnisBeiträge
1Grundrissfrage, Treppe, Fenster, Ausrichtung 12
2Haus, Garage / Carport auf dem Grundstück platzieren - Seite 493
3Grundrissplanung für schmales Grundstück 16
4Neubau Einfamilienhaus 160-170qm, 3 Kinderzimmer 39
5Einfamilienhaus 160m2 mit Keller, 500m2 Grundstück - Seite 8108
6Grundriss 120 m², Einfamilienhaus 1,5, Carport. Meinungen, Ideen, Vorschläge 42
7Fenster / Türen / Garderobe 13
8Bitte Meinungen zum Altbau-Grundriss 19
9Technikraum so klein wie möglich - Unter der Treppe? 10
10Hang-Grundstück, Carport abfangen 22
11Umbau Kinderzimmer - Fenster in zwei Fenster aufteilen? 20
12Einfamilienhaus ca. 150 qm Grundriss - Treppe wie planen? 65
13Stadtvilla mit gerader Treppe, offene moderne Bauweise, 140m² 18
14Grundriss Einfamilienhaus 2 Geschosse mit Keller ca. 190m², Grundstück ca. 440m² - Seite 278
15Einfamilienhaus ~200qm mit Doppelgarage auf trapezförmigem Grundstück - Seite 470
16Grundriss-Entwurf: Einfamilienhaus; mit Keller; 800qm Grundstück 10
17Einfamilienhaus mit 156 m² Grundfläche (2 Kinderzimmer + Homeoffice) 21
18Aufmusterung Elektro, Q2, Badfliesen, Drempel, bodentiefe Fenster - Seite 223
19Kleines Grundstück und Winkelbungalow - Seite 226
20Einfamilienhaus ~190qm, drei Kinderzimmer, ohne Keller - Feedback wäre mega 19

Oben