Grundriss Einfamilienhaus ~170m² - noch ganz am Anfang

4,80 Stern(e) 10 Votes
Zuletzt aktualisiert 12.01.2026
Sie befinden sich auf der Seite 10 der Diskussion zum Thema: Grundriss Einfamilienhaus ~170m² - noch ganz am Anfang
>> Zum 1. Beitrag <<

K

Klaustal

1. Google check Terrasse. Bauamt frag ich morgen.

Baufenster nicht relevant. ABER:
Ein Hausbesitzer ist verpflichtet seine Terrasse soweit zu entfernen, dass ein Abstand vom 2,50 Metern zur Grundstücksgrenze seines Nachbarn gewahrt bleibt. So lautet eine aktuelle Entscheidung des OLG Koblenz.
 
W

Würfel*

Verstehe euer Problem nicht? In meinem Entwurf habe ich eine 8,5 m lange Garage (= 6 m Garage + 2,5 m Anbau) eingezeichnet, die sogar 5,5 m Abstand von der Straße einhält (Weils bequemer zum Parken ist als 5 Meter). Bei einem 11 m langen Haus, das 3 m Abstand von der Straße einhält, schließt die dann hinten bündig mit dem Haus ab. Wie nah dann die Terrasse an der Grenze sitzt, ist doch egal. Mir geht's um den GaragenANBAUklotz, den ich in so einem kleinen Garten nicht haben wollen würde. Finde dass man den Garten damit unnötig verkleinert und neben dem Haus ist ja Platz für Garage UND Anbau. :cool:
 
Y

ypg

1. Google check Terrasse. Bauamt frag ich morgen.

Baufenster nicht relevant. ABER:
Ein Hausbesitzer ist verpflichtet seine Terrasse soweit zu entfernen, dass ein Abstand vom 2,50 Metern zur Grundstücksgrenze seines Nachbarn gewahrt bleibt. So lautet eine aktuelle Entscheidung des OLG Koblenz.
Habt ihr schon einen neuen Entwurf?
 
K

Klaustal

Ja, sorry, wir waren in "anderer Mission" privat unterwegs. Deswegen ging es nicht weiter. War nur mal kurzim Forum per Handy.

Wir waren in der zwischenzeit aber fleißig.
Schmales Haus ist mittlerweile definitiv raus. Küche bleibt zur Straße (besteht Frau drauf). Wir waren auch nochmal fast einen ganzen Tag auf dem Grundstück und haben uns den Sonnen und Schattenverlauf angeshen und die planrechte Seite ist wirklich durch Gelände und Bebauung relativ früh verschattet.

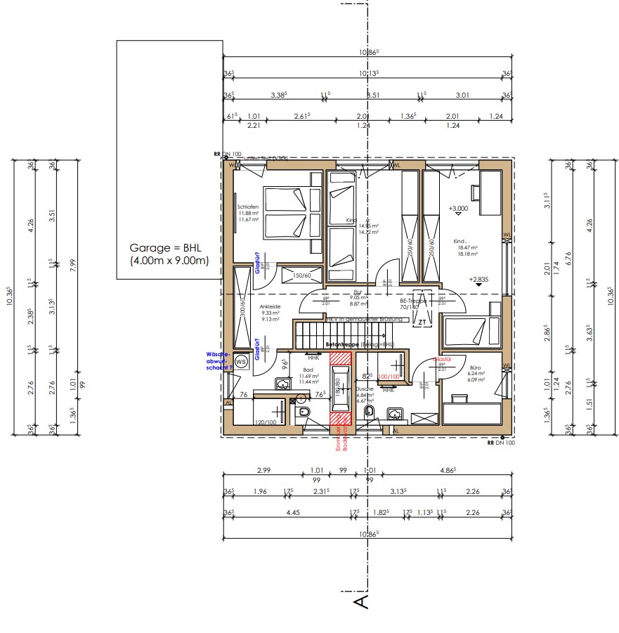
Hier die aktuellen Entwürfe.

Grundriss eines Einfamilienhauses mit Garage, Terrasse, Küche, Wohnen und Essen.

Detaillierter Grundriss eines Hauses mit Wohnen, Essen, Küche, Bad, Flur und Garage.

Detaillierter Grundriss eines Hauses mit Schlafzimmer, Kinderzimmer, Bad, Küche und Garage, Maße


Wir sind uns noch nicht sicher:
EG
- schmeißen wir die Dusche unten raus? Sie ist eigentlich gedacht um Kinder und mich wenn wir vollgematscht von draußen kommen etwas "aufzubereiten".
- Die Schränke im Flur zugunsten eines größeren Wohnzimmers aufzugeben. Würden dann nur einen schrank unter die Treppe bauen und evtl. vorne am Gästebad eine Nische machen für eine kleine Garderobe.
- Fenster und verteilung sind wir auch noch nicht sicher. Gerne eure Meinung / Ideen.
- Die Wandscheibe zwischen WZ und Essbereich machen oder nicht?

OG
- Oben überlegen wir noch die Dusche im Gästebad zu verkleinern und damit den Flur. Dadurch würde Büro größer.
- Ankleide ohne Fenster wissen wir noch nicht ob wir das alssen. Wir würden halt gerne unseren existierenden 3m Schrank mitnehmen. Deswegen ist es erstaml so.


Noche eine Frage am Rande.
Die Nachbarn haben alle schon L-Steine oder ähnliches gesetzt um ihr Grundstück zu begradigen. Darf ich die"Rückseite" davon einfach benutzen (bis dahin auffüllen) oder muss ich meinerseits selber L- Stein (oder ähnliches ) dagegen setzen?

So der Stand.
 
Zuletzt aktualisiert 12.01.2026
Im Forum Grundrissplanung / Grundstücksplanung gibt es 2565 Themen mit insgesamt 88794 Beiträgen


Ähnliche Themen zu Grundriss Einfamilienhaus ~170m² - noch ganz am Anfang
Nr.ErgebnisBeiträge
1Grundrissplanung mit enger werdendem Grundstück - Seite 223
2Grundriss-Entwurf: Einfamilienhaus mit Keller; 560qm Grundstück - Seite 765
3Einfamilienhaus 11,35x9,65 Grundrissplanung und platzierung auf dem Grundstück 29
4Hausbau 2.0 - erster Grundriss-Entwurf - Seite 13155
5Entwurf EFH, 2 Vollgeschosse, Satteldach, kein Keller, Doppelgarage - Seite 331
6Terrasse vom Nachbar grenzt an Garage 11
7Haus, Garage / Carport auf dem Grundstück platzieren 93
8Entwurf Einfamilienhaus mit Garage/Carport - bitte um Bewertung 22
9Ausrichtung Haus und Garage auf dem Grundstück - Seite 218
10Grundstück - Baufenster - Lage von Haus und Garage - Seite 244
11Entwurf für Anbau/Umbau von Einfamilienhaus zu ZFS 17
12Grundriss Einfamilienhaus mit Doppelgarage und Terrasse 19
13Haus und Garage - Wie am besten auf den Grundstücken platzieren? - Seite 467
14Schmales Grundstück und Einfriedung - Hilfestellung 13
15Trapezförmiges Grundstück: Erste Ideen / Verbesserungsvorschläge 13
16Garage, Carport oder beides? 12
17Erst-Entwurf vom Architekten - Optimierung 28
18Entwurf Einfamilienhaus mit ca. 168m² Feedback - Seite 537
19Bauvorhaben auf Grundstück mit leichter Hanglage - Seite 224
20Grundrissplanung Einfamilienhaus ca. 170 m² auf schmalem 750m² Grundstück - Seite 559

Oben