Grundriss Einfamilienhaus ~170m² - noch ganz am Anfang

4,80 Stern(e) 10 Votes
Zuletzt aktualisiert 27.11.2025
Sie befinden sich auf der Seite 7 der Diskussion zum Thema: Grundriss Einfamilienhaus ~170m² - noch ganz am Anfang
>> Zum 1. Beitrag <<

Y

ypg

Bist du eigentlich Architekt oder sowas?
Nein, bin ich nicht. Eher sowas. Wäre ich Architekt, wäre ich nicht hier, sondern Geld verdienen ;)

Da Euch bzw Deiner Frau das Schlanke nicht zusagt, habe ich mal Eure Grundfläche modifiziert, dass man doch etwas mehr Großzügigkeit und Licht hinein bekommt. Ich habe bewusst eine offene Treppe genommen (Podest kann mein Programm nicht) wegen eines Fensters, womit Du Westsonne ins Haus bekommst. Ankleide + TK + Hauswirtschaftsraum + Büro ist mMeinung nach genug Abstellfläche...
Ich finde dennoch, dass das Haus wie ein Klotz aussieht. Aber vlt gefällt Euch ja das ein oder andere an dem Vorschlag.
Im Übrigen finde ich das OG doch schon sehr gelungen bei Euch. Es ist ja nicht alles schlecht ;)

Erdgeschoss: Allraum mit Küche, Esstisch, Treppe; Flur, WC, HWR, TK; Garten links


Grundriss eines Wohnhauses mit KiBa, Büro, Zimmer 8, Kind 1, Kind 2, Eltern und Bad.
 
kbt09

kbt09

Das macht auf jeden Fall mehr Licht, wenn man mal so alles vergleicht und außerdem werden die notwendigen Flurflächen sehr gut genutzt. Außerdem ist der OG-Bereich, dort der Elternbereich wesentlich besser.



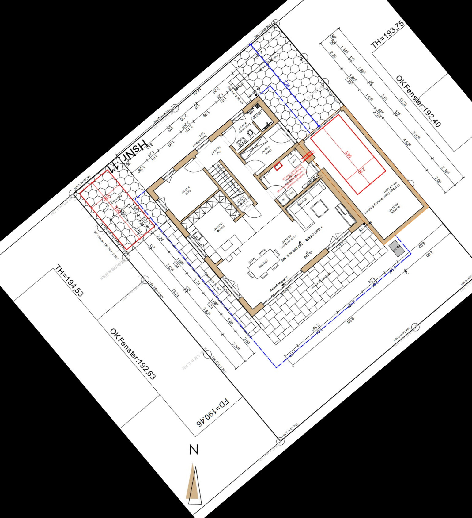
Gedrehter Grundriss eines Hauses mit Wohnzimmer, offene Küche, Flur, WC, HWR, Terrasse, Garage

Grundriss eines Hauses mit Wohnzimmer, Küche, Schlafzimmer, Bad und Terrasse.
 
Zuletzt aktualisiert 27.11.2025
Im Forum Grundrissplanung / Grundstücksplanung gibt es 2538 Themen mit insgesamt 88032 Beiträgen
Oben