Grundriss Einfamilienhaus ~170m² - noch ganz am Anfang

4,80 Stern(e) 10 Votes
Zuletzt aktualisiert 28.11.2025
Sie befinden sich auf der Seite 3 der Diskussion zum Thema: Grundriss Einfamilienhaus ~170m² - noch ganz am Anfang
>> Zum 1. Beitrag <<

K

Klaustal

Naja.
Das Haus in dem ich vorher gewohnt habe war auch ein "KFW30" Haus. Beinahe Passiv. Deswegen würde ich das nicht so pauschalisieren.

Trotzdem vielleicht bitte um eure Meinung.

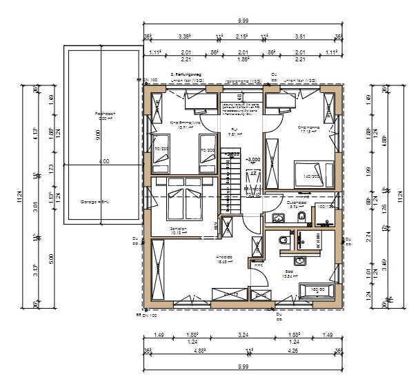
Küche nach Plan linksoben?
Eingang vorne (planunten) (mittig) sinniger?
Hat jemand zufällig ähnliche Grundrisse parat?
Auf jeden Fall auf gerade Treppe verzichten oder nur anders positionieren?
 
Y

ypg

… die Treppe aus der Mitte nehmen. Zumindest so, dass hinter und neben der Treppe das Geschoss nicht ein Schneckenlauf entsteht, der noch nicht einmal Tageslicht sieht.
Nach FengShui bleibt die Mitte übrigens am besten immer frei, damit das Chi fließen kann. Kommt hier recht gut zum Erwähnen.
Ich würde wohl die Länge vom Bauferster ausnutzen und das Haus schmaler planen mit SW-Garten. Es sieht ja doch eher mit der Breite etwas plump wie ein Mehrfamilienhaus aus.
 
K

Klaustal

Danke @ypg

Das war auch unser Gefühl. Mal schauen ob wir das soweit umplanen "dürfen". Wahrscheinlich kostet uns das extra Geld. Aber wir wollen ja auch nicht im Schneckenhaus leben.
 
Y

ypg

Danke @ypg

Das war auch unser Gefühl. Mal schauen ob wir das soweit umplanen "dürfen". Wahrscheinlich kostet uns das extra Geld. Aber wir wollen ja auch nicht im Schneckenhaus leben.
Warum? Ein Planer/Architekt ist Euch einen gefälligen Plan schuldig. Auch wenn es der dritte oder vierte Anlauf ist.
 
K

Klaustal

Frau hat sich mit der Planerin (Hausbaufirma) zusammentelfoniert und die hat mal ihre Wünsche eingearbeitet.
Unser Termin steht immer noch aus.
Ich denke es ist etwas besser, zumindest spiegelt es schon mal grob unsere Richtung wieder.
WZ wirkt noch sehr "hingeworfen" und oben das Ankleidezimmer ist natürlich auch Katastrophe.

Küche mit Insel vor hoher Schrankwand ist für meine Frau gesetzt. Sie pocht auch bisschen auf die gerade Treppe.

Ich werde die Tage mal versuchen das Haus etwas in die länge zu strecken. Bin leider nicht der beste Hausplaner glaub ich.

Ihr dürft es auch gerne zerreißen.

Grundriss eines Einfamilienhauses mit Garage, Wohn- und Essbereich sowie Küche.


Grundriss eines Wohnhauses: Zimmer, Küche, Bad, Treppenhaus und Garage.
 
Zuletzt aktualisiert 28.11.2025
Im Forum Grundrissplanung / Grundstücksplanung gibt es 2538 Themen mit insgesamt 88038 Beiträgen


Ähnliche Themen zu Grundriss Einfamilienhaus ~170m² - noch ganz am Anfang
Nr.ErgebnisBeiträge
1REH - Grundrissplanung - Küche zu klein 30
2Grundriss-Änderung Einfamilienhaus 150 m² aufgrund von Treppe 36
3Schrank unter der Treppe oder kleiner Abstellraum - Seite 211
4Grundriss EG Wohnen / Küche - Trennwand 19
5Probleme bei der aufteilung Küche, Essen , Wohnen - Seite 216
6Wohin mit der Treppe? Dachausbau Walmdachbungalow - Seite 219
7Grundrissfrage, Treppe, Fenster, Ausrichtung 12
8Grobe Schnitzer im Grundriss? Küche zu klein? - Seite 639
9Esstisch in einer kleinen Küche - Seite 449
10 2 Vollgeschosse, Durchgang Garage, Hauswirtschaftsraum unter Treppe - Seite 225
11Stadtvilla mit gerader Treppe, offene moderne Bauweise, 140m² - Seite 218
12Treppe im Flur, Grundriss steht eigentlich schon :o( - Seite 320
13Frage zu Grundriss, insbesondere Treppe 13
14Treppe Grundriss Planung, Auftritt und Unterzug - Seite 321
15Welche Treppe habt ihr genommen - Seite 277
16Gerade Treppe - warum? 14
17Baumangel - Treppe nicht in Ordnung - Seite 212
18Treppe - Sind die Treppenmaße 2.00x2.00m in Ordnung? - Seite 868
19Einfamilienhaus ca. 150 qm Grundriss - Treppe wie planen? - Seite 665
20Treppe - Welches Material, welche Optik? - Seite 214

Oben