G
g.gygax
Hallo zusammen,
bin hier schon seit einiger Zeit stiller Mitleser. Nachdem es bei uns nun endlich mit einem Grundstück in unserem Wunschort geklappt hat, haben wir mit der Planung unseres Mehrgenerationenhauses (Einfamilienhaus + 3-Zimmer Einliegerwohnung) begonnen. Leider macht das sehr kleine Baufenster die Planung aus unserer Sicht schwierig, deswegen möchte ich hier den derzeitigen Entwurf mal zur Diskussion stellen, um Anregungen und TIpps zu bekommen.
Hier also der Fragenkatalog:
Bebauungsplan/Einschränkungen
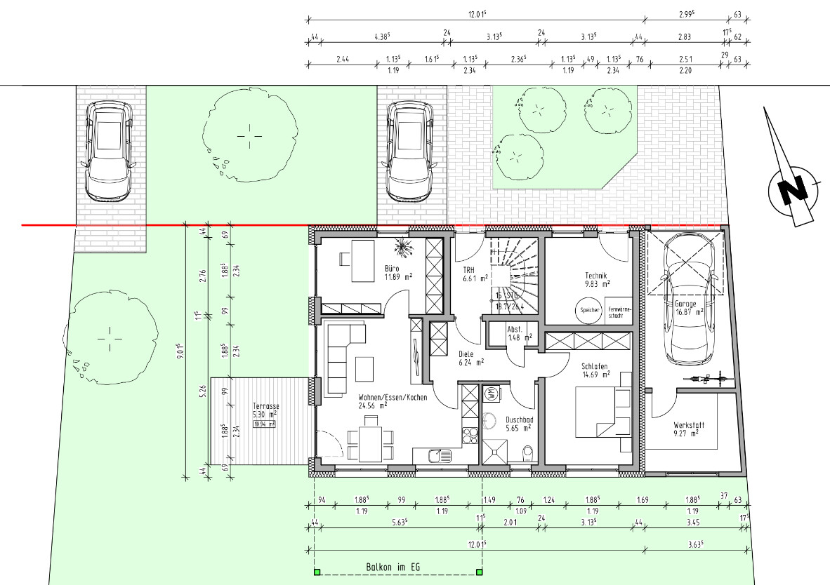
Größe des Grundstücks: ca. 575qm (ca.23x25m), Zufahrtsstraße auf der Nordseite, Gehweg und mit etwas Abstand Straße auf der Ostseite, Nachbarbebauung an Süd- und Westseite
Hang: leichter Nordosthang, das Gelände steigt von der Nord-Ost-Ecke des Grundstücks zur Süd-West-Ecke (ca. 34m) um ca, 2,2m an
Grundflächenzahl: Im Bebauungsplan nicht explizit genannt
Geschossflächenzahl: Im Bebauungsplan nicht explizit genannt
Baufenster, Baulinie und -grenze: an der Nordseite Baulinie mit Abstand 5m zur Straße, an der Ostseite Baulinie für Garage an der Grundstücksgrenze; Baufenster für das Haus ist 9x12m, für die Garage ist auf der Ostseite in direktem Anschuluss das Baufenster um 3-3,6m (leicht schräg) bis zur Grenze erweitert.
Randbebauung
Anzahl Stellplatz: Laut Stellplatzordnung benötigen wir 4 (inkl. Platz vor Garage), wir würden auch mit 2-3 zurecht kommen
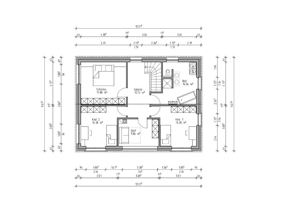
Geschossigkeit: Hanggeschoss + 2 Vollgeschosse
Dachform: Satteldach 15-20°
Stilrichtung: bisher hat uns der Landhausstil am besten gefallen, wir sind aber flexibel
Ausrichtung: Firstrichtung: Ost-West, ca 20° Richtung Westen (Im Uhrzeigersinn) gedreht
Maximale Höhen/Begrenzungen: Wandhöhe Rohfußboden HG bis Dachhaut 9,20m
weitere Vorgaben: KFW40+ ist Vorgeschrieben, Gauben sind nicht zulässig
Anforderungen der Bauherren
Stilrichtung, Dachform, Gebäudetyp: s.o.
Keller, Geschosse: s.o.
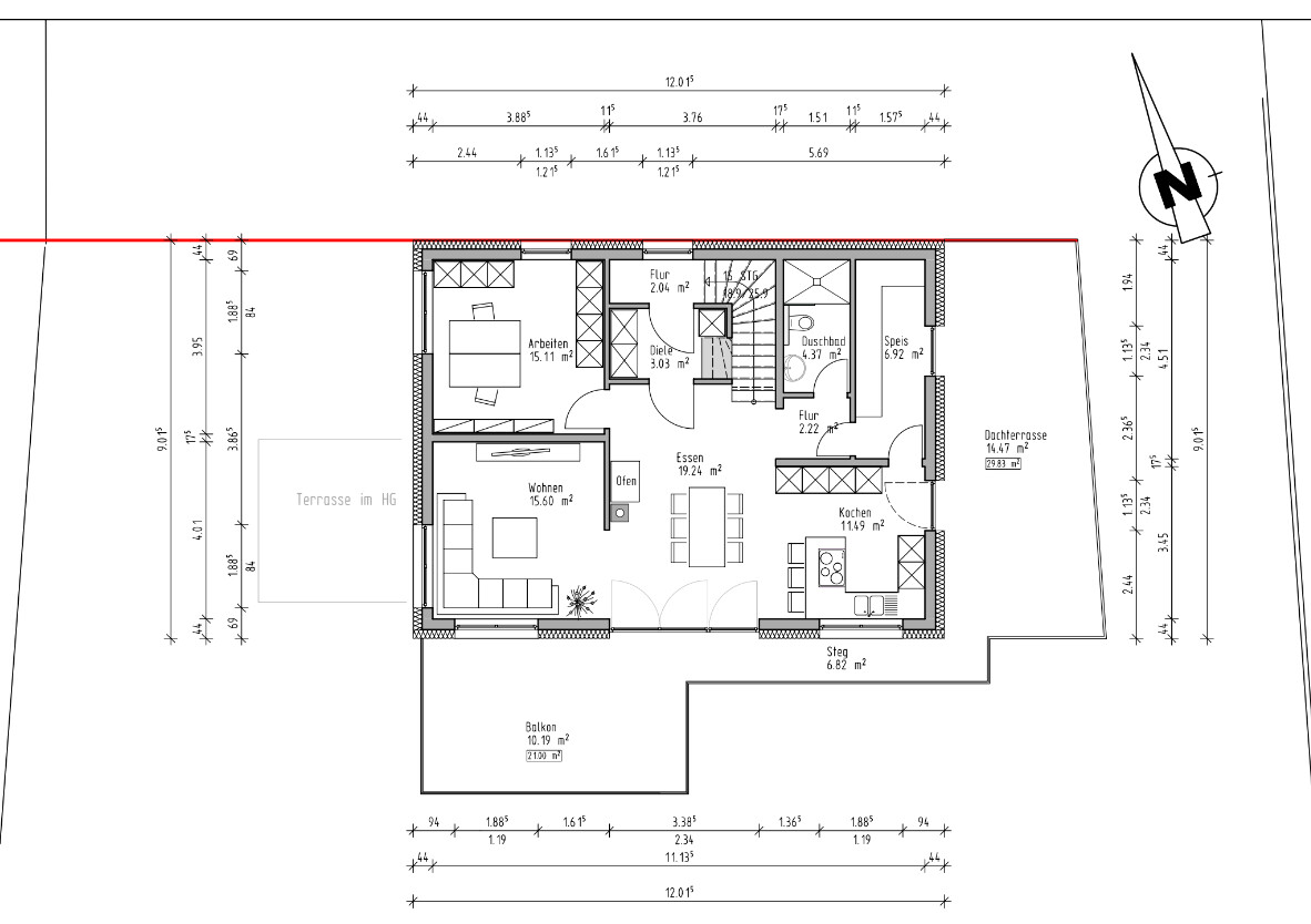
Anzahl der Personen, Alter: Haupthaus 2 Erwachsene + 2 Kinder; Einliegerwohnung 2 Erwachsene (sollte aber auch vermietbar sein z.B. 2 Erwachsene + 1 Kind)
Raumbedarf im EG, OG: EG: Wohnen/Essen/Küche+ Gästetoilette + Speis/Hauswirtschaftsraum; OG; 2 Kinderzimmer + Schl-Zi + Familienbad; EG oder OG: Büro + Gästezimmer (am liebsten 2 Räume) + zweites Bad (oder Dusche im Gäste-WC); HG: Wohnen/Essen/Küche + Schl-Zi + Kinderzimmer/Büro + Bad + Abstellkammer; HG oder EG: Diele für Haupthaus (mit "Schmutzschleuse")
Büro: Familiennutzung oder Homeoffice? Homeoffice 2 Personen (4-5Tage/Woche + 2-3 Tage/Woche)
Schlafgäste pro Jahr: 2-3 mal pro Jahr "Langzeitgast" für mehre Wochen (deswegen am liebsten separates Gästezimmer), zusätzlich 4-6 mal pro Jahr "Wochenendgäste"
offene oder geschlossene Architektur: prinzipiell eher offen, aber mit möglichen Rückzugsorten
konservativ oder moderne Bauweise: egal
offene Küche, Kochinsel: Küche offen zum Essplatz, Wohnzimmer (akkustisch) abgetrennt/abtrennbar, Kochinsel wäre optional
Anzahl Essplätze:: 8
Kamin: ja
Musik/Stereowand: nein, aber Bücherwand
Balkon, Dachterrasse: aufgrund Gelände Balkon im EG als Terrassenersatz
Garage, Carport: Einzelgarage wäre ausreichend
Nutzgarten, Treibhaus: Nutzgarten
weitere Wünsche/Besonderheiten/Tagesablauf, gern auch Begründungen, warum dieses oder das nicht sein soll:
die Einliegerwohnung soll Barrierefrei sein (Rollator), größere Schiebetüre / Doppeltüre zum Wohnzimmer: Prinzipiell mögen wir ein offenen Wohnen/Essen/Küche-Bereich, ab und zu wäre es aber gut wenn man im Wohnzimmer seine Ruhe hat, während sich jemand anderes gerade in der Küche austobt. Dach = Decke im OG (zumindest für die Kinderzimmer), lichte Raumhöhe im EG gerne etwas höher (ca.270m). "Schmutzschleuse" im Eingangsbereich, also eine Diele die mit einer Tür zum Wohnbereich o.ä. abgetrennt ist, dort sollte man nach dem reinkommen und Schuhe ausziehen nicht mehr durchgehen müssen (z.B. auf dem Weg ins OG oder zur Toilette)
Hausentwurf
Von wem stammt die Planung:
Planer eines befreundeten GU basierend auf unserern Handzeichnungen (der wird aufgrund der Entfernung das Haus nicht bauen)
Was gefällt besonders? Warum? Aufteilung und Anzahl der Räume, Ausrichtung der Räume (Licht und Straßenlärm), Küche mit Terrassenzugang
Was gefällt nicht? Warum? Eingangsbereich und Treppe im HG + EG: kommt mir zu verwinkelt eng vor, Kamin hätte ich gerne in der Nähe der Treppe ins OG damit die Wärme hochziehen kann + Kamin auf Nordseite des Dachs (wegen Photovoltaik), Abstellkammer HG zu klein
Preisschätzung lt Architekt/Planer: noch nicht vorhanden
Persönliches Preislimit fürs Haus, inkl Ausstattung: 650t€ (auf Gartengestaltung abgesehen von eventuell nötigen Abstützungen könnten wir erstmal verzichten)
favorisierte Heiztechnik: Anschlusszwang Fernwärme
Wenn Ihr verzichten müsst, auf welche Details/Ausbauten
-könnt Ihr verzichten: Büro und Gästezimmer getrennt, vergrößerte Geschosshöhe, Verbindungssteg der Terrassen im EG
-könnt Ihr nicht verzichten: Einliegerwohnung, Barrierefrei
Warum ist der Entwurf so geworden, wie er jetzt ist? ZB
Wir haben die Mindestgrößen für die einzelnen Räume abgeschätz und die Räume anhand der Umgebung (Hang, Lichteinfall, Aussicht, Straßenlärm) im Haus angeordnet. Diese Zeichnungen wurden fast 1:1 vom Planer übernommen.
Der Knackpunkt ist aus unserer Sicht (und auch aus Sicht des Planers) der Eingangsbereich, die Treppe HG -> EG und die obere Diele, das passt noch nicht richtig
Was ist die wichtigste/grundlegende Frage zum Grundriss in 130 Zeichen zusammengefasst?
Habt ihr Vorschläge, Ideen für den Eingangsbereich, die Treppe HG -> EG und die obere Diele, sodass der Rest ungefähr so bleiben kann wie er ist oder lieber nochmal die ganze Planung neu starten? Allgemeine Rückmeldung zur Planung?
Vielen Dank schon mal für euer Feedback! Sollte ich noch irgendwelche Infos vergessen haben, fragt bitte nach.
bin hier schon seit einiger Zeit stiller Mitleser. Nachdem es bei uns nun endlich mit einem Grundstück in unserem Wunschort geklappt hat, haben wir mit der Planung unseres Mehrgenerationenhauses (Einfamilienhaus + 3-Zimmer Einliegerwohnung) begonnen. Leider macht das sehr kleine Baufenster die Planung aus unserer Sicht schwierig, deswegen möchte ich hier den derzeitigen Entwurf mal zur Diskussion stellen, um Anregungen und TIpps zu bekommen.
Hier also der Fragenkatalog:
Bebauungsplan/Einschränkungen
Größe des Grundstücks: ca. 575qm (ca.23x25m), Zufahrtsstraße auf der Nordseite, Gehweg und mit etwas Abstand Straße auf der Ostseite, Nachbarbebauung an Süd- und Westseite
Hang: leichter Nordosthang, das Gelände steigt von der Nord-Ost-Ecke des Grundstücks zur Süd-West-Ecke (ca. 34m) um ca, 2,2m an
Grundflächenzahl: Im Bebauungsplan nicht explizit genannt
Geschossflächenzahl: Im Bebauungsplan nicht explizit genannt
Baufenster, Baulinie und -grenze: an der Nordseite Baulinie mit Abstand 5m zur Straße, an der Ostseite Baulinie für Garage an der Grundstücksgrenze; Baufenster für das Haus ist 9x12m, für die Garage ist auf der Ostseite in direktem Anschuluss das Baufenster um 3-3,6m (leicht schräg) bis zur Grenze erweitert.
Randbebauung
Anzahl Stellplatz: Laut Stellplatzordnung benötigen wir 4 (inkl. Platz vor Garage), wir würden auch mit 2-3 zurecht kommen
Geschossigkeit: Hanggeschoss + 2 Vollgeschosse
Dachform: Satteldach 15-20°
Stilrichtung: bisher hat uns der Landhausstil am besten gefallen, wir sind aber flexibel
Ausrichtung: Firstrichtung: Ost-West, ca 20° Richtung Westen (Im Uhrzeigersinn) gedreht
Maximale Höhen/Begrenzungen: Wandhöhe Rohfußboden HG bis Dachhaut 9,20m
weitere Vorgaben: KFW40+ ist Vorgeschrieben, Gauben sind nicht zulässig
Anforderungen der Bauherren
Stilrichtung, Dachform, Gebäudetyp: s.o.
Keller, Geschosse: s.o.
Anzahl der Personen, Alter: Haupthaus 2 Erwachsene + 2 Kinder; Einliegerwohnung 2 Erwachsene (sollte aber auch vermietbar sein z.B. 2 Erwachsene + 1 Kind)
Raumbedarf im EG, OG: EG: Wohnen/Essen/Küche+ Gästetoilette + Speis/Hauswirtschaftsraum; OG; 2 Kinderzimmer + Schl-Zi + Familienbad; EG oder OG: Büro + Gästezimmer (am liebsten 2 Räume) + zweites Bad (oder Dusche im Gäste-WC); HG: Wohnen/Essen/Küche + Schl-Zi + Kinderzimmer/Büro + Bad + Abstellkammer; HG oder EG: Diele für Haupthaus (mit "Schmutzschleuse")
Büro: Familiennutzung oder Homeoffice? Homeoffice 2 Personen (4-5Tage/Woche + 2-3 Tage/Woche)
Schlafgäste pro Jahr: 2-3 mal pro Jahr "Langzeitgast" für mehre Wochen (deswegen am liebsten separates Gästezimmer), zusätzlich 4-6 mal pro Jahr "Wochenendgäste"
offene oder geschlossene Architektur: prinzipiell eher offen, aber mit möglichen Rückzugsorten
konservativ oder moderne Bauweise: egal
offene Küche, Kochinsel: Küche offen zum Essplatz, Wohnzimmer (akkustisch) abgetrennt/abtrennbar, Kochinsel wäre optional
Anzahl Essplätze:: 8
Kamin: ja
Musik/Stereowand: nein, aber Bücherwand
Balkon, Dachterrasse: aufgrund Gelände Balkon im EG als Terrassenersatz
Garage, Carport: Einzelgarage wäre ausreichend
Nutzgarten, Treibhaus: Nutzgarten
weitere Wünsche/Besonderheiten/Tagesablauf, gern auch Begründungen, warum dieses oder das nicht sein soll:
die Einliegerwohnung soll Barrierefrei sein (Rollator), größere Schiebetüre / Doppeltüre zum Wohnzimmer: Prinzipiell mögen wir ein offenen Wohnen/Essen/Küche-Bereich, ab und zu wäre es aber gut wenn man im Wohnzimmer seine Ruhe hat, während sich jemand anderes gerade in der Küche austobt. Dach = Decke im OG (zumindest für die Kinderzimmer), lichte Raumhöhe im EG gerne etwas höher (ca.270m). "Schmutzschleuse" im Eingangsbereich, also eine Diele die mit einer Tür zum Wohnbereich o.ä. abgetrennt ist, dort sollte man nach dem reinkommen und Schuhe ausziehen nicht mehr durchgehen müssen (z.B. auf dem Weg ins OG oder zur Toilette)
Hausentwurf
Von wem stammt die Planung:
Planer eines befreundeten GU basierend auf unserern Handzeichnungen (der wird aufgrund der Entfernung das Haus nicht bauen)
Was gefällt besonders? Warum? Aufteilung und Anzahl der Räume, Ausrichtung der Räume (Licht und Straßenlärm), Küche mit Terrassenzugang
Was gefällt nicht? Warum? Eingangsbereich und Treppe im HG + EG: kommt mir zu verwinkelt eng vor, Kamin hätte ich gerne in der Nähe der Treppe ins OG damit die Wärme hochziehen kann + Kamin auf Nordseite des Dachs (wegen Photovoltaik), Abstellkammer HG zu klein
Preisschätzung lt Architekt/Planer: noch nicht vorhanden
Persönliches Preislimit fürs Haus, inkl Ausstattung: 650t€ (auf Gartengestaltung abgesehen von eventuell nötigen Abstützungen könnten wir erstmal verzichten)
favorisierte Heiztechnik: Anschlusszwang Fernwärme
Wenn Ihr verzichten müsst, auf welche Details/Ausbauten
-könnt Ihr verzichten: Büro und Gästezimmer getrennt, vergrößerte Geschosshöhe, Verbindungssteg der Terrassen im EG
-könnt Ihr nicht verzichten: Einliegerwohnung, Barrierefrei
Warum ist der Entwurf so geworden, wie er jetzt ist? ZB
Wir haben die Mindestgrößen für die einzelnen Räume abgeschätz und die Räume anhand der Umgebung (Hang, Lichteinfall, Aussicht, Straßenlärm) im Haus angeordnet. Diese Zeichnungen wurden fast 1:1 vom Planer übernommen.
Der Knackpunkt ist aus unserer Sicht (und auch aus Sicht des Planers) der Eingangsbereich, die Treppe HG -> EG und die obere Diele, das passt noch nicht richtig
Was ist die wichtigste/grundlegende Frage zum Grundriss in 130 Zeichen zusammengefasst?
Habt ihr Vorschläge, Ideen für den Eingangsbereich, die Treppe HG -> EG und die obere Diele, sodass der Rest ungefähr so bleiben kann wie er ist oder lieber nochmal die ganze Planung neu starten? Allgemeine Rückmeldung zur Planung?
Vielen Dank schon mal für euer Feedback! Sollte ich noch irgendwelche Infos vergessen haben, fragt bitte nach.