Einfamilienhaus - Meinungen zu unserem Entwurf

4,80 Stern(e) 5 Votes
Zuletzt aktualisiert 21.11.2025
Sie befinden sich auf der Seite 8 der Diskussion zum Thema: Einfamilienhaus - Meinungen zu unserem Entwurf
>> Zum 1. Beitrag <<

kbt09

kbt09

Mein Ansatz für so einen Elternbereich versuche ich immer so zu wählen, dass Zugang möglichst über Schrankbereich und von dort dann einmal zum Schlafbereich und einmal zum Badbereich verzweigt werden kann.

Mal ein paar Beispiele:
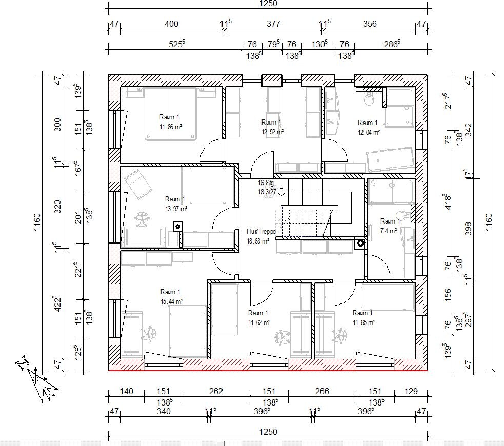
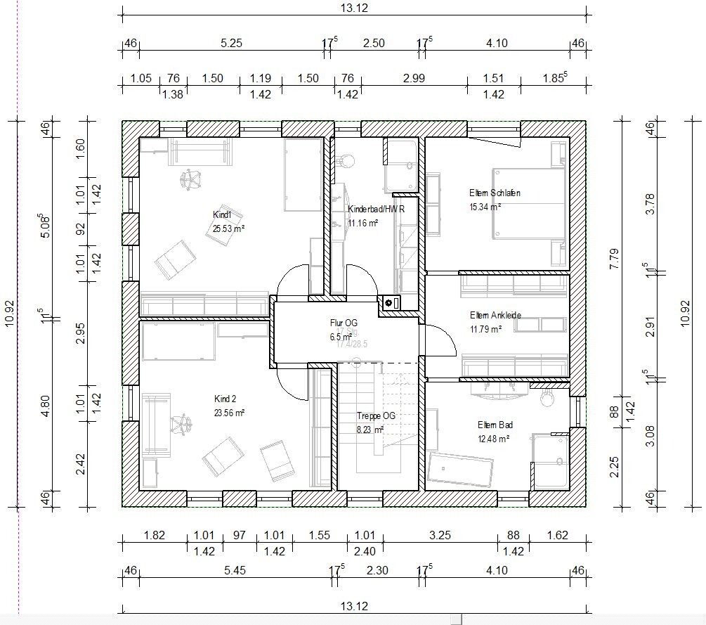
OG mit 4 Kinderzimmern ...
Grundriss eines Gebäudes mit mehreren Zimmern, Flur, Treppe und Türen (Maßangaben vorhanden).


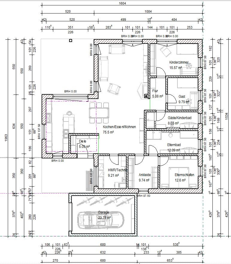
OG mit 2 sehr großen Kinderzimmern
Grundriss OG: Flur, Treppe, Kind 1, Kind 2, Eltern Schlafen, Eltern Ankleide, Bad


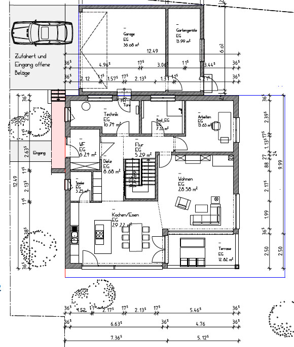
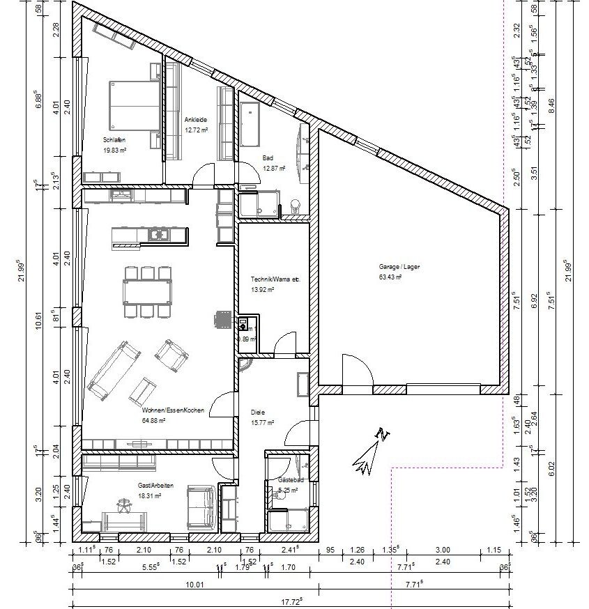
Variante aus einer Bungalow-Skizze:
Grundriss eines Hauses mit Küche/Wohnen, Flur, Schlafzimmer, Kinderzimmer, Gästezimmer, Bad, Garage.


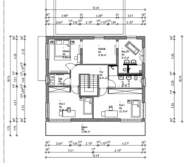
Noch eine Variante aus Bungalow-Skizze:
Grundriss eines Hauses: Wohn-/Ess-/Küche, Schlafzimmer, Ankleide, Bad, Gästezimmer, Technik, Garage
 
Y

ypg

Dann mal für Doofe: wenn mein Mann schläft, muss ich ihn nicht dauernd stören, wenn ich an Klamotten oder ins Bad muss. Ob mit dem Durchgehen überhaupt, ob mit Lichtanlichtaus oder etwas Geräusche.

Das Problem von Schichtdienstlern hat man im Alltag mit Ehepaaren genauso, wenn sie nicht gerade siamesisch miteinander umgehen.
 
A

Alex85

Dann mal für Doofe: wenn mein Mann schläft, muss ich ihn nicht dauernd stören, wenn ich an Klamotten oder ins Bad muss. Ob mit dem Durchgehen überhaupt, ob mit Lichtanlichtaus oder etwas Geräusche.
Hier ist niemand doof, nur weil deine Aversion gegen On-Suite Lösungen nicht geteilt wird.
Nicht jeder hat unkoordinierte Putzhilfen, Schichtdienste oder getrennte Aufstehzeiten.
Also lass die Konstruiererei und akzeptiere das Votum des Bauherren.
 
11ant

11ant

Mal ein paar Beispiele:
OG mit 4 Kinderzimmern ...
OG mit 2 sehr großen Kinderzimmern
Ich denke, in diesem Stadium kannst nicht einmal Du helfen. So lange der Bauherr in einem magischen Dreieck fünf Anforderungen auf Priorität Eins stehen läßt, läßt sich der gordische Knoten nicht durchschlagen. Deine ersten beiden Vorschläge aus #43 ähneln aus meiner Sicht noch zu fatal dem Ausgangsentwurf, die weiteren werden wiederum dem Bauherren (noch) zu radikal davon abweichen.

Das magische Dreieck lautet: Punkt A = Kopfkino mit dem Designerhaus, das man gerne nachbauen würde - Punkt B = Bedürfnisse der Bauherrenfamilie - Punkt C = reales Grundstück.
 
M

MBS2201

Hallo, danke für eure Meinungen. Die Prioritäten sind die eingezeichneten Zimmer, die auch benötigt werden. Seht ihr noch grobe Schnitzer? Sollte eventuell die Treppe durch eine andere Treppenart ersetzt werden?

Grundriss eines Einfamilienhauses mit Garage, Terrasse, Wohnen, Küche/Essen, Bad, Flur


Grundriss OG: Schlafzimmer, Ankleide, Bad, Flur, Kinderzimmer 1 & 2, Balkon.
 
Zuletzt aktualisiert 21.11.2025
Im Forum Grundrissplanung / Grundstücksplanung gibt es 2535 Themen mit insgesamt 87982 Beiträgen


Ähnliche Themen zu Einfamilienhaus - Meinungen zu unserem Entwurf
Nr.ErgebnisBeiträge
1Wert Grundstück und Bungalow B55 11
2Massiv-Passivhaus als Bungalow 36
3Entwurf Grundriss Bungalow Meinungen - Seite 322
4Blockhaus Bungalow. 15
5Meinungen zum Grundriss Bungalow 42
6Grundrissplanung Bungalow planen 46
7Hausbau:Bungalow-Villa-Einfamilienhaus? Suche Ansatz Eigenheimplanung 22
8Entwurf Grundriss Bungalow - Eure Meinungen bitte! - Seite 214
9Bungalow Grundriss - Seite 319
10Grundriss Bungalow auf Bodenplatte ca 110 qm - Seite 457
11Bungalow - 2 Etagen mit großem / 3 Etagen mit kleinem Grundriss? 11
12Grundriss 120qm bungalow Einfamilienhaus - Seite 215
13Aus Gewerbeobjekt wird ein Bungalow 62
14Barrierefrei Bauen - Bungalow oder Haus mit Treppenlift? 18
15Kosten Bungalow (220m^2) mit Dachterrasse - Seite 423
16Grundrissplanung 160qm Bungalow - Seite 228
17Bungalow Grundrissdiskussion 169 qm 14
18Baukosten Mini-Bungalow (ca. 50m²) 54
19Evolith-168qm Bungalow weißer Putz mit Grauschwarzen Schindeln 28
20Bungalow möglich bei Gefälle von rund 20%? 12

Oben