Einfamilienhaus - Meinungen zu unserem Entwurf

4,80 Stern(e) 5 Votes
Zuletzt aktualisiert 21.11.2025
Sie befinden sich auf der Seite 16 der Diskussion zum Thema: Einfamilienhaus - Meinungen zu unserem Entwurf
>> Zum 1. Beitrag <<

kbt09

kbt09

Hallo, der Eingang befindet sich auf der Westseite (pink) - Norden = Hauptstrasse.
Die Treppe ist absichtlich Richtung Norden gedreht, da wir die Treppen Richtung Süden (Küche/ Wohnzimmer) eher als unruhig (insbesondere in den Musterhäusern) empfunden haben.
Ich habe die Zeichnungen nochmals als .jpg hochgeladen.
Insbesondere würde mich eure Meinung zum Bild OG-angepasst interessieren, da ich die Zeichnung dementsprechend abändern lassen werde.

Gruß & Danke für die hilfreichen Antworten.
Das habe ich mir gerade noch mal angesehen.

Da sind 2 m Höhenunterschied lt.

und du willst Garage und EG auf eine Ebene bringen? Steile Einfahrt?

Oder .. wie ist das gedacht?

Gibt es denn von dem Architektenplan auch Ansichten etc.?

Meiner Meinung nach geht das ohne Fachmann gar nicht. Und ein Bauzeichner ist eben kein Fachmann.
 
Y

ypg

„Liebes Bauforum, ich habe ein Grundstück mit Bodenplatte gekauft. Nun soll da ein Haus darauf. Unser Architekt hat uns enttäuscht. Jetzt hoffen wir auf den Bauzeichner und Euch. EG gefällt schon ganz gut, aber das OG nicht.
Bedarf wäre....“

Dann kommt auch nicht auf Seite xy der Rat, das Haus zu verkleinern.
Auch zu einigen Nachfragen hättest Du mal Stellung nehmen können.

Aber egal, Spaß beiseite.
Dass das OG nicht richtig gemasst ist, ist ein zeitliches Desaster, finde ich.
Man sieht aber daran, dass der Treppenplatz so nicht funktioniert. Es fehlen planoben mind. ein Meter, um dort einen vernünftigen Raum zu setzen.

Du hast Dich aber auch so richtig in das EG verbissen, dass es für Dich unangetastet für gut befunden wurde und Du hier gar nicht mehr abgeglichen hast.
Das zeigt wieder sehr gut, dass alle Geschosse voneinander abhängig sind und gemeinsam betrachtet werden müssen.

Und nu?
 
Y

ypg

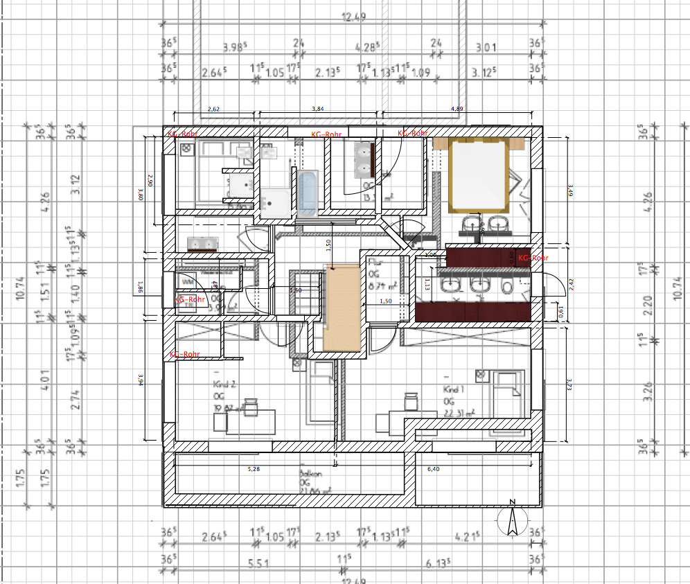
Hallo, ich habe das OG vom ursprünglichen Plan in der Software abgeändert.
Wegen der Treppe, da hast du recht.
Ich weiß gar nicht, ob Du mich richtig verstanden hast. Es geht nicht um diese kleine Differenz, die Du mit roten Linien veranschaulicht hast, es geht um die Maße, die an den Außenwänden stehen. Ohne Maße auch zu verstehen, wenn man sich das Gast-Wc mit seiner Breite von knapp 2Metern, Dein Bad/Schlafzimmer auf gleichem Platz aber um die 3 Meter misst.

Edit: wenn ich die Mauern noch mit addiere, sind es nur ca. 1/2 Meter... dennoch ist sowas wichtig bei einer Planung.
 
Zuletzt bearbeitet:
kaho674

kaho674

Na dann gibt es ja noch viel zu besprechen mit dem Bauzeichner.

Hier noch ne Variante. Sicher für die Katz.
Grundriss eines Hauses: Flur mit Treppe, HWR, Bad 1, Bad 2, Ankleide, Kind 1, Kind 2, Garage.
Spielerei halt.
 
M

MBS2201

Dass das OG nicht richtig gemasst ist, ist ein zeitliches Desaster
Was meinst du mit nicht richtig gemaßt den konkret? Das OG ist absichtlich in Y-Richtung kürzer, damit die m2 nicht zu viel werden. Im EG ist der Erker, wo die Oberseite als Balkon verwendet wird. Um den Überstand zu kaschieren, wurde der Balkon verlängert.
Du hast Dich aber auch so richtig in das EG verbissen
Da gebe ich dir recht. Hat uns gefallen und wollten dann dementsprechend das OG anpassen. Mittlerweile finde ich aber das EG auch nicht mehr so toll. Daher wären alle Variationen der Aufteilung möglich. Zumindest was von den KG Rohren her möglich ist.

Detaillierter Grundriss eines Apartments mit Wohnzimmer, Küche, Bad, Schlafzimmern und Balkon.


Grundriss eines Hauses mit offener Küche, Essbereich, Wohnzimmer, Flur, Bad, WC und Terrasse.
 
Zuletzt aktualisiert 21.11.2025
Im Forum Grundrissplanung / Grundstücksplanung gibt es 2535 Themen mit insgesamt 87978 Beiträgen


Ähnliche Themen zu Einfamilienhaus - Meinungen zu unserem Entwurf
Nr.ErgebnisBeiträge
1Balkon auf Garage auf Grenze 11
2Grundriss Einfamilienhaus (ca. 170 qm) mit Garage - Hanglage 35
3Einfamilienhaus mit 135 qm Wohnfläche plus KG mit integrierter Garage/Büro 19
4Hanghaus 235 qm mit Garage im Keller auf 3600 qm Grundstück 15
5Grundriss Einfamilienhaus 136m² mit Garage & Keller 17
6Einfamilienhaus 2 Vollgeschosse ohne Keller ca. 190m² - Seite 319
7Garage direkt an Einfamilienhaus. Fundament ausreichend? 20
8Hausfinanzierung - Haus, Garage und Bodenplatte ca. 290.000 EUR 11
9Technikraum in Garage einbauen? Ist dies möglich? - Seite 335
10Beheizung Garage. Was ist die beste / günstigste Lösung? 10
11Wo stellen wir Haus und Garage hin? 10
12Kostenschätzung Einfamilienhaus mit Garage 11
13Erstes Angebot, 157m2 mit Keller, KFW 70, Garage 14
14Grundrissentwurf eines Passivhauses 170m² mit Garage - Seite 218
15Garage: Gestaltungsmöglichkeit des Daches, Erscheinungsbild 14
16Begehbare Garage (Terrasse) 11
17Planung optimale Anordnung Haus, Garage und Einfahrt 13
18Grundriss mit Garage auf Grundstück realisierbar? - Seite 229
19Entwurf Einfamilienhaus mit Garage/Carport - bitte um Bewertung 22
20Wo günstige Garage beziehen? - Seite 211

Oben