Einfamilienhaus - Meinungen zu unserem Entwurf

4,80 Stern(e) 5 Votes
Zuletzt aktualisiert 09.01.2026
Sie befinden sich auf der Seite 3 der Diskussion zum Thema: Einfamilienhaus - Meinungen zu unserem Entwurf
>> Zum 1. Beitrag <<

M

MBS2201

Hallo, der Eingang befindet sich auf der Westseite (pink) - Norden = Hauptstrasse.
Die Treppe ist absichtlich Richtung Norden gedreht, da wir die Treppen Richtung Süden (Küche/ Wohnzimmer) eher als unruhig (insbesondere in den Musterhäusern) empfunden haben.
Ich habe die Zeichnungen nochmals als .jpg hochgeladen.
Insbesondere würde mich eure Meinung zum Bild OG-angepasst interessieren, da ich die Zeichnung dementsprechend abändern lassen werde.

Gruß & Danke für die hilfreichen Antworten.

Grundriss EG eines Einfamilienhauses: Küche, Essen, Wohnen, Bad, Arbeitszimmer, Terrasse


Grundriss Obergeschoss: Flur, Treppenhaus, 3 Schlafzimmer, 2 Bäder, Ankleide, Balkon.


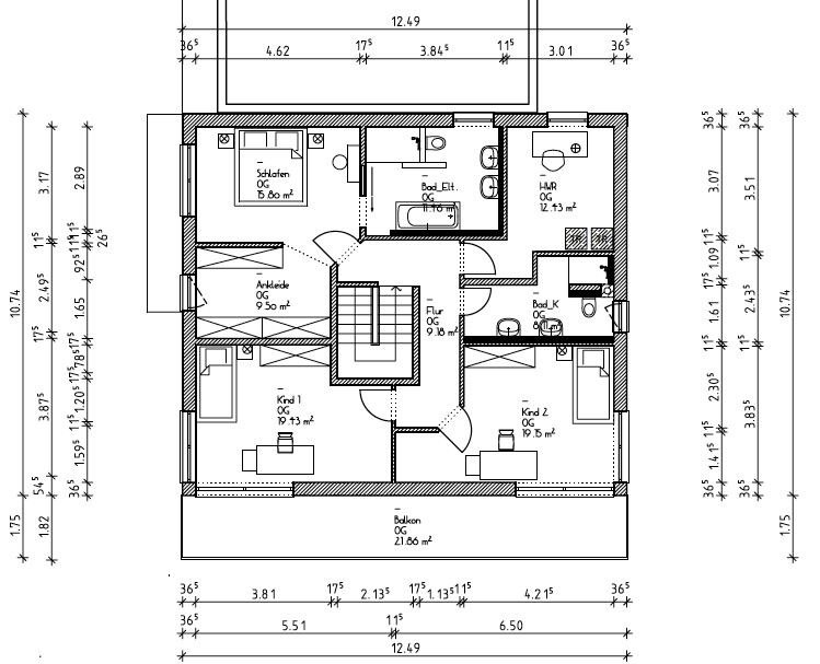
OG-Grundriss: Schlafzimmer, Ankleide, 2 Kinder, Flur, Bad mit Dusche, WC, Waschbecken, Treppe


Lageplan mit Gebäuden, Wegen, Grünflächen und Maßangaben
 
Z

Zaba12

Wie findest du denn deine Änderung im OG?

Der Eingang in den Hauswirtschaftsraum geht durchs Kinderbad. Der Eingang zur Dusche ist gefühlt 40cm breit. Das Fenster im Kinderbad wäre dann weg.

Habt ihr keinen Architekten der für Euch die Planung durchführt? Ich persönlich habe nach dem ersten Entwurf und vielen Stunden und Nächten mit Kopfzerbrechen erkannt, das dies nicht mein Job ist.
 
Y

ypg

Also: der OG-original ist besser, aber auch schlecht.
Als erstes nehme mal mittig im Süden diese Beule aus dem einen Kinderzimmer und plane von beiden Seiten dort je einen Einbauschrank ein. Davon haben beide einen Nutzen, das Haus einen Mehrwert und die Beule ist sinnig geplant.

Den Rest muss ich mir noch mal anschauen. Was allerdings unmöglich ist, ist der Zugang zum Hauswirtschaftsraum sowie das Stolpern über die Badewanne im Bad.
Zugang zum Schlafzimmer würde mir persönlich nicht gefallen, aber damit kann man leben, wenn die Ankleide eh nicht geschlossen ist und somit im jeden Fall der noch Liegende in seiner Ruhe gestört wird.

EG gefällt mir!


Mobiler Gruß von unterwegs
 
M

MBS2201

Hallo,
der Durchgang zum Hauswirtschaftsraum Raum durch das Kinderbad ist nicht optimal. Jedoch zur vorherigen Version deutlich besser. Das wäre ein Abstrich den wir in kauf nehmen müssten. Der Durchgang zur Dusche muss natürlich noch breiter werden. Ist nur ein Vorschlag zur originalen Zeichnung.
Unser Bauzeichner, hat leider nicht sehr viele kreative Ideen. Daher bin ich über jeden Vorschlag dankbar.
Lageplan mit Ausrichtung habe ich mit angehängt.

Übersichtlicher Baugrundstücksplan mit mehreren Hausgrundrissen, Straßen und Grünflächen
 
Y

ypg

Vielleicht:
Neben Kind 2 die Ankleide, im NO das Schlafzimmer, im Nord Mitte das Elternbad, daneben (planlinks) das Kinderbad und wo jetzt die Ankleide ist plus Ecke NW den Hauswirtschaftsraum.
Dadurch habt ihr das Schlafzimmer im Osten, den Zugang zum Schlafzimmer durch die Ankleide. Ihr habt dort eben mehr Raumbreite zur Verfügung.
Dafür nutzt ihr die nicht so breite Fläche im Norden für beide Bäder (kurze Leitungen) und den Rest als Hauswirtschaftsraum. Die Wäsche kann dann ungestört über dem Eingang rumschleudern.


Mobiler Gruß von unterwegs
 
Zuletzt aktualisiert 09.01.2026
Im Forum Grundrissplanung / Grundstücksplanung gibt es 2565 Themen mit insgesamt 88791 Beiträgen


Ähnliche Themen zu Einfamilienhaus - Meinungen zu unserem Entwurf
Nr.ErgebnisBeiträge
1 2 Vollgeschosse, Durchgang Garage, Hauswirtschaftsraum unter Treppe 25
2Geschlossene Küche planen mit Durchgang zum Hauswirtschaftsraum 18
3Grundrissplanung Stadtvilla mit rund 160 m² ohne Keller - Seite 4152
4Pfiffige Schlafzimmer Idee mit Ankleide gesucht 19
5Grundriss Schlafzimmer, Ankleide und Bad en Suite - Seite 336
6Grundriss Schlafzimmer mit Bad und Ankleide 62
7Einfamilienhaus mit seitlichem Eingang -Grundrissdiskussion? 17
8Eingang Grundriss welche Treppenvariante - Seite 231
9Grundrissplanung: Elternbad und Kinderbad - ja oder nein? - Seite 552
10Idee Schlafzimmer - Bett / Schrank Anordnung 32
11Grundrissplanung: Badezimmer Dusche 47
12Verbindung Schlafzimmer / Ankleidezimmer / Bad - Seite 316
13Walk-in Dusche, bitte um Ratschläge 27
14Ankleide/Schlafzimmer Problem - Grundrissdiskussion 25
15Extra-Bad vom Schlafzimmer oder doch Abstellraum? - Seite 329
16Badplanung: Gästebad mit Kinderbad zusammenlegen? 28
17Grundriss Einfamilienhaus ohne Keller/Schlafzimmer und Bad im EG - Seite 427
18Zugang von der Garage in den Hauswirtschaftsraum - Seite 449
19Wäscheabwurf in Dusche einbauen? - Seite 296
20Speisekammer vs. größere Küche vs. Hauswirtschaftsraum - Seite 213

Oben