Hausbau - Ratgeber
Bauherrenhilfe
- Bauherrenhilfe vor Vertragsabschluss
-- Warum einen unabhängigen Baubetreuer?
-- Vertragsgrundlagen
-- Bausumme
-- Zahlungsplan zur Kostenkontrolle
-- Pflichten des Bauherren vor Vertragsabschluss
-- Unterlagen beim Hausbau vor Vertragsabschluss
- Bauherrenhilfe nach Vertragsabschluss
-- Bauantrag bei Behörden
-- Bau-Genehmigungsverfahren bei Baubehörden
-- Bauspezifische Versicherungen
-- Bauzeitenplan
-- Baubeginn - die Letzten Pflichten der Bauherrschaft
- Bauherrenhilfe während der Bauzeit
- Gewährleistungsansprüche
- Bauabnahme
Baufinanzierung
- Baufinanzierung - Allgemeine Fragen
- Kreditarten
- Kredit-Konditionen
- Bausparen
- Staatliche Förderungen
- Verkehrswert
- Haushaltsrechnung und Bonität
Hausbau Planung
- Haustypen
- Hausbau Vorbereitungsarbeiten
- Das Baugrundstück
- Baugrund beim Hausbau
- Baurecht
- Gebäudeschutz
- Erdarbeiten und Wasserhaltung
- Stützmauern
- Einfriedung
- Untergeschoss
- Kanalisation
- Tragende Elemente
- Nichttragende Innenwände
- Fundation / Fundament
- Deckenkonstruktionen
- Dächer
- Kaminanlagen
- Treppen Rampen Leitern
- Dachbeläge und Spengler
- Fenster
- Sonnen und Wetterschutz
- Aussenputze
- Einbauten, Küchen, Türen
- Bodenbeläge und Unterlagsböden
- Parkett
- Gips, Wand, Decke
Haustechnik und Energie
- Heiztechnik
- Lüftung und Klimatechnik
- Sanitärtechnik
- Elektrotechnik
- Erneuerbare Energie
Whirlpools / Jacuzzi
Hausbau Magazin
- Baufinanzierung trotz Krise?
- Das Blockhaus
- Moderne Dämmstoffe im Vergleich
- Erker Vor- und Nachteile
- Glasflächen beim Hausbau
- Günstig ein Haus Bauen
- Mediterraner Hausbaustil
- Mehrgenerationenhaus
- Moderne Architektur
- Gartengestaltung leicht gemacht
- Traditioneller Ziegelbau
- Villa als höchster Traum
- Im Eigenheim Ruhestand geniessen
- Altbau sanieren
- Kauf einer Holzgarage
- Immobilienmakler
- Arbeitshandschuhe für den Winter
- Zuhause verschönern
- Outdoor-Plissees
- Schlafzimmer planen
- Terrassenüberdachung
- Wohngebäudeversicherung
- Zaunarten und Eigenschaften
- Hauseingang gestalten
- Der perfekte Grundriss
- Sparsamer heizen im Altbau
- Einfamilienhaus smart finanzieren
- Planung einer PV-Anlage
- Neues Haus
- Immobilienfinanzierung
- Installation einer Photovoltaikanlage
- Asbest erkennen und entfernen
- Gartenpflege im Frühling – worauf achten
- Sauna im Fokus - Wellness zuhause
- Erfolgreich vermieten
- Die perfekte Winterbekleidung
- Das Niedrigenergiehaus
- Der April und seine Stürme
- Architektonische Vielfalt
- Ökologisch und nachhaltig bauen
- Das perfekte Schlafzimmer
- Nachhaltige Energieversorgung
- Zukunftsorientiert bauen
- Nachhaltigkeit beim Hausbau
- Tiny Houses
- Wärmepumpen als nachhaltige Heizvariante
- Maßgeschneiderten Kleiderschrank
- Der richtige Baukredit
- Ratgeber für erfolgreichen Hausbau
- Haus als Altersvorsorge
Do-it-yourself Anleitungen
- Verlegeanleitung für Bodenbeläge und Parkett
- Bodenbeläge und Parkett reinigen und pflegen
- Malerarbeiten am Haus
- Garten Tipps
- Umzug und Reinigung

ᐅ Einfamilienhaus - Meinungen zu unserem Entwurf

Erstellt am: 29.09.17 23:14
M
MBS2201
M
MBS2201
29.09.17 23:14
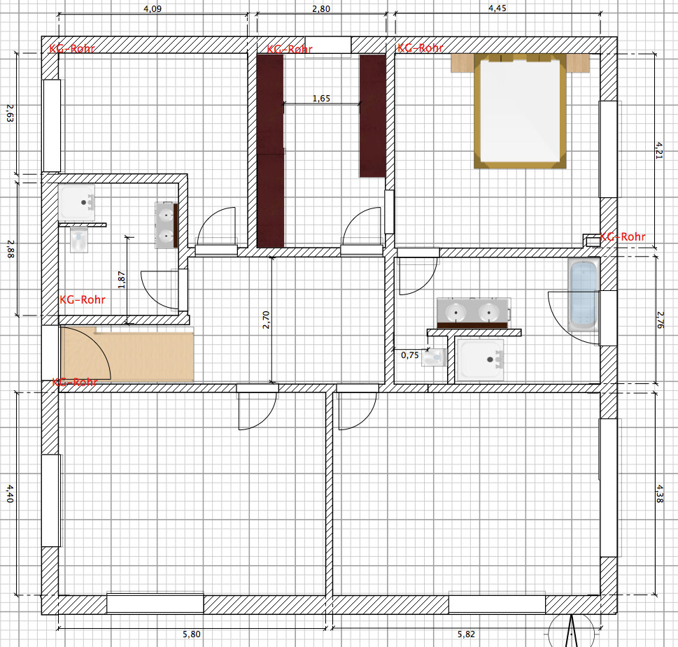
Hallo, ich bräuchte euren Rat, wie man eine bessere Einteilung vom Elternbad - Hauswirtschaftsraum Raum - zu Kinderbad hin bekommt.

Vorgaben:
Kinderzimmer sind Südseite
Kinderzimmer sollten annähernd gleich groß sein. In den Hauswirtschaftsraum Raum soll Trockner und Waschmaschine, da wir ohne Keller bauen.

Danke für eure Hilfe.
Y
ypg
29.09.17 23:38
Hallo erst mal
Entwürfe können nur in der Gesamtheit bewertet und ggf verändert werden.
Dafür fehlt hier einiges.
Das OG zeigt an, dass die Treppe entweder die falsche Position hat oder grundsätzlich die falsche Wahl ist.
Die Raumaufteilung ist nicht vorteilhaft: Schlafzimmer Eltern, Kind 2, Hauswirtschaftsraum... schier unnötig vergeudete, nicht nutzbare Zipfel in den Räumen. Badmöbel gehören mal sinngemäß eingerichtet.

Keine Tipps von mir, Siehe Satz 1!
1
11ant
30.09.17 01:56
ypg schrieb:
Entwürfe können nur in der Gesamtheit bewertet und ggf verändert werden.
Allerdings.
MBS2201 schrieb:
Vorgaben:
Kinderzimmer sind Südseite
Wenn das Gesamtergebnis so schief hängt, ist das ein guter Anlaß, sämtliche Vorgaben zu hinterfragen.
MBS2201 schrieb:
n den Hauswirtschaftsraum Raum soll Trockner und Waschmaschine,
Es ist fast egal was da rein soll und sogar rein paßt, wenn man wie hier ein Gummimensch sein muß, um sich im Slalom durchzuzwängen.
https://www.instagram.com/11antgmxde/
https://www.linkedin.com/company/bauen-jetzt/
Z
Zaba12
30.09.17 06:03
Der moderne Gummimensch braucht für 4 Personen genau 4 Waschbecken und ein Kinderbad.

Somit auch 3 WCs (inkl. Gäste-WC), was natürlich ein wenig unfair ist, weil dann nicht alle 4 gleichzeitig auf Klo gehen können.

First World Problems

Echt ihr braucht nen Kinderbad? Mit dem Platz kann man wirklich sinnvollere Sachen machen.
A
Alex85
30.09.17 07:13
Ob der Raum sinnvoll ist, sei mal dahin gestellt. Verbuche es im Zweifelsfall unter Luxus und Luxus sei erlaubt.
Ich würde mich aber bei einem 8qm Bad davon lösen, eine begehbare Duschlösung haben zu wollen. Der Raum ist dafür schlicht zu klein. Das dürfte schon neue Optionen eröffnen.

Der Grundriss sieht sehr erzwungen aus. Das verkorxte Treppenhaus, der stockdunkle Flur und die ganzen Versprünge in den Räumen ... das ist doch eher ein Fall für den Reset-Knopf. 105qm Wohnfläche auf einer Etage und kein Funken von Großzügigkeit erkennbar.
D
DNL
30.09.17 07:24
Alex85 schrieb:
.
Ich würde mich aber bei einem 8qm Bad davon lösen, eine begehbare Duschlösung haben zu wollen.

.

Meinst du das für diese 8qm oder generell?
Wir haben 4qm und 8qm Bäder und das geht wunderbar.
hauswirtschaftsraumkinderbadkinderzimmer