Einfamilienhaus - Meinungen zu unserem Entwurf

4,80 Stern(e) 5 Votes
Zuletzt aktualisiert 21.11.2025
Sie befinden sich auf der Seite 5 der Diskussion zum Thema: Einfamilienhaus - Meinungen zu unserem Entwurf
>> Zum 1. Beitrag <<

M

MBS2201

Hallo, soweit ist alles gut und ich spiele gerade alleMöglichkeiten, die durch eure Inputs entstanden sind durch. Ich melde mich zu einer zweiten Runde gegen Ende der Woche.
Herzlichen Dank an alle die geholfen haben.
 
J

j.bautsch

Ich hätte da noch mal einen anderen Ansatz, falls gewünscht:


Handgezeichnete Grundriss-Skizze eines Hauses mit Eltern- und Kinderzimmern


Die Maße stimmen so natürlich nicht ganz und auf Mauerstärken habe ich auch verzichtet
Ich habe den Grundriss so angepasst wie ich es bauen würde, denn Grundsätzlich gefällt mir eure Planung sehr gut, auch das EG hab ich für mich noch angepasst
Landet def. in meinem "Ideen Ordner"

Edit: UPS fallsche Ausrichtung bzw. Beschriftung dann verkehrherum
 
M

MBS2201

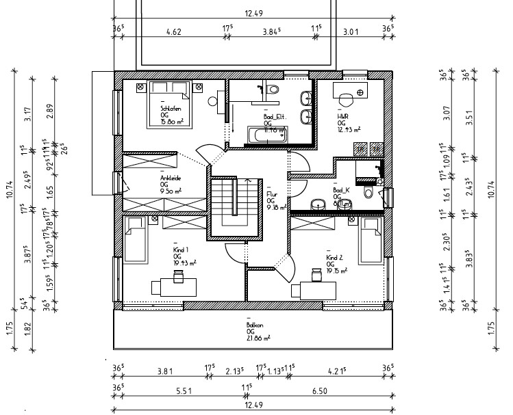
Hallo, nun habe ich das OG angepasst und möchte eure Meinung, bezüglich der zwei neuen Zeichnungen und der ursprünglichen Version wissen. Die Zeichnungen sind nicht Maßstabsgetreu, sollen aber verschiedene Konzepte darstellen.
Danke euch

Grundriss eines Familienhauses: Schlafzimmer, Ankleide, zwei Kinderzimmer, Bad, HWR


Grundriss eines Hauses: Schlafzimmer, Elternbad, Kinderbad, zwei Kinderzimmer, HWR, Treppenhaus.


Grundriss des Obergeschosses mit Schlafzimmer, Ankleide, zwei Kinderzimmern, Bad, Flur und Balkon.
 
kbt09

kbt09

Was versprichst du dir denn von OG-Variante 2? Das ist doch mega-unpraktisch, schon allein, frisch gewaschene Wäsche zu verstauen. Oder, einer ist schon im Bad gerade auf dem WC, der andere möchte schon mal seine Klamotten zurechtlegen. Geht doch gar nicht bei Variante 2.
 
M

MBS2201

Hallo kbt09, der Gedanke war dabei, die Wege zum WC, kurz zu halten. Wir neigen auch zur Variante 1, wollen aber auch die Meinung der Forenmitglieder in Betracht ziehen.

Danke für deine Antwort
 
Zuletzt aktualisiert 21.11.2025
Im Forum Grundrissplanung / Grundstücksplanung gibt es 2535 Themen mit insgesamt 87978 Beiträgen
Oben