Einfamilienhaus, ~160m², Bauhausstil; Erster Entwurf nach unseren Wünschen

4,80 Stern(e) 43 Votes
Zuletzt aktualisiert 19.11.2025
Sie befinden sich auf der Seite 58 der Diskussion zum Thema: Einfamilienhaus, ~160m², Bauhausstil; Erster Entwurf nach unseren Wünschen
>> Zum 1. Beitrag <<

B

Bertram100

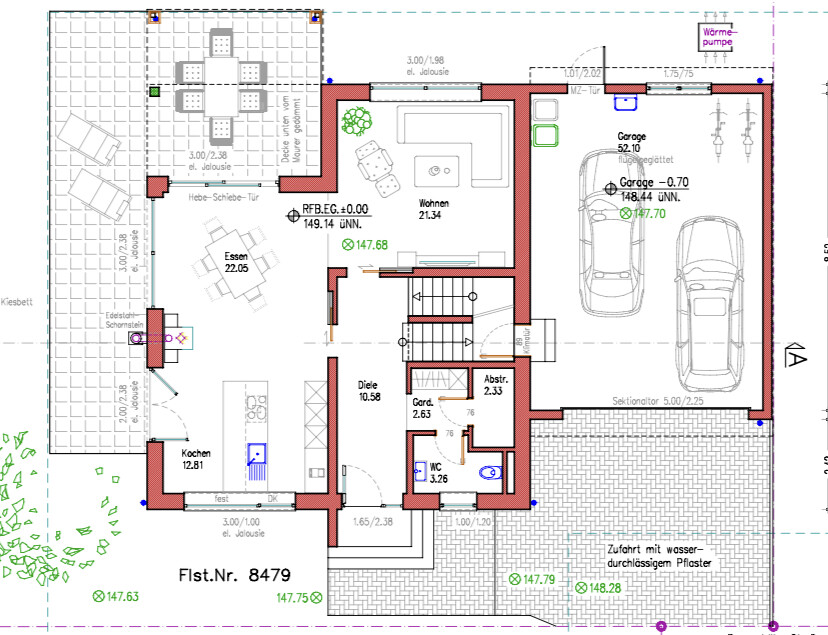
Ich habe auch eine Spülinsel und würde es immer wieder so machen. Die Insel ist kurz genug um schnell drum herum zu huschen wenn nötig, nah genug dran am Kochfeld und am Geschirrspüler (1/2 Drehung nach hinten) und behebt alle nötigen Vorbereitungsutensilien (Schneidebretter, Messer, Handtücher), ist so tief dass ich mit einer Armbewegung auch in der Tiefe alles abwischen kann (90cm bei mir) und bedarf keines extra starken Dunstabzugshaube.
Bei andere Leuten finde ich es schrecklich wenn das Kochfeld auf der Insel ist. Ich will dann gar nicht in nächster Nähe von Fettspritzern und heissem Wasserdampf sein während der Gastgeber einen gehörigen Teil der Kochzeit beschäftigt ist mit Klar-Schiff machen.
Den Vorteil einer Kochinsel ist mir bisher wirklich verborgen geblieben.
 
N

Notstrom

Sodele und das nächste Update, die Karawane schreitet voran, vorerst letztes to-do sind nach wie vor die Ansichten. Morgen ist der nächste Termin bei der wir genau dort weiter machen.

was hat sich seither geändert:
- Kfw55: Werden wir wahrscheinlich nicht mehr verfolgen und „einfach mal sehen“ wo wir landen
- Der Ofen ist wieder drin (etwas kleines fürs Gemüt...)
- Die Küche ist nun gedreht
- Die Terrasse an der Südseite verlängert
- Die beiden Balkontüren an der Südseite wurden nun umgeplant
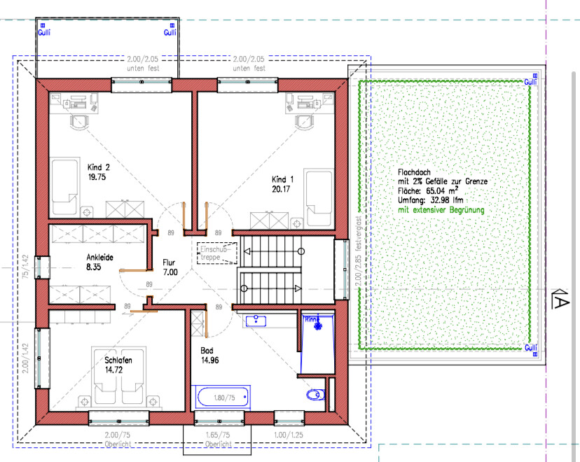
- Schlafzimmer / Ankleide vereint

Die West-Ansicht enthält noch den Balkon, der ist aber schon nicht mehr Bestandteil -> siehe Grundriss.

Wir haben uns bei den Fenstern vom Lichtbedarf von innen heraus genähert wie auch mehrmals hier geäußert. Jetzt das abgleichen der Breiten etc ist wieder die Drehung zurück, oder?

Weitere Ideen (rein aus der Analogie der Angleichung heraus) die mir kamen:
- Ostseite: Schlafzimmerfenster auf die Breite des Küchenfensters anpassen
- Süden: Fensterfront unten rechtsbündig ans Fenster des Ankleidezimmer: Problem? Der Ofen braucht die Breite der Wand... Fenster Ankleide kann ich aber nicht schieben auf Grund der Raumanordnung
- Westen: Fenster Kinderzimmer linksbündig an das Hebe/Schiebe-Element zur Terrasse.

Meinungen?

2D-Hausgrundriss mit Wohnzimmer, Küche, Essbereich, Terrasse und Garage


Grundriss eines Hauses: zwei Kinderzimmer, Schlafen, Ankleide, Bad, Flur, Terrasse.


Grundriss Kellergeschoss: Keller 1, Keller 2, Flur, Homeoffice, Waschküche, Technik.


Zweistöckiges Haus - Ansicht von Süden mit Terrasse, Balkon, großen Fenstern und Garten.


Ostansicht eines zweigeschossigen Hauses mit Garage; Baum links.


Ansicht von Norden: zweistöckiges Haus mit Walmdach, Fenster mittig, Treppe links, Baum rechts.


Ansicht von Westen: zweistöckiges Haus mit Balkon, Terrasse, Garage links, Baum rechts.
 
N

Notstrom

P.S. Ergänzend hierzu (noch mal): Die Ofenfrage ist nach wie vor eine unheimlich emotional getriebene Diskussion gerade. Wir sind hin und her gerissen zwischen den ganzen Argumenten pro und den Argumenten Kontra.
 
Y

ypg

Habe ich jetzt richtig gezählt? Auf 14 Fenster kommen 11 Formate...
Davon sind auf der Frontseite 5 Fenster in 4 Formaten,
Südseite 4 Fenster/4 Formate.

Warum jetzt die Küche so? Was versprichst Du Dir? Bzw was ist daran jetzt besser?

Der Edelstahlschornstein wurde mit Bedacht aus den Ansichten gelassen. Der wird unmöglich wie eine Wimpelstange frei in die Höhe staksen.
Warum wird der Ofen nicht mittig im Haus angeordnet? Ggü der Treppe kann der Schlot ins Eck... dann hat man vom Wohnbereich auch etwas vom Ofen. In der Küche wird es auch warm genug ohne Ofen.

Die Garderobennische würde ich von einer Tür freimachen. Eine reicht.
Keiner möchte gern durch eine kleine Chaosgarderobe auf Tö. Ich halte sie nämlich für etwas klein. Als Raum selbst würde sie ausreichen, aber nicht mit zwei zusätzlichen Türen.
 
N

Notstrom

Habe ich jetzt richtig gezählt? Auf 14 Fenster kommen 11 Formate...
Davon sind auf der Frontseite 5 Fenster in 4 Formaten,
Südseite 4 Fenster/4 Formate.
Morgen haben wir einen Termin bei dem wir nur die Fenster & Ansichten in Summe bearbeiten werden.

Warum jetzt die Küche so? Was versprichst Du Dir? Bzw was ist daran jetzt besser?
Platz & mehr Raumgefühl. Davor fand ich sie einfach viel zu eingeengt... Hat uns in Summe nicht mehr gefallen, wir arbeiten gerade noch an einer optimalen Lösung, de haben wir nämlich noch nicht...


Ggü der Treppe kann der Schlot ins Eck... dann hat man vom Wohnbereich auch etwas vom Ofen.
Funktioniert dann nur wieder nicht mit dem Dach. Würde ja dann einmal quer durch den Flur im OG gehen und die Durchgangsbreite im Flur sowohl im EG als auch im OG (wenn überhaupt machbar) massiv reduzieren. Da die Diskussion Ofen ja ohnehin eine völlige "Feeling-Entscheidung" und keine richtig sinnhaftige Entscheidung wird, halte ich den Ofen im Flur für "Fehl am Platz". Man will das Ding ja schon sehen und nicht als "Heizungsersatz", da ohnehin bei den dichten Gebäudehüllen unsinnig...

Die Garderobennische würde ich von einer Tür freimachen. Eine reicht.
Keiner möchte gern durch eine kleine Chaosgarderobe auf Tö. Ich halte sie nämlich für etwas klein. Als Raum selbst würde sie ausreichen, aber nicht mit zwei zusätzlichen Türen.
Die Nische hat doch garkeine Tür, nur der Abstellraum.
 
Pinky0301

Pinky0301

Mir gefällt der Grundriss. Plant ihr oben nur ein Waschbecken? Würde auf jeden Fall zwei nehmen, wenn das Bad für 4 Personen ist.
 
Zuletzt aktualisiert 19.11.2025
Im Forum Grundrissplanung / Grundstücksplanung gibt es 2535 Themen mit insgesamt 87977 Beiträgen


Ähnliche Themen zu Einfamilienhaus, ~160m², Bauhausstil; Erster Entwurf nach unseren Wünschen
Nr.ErgebnisBeiträge
1Fenster / Türen / Garderobe 13
2Grundriss Einfamilienhaus - Problemfall Küche 20
3Neubau einer ca. 8x11 Doppelhaushälfte, Einschätzung Grundriss und Fenster - Seite 235
4Heizung in Küche "notwendig"? - Seite 435
5OG Stadtville optimieren. Fenster Bodentief - Seite 16104
6Offene Küche bereut oder doch das Non plus Ultra? - Seite 18104
7Küche: geschlossen oder offen? Welche Raumaufteilung? - Seite 1086
8Höhe Kochfeld/Ofen + Länge Arbeitsplatten 16
9Ideen zu Entwurf für Einfamilienhaus mit Keller - Seite 747
10Schalter für Rollläden am Fenster oder an der Tür? 38
11Kochfeld Elektro und Kohleherd in neuer Küche 32
12Fliesen oder Vinyl in Küche und Flur 19
13Schöne neue Küche im L-Format Neubau, ohne Erfahrung - Seite 239
14 Küchenplanung mit tiefen Fenster 43
15Grundrissfrage, Treppe, Fenster, Ausrichtung 12
16Grundriss Einfamilienhaus geplant, Fenster gefallen uns - Seite 543
17Planungsbeginn neue Küche - Seite 222
18Unsere neue erste Ikea Küche - Planung und Vorbereitung - Seite 369
19Winkelbungalow, Terrasse ganz oder halb überdachen? - Seite 457
20Grundriss Neubau Einfamilienhaus: Fenster/Türen/Innenwände Größe/Anordnung ok? - Seite 220

Oben