ᐅ Erster Entwurf Einfamilienhaus 150m² mit Keller
Erstellt am: 26.10.16 00:08
Erster Entwurf Einfamilienhaus 150m² mit Keller
Bitte um generelle Anmerkungen, Verbesserungsvorschläge, Ideen, Bad OG usw.
Bebauungsplan/Einschränkungen
Größe des Grundstücks 850m² (20x43m)
Hang nein
Grundflächenzahl 0,35
Geschossflächenzahl 0,60
Baufenster, Baulinie und -grenze 3m Westen und Süden, 6m Osten
Randbebauung ja außer Ostseite
Anzahl Stellplatz 2
Geschossigkeit zwei Vollgeschosse als Höchstgrenze
Dachform Satteldach 22-48°, Pultdach 8-20°
Stilrichtung egal
Ausrichtung nicht vorgegeben, Firstrichtung nur Empfehlung
Maximale Höhen/Begrenzungen maximal zulässige Gebäudehöhe 9,5m, Kniestöcke maximal 1,0m
weitere Vorgaben mindestens 2 Stellplätze pro Wohneinheit
Anforderungen der Bauherren
Stilrichtung, Dachform, Gebäudetyp schlicht, ohne Erker, zwei Vollgeschosse, flaches Satteldach
Keller, Geschosse Keller, EG, OG
Anzahl der Personen, Alter 29 und 30 (2 Kinder geplant sobald Haus steht)
Raumbedarf im EG, OG EG: Wohnen / Essen, Küche, Speise, Bad; OG: 2 Kinderzimmer, Schlafen, Bad
Büro: Familiennutzung oder Homeoffice? für Gewerbe, evtl. zukünftig Homeoffice 1 Tag pro Woche
Schlafgäste pro Jahr 4-5
offene oder geschlossene Architektur Wohnen/Essen offen ansonsten eher geschlossen
konservativ oder moderne Bauweise teils teils
offene Küche, Kochinsel nein
Anzahl Essplätze 6-8
Kamin ja
Musik/Stereowand nein
Balkon, Dachterrasse nein
Garage, Carport Doppelgarage
Nutzgarten, Treibhaus egal
weitere Wünsche/Besonderheiten/Tagesablauf egal
Hausentwurf
Von wem stammt die Planung: Planer eines Bauunternehmens welcher gleichzeitig Architekt ist
Was gefällt besonders? Eingangssituation, Anordnung der Räume, Aufteilung und Größen im OG (bis auf Bad OG)
Was gefällt nicht? zu Nahe an Bebauung Südgrundstück, Bad OG, Eingang als Flachdach geplant, Standort Tür im Wohnzimmer, weitere Kleinigkeiten
Preisschätzung laut Architekt/Planer: noch nicht erhalten
Persönliches Preislimit fürs Haus, inkl Ausstattung: noch nicht ganz klar aber bei ca. 400.000
favorisierte Heiztechnik: entweder Gas (ohne KfW) oder Sole-Wasser-Wärmepumpe via Grabenkollektor / Erdbohrung (KFW 55)
Wenn Ihr verzichten müsst, auf welche Details/Ausbauten
-könnt Ihr verzichten: hochwertige Ausstattung, Ankleide, Sole-Wasser-Wärmepumpe, "schlüsselfertig"
-könnt Ihr nicht verzichten: Ofen, Büro, zwei ebenerdige Duschen, Doppelgarage
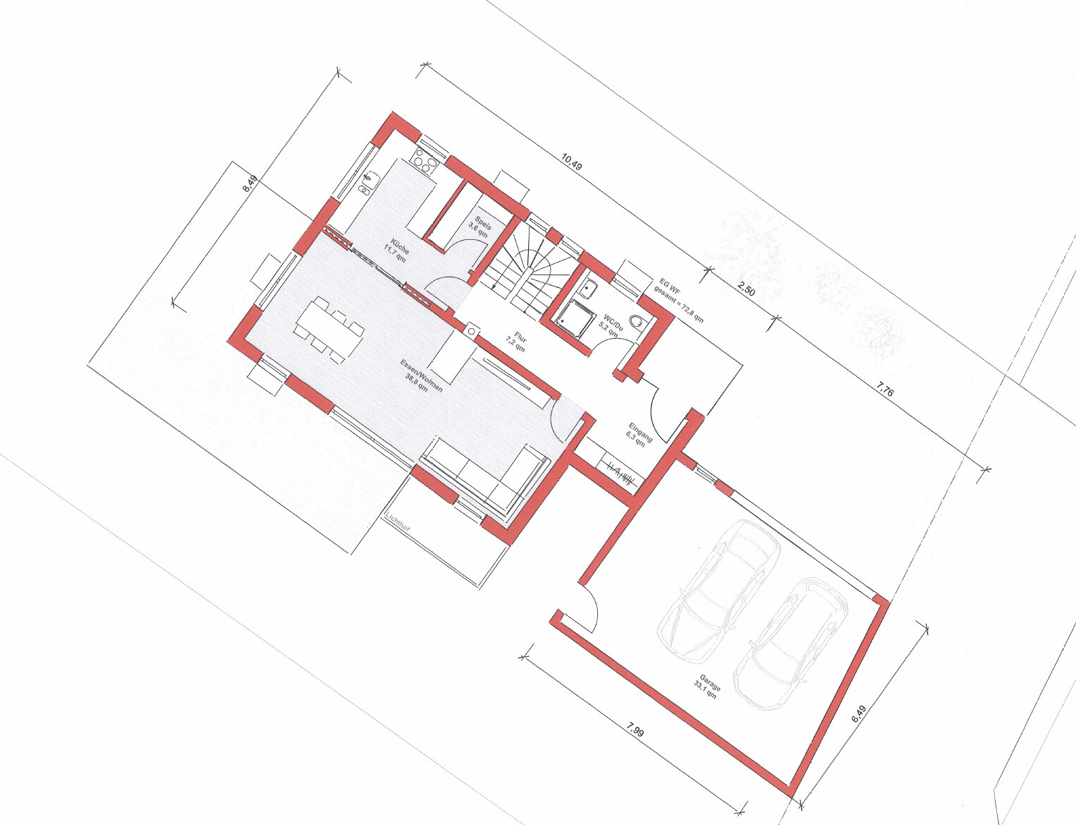
Da unser Grundstück relativ lang und schmal ist (20x43m) haben wir uns im Vorfeld bereits einige Gedanken über die mögliche Anordnung des Hauses und der Garage gemacht. Hier der Thread dazu.
Anfangs hatten wir uns auf die erste Variante versteift, bei welcher die Garage über dem Haus im Norden gelegen hätte. Allerdings wäre es mit Garage und Haus dann sehr eng geworden Richtung Süden. Der erste Entwurf des Architekten überraschte uns (Garage im Osten), hat uns aber generell sehr gut gefallen, weshalb wir diesen nun als Grundlage hier präsentieren. Es wurden schon viele unserer Wünsche getroffen und der Entwurf ist auf jeden Fall ein guter Ausgangspunkt. Ich muss dazu sagen, dass wir aktuell auch keine Ostsonne haben und wir das nicht als schlimm erachten. Einziger Nachteil ist, dass das Haus dadurch relativ weit in der Mitte steht und Garten "verschwendet" wird, was unter anderem auch an den 6m Abstand im Osten liegt. Wir werden aber eine Bauvoranfrage starten um den Abstand ggf. auf 3m zu verringern.
So, nun die Entwürfe. Norden ist planoben.

Bitte um generelle Anmerkungen, Verbesserungsvorschläge, Ideen, Bad OG usw.
Bebauungsplan/Einschränkungen
Größe des Grundstücks 850m² (20x43m)
Hang nein
Grundflächenzahl 0,35
Geschossflächenzahl 0,60
Baufenster, Baulinie und -grenze 3m Westen und Süden, 6m Osten
Randbebauung ja außer Ostseite
Anzahl Stellplatz 2
Geschossigkeit zwei Vollgeschosse als Höchstgrenze
Dachform Satteldach 22-48°, Pultdach 8-20°
Stilrichtung egal
Ausrichtung nicht vorgegeben, Firstrichtung nur Empfehlung
Maximale Höhen/Begrenzungen maximal zulässige Gebäudehöhe 9,5m, Kniestöcke maximal 1,0m
weitere Vorgaben mindestens 2 Stellplätze pro Wohneinheit
Anforderungen der Bauherren
Stilrichtung, Dachform, Gebäudetyp schlicht, ohne Erker, zwei Vollgeschosse, flaches Satteldach
Keller, Geschosse Keller, EG, OG
Anzahl der Personen, Alter 29 und 30 (2 Kinder geplant sobald Haus steht)
Raumbedarf im EG, OG EG: Wohnen / Essen, Küche, Speise, Bad; OG: 2 Kinderzimmer, Schlafen, Bad
Büro: Familiennutzung oder Homeoffice? für Gewerbe, evtl. zukünftig Homeoffice 1 Tag pro Woche
Schlafgäste pro Jahr 4-5
offene oder geschlossene Architektur Wohnen/Essen offen ansonsten eher geschlossen
konservativ oder moderne Bauweise teils teils
offene Küche, Kochinsel nein
Anzahl Essplätze 6-8
Kamin ja
Musik/Stereowand nein
Balkon, Dachterrasse nein
Garage, Carport Doppelgarage
Nutzgarten, Treibhaus egal
weitere Wünsche/Besonderheiten/Tagesablauf egal
Hausentwurf
Von wem stammt die Planung: Planer eines Bauunternehmens welcher gleichzeitig Architekt ist
Was gefällt besonders? Eingangssituation, Anordnung der Räume, Aufteilung und Größen im OG (bis auf Bad OG)
Was gefällt nicht? zu Nahe an Bebauung Südgrundstück, Bad OG, Eingang als Flachdach geplant, Standort Tür im Wohnzimmer, weitere Kleinigkeiten
Preisschätzung laut Architekt/Planer: noch nicht erhalten
Persönliches Preislimit fürs Haus, inkl Ausstattung: noch nicht ganz klar aber bei ca. 400.000
favorisierte Heiztechnik: entweder Gas (ohne KfW) oder Sole-Wasser-Wärmepumpe via Grabenkollektor / Erdbohrung (KFW 55)
Wenn Ihr verzichten müsst, auf welche Details/Ausbauten
-könnt Ihr verzichten: hochwertige Ausstattung, Ankleide, Sole-Wasser-Wärmepumpe, "schlüsselfertig"
-könnt Ihr nicht verzichten: Ofen, Büro, zwei ebenerdige Duschen, Doppelgarage
Da unser Grundstück relativ lang und schmal ist (20x43m) haben wir uns im Vorfeld bereits einige Gedanken über die mögliche Anordnung des Hauses und der Garage gemacht. Hier der Thread dazu.
Anfangs hatten wir uns auf die erste Variante versteift, bei welcher die Garage über dem Haus im Norden gelegen hätte. Allerdings wäre es mit Garage und Haus dann sehr eng geworden Richtung Süden. Der erste Entwurf des Architekten überraschte uns (Garage im Osten), hat uns aber generell sehr gut gefallen, weshalb wir diesen nun als Grundlage hier präsentieren. Es wurden schon viele unserer Wünsche getroffen und der Entwurf ist auf jeden Fall ein guter Ausgangspunkt. Ich muss dazu sagen, dass wir aktuell auch keine Ostsonne haben und wir das nicht als schlimm erachten. Einziger Nachteil ist, dass das Haus dadurch relativ weit in der Mitte steht und Garten "verschwendet" wird, was unter anderem auch an den 6m Abstand im Osten liegt. Wir werden aber eine Bauvoranfrage starten um den Abstand ggf. auf 3m zu verringern.
So, nun die Entwürfe. Norden ist planoben.
J
j.bautsch26.10.16 08:33mir gefällt der Grundriss auch recht gut. ich würde nur die speisekammer Streichen zugunsten einer schönen küche. aber da muss man wissen was man genau von einer Küche haben möchte ( ich stehe nicht so auf zweizeiler und Us) eine speisekammer ist ja innerhalb der thermischen hülle nicht kühler also zum lagern auch nicht besser geeignet als jeder normale hochschrank in der küche 😉
B
Bieber081526.10.16 10:12Grundsätzlich sehr schön, kann man so bauen, geht! Trotzdem Anmerkungen:
1. Der Kamin könnte später stören. Kann man ihn auf die andere Seite der Wand verlegen, so dass er aus dem Flur raus ist? Vor allem das OG beachten.
2. Die Speisekammer kann man so machen. Ich schlage vor, als Alternative die Küche als einen großen Raum zu planen und alles weitere mit dem Küchenbauer zu planen. Praktisch wie jetzt, aber ohne Tür und flexibler.
3. Ich grüble über den Eingang, eigentlich alles gut. Damit auch im Flur jeder weiß, wo er hin muss, würde ich die Tür zum Wohnzimmer größer/breiter als Norm planen und ggf. mit Glaselementen arbeiten.
4. Der Ankleide würde ich ein Fenster gönnen. Ich denke, die Ansicht wäre immer noch okay.
1. Der Kamin könnte später stören. Kann man ihn auf die andere Seite der Wand verlegen, so dass er aus dem Flur raus ist? Vor allem das OG beachten.
2. Die Speisekammer kann man so machen. Ich schlage vor, als Alternative die Küche als einen großen Raum zu planen und alles weitere mit dem Küchenbauer zu planen. Praktisch wie jetzt, aber ohne Tür und flexibler.
3. Ich grüble über den Eingang, eigentlich alles gut. Damit auch im Flur jeder weiß, wo er hin muss, würde ich die Tür zum Wohnzimmer größer/breiter als Norm planen und ggf. mit Glaselementen arbeiten.
4. Der Ankleide würde ich ein Fenster gönnen. Ich denke, die Ansicht wäre immer noch okay.
R
RobsonMKK26.10.16 12:04Mir gefällt es...sieht fast genauso aus wie unserer aktuellen Planung 🙂
Was stört dich denn am Flachdach-Eingang?
Bezüglich der Tür zum Wohnzimmer, eventuell einfach zum Essbereich hochziehen? Dann hätte man das Wohnzimmer auch nicht als Durchgangsbereich.
Was stört dich denn am Flachdach-Eingang?
Bezüglich der Tür zum Wohnzimmer, eventuell einfach zum Essbereich hochziehen? Dann hätte man das Wohnzimmer auch nicht als Durchgangsbereich.
B
Bieber081526.10.16 12:17RobsonMKK schrieb:
Was stört dich denn am Flachdach-Eingang?Gar nichts, ich meine den Flur weiter innen ...RobsonMKK schrieb:
Bezüglich der Tür zum Wohnzimmer, eventuell einfach zum Essbereich hochziehen? Dann hätte man das Wohnzimmer auch nicht als Durchgangsbereich. ... und jetzt ist mir auch klar, was mir nicht gefällt ;-).Ohne Kamin wäre es einfacher, dann würde ich an dieser Stelle -- gegenüber der Treppe -- eine Doppelflügeltür setzen. Dann wird der Wohn-Ess-Bereich zentral erschlossen und die Couch-Ecke liegt nicht im Verkehrsbereich.
Ähnliche Themen