ᐅ Grundriss Einfamilienhaus Hanglage mit Keller
Erstellt am: 05.02.19 15:15
Hallo liebe Hausbau Gemeinde!
Ich bin schon seit langer Zeit ein stiller Beobachter dieses Forums und möchte nun euch auch mein Projekt vorstellen und würde mich über Feedback und Ideen freuen.
Die Planung ist von meinem Architekten aber gefällt mir noch nicht ganz. Ich habe leider den Eindruck das mein Architekt ein wenig verbohrt in seine Planung ist und unsere Wünsche nicht ganz umsetzt. Vielleicht habt Ihr bessere Ideen die ich ihm dann als Lösung präsentieren könnte.
Größe des Grundstücks: 387 qm
Hang: Ja
Grundflächenzahl: 0,4
Geschossflächenzahl: 0,8
Einschränkungen: Traufhöhe 7,50m
Anforderungen der Bauherren
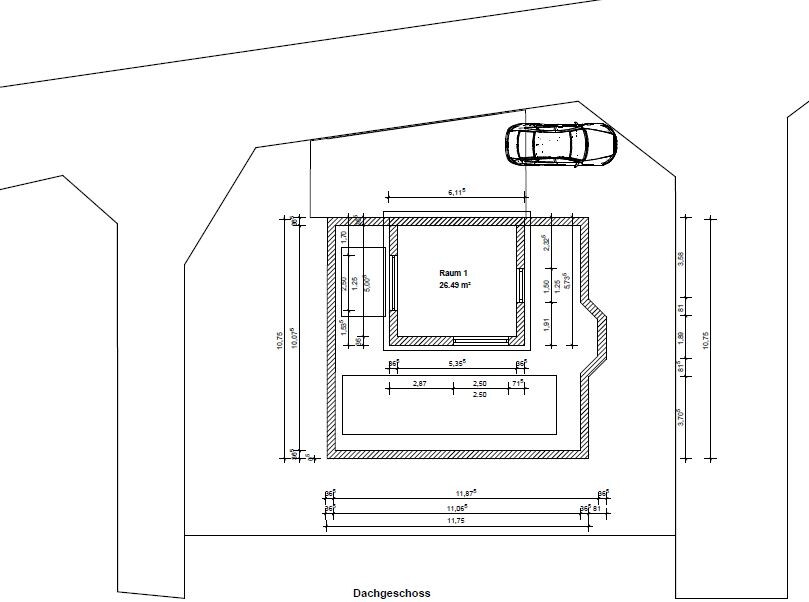
Stilrichtung, Dachform, Gebäudetyp: Flachdach
Keller, Geschosse: ja, 2 Vollgeschosse
Anzahl der Personen, Alter: 33,33,6 (weitere 2 sollen folgen)
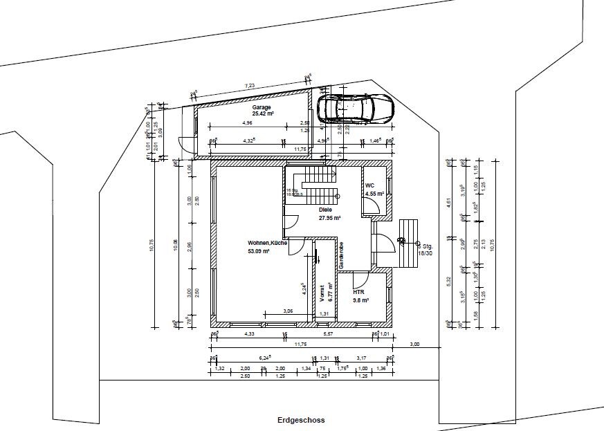
Raumbedarf im EG: Kochen/Essen/Wohnen, Speisekammer, Gäste-WC, Windfang, Flur
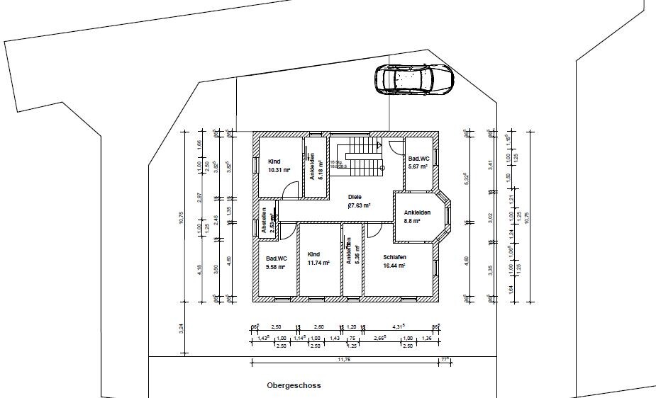
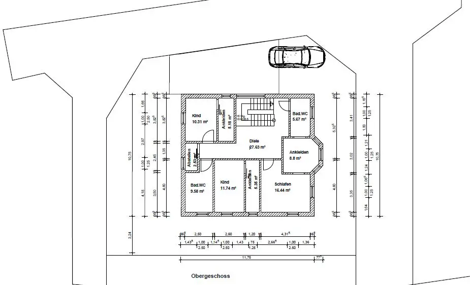
Raumbedarf im OG: 2 Kinderzimmer, Elternschlafzimmer, Ankleide, großes Familienbad
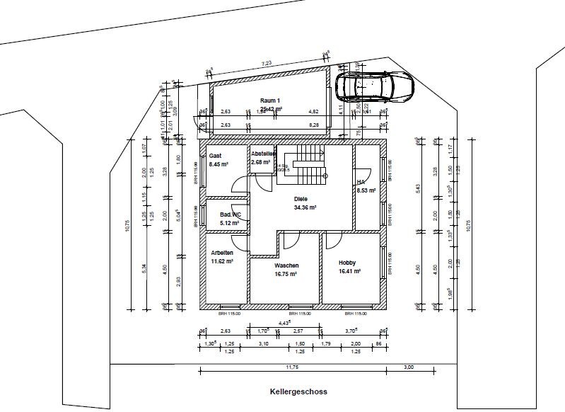
Raumbedarf im UG: Gästezimmer, Home Office, Hauswirtschaftsraum, Waschküche, Abstellraum
Schlafgäste pro Jahr: 10
Offene oder geschlossene Architektur: Offen
Konservativ oder moderne Bauweise: modern
Offene Küche, Kochinsel: Offen mit Kochinsel ( L-Form 4mx2,8m) Insel 3,2m lang
Anzahl Essplätze: 6
Kamin: Ja
Musik/Stereowand: Fernsehwand
Balkon, Dachterrasse: Dachterrasse
Garage, Carport: Einzelgarage als Grenzbebauung
Hausentwurf
Von wem stammt die Planung: Architekt
Was gefällt nicht? Warum?
- Kinderschlafzimmer zu klein
- Treppenform
- Dielen zu groß?
- Kein Elternbad benötigt
- kein HTR in EG benötigt
- Ankleiden in Kinderzimmer müssen nicht so groß sein, eher eine kleine Kammer wie in USA üblich.
Im UG hätten wir gerne Gästezimmer und Homeoffice auf der Nordseite mit bodentiefen Fenstern ( Garage müsste ein Stück nach planrechts verschoben werden)
Wenn Ihr verzichten müsst, auf welche Details/Ausbauten könnt Ihr verzichten:Dachterrasse
Warum ist der Entwurf so geworden, wie er jetzt ist? Einschränkung aufgrund der Grundstücksgröße und Ausrichtung.
Was ist die wichtigste/grundlegende Frage zum Grundriss in 130 Zeichen zusammengefasst: Habt Ihr vielleicht Ideen wie man es schöner machen könnte?
Ich freu mich auf euer Feedback:-)






Ich bin schon seit langer Zeit ein stiller Beobachter dieses Forums und möchte nun euch auch mein Projekt vorstellen und würde mich über Feedback und Ideen freuen.
Die Planung ist von meinem Architekten aber gefällt mir noch nicht ganz. Ich habe leider den Eindruck das mein Architekt ein wenig verbohrt in seine Planung ist und unsere Wünsche nicht ganz umsetzt. Vielleicht habt Ihr bessere Ideen die ich ihm dann als Lösung präsentieren könnte.
Größe des Grundstücks: 387 qm
Hang: Ja
Grundflächenzahl: 0,4
Geschossflächenzahl: 0,8
Einschränkungen: Traufhöhe 7,50m
Anforderungen der Bauherren
Stilrichtung, Dachform, Gebäudetyp: Flachdach
Keller, Geschosse: ja, 2 Vollgeschosse
Anzahl der Personen, Alter: 33,33,6 (weitere 2 sollen folgen)
Raumbedarf im EG: Kochen/Essen/Wohnen, Speisekammer, Gäste-WC, Windfang, Flur
Raumbedarf im OG: 2 Kinderzimmer, Elternschlafzimmer, Ankleide, großes Familienbad
Raumbedarf im UG: Gästezimmer, Home Office, Hauswirtschaftsraum, Waschküche, Abstellraum
Schlafgäste pro Jahr: 10
Offene oder geschlossene Architektur: Offen
Konservativ oder moderne Bauweise: modern
Offene Küche, Kochinsel: Offen mit Kochinsel ( L-Form 4mx2,8m) Insel 3,2m lang
Anzahl Essplätze: 6
Kamin: Ja
Musik/Stereowand: Fernsehwand
Balkon, Dachterrasse: Dachterrasse
Garage, Carport: Einzelgarage als Grenzbebauung
Hausentwurf
Von wem stammt die Planung: Architekt
Was gefällt nicht? Warum?
- Kinderschlafzimmer zu klein
- Treppenform
- Dielen zu groß?
- Kein Elternbad benötigt
- kein HTR in EG benötigt
- Ankleiden in Kinderzimmer müssen nicht so groß sein, eher eine kleine Kammer wie in USA üblich.
Im UG hätten wir gerne Gästezimmer und Homeoffice auf der Nordseite mit bodentiefen Fenstern ( Garage müsste ein Stück nach planrechts verschoben werden)
Wenn Ihr verzichten müsst, auf welche Details/Ausbauten könnt Ihr verzichten:Dachterrasse
Warum ist der Entwurf so geworden, wie er jetzt ist? Einschränkung aufgrund der Grundstücksgröße und Ausrichtung.
Was ist die wichtigste/grundlegende Frage zum Grundriss in 130 Zeichen zusammengefasst: Habt Ihr vielleicht Ideen wie man es schöner machen könnte?
Ich freu mich auf euer Feedback:-)
Blanco1 schrieb:
Ich habe leider den Eindruck das mein Architekt ein wenig verbohrt in seine Planung ist und unsere Wünsche nicht ganz umsetzt. Ich habe leider den Eindruck, dass hier überhaupt kein bißchen Gehirnschmalz investiert wurde. Bist Du sicher, dass der Kerl studiert hat?M
Mottenhausen05.02.19 15:41Au weia, ein großes Haus voller winziger Räume!
insb. die zahllosen Schläuche: Ankleiden/Speisek/ HAR (2x, warum?), die für den jeweiligen Zweck aufgrund fehlender Stellmöglichkeit vollkommen ungeeignet sind, sind eine Fehlplanung.
Wie soll man sich in einem 1,20 breiten Schlauch ankleiden? Schranktiefe 60-70cm, damit Kleiderbügel hängen können, dann bleiben 50.60cm davor um sich anzuziehen? Da passt gerade so meine Schulter dazwischen, wie soll man da die Arme nach oben bekommen?
Wie man in einem 11x11m Haus nur 2 Kinderzimmer mit rund 11qm unterbringen kann, ist mir ein Rätsel. Da ist jeder 120qm Grundriss von Town & Country großzügiger geschnitten.
Welcher Stil soll das überhaupt sein? Bauhausvilla mit Gründerzeiterker? Ein Erker (das einzige Highlight im Grundriss), der dann als Ankleide Missbraucht wird?
Staffelgeschoss mit Ausblick auf die Unterseite einer Photovoltaik Installation, echt jetzt?
Studiert hat der Architekt, aber vielleicht ist dies sein erstes Projekt?
PS. Neuen Architekten suchen und falls der alte eine Rechnung schreibt damit drohen ihn wegen Arbeitsverweigerung sowie Verletzung diverser Normen anzuzeigen.
insb. die zahllosen Schläuche: Ankleiden/Speisek/ HAR (2x, warum?), die für den jeweiligen Zweck aufgrund fehlender Stellmöglichkeit vollkommen ungeeignet sind, sind eine Fehlplanung.
Wie soll man sich in einem 1,20 breiten Schlauch ankleiden? Schranktiefe 60-70cm, damit Kleiderbügel hängen können, dann bleiben 50.60cm davor um sich anzuziehen? Da passt gerade so meine Schulter dazwischen, wie soll man da die Arme nach oben bekommen?
Wie man in einem 11x11m Haus nur 2 Kinderzimmer mit rund 11qm unterbringen kann, ist mir ein Rätsel. Da ist jeder 120qm Grundriss von Town & Country großzügiger geschnitten.
Welcher Stil soll das überhaupt sein? Bauhausvilla mit Gründerzeiterker? Ein Erker (das einzige Highlight im Grundriss), der dann als Ankleide Missbraucht wird?
Staffelgeschoss mit Ausblick auf die Unterseite einer Photovoltaik Installation, echt jetzt?
Studiert hat der Architekt, aber vielleicht ist dies sein erstes Projekt?
PS. Neuen Architekten suchen und falls der alte eine Rechnung schreibt damit drohen ihn wegen Arbeitsverweigerung sowie Verletzung diverser Normen anzuzeigen.
O
Obstlerbaum05.02.19 15:43Fangen wir mal positiv an: Haus steht im Baufenster. Aber: Haustechnik im EG trotz Keller, insgesamt 90qm Diele über drei Stockwerke verteilt, dieser angeschrägte Erker funktioniert optisch auch nicht richtig, drei Bäder plus ein WC im EG, Kinderzimmer auf 10qm verkleinert zugunsten Ankleide, Solarthermie vor Balkontür zur Dachterrasse? Da würde ich nochmal von null anfangen, statt zu jetzt zu verschlimmbessern.
Ähnliche Themen