ᐅ Einfamilienhaus 200m² in Winkelbauweise 45°
Erstellt am: 25.02.20 07:00
Hallo
Ich möchte euch, unseren soweit fertigen Grundriss zeigen und sogleich nach eurer Meinung Fragen.
Was würdet ihr ändern/anders machen?
Ich bin dankbar über jeden Tipp, Denkanstoß, Hinweis …
Vielen Dank schon mal an alle.
Bebauungsplan/Einschränkungen
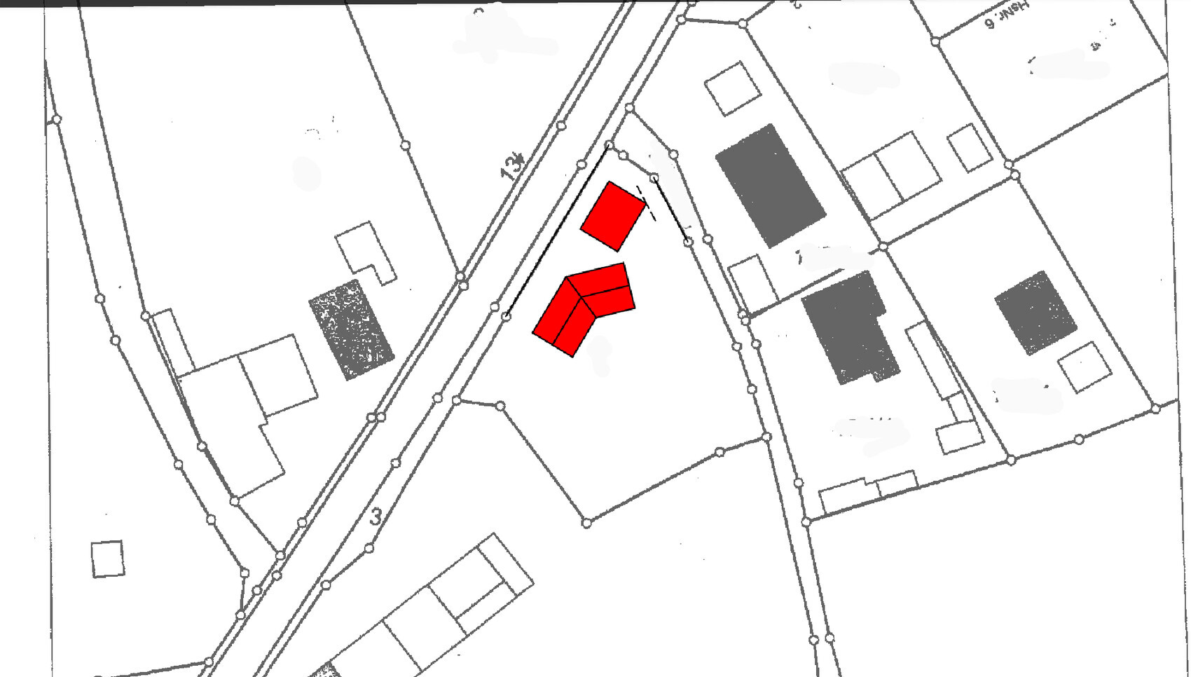
Größe des Grundstücks: 1580m²
Hang: leichtes Gefälle zur Straße
Grundflächenzahl
Geschossflächenzahl
Baufenster, Baulinie und -grenze:
Randbebauung
Anzahl Stellplatz
Geschossigkeit: zwei Vollgeschosse
Dachform: Satteldach
Stilrichtung
Ausrichtung
Maximale Höhen/Begrenzungen
weitere Vorgaben
Anforderungen der Bauherren
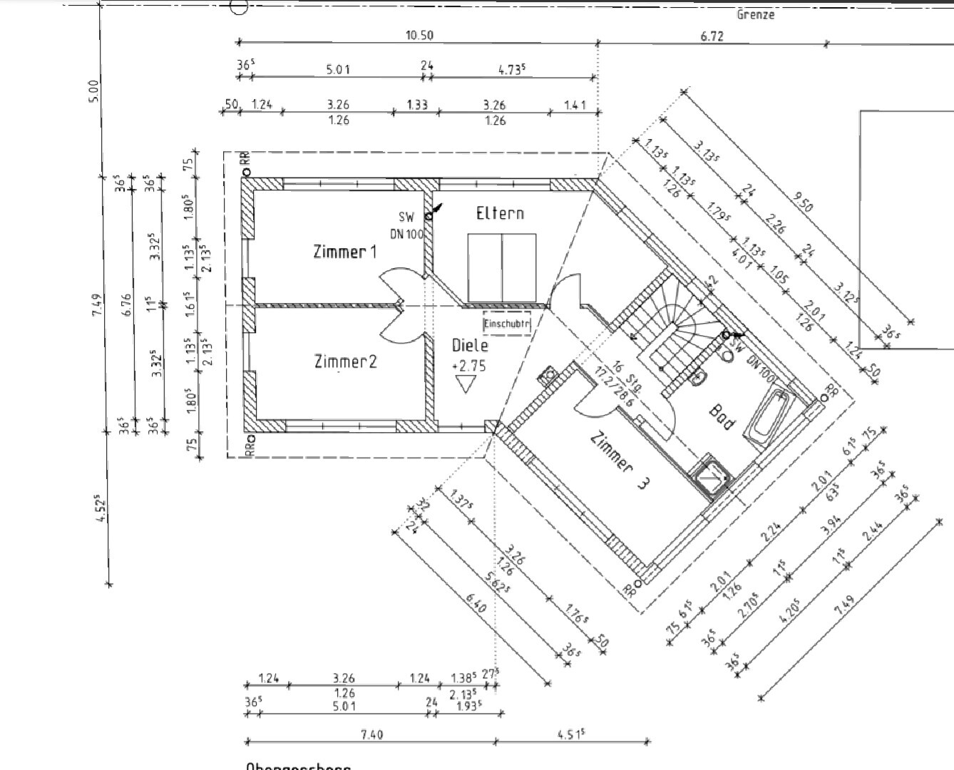
Stilrichtung, Dachform, Gebäudetyp: Satteldach, Winkelbauweise
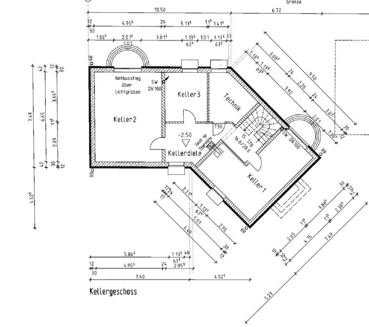
Keller, Geschosse: Zwei Vollgeschosse mit Keller
Anzahl der Personen, Alter: 2 Erwachsene ( Anfang 30) und 2 kleine Kinder (1 und 4)
Raumbedarf im EG: Wohnen/Essen, Küche, WC und Dusche, Büro ( im Alter evtl. Schlafraum) Speis
OG: 2 Kinderzimmer, Schlafzimmer, Nähzimmer, Bad
Büro: Familiennutzung oder Homeoffice?: Familiennutzung
Schlafgäste pro Jahr
offene oder geschlossene Architektur: eher offen
konservativ oder moderne Bauweise: konventionell
offene Küche, Kochinsel
Anzahl Essplätze
Kamin: ja
Musik/Stereowand: nein
Balkon, Dachterrasse: nein
Garage, Carport: Doppelgarage
Nutzgarten, Treibhaus:
weitere Wünsche/Besonderheiten/Tagesablauf, gern auch Begründungen, warum dieses oder das nicht sein soll
Hausentwurf
Von wem stammt die Planung:
-Do-it-Yourself
Was gefällt besonders? Warum? Viele Fenster wegen Licht
Was gefällt nicht? Warum?
Preisschätzung lt Architekt/Planer:
Persönliches Preislimit fürs Haus, inkl Ausstattung:
favorisierte Heiztechnik: Luftwärmepumpe
Wenn Ihr verzichten müsst, auf welche Details/Ausbauten
-könnt Ihr verzichten:
-könnt Ihr nicht verzichten:
Warum ist der Entwurf so geworden, wie er jetzt ist? ZB
Winkelbauweise wegen Sicht und Lärmschutz der Straße






Ich möchte euch, unseren soweit fertigen Grundriss zeigen und sogleich nach eurer Meinung Fragen.
Was würdet ihr ändern/anders machen?
Ich bin dankbar über jeden Tipp, Denkanstoß, Hinweis …
Vielen Dank schon mal an alle.
Bebauungsplan/Einschränkungen
Größe des Grundstücks: 1580m²
Hang: leichtes Gefälle zur Straße
Grundflächenzahl
Geschossflächenzahl
Baufenster, Baulinie und -grenze:
Randbebauung
Anzahl Stellplatz
Geschossigkeit: zwei Vollgeschosse
Dachform: Satteldach
Stilrichtung
Ausrichtung
Maximale Höhen/Begrenzungen
weitere Vorgaben
Anforderungen der Bauherren
Stilrichtung, Dachform, Gebäudetyp: Satteldach, Winkelbauweise
Keller, Geschosse: Zwei Vollgeschosse mit Keller
Anzahl der Personen, Alter: 2 Erwachsene ( Anfang 30) und 2 kleine Kinder (1 und 4)
Raumbedarf im EG: Wohnen/Essen, Küche, WC und Dusche, Büro ( im Alter evtl. Schlafraum) Speis
OG: 2 Kinderzimmer, Schlafzimmer, Nähzimmer, Bad
Büro: Familiennutzung oder Homeoffice?: Familiennutzung
Schlafgäste pro Jahr
offene oder geschlossene Architektur: eher offen
konservativ oder moderne Bauweise: konventionell
offene Küche, Kochinsel
Anzahl Essplätze
Kamin: ja
Musik/Stereowand: nein
Balkon, Dachterrasse: nein
Garage, Carport: Doppelgarage
Nutzgarten, Treibhaus:
weitere Wünsche/Besonderheiten/Tagesablauf, gern auch Begründungen, warum dieses oder das nicht sein soll
Hausentwurf
Von wem stammt die Planung:
-Do-it-Yourself
Was gefällt besonders? Warum? Viele Fenster wegen Licht
Was gefällt nicht? Warum?
Preisschätzung lt Architekt/Planer:
Persönliches Preislimit fürs Haus, inkl Ausstattung:
favorisierte Heiztechnik: Luftwärmepumpe
Wenn Ihr verzichten müsst, auf welche Details/Ausbauten
-könnt Ihr verzichten:
-könnt Ihr nicht verzichten:
Warum ist der Entwurf so geworden, wie er jetzt ist? ZB
Winkelbauweise wegen Sicht und Lärmschutz der Straße
Das Geld für den Winkel kann man sich sparen. Das Haus und die Garage bilden auch bei rechteckigen Haus einen Sichtschutz.
Ohne Winkel wäre weniger Diele notwendig, Schlafzimmer wäre komfortabler und die Räume wie Schlafzimmer, Hauswirtschaftsraum währen besser möblierbar. Durch den Winkel baut ihr ein Haus das Mal erfrischend anders ist, schafft euch jedoch für viel Geld Nachteile im Innern.
Das evtl im Alter unten Schlafen wird nichts. In der Regel verlässt man sein gewohntes Umfeld, wenn es nicht mehr anders geht. D.h körperlich beeinträchtigt. Mit Hilfsmittel wie Rollator funktioniert das Büro und das Bad nicht.
Die Kinderzimmer sind schlauchig und für die Hausgröße klein.
Zeichnet in allen Räumen eure vorhanden bzw. gewünschten Möbel ein.
Ihr könnt für weniger Geld und weniger Fläche mehr Wohnkomfort erhalten.
Habt ihr schon eine Kostenschätzung?
Ohne Winkel wäre weniger Diele notwendig, Schlafzimmer wäre komfortabler und die Räume wie Schlafzimmer, Hauswirtschaftsraum währen besser möblierbar. Durch den Winkel baut ihr ein Haus das Mal erfrischend anders ist, schafft euch jedoch für viel Geld Nachteile im Innern.
Das evtl im Alter unten Schlafen wird nichts. In der Regel verlässt man sein gewohntes Umfeld, wenn es nicht mehr anders geht. D.h körperlich beeinträchtigt. Mit Hilfsmittel wie Rollator funktioniert das Büro und das Bad nicht.
Die Kinderzimmer sind schlauchig und für die Hausgröße klein.
Zeichnet in allen Räumen eure vorhanden bzw. gewünschten Möbel ein.
Ihr könnt für weniger Geld und weniger Fläche mehr Wohnkomfort erhalten.
Habt ihr schon eine Kostenschätzung?
So einen Knick würde ich verstehen, wenn das Grundstück das erwzingt - aber so? Nutzlose Ecken im Haus, mehr Kosten insbesondere durch die Dachkonstruktion und ein etwas sehr eigenwilliges Äußeres. Ich verstehe nicht, warum der Winkel gewünscht wird. Könnt ihr das erklären? Einfach nur ein Spleen oder gibt es dafür handfeste Gründe? Sicht- und Lärmschutz geht anders, dieser halbscharige Knick bringt da gar nichts. Ist die Straße so stark befahren?
Und nachdem das Grundstück ja üppig ist, würde ich, wenn der Knick schon aus spleenigen Gründen sein muß, dann eher auf 90° gehen, dann kann man mit den Räumen was anfangen. Die Schrägen hier kosten nur Platz und sind ohne Nutzen. Am allerschrägsten finde ich ja das Wandstück im Schlafzimmer, daß dem zweiten Kinderzimmer den Zugang ermöglicht. Brüllerchen. Echt, daran erkennt man sofort, daß das wirklich nicht der Weisheit letzter Schluss sein kann.
Ist noch ein Kind geplant? Wegen dem dritten Zimmer? Gäste würde ich ja eher im Büro unten einquartieren, dann haben die das Gästebad für sich. Oben teilen sie sich mit euch das Bad. Ist das so gewollt?
Und bei drei Kindern würde ich auch generell mal über ein zweites Bad im OG nachdenken. Das werden alles mal Pubertiere und dann ist das einzige Bad gerne mal dauerbelegt...
Die Aufteilung im Bad ist hoffentlich auch nicht ernst gemeint, oder? Die halbschräge Badewanne ohne Grund? Ich komme doch zu dem Schluss, daß es sich hier um jemanden mit hoher Affinität zu nutzlos schrägen Wänden handelt.
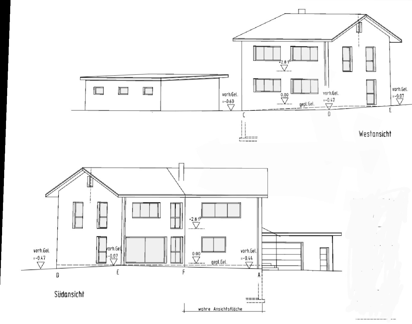
Nein, der Entwurf gefällt mir überhaupt nicht. Auch die Außenansichten sind schauerlich, sorry.
Und nachdem das Grundstück ja üppig ist, würde ich, wenn der Knick schon aus spleenigen Gründen sein muß, dann eher auf 90° gehen, dann kann man mit den Räumen was anfangen. Die Schrägen hier kosten nur Platz und sind ohne Nutzen. Am allerschrägsten finde ich ja das Wandstück im Schlafzimmer, daß dem zweiten Kinderzimmer den Zugang ermöglicht. Brüllerchen. Echt, daran erkennt man sofort, daß das wirklich nicht der Weisheit letzter Schluss sein kann.
Ist noch ein Kind geplant? Wegen dem dritten Zimmer? Gäste würde ich ja eher im Büro unten einquartieren, dann haben die das Gästebad für sich. Oben teilen sie sich mit euch das Bad. Ist das so gewollt?
Und bei drei Kindern würde ich auch generell mal über ein zweites Bad im OG nachdenken. Das werden alles mal Pubertiere und dann ist das einzige Bad gerne mal dauerbelegt...
Die Aufteilung im Bad ist hoffentlich auch nicht ernst gemeint, oder? Die halbschräge Badewanne ohne Grund? Ich komme doch zu dem Schluss, daß es sich hier um jemanden mit hoher Affinität zu nutzlos schrägen Wänden handelt.
Nein, der Entwurf gefällt mir überhaupt nicht. Auch die Außenansichten sind schauerlich, sorry.
Schließe mich Haydee zu 90% an.
Wenn schon Winkel, dann 90°. Da wär ich sofort Riesenfan!
Wenn Du mal schaust: Das Büro hat jetzt den schönsten Platz im ganzen Haus. Für einen Arbeitsplatz etwas übertrieben. Die Küche hingegen gleicht einer Abstellkammer an der Straße und hat keine einladende Anbindung an die Terrasse. Der Rest wurde schon gesagt.
Aber ich finde den Entwurf mutig und erfrischend. Er ist nicht perfekt, aber das kann noch werden. Inklusive Keller wird das allerdings ein teurer Spaß. Ihr solltet das Budget nennen, bevor wir sinnlos über Luftschlösser philosophieren.
Wenn schon Winkel, dann 90°. Da wär ich sofort Riesenfan!
Wenn Du mal schaust: Das Büro hat jetzt den schönsten Platz im ganzen Haus. Für einen Arbeitsplatz etwas übertrieben. Die Küche hingegen gleicht einer Abstellkammer an der Straße und hat keine einladende Anbindung an die Terrasse. Der Rest wurde schon gesagt.
Aber ich finde den Entwurf mutig und erfrischend. Er ist nicht perfekt, aber das kann noch werden. Inklusive Keller wird das allerdings ein teurer Spaß. Ihr solltet das Budget nennen, bevor wir sinnlos über Luftschlösser philosophieren.
Kerstili schrieb:
ZB
Winkelbauweise wegen Sicht und Lärmschutz der Strawas ist denn das für eine Straße, das man vor deren Lärm/Sicht so kompliziert baut, aber zwei Schlafzimmer dann doch in die Richtung plant?
Das mag zwar besonders sein, aber erst ein halbes Haus durchqueren, um dann ins Geschehen zu kommen, mag mir persönlich nicht so richtig gefallen. Der Entwurf sieht aus, als wenn es um ein Anbauhaus geht.
Ein rechteckiges Haus wird auch abschotten können, allerdings gebe ich den Tipp, den Eingangsbereich zentraler zu legen und nicht an einem Ende des Hauses. Auch gleich eine nette Küche bzw Platz und Raum für eine schöne Küche mit einplanen.
Erfrischend finde ich die klobige und kastige Form dann doch nicht - das Haus erinnert mich an ein 60er Jahre Mietshaus, welches (im Innern) zu einem Einfamilienhaus umgebaut wurde, nun liegt an schönster Stelle die Diele, die eigentlich über ist.
Ich denke mir, dass Ihr Euch in der „Anfangsdenke“ mit dem „Abschotten“ etwas verirrt habt, auch wenig Augenmerk auf etwas wohlstimmige Optik geachtet habt.
Anscheinend birgt das Grundstück genug Potential, sich auf anderer Art abzuschotten.
wie stark wird denn dieStraße befahren?
haydee schrieb:
Das Geld für den Winkel kann man sich sparen. Das Haus und die Garage bilden auch bei rechteckigen Haus einen Sichtschutz.
Ohne Winkel wäre weniger Diele notwendig, Schlafzimmer wäre komfortabler und die Räume wie Schlafzimmer, Hauswirtschaftsraum währen besser möblierbar. Durch den Winkel baut ihr ein Haus das Mal erfrischend anders ist, schafft euch jedoch für viel Geld Nachteile im Innern.
Das evtl im Alter unten Schlafen wird nichts. In der Regel verlässt man sein gewohntes Umfeld, wenn es nicht mehr anders geht. D.h körperlich beeinträchtigt. Mit Hilfsmittel wie Rollator funktioniert das Büro und das Bad nicht.
Die Kinderzimmer sind schlauchig und für die Hausgröße klein.
Zeichnet in allen Räumen eure vorhanden bzw. gewünschten Möbel ein.
Ihr könnt für weniger Geld und weniger Fläche mehr Wohnkomfort erhalten.
Habt ihr schon eine Kostenschätzung?Die Diele im EG gehört eigentlich noch zum Esszimmer, Wurde nur vom Zeichner so benannt.
Was meinst du mit " Büro und Bad funktioniert mit Rollator nicht?
Ich habe bereits gebastelt, Alle vorhandenen Möbel maßstabsgetreu ausgeschnitten und in den Grundriss geklebt, verschoben...
Kosteneinschätzung Schlüsselfertig KfW 40plus ~ 525.000€
Ähnliche Themen