ᐅ Kritik an Einfamilienhaus-Grundriss erwünscht (~175m2/0,9m Kniestock/Keller)
Erstellt am: 25.08.20 14:48
J
jj-siegenJ
jj-siegen25.08.20 14:48Hallo zusammen,
wir sind mittlerweile mit unserer Hausplanung einen sehr großen Schritt weiter und näher uns einem eventuellen Vertragsabschluss. Wie werden mit einem regionalen Holzbaubetrieb bauen, bei dem wir uns super aufgehoben fühlen.
Bebauungsplan/Einschränkungen
Größe des Grundstücks: 1032m2
Hang; ja, Haus wird aber auf flacher Ebene des Grundstücks gebaut
Grundflächenzahl: 0,4
Geschossflächenzahl: 1,0
Anzahl Stellplatz: 2
Geschossigkeit: II
Dachform: Satteldach (25-45Grad)
Ausrichtung
Maximale Höhen/Begrenzungen: maximale Höhe baulicher Anlagen 8m
weitere Vorgaben: Drempel 70cm (ab OK Erdgeschossdecke bis unterkante Fußpfette)
Anforderungen der Bauherren
Stilrichtung, Dachform, Gebäudetyp: klassisches Einfamilienhaus, Satteldach
Keller, Geschosse: Keller, EG + DG
Anzahl der Personen, Alter: 2 Erwachsene + 2 Kinder
Raumbedarf im EG, OG
Büro: kombiniertes Arbeits- + Gästezimmer
Schlafgäste pro Jahr: ca 12x pro Jahr
offene oder geschlossene Architektur: offen
konservativ oder moderne Bauweise: hmm, Zwischending
offene Küche, Kochinsel: ja, beides
Anzahl Essplätze: 8-10
Kamin: nein, evtl Ethanolkamin
Musik/Stereowand: nein
Balkon, Dachterrasse; ja, Balkon
Garage, Carport: Doppelcarport (wird noch geplant, nicht direkt am Haus)
Hausentwurf
Von wem stammt die Planung:
-Planer eines Bauunternehmens in Zusammenarbeit mit uns
Was gefällt besonders? Warum?
- alle unsere Wünsche sind erfüllt (Elternbereich, Balkon, Kinderbad, großzügiges Arbeits-/Gästezimmer, großzügiger heller Eingangsbereich)
Was gefällt nicht? Warum?
- nichts konkretes. Ich glaube es kommt einfach so langsam etwas Unsicherheit auf je näher eine Vertragsunterzeichnung rückt. Daher erhoffen wir uns noch ein paar Tipps, Anregungen etc. Bin mir immer noch etwas unsicher mit den Dachschrägen im DG (Kniestock 90cm). Meint ihr das die Räume trotz der Schrägen so gut werden?
Preisschätzung lt Architekt/Planer: ~500000 (genaues Angebot folgt noch)
Persönliches Preislimit fürs Haus, inkl Ausstattung: 600000€
favorisierte Heiztechnik: Erdwärmepumpe
Warum ist der Entwurf so geworden, wie er jetzt ist? ZB
individuell nach unseren Wünschen geplant und verfeinert
Was ist die wichtigste/grundlegende Frage zum Grundriss in 130 Zeichen zusammengefasst?
Wie oben schon erwähnt wünschen wir uns einfach nochmal etwas Input, Anregungen und Kritik, da ich glaube, dass man wenn man sich schon länger mit einem Grundriss beschäftigt hat evtl. manchmal etwas "betriebsblind" wird.
Vielen Dank schonmal für zahlreiche Anregungen, Ideen aber natürlich auch begründete Kritik.


wir sind mittlerweile mit unserer Hausplanung einen sehr großen Schritt weiter und näher uns einem eventuellen Vertragsabschluss. Wie werden mit einem regionalen Holzbaubetrieb bauen, bei dem wir uns super aufgehoben fühlen.
Bebauungsplan/Einschränkungen
Größe des Grundstücks: 1032m2
Hang; ja, Haus wird aber auf flacher Ebene des Grundstücks gebaut
Grundflächenzahl: 0,4
Geschossflächenzahl: 1,0
Anzahl Stellplatz: 2
Geschossigkeit: II
Dachform: Satteldach (25-45Grad)
Ausrichtung
Maximale Höhen/Begrenzungen: maximale Höhe baulicher Anlagen 8m
weitere Vorgaben: Drempel 70cm (ab OK Erdgeschossdecke bis unterkante Fußpfette)
Anforderungen der Bauherren
Stilrichtung, Dachform, Gebäudetyp: klassisches Einfamilienhaus, Satteldach
Keller, Geschosse: Keller, EG + DG
Anzahl der Personen, Alter: 2 Erwachsene + 2 Kinder
Raumbedarf im EG, OG
Büro: kombiniertes Arbeits- + Gästezimmer
Schlafgäste pro Jahr: ca 12x pro Jahr
offene oder geschlossene Architektur: offen
konservativ oder moderne Bauweise: hmm, Zwischending
offene Küche, Kochinsel: ja, beides
Anzahl Essplätze: 8-10
Kamin: nein, evtl Ethanolkamin
Musik/Stereowand: nein
Balkon, Dachterrasse; ja, Balkon
Garage, Carport: Doppelcarport (wird noch geplant, nicht direkt am Haus)
Hausentwurf
Von wem stammt die Planung:
-Planer eines Bauunternehmens in Zusammenarbeit mit uns
Was gefällt besonders? Warum?
- alle unsere Wünsche sind erfüllt (Elternbereich, Balkon, Kinderbad, großzügiges Arbeits-/Gästezimmer, großzügiger heller Eingangsbereich)
Was gefällt nicht? Warum?
- nichts konkretes. Ich glaube es kommt einfach so langsam etwas Unsicherheit auf je näher eine Vertragsunterzeichnung rückt. Daher erhoffen wir uns noch ein paar Tipps, Anregungen etc. Bin mir immer noch etwas unsicher mit den Dachschrägen im DG (Kniestock 90cm). Meint ihr das die Räume trotz der Schrägen so gut werden?
Preisschätzung lt Architekt/Planer: ~500000 (genaues Angebot folgt noch)
Persönliches Preislimit fürs Haus, inkl Ausstattung: 600000€
favorisierte Heiztechnik: Erdwärmepumpe
Warum ist der Entwurf so geworden, wie er jetzt ist? ZB
individuell nach unseren Wünschen geplant und verfeinert
Was ist die wichtigste/grundlegende Frage zum Grundriss in 130 Zeichen zusammengefasst?
Wie oben schon erwähnt wünschen wir uns einfach nochmal etwas Input, Anregungen und Kritik, da ich glaube, dass man wenn man sich schon länger mit einem Grundriss beschäftigt hat evtl. manchmal etwas "betriebsblind" wird.
Vielen Dank schonmal für zahlreiche Anregungen, Ideen aber natürlich auch begründete Kritik.
P
pagoni202025.08.20 15:01Ein paar Dinge, die mir nicht so gefallen würden:
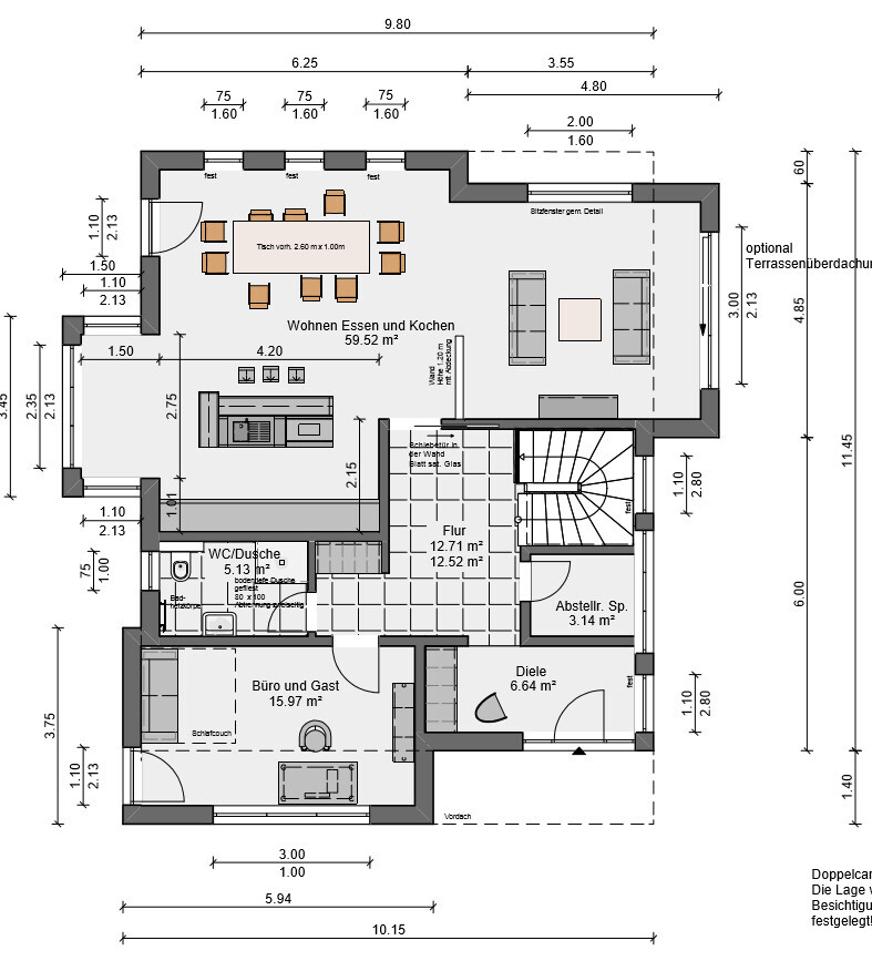
- generell mag ich keine Erker - für diesen hier sehe ich keinerlei Sinn, es sei denn ihr habt dafür ein spezielle Idee. Eher würde ich dann das Esszimmer etwas verlängern in der Tiefe um mehr Abstand zum Tresen zu bekommen
- Der Bereich Diele+Diele+WC+Abstell+Treppe wirkt auf mich iwie zusammengewürfelt und noch nicht homogen
- Balkon von der Ankleide aus begehbar?
- Beim Betreten des Bades steht man direkt vor einer (Glas-) wand
- generell mag ich keine Erker - für diesen hier sehe ich keinerlei Sinn, es sei denn ihr habt dafür ein spezielle Idee. Eher würde ich dann das Esszimmer etwas verlängern in der Tiefe um mehr Abstand zum Tresen zu bekommen
- Der Bereich Diele+Diele+WC+Abstell+Treppe wirkt auf mich iwie zusammengewürfelt und noch nicht homogen
- Balkon von der Ankleide aus begehbar?
- Beim Betreten des Bades steht man direkt vor einer (Glas-) wand
Die Außenwand planrechts im EG paßt nicht zum Grundriss - soll das ein Aufmerksamkeitstest für die Leser sein ?
https://www.instagram.com/11antgmxde/
https://www.linkedin.com/company/bauen-jetzt/
https://www.instagram.com/11antgmxde/
https://www.linkedin.com/company/bauen-jetzt/
P
Pinky030125.08.20 15:33Wofür soll denn der Balkon sei? Ich finde auch den Erker an der Küche unnütz. Oder habt ihr da was bestimmtes mit vor und die möblierung ist noch nicht eingezeichnet?
Gut gefällt mir, dass das Eltern-Schlafzimmer durch die Ankleide begehbar ist und nicht andersrum, schlecht ist allerdings, dass das Bad auf der anderen Seite vom Schlafzimmer liegt. Wenn einer länger/früher schlafen will, muss er durchs Schlafzimmer hin und herlaufen.
Beim Wohnzimmer gefällt mir, dass es etwas abgeschottet ist. Habt ihr denn schon eine TV-Position? Meistens landet man dann mit dem Sofarücken zum Fenster, das ist immer schade.
Gut gefällt mir, dass das Eltern-Schlafzimmer durch die Ankleide begehbar ist und nicht andersrum, schlecht ist allerdings, dass das Bad auf der anderen Seite vom Schlafzimmer liegt. Wenn einer länger/früher schlafen will, muss er durchs Schlafzimmer hin und herlaufen.
Beim Wohnzimmer gefällt mir, dass es etwas abgeschottet ist. Habt ihr denn schon eine TV-Position? Meistens landet man dann mit dem Sofarücken zum Fenster, das ist immer schade.
jj-siegen schrieb:
Warum ist der Entwurf so geworden, wie er jetzt ist? ZB
individuell nach unseren Wünschen geplant und verfeinertBedeutet wohl, überall Ausbuchtungen verteilt, damit mehr Größe erreicht wird?wenn das so gewollt ist (jede Ausbuchtung und Erker birgt Gefahr zur Wassereindrang), dann würde ich dennoch Küchentür setzen. Außerdem die Kücheninsel mehr in den Glaserker ziehen. Die Tür von Windfang zur Diele sehe ich auch zu schmal - das wird ein Nadelöhr.
Ich kann die Größen der Duschen in den Nebenbädern nicht einschätzen, das wird mit Türzargen arg schmal und nur Notbehelfsduschen.
Und dann mal überlegen, ob die Größenverhältnisse von Kinderzimmer zu dem Elterntrakt so stimmig ist: 15qm sehe ich zwar als adäquate Kinderzimmer-Größe an, aber bei dem großen Haus dann doch recht ungerecht. Auch der Balkon erschließt sich mir nicht. Der ist über.
Die Treppe finde ich auch recht „klein“. Funktionieren wird sie wohl.
Wozu der Keller?
Wo ist denn Norden? Lageplan? Grundstück?
Ps ich hab die Maße zu den Duschen gefunden: 80 finde ich tatsächlich zu klein. Und im RBM werden es fertig 75?
Ähnliche Themen