ᐅ Grundriss Einfamilienhaus 190m2 mit Keller Feedback?
Erstellt am: 02.10.22 22:26
BastianP02.10.22 22:26
Liebe Gemeinde,
wir sind aktuell dabei unser Haus zu planen. Der Notartermin für das Grundstück in am 07.10. und danach wollen wir uns schnellstmöglich zwischen einem der drei in Frage kommenden Bauanbieter entscheiden. Das Grundstück liegt in 95326 Kulmbach und wir wollen spätestens um Mai 2024 einziehen um unseren Sohn direkt in der richtigen Schule einzuschulen.
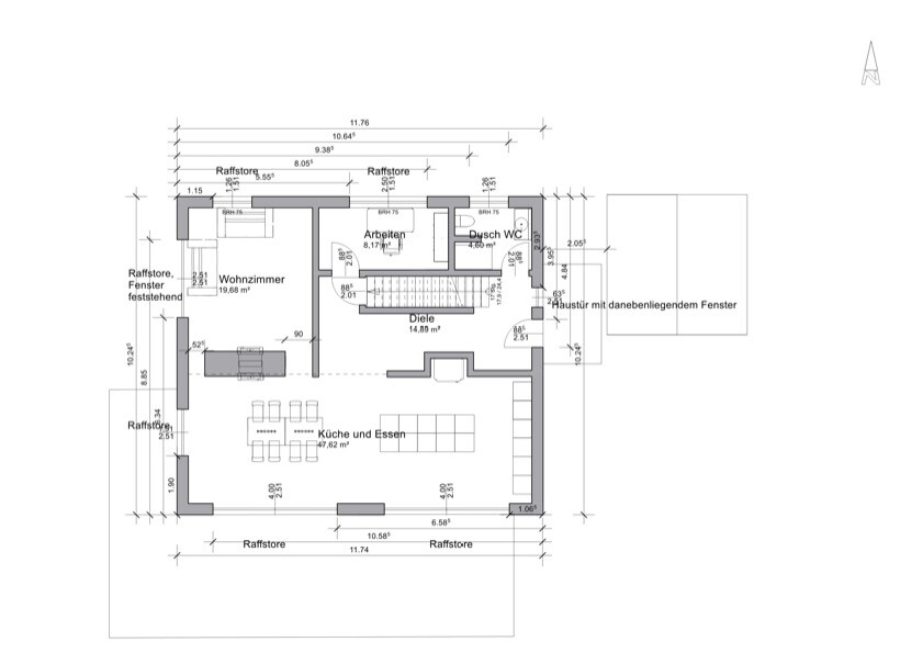
Wir haben auf Basis von bestehenden Grundrissen in diversen Iterationen und Feedbackrunden diesen Grundriss erarbeitet. Da uns total die Erfahrung fehlt und die Baufirmen alle keine sachdienlichen Hinweise (mehr) zur Verbesserung geben, hoffe ich auf das kollektive Feedback der Runde.
Ich sammele zum ersten Mal Feedback - bitte habt Nachtsicht, falls ich etwas vergessen habe.
Bebauungsplan/Einschränkungen
Größe des Grundstücks: 996 m2
Hang: Ja - 5m Höhenunterschied auf 40m Grundstückslänge, Abfall von Straße (Norden) in Richtung Süden
Grundflächenzahl: 0,3
Geschossflächenzahl: 0,6
Baufenster, Baulinie und -grenze: 5m ab Straße
Randbebauung: Westen, Osten, Süden
Anzahl Stellplatz: 2
Geschossigkeit: 2
Dachform: Satteldach
Stilrichtung: 2 Geschosser
Ausrichtung: West <-> Ost
Maximale Höhen/Begrenzungen: 9m
weitere Vorgaben
Anforderungen der Bauherren
Stilrichtung, Dachform, Gebäudetyp: 2 Geschosser, Satteldach
Keller, Geschosse: Keller + 2 Vollgeschosse
Anzahl der Personen, Alter: 39J, 45J, 4J, 0J
Raumbedarf im EG, OG:
* EG: Großes Zimmer zum Wohnen, Essen und Kochen, dazu Arbeitszimmer und Duschbad
* OG: 3 Kinderzimmer, 1 Elternschlafzimmer, großes Familienbad
* KG: Hauswirtschaftsraum, Werkstatt, Gästezimmer, Lager
Büro: Familiennutzung oder Homeoffice? Home Office
Schlafgäste pro Jahr: 12x pro Jahr
offene oder geschlossene Architektur: offene Wohnräume, geschlossene Schlafräume
konservativ oder moderne Bauweise: modern
offene Küche, Kochinsel: offene Küche mit Kochinsel
Anzahl Essplätze: 6
Kamin: Tunnelkamin zwischen Wohn- und Esszimmer
Musik/Stereowand: nein
Balkon, Dachterrasse: nein
Garage, Carport: 2x Stellplätze, unentschieden ob Garagen oder Carport + Fahrradschuppen
Nutzgarten, Treibhaus: nein
weitere Wünsche/Besonderheiten/Tagesablauf, gern auch Begründungen, warum dieses oder das nicht sein soll
Hausentwurf
Von wem stammt die Planung:
-Planer eines Bauunternehmens: Initiale Idee
-Architekt
-Do-it-Yourself: Deutliche Anpassungen
Was gefällt besonders? Warum? Raumaufteilung im EG passt uns sehr gut
Was gefällt nicht? Warum? Räume im OG teilweise zu verwinkelt, Bad sehr länglich
Preisschätzung lt Architekt/Planer: 650.000 €
Persönliches Preislimit fürs Haus, inkl Ausstattung: 700.000 €
favorisierte Heiztechnik: Luft-Wasser Wärmepumpe
Wenn Ihr verzichten müsst, auf welche Details/Ausbauten
-könnt Ihr verzichten:
-könnt Ihr nicht verzichten: Geradeläufige Treppe, hohe Decken, symmetrische Fassadenansicht, großes Wohn- / Ess- / Kochzimmer
Warum ist der Entwurf so geworden, wie er jetzt ist? ZB
Standardentwurf vom Planer?
Entsprechende/Welche Wünsche wurden vom Architekten umgesetzt?
Ein Gemisch aus vielen Beispielen aus div. Magazinen...
Was macht ihn in Euren Augen besonders gut oder schlecht?
Was ist die wichtigste/grundlegende Frage zum Grundriss in 130 Zeichen zusammengefasst?
Feedback zur Verfeinerung, kritische Fragen, Vermeidung von groben Fehlern




wir sind aktuell dabei unser Haus zu planen. Der Notartermin für das Grundstück in am 07.10. und danach wollen wir uns schnellstmöglich zwischen einem der drei in Frage kommenden Bauanbieter entscheiden. Das Grundstück liegt in 95326 Kulmbach und wir wollen spätestens um Mai 2024 einziehen um unseren Sohn direkt in der richtigen Schule einzuschulen.
Wir haben auf Basis von bestehenden Grundrissen in diversen Iterationen und Feedbackrunden diesen Grundriss erarbeitet. Da uns total die Erfahrung fehlt und die Baufirmen alle keine sachdienlichen Hinweise (mehr) zur Verbesserung geben, hoffe ich auf das kollektive Feedback der Runde.
Ich sammele zum ersten Mal Feedback - bitte habt Nachtsicht, falls ich etwas vergessen habe.
Bebauungsplan/Einschränkungen
Größe des Grundstücks: 996 m2
Hang: Ja - 5m Höhenunterschied auf 40m Grundstückslänge, Abfall von Straße (Norden) in Richtung Süden
Grundflächenzahl: 0,3
Geschossflächenzahl: 0,6
Baufenster, Baulinie und -grenze: 5m ab Straße
Randbebauung: Westen, Osten, Süden
Anzahl Stellplatz: 2
Geschossigkeit: 2
Dachform: Satteldach
Stilrichtung: 2 Geschosser
Ausrichtung: West <-> Ost
Maximale Höhen/Begrenzungen: 9m
weitere Vorgaben
Anforderungen der Bauherren
Stilrichtung, Dachform, Gebäudetyp: 2 Geschosser, Satteldach
Keller, Geschosse: Keller + 2 Vollgeschosse
Anzahl der Personen, Alter: 39J, 45J, 4J, 0J
Raumbedarf im EG, OG:
* EG: Großes Zimmer zum Wohnen, Essen und Kochen, dazu Arbeitszimmer und Duschbad
* OG: 3 Kinderzimmer, 1 Elternschlafzimmer, großes Familienbad
* KG: Hauswirtschaftsraum, Werkstatt, Gästezimmer, Lager
Büro: Familiennutzung oder Homeoffice? Home Office
Schlafgäste pro Jahr: 12x pro Jahr
offene oder geschlossene Architektur: offene Wohnräume, geschlossene Schlafräume
konservativ oder moderne Bauweise: modern
offene Küche, Kochinsel: offene Küche mit Kochinsel
Anzahl Essplätze: 6
Kamin: Tunnelkamin zwischen Wohn- und Esszimmer
Musik/Stereowand: nein
Balkon, Dachterrasse: nein
Garage, Carport: 2x Stellplätze, unentschieden ob Garagen oder Carport + Fahrradschuppen
Nutzgarten, Treibhaus: nein
weitere Wünsche/Besonderheiten/Tagesablauf, gern auch Begründungen, warum dieses oder das nicht sein soll
Hausentwurf
Von wem stammt die Planung:
-Planer eines Bauunternehmens: Initiale Idee
-Architekt
-Do-it-Yourself: Deutliche Anpassungen
Was gefällt besonders? Warum? Raumaufteilung im EG passt uns sehr gut
Was gefällt nicht? Warum? Räume im OG teilweise zu verwinkelt, Bad sehr länglich
Preisschätzung lt Architekt/Planer: 650.000 €
Persönliches Preislimit fürs Haus, inkl Ausstattung: 700.000 €
favorisierte Heiztechnik: Luft-Wasser Wärmepumpe
Wenn Ihr verzichten müsst, auf welche Details/Ausbauten
-könnt Ihr verzichten:
-könnt Ihr nicht verzichten: Geradeläufige Treppe, hohe Decken, symmetrische Fassadenansicht, großes Wohn- / Ess- / Kochzimmer
Warum ist der Entwurf so geworden, wie er jetzt ist? ZB
Standardentwurf vom Planer?
Entsprechende/Welche Wünsche wurden vom Architekten umgesetzt?
Ein Gemisch aus vielen Beispielen aus div. Magazinen...
Was macht ihn in Euren Augen besonders gut oder schlecht?
Was ist die wichtigste/grundlegende Frage zum Grundriss in 130 Zeichen zusammengefasst?
Feedback zur Verfeinerung, kritische Fragen, Vermeidung von groben Fehlern
fromthisplace02.10.22 23:17
Meine ersten Gedanken:
1. sehr viel Platz für Küche und Essen im Süden. Finde ich gut. Wohnzimmer im Norden. Das passt. Allerdings verstehe ich die Kochinsel (?) nicht. Diese würde ich parallel zu den Hochschränken planen.
2. Was ist dieser Rücksprung? Ist der für den Kühlschrank? Den würde ich aufgrund des dahinterliegenden Flures so nicht planen
3. Was ist das Zwischen Essen und Wohnen?
4. "Haustüre mit danebenliegendem Fenster" würde ich so nicht planen, sondern eine Haustür mit Fenster ohne Wand dazwischen wählen
5. Wie breit ist der Gang/Eingang unten?
6. zu überlegen ist aus meiner Sicht die Treppe etwas nach Süden zu verschieben, den Gang im EG und die Räume im OG damit etwas zu verkleinern, dafür das Bad im OG zu vergrößern
7. Außerdem würde ich das Schlauchbad in Elternbad und Kinderbad teilen und in dem Zug über die Notwendigkeit der Dusche im EG nachdenken
8. Elternschlafzimmer würde ich im Leben nicht zwischen zwei Kinderzimmer legen
9. Private Frage: Seid ihr euch sicher, dass ihr ein drittes Kinderzimmer braucht?
Euer Haus wird was. Viel Erfolg. 🙂
1. sehr viel Platz für Küche und Essen im Süden. Finde ich gut. Wohnzimmer im Norden. Das passt. Allerdings verstehe ich die Kochinsel (?) nicht. Diese würde ich parallel zu den Hochschränken planen.
2. Was ist dieser Rücksprung? Ist der für den Kühlschrank? Den würde ich aufgrund des dahinterliegenden Flures so nicht planen
3. Was ist das Zwischen Essen und Wohnen?
4. "Haustüre mit danebenliegendem Fenster" würde ich so nicht planen, sondern eine Haustür mit Fenster ohne Wand dazwischen wählen
5. Wie breit ist der Gang/Eingang unten?
6. zu überlegen ist aus meiner Sicht die Treppe etwas nach Süden zu verschieben, den Gang im EG und die Räume im OG damit etwas zu verkleinern, dafür das Bad im OG zu vergrößern
7. Außerdem würde ich das Schlauchbad in Elternbad und Kinderbad teilen und in dem Zug über die Notwendigkeit der Dusche im EG nachdenken
8. Elternschlafzimmer würde ich im Leben nicht zwischen zwei Kinderzimmer legen
9. Private Frage: Seid ihr euch sicher, dass ihr ein drittes Kinderzimmer braucht?
Euer Haus wird was. Viel Erfolg. 🙂
kati133702.10.22 23:26
Insgesamt viel schönes in dem Grundriss. Ist natürlich relativ groß, aber ihr wolltet ja Feedback zum Haus, nicht zur Bezahlbarkeit, nehme ich an? 🙂
2 Dinge als Denkanstoß:
- Die Nische für den Kühlschrank: Aus meiner sicht sind freistehende Kühlschränke aktuell so eine Mode-Erscheinung. Ob das immer so bleibt / ob man sich später vielleicht mal was anderes wünscht? Dann hätte man da eine unnütze Nische in der Wand. Oder eine Besenkammer, je nachdem.
- Kind 2 / Eltern: Das Kinderzimmer profitiert von dem Schlauchigen Eingang kaum, das Elternzimmer würde von etwas mehr Platz ggf profitieren. Ich würde die Tür da zum Kinderzimmer etwas nach links ziehen und dem Elternschlafzimmer einen breiteren Eingang spendieren.
Ach ja, dem Vorredner schließe ich mich bzgl Kinderzimmer an: Ich würde unser Schlafzimmer auch ungern neben Kinderzimmern haben. Kommt auf's Kind an, unserer ist ein leichter Schläfer und wird von jedem Geräusch wach.
2 Dinge als Denkanstoß:
- Die Nische für den Kühlschrank: Aus meiner sicht sind freistehende Kühlschränke aktuell so eine Mode-Erscheinung. Ob das immer so bleibt / ob man sich später vielleicht mal was anderes wünscht? Dann hätte man da eine unnütze Nische in der Wand. Oder eine Besenkammer, je nachdem.
- Kind 2 / Eltern: Das Kinderzimmer profitiert von dem Schlauchigen Eingang kaum, das Elternzimmer würde von etwas mehr Platz ggf profitieren. Ich würde die Tür da zum Kinderzimmer etwas nach links ziehen und dem Elternschlafzimmer einen breiteren Eingang spendieren.
Ach ja, dem Vorredner schließe ich mich bzgl Kinderzimmer an: Ich würde unser Schlafzimmer auch ungern neben Kinderzimmern haben. Kommt auf's Kind an, unserer ist ein leichter Schläfer und wird von jedem Geräusch wach.
ypg02.10.22 23:43
fromthisplace schrieb:
Meine ersten Gedanken:Sind auch meine.kati1337 schrieb:
aber ihr wolltet ja Feedback zum Haus, nicht zur Bezahlbarkeit, nehme ich an?Das eine geht ohne dem anderen nicht..
die Einbuchtung im Flur stört. Das hat die Küche auch nicht nötig. Sackmann man einiges schieben und somit auf die Einbuchtung verzichten. Ggf aber auch mit einem großen Garderobenschrank vermitteln, damit es kein Nadelöhr gibt.
Oben gefällt mir gar nichts! Bad ist zu weit zurückversetzt, eine Badeoase vor dem eigentlichen Bad ist irgendwie fehl.
Viel Keller sehe ich.
Budget ist durch Keller knapp. Ich würde gern mal den Hang im Baufenster sehen! Es sieht so aus, als wenn man diesen mit in die Wohnfläche, also auch den Keller als UG mit im Haus integriert und somit auf eine Ebene verzichten könnte.
11ant03.10.22 00:00
BastianP schrieb:
Der Notartermin für das Grundstück in am 07.10. und danach wollen wir uns schnellstmöglich zwischen einem der drei in Frage kommenden Bauanbieter entscheiden. Das Grundstück liegt in 95326 KulmbachEs gibt hier eine Rubrik "Erfahrungen mit Baufirmen", wo diverse von denen besprochen sind, und man zu vielen Regionen auch noch weitere Firmen findet. Kulmbach ist da nicht exotisch, womöglich finden sich hier gar schon Anbieter von dort.BastianP schrieb:
Wir haben auf Basis von bestehenden Grundrissen in diversen Iterationen und Feedbackrunden diesen Grundriss erarbeitet. [...] Ich sammele zum ersten Mal Feedback - bitte habt Nachtsicht, falls ich etwas vergessen habe.Diverse Feedbackrunden wiedennwodennwasdenn, das klingt zu erstmaligem Feedbacksammeln als Widerspruch (?)BastianP schrieb:
Da uns total die Erfahrung fehlt und die Baufirmen alle keine sachdienlichen Hinweise (mehr) zur Verbesserung geben,Wo kommt denn dann die empfundene Berufung und Eignung her, den Entwurf des Anbieterplaners zu modifizieren (und was waren die dazu motivierenden Stellen) ?Sachdienliche Hinweise bitte an Irene Campregher, Peter Nidetzky oder Konrad Toenz 🙂 - welche Art Hinweise hättet Ihr denn von den Bauunternehmen erwartet ?
https://www.instagram.com/11antgmxde/
https://www.linkedin.com/company/bauen-jetzt/
SoL03.10.22 07:30
Unten ist der Grundriss bis auf den Rücksprung passend, bei drei Kindern wird der Garderobenplatz nicht mehr ausreichen.
Oben halte ich ihn für suboptimal durch den unnützen schmalen Flur, die Eingangsnase beim Kinderzimmer und das verwinkelte Badezimmer.
Den Preis von 650k€ halte ich für ambitioniert durch den Keller und vor allem durch den Hang (siehe schon geplante Stützmauern und dabei wird es nicht bleiben...)
Ich würde da höhere Kosten annehmen.
Oben halte ich ihn für suboptimal durch den unnützen schmalen Flur, die Eingangsnase beim Kinderzimmer und das verwinkelte Badezimmer.
Den Preis von 650k€ halte ich für ambitioniert durch den Keller und vor allem durch den Hang (siehe schon geplante Stützmauern und dabei wird es nicht bleiben...)
Ich würde da höhere Kosten annehmen.
Ähnliche Themen