ᐅ Entwurf / Verbesserung Einfamilienhaus 150-175m² mit Walmdach und Keller
Erstellt am: 14.11.18 10:26
P
PitFlockeP
PitFlocke14.11.18 10:26Hallo Zusammen,
Ich bin gerade dabei mein Haus zu planen und habe die ersten Entwürfe dafür erhalten. Gerne würde ich aber auch noch weitere Stimmen und Ideen einholen. Bitte um eure Inputs, Vorschläge, Möglichkeiten aber auch Kritikpunkte am aktuellen Entwurf. Bin für alles Offen.
DANKE =)
Bebauungsplan/Einschränkungen
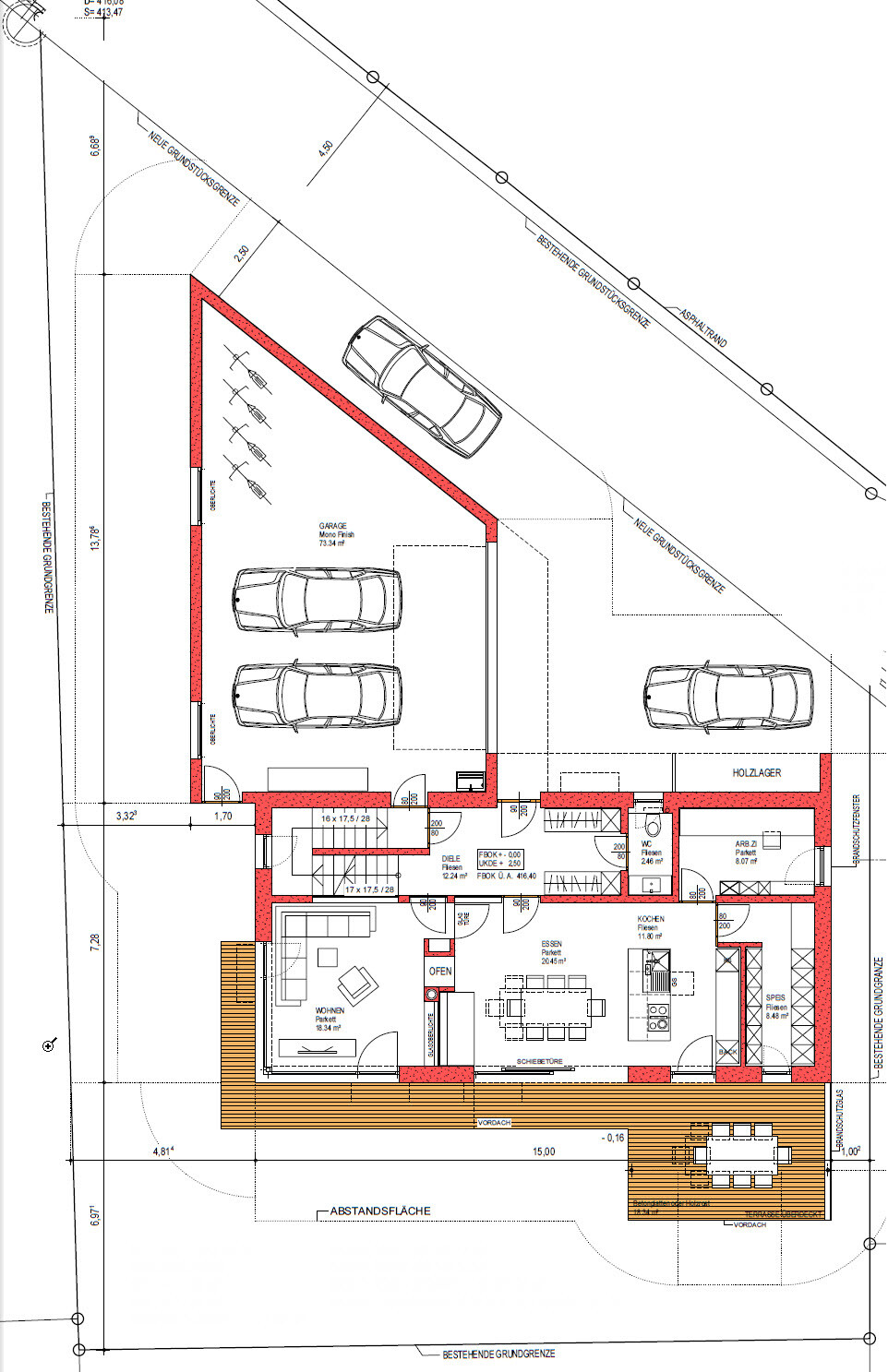
Größe des Grundstücks: 535m²
Hang: Eben
Grundflächenzahl/Geschossflächenzahl: ohne Vorgabe
Baufenster, Baulinie und –grenze:
- Norden (Strasse): Abstandsnachsicht bis ca. 2m
- Westen: Abstand min. 3m
- Süden: So viel Platz wie möglich frei für Garten
- Osten: Bebauung möglich bis 1m an Grundstücksgrenze
Anzahl Stellplatz: Doppelgarage + Parkplatz vor dem Gebäude
Geschossigkeit: Keller, Erdgeschoss, Obergeschoss
Dachform: Walmdach
Stilrichtung: Modern
Ausrichtung: Offen Richtung Süden, Geschlossen Richtung Norden (Strasse)
weitere Vorgaben:
- Haus soll laut Gemeinde nicht in der Straßenflucht stehen sondern wie die Häuser in der Umgebung. Ausrichtung Nord-Süd bzw. Ost-West.
- Küche und Wohnzimmer sollen getrennt begehbar sein von der Diele aus
- EG Terrasse idealerweise im Süd-Osten um die Abendsonne zu genießen
- Durchgang von Garage ins Haus
Anforderungen der Bauherren
Stilrichtung, Dachform, Gebäudetyp: Modern, Einfamilienhaus
Keller, Geschosse: Keller Ja, +ED und OG
Raumbedarf im EG: Küche (mit Kücheninsel) + Esszimmer, Arbeitszimmer, Diele, Speiß, Wohnzimmer, WC
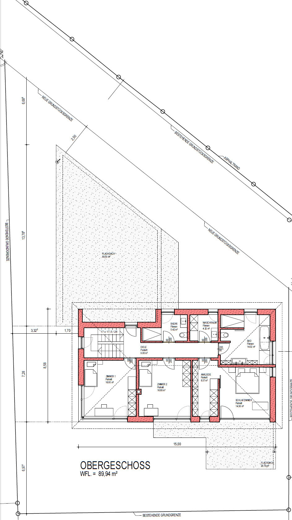
Raumbedarf im OG: 2 Kinderzimmer (ca. 15 m²), Kinderbad, Elternbad, Waschraum (Waschmaschine etc.), Elternschlafzimmer mit begehbarem Kleiderschrank
Schlafgäste pro Jahr: -
Anzahl Essplätze: ca. 8
Kamin: ja Tunnel zwischen Küche und Wohnzimmer
Balkon, Dachterrasse: begehbare Terrasse im OG
Garage, Carport: Doppelgarage
Nutzgarten, Treibhaus: Nutzgarten
weitere Wünsche/Besonderheiten/Tagesablauf, gern auch Begründungen, warum dieses oder das nicht sein soll
Hausentwurf
Von wem stammt die Planung: selbstständiger Planer
Was gefällt besonders? Warum?
Nutzung des Grundstücks, jedoch gibt es auch hier vielleicht noch eine bessere Idee
Was gefällt nicht? Warum?
Im OG: Bad nicht ideal da eigentlich zu groß bzw. die Fläche in der Raummitte kann nicht genutzt werden. Vielleicht besser eine andere Raumaufteilung...
Preisschätzung lt Architekt/Planer: -
favorisierte Heiztechnik: Grundwasser-Wärmepumpe
Warum ist der Entwurf so geworden, wie er jetzt ist? Durch Diskussion und Inputs von uns und Freunden
Was ist die wichtigste/grundlegende Frage zum Grundriss in 130 Zeichen zusammengefasst? Trennung von Wohnzimmer und Kochen / Essen mit Zugang zur Diele, Südseitige Ausrichtung


Ich bin gerade dabei mein Haus zu planen und habe die ersten Entwürfe dafür erhalten. Gerne würde ich aber auch noch weitere Stimmen und Ideen einholen. Bitte um eure Inputs, Vorschläge, Möglichkeiten aber auch Kritikpunkte am aktuellen Entwurf. Bin für alles Offen.
DANKE =)
Bebauungsplan/Einschränkungen
Größe des Grundstücks: 535m²
Hang: Eben
Grundflächenzahl/Geschossflächenzahl: ohne Vorgabe
Baufenster, Baulinie und –grenze:
- Norden (Strasse): Abstandsnachsicht bis ca. 2m
- Westen: Abstand min. 3m
- Süden: So viel Platz wie möglich frei für Garten
- Osten: Bebauung möglich bis 1m an Grundstücksgrenze
Anzahl Stellplatz: Doppelgarage + Parkplatz vor dem Gebäude
Geschossigkeit: Keller, Erdgeschoss, Obergeschoss
Dachform: Walmdach
Stilrichtung: Modern
Ausrichtung: Offen Richtung Süden, Geschlossen Richtung Norden (Strasse)
weitere Vorgaben:
- Haus soll laut Gemeinde nicht in der Straßenflucht stehen sondern wie die Häuser in der Umgebung. Ausrichtung Nord-Süd bzw. Ost-West.
- Küche und Wohnzimmer sollen getrennt begehbar sein von der Diele aus
- EG Terrasse idealerweise im Süd-Osten um die Abendsonne zu genießen
- Durchgang von Garage ins Haus
Anforderungen der Bauherren
Stilrichtung, Dachform, Gebäudetyp: Modern, Einfamilienhaus
Keller, Geschosse: Keller Ja, +ED und OG
Raumbedarf im EG: Küche (mit Kücheninsel) + Esszimmer, Arbeitszimmer, Diele, Speiß, Wohnzimmer, WC
Raumbedarf im OG: 2 Kinderzimmer (ca. 15 m²), Kinderbad, Elternbad, Waschraum (Waschmaschine etc.), Elternschlafzimmer mit begehbarem Kleiderschrank
Schlafgäste pro Jahr: -
Anzahl Essplätze: ca. 8
Kamin: ja Tunnel zwischen Küche und Wohnzimmer
Balkon, Dachterrasse: begehbare Terrasse im OG
Garage, Carport: Doppelgarage
Nutzgarten, Treibhaus: Nutzgarten
weitere Wünsche/Besonderheiten/Tagesablauf, gern auch Begründungen, warum dieses oder das nicht sein soll
Hausentwurf
Von wem stammt die Planung: selbstständiger Planer
Was gefällt besonders? Warum?
Nutzung des Grundstücks, jedoch gibt es auch hier vielleicht noch eine bessere Idee
Was gefällt nicht? Warum?
Im OG: Bad nicht ideal da eigentlich zu groß bzw. die Fläche in der Raummitte kann nicht genutzt werden. Vielleicht besser eine andere Raumaufteilung...
Preisschätzung lt Architekt/Planer: -
favorisierte Heiztechnik: Grundwasser-Wärmepumpe
Warum ist der Entwurf so geworden, wie er jetzt ist? Durch Diskussion und Inputs von uns und Freunden
Was ist die wichtigste/grundlegende Frage zum Grundriss in 130 Zeichen zusammengefasst? Trennung von Wohnzimmer und Kochen / Essen mit Zugang zur Diele, Südseitige Ausrichtung
M
Mottenhausen14.11.18 11:46Generell: Das Haus darf nicht parallel zur Straße, aber es könnte noch weiter nach norden rücken, wenn es etwas schmaler wäre und die Garage etwas kleiner. Im Moment geht gefühlt die Hälfte eures Grundstücks für die riesige Garage sowie Einfahrt und Stellplatz darauf, während der Garten nur ein sehr schmaler Streifen ist. Schön für die Autos, schlecht für euch.
P
PitFlocke14.11.18 12:00Hallo Mottenhausen,
SG PitFlocke
Mottenhausen schrieb:Ja genau das Haus darf nicht parallel zur Straße stehen, da alle Häuser in dieser Gegend eben in dieser "Flucht" stehen und es das Ortsbild stören würde.
Generell: Das Haus darf nicht parallel zur Straße, aber es könnte noch weiter nach norden rücken, wenn es etwas schmaler wäre und die Garage etwas kleiner.
Mottenhausen schrieb:Ja das ist im Moment leider nicht 100% optimal, jedoch haben uns hier auch die unterschiedlichsten Entwürfe nicht wirklich weiter gebracht, sodass wir mehr nutzbare Fläche im Süden bzw. Süd-Westen generieren konnten.
Im Moment geht gefühlt die Hälfte eures Grundstücks für die riesige Garage sowie Einfahrt und Stellplatz darauf, während der Garten nur ein sehr schmaler Streifen ist. Schön für die Autos, schlecht für euch.
SG PitFlocke
Die Garage finde ich auch zu riesig, besonders der spitze Winkel im Norden würde mich stören. Andererseits kann man den Platz wohl kaum sinnvoller nutzen.
Garage weiter nach Norden würde sie verschmälern.
- Die Fenster Fronten im OG Zimmer1 finde ich zu groß. Machen gefühlt ein Drittel der Wandfläche aus.
- Die Ankleide als Durchgangszimmer ist auch eher suboptimal.
- Die Tür vom Wohn- zum Esszimmer stört sich ggf. mit der Tür zur Diele.
- Von der Küche aus ins Arbeitszimmer geht, würde mir aber nicht so gefallen.
- Die Treppe ist weit außen. Bei so einem langen Haus (15m) hätte ich versucht, die etwas zentraler unterzubringen.
- Braucht man die Tür in der Küche?
- Evtl. kann man auch versuchen, das OG über die Garage zu bauen und das Haus dann insgesamt eher L-förmig und kompakter zu gestalten als so langgezogen. Also mit integrierter Garage.
Garage weiter nach Norden würde sie verschmälern.
- Die Fenster Fronten im OG Zimmer1 finde ich zu groß. Machen gefühlt ein Drittel der Wandfläche aus.
- Die Ankleide als Durchgangszimmer ist auch eher suboptimal.
- Die Tür vom Wohn- zum Esszimmer stört sich ggf. mit der Tür zur Diele.
- Von der Küche aus ins Arbeitszimmer geht, würde mir aber nicht so gefallen.
- Die Treppe ist weit außen. Bei so einem langen Haus (15m) hätte ich versucht, die etwas zentraler unterzubringen.
- Braucht man die Tür in der Küche?
- Evtl. kann man auch versuchen, das OG über die Garage zu bauen und das Haus dann insgesamt eher L-förmig und kompakter zu gestalten als so langgezogen. Also mit integrierter Garage.
sco0ter schrieb:
Garage weiter nach Norden würde sie verschmälern.Ich wollte sie weiter in den Westen bis an die Grenze verschieben, und dann erst in den Norden. Dann können die Autos davor stehen und die Spitze eventuell gerade gezogen werden.Ähnliche Themen